犐犆犛27 .100 犓09
中华人民共和国国家标准
犌犅/犜36291.2—2018
电力安全设施配置技术规范 第2部分:线路
犚犲犵狌犾犪狋犻狅狀犳狅狉狊犪犳犲狋狔犳犪犮犻犾犻狋犻犲狊犮狅狀犳犻犵狌狉犪狋犻狅狀狅犳犲犾犲犮狋狉犻犮狆狅狑犲狉犻狀犱狌狊狋狉狔— 犘犪狉狋2:犈犾犲犮狋狉犻犮犾犻狀犲
2018-06-07 发布
2019-01-01 实施
国家市场监督管理总局 中国国家标准化管理委员会
犌犅/犜36291.2—2018
目 次
前言........................................................................................................................T
1 范围.....................................................................................................................1
2规范性引用文件......................................................................................................1
3术语和定义............................................................................................................1
4 总则.....................................................................................................................2
5 安全标志...............................................................................................................2
6 设备标志................................ 16
7安全防护设施.........................................................................................................19
附录A (资料性附录)安全设施标志牌制作标准...............................................................22
前 言
犌犅/犜36291.2—2018
GB/T 36291《电力安全设施配置技术规范》分为以下部分:
——第1部分:变电站;
——第2部分:线路。
本部分为GB/T 36291的第2部分。
本部分按照GB/T 1.1-2009给出的规则起草。
本部分由中国电力企业联合会提出。
本部分由全国高压电气安全标准化技术委员会(SAC/TC 226)归口。
本部分起草单位:国网河南省电力公司、国家电网公司、中国电力科学研究院有限公司。
本部分主要起草人:贺鸿、万保权、杨军、沈黎明、朱建军、秦晓军、余国太、马德英、杨军飞、贺翔、 陈江波、宋俊晔、潘勇、黄伟、刘秀娟、何妍、李辉。
T
犌犅/犜36291.2—2018
电力安全设施配置技术规范 第2部分:线路
1范围
GB/T 36291的本部分规定了电力线路安全设施配备标准及设置、使用的规范。
本部分适用于电力线路安全设施配置。
2规范性引用文件
下列文件对于本文件的应用是必不可少的。凡是注日期的引用文件,仅注日期的版本适用于本文 件。凡是不注日期的引用文件,其最新版本(包括所有的修改单)适用于本文件。
GB 2811安全帽
GB 2893安全色
GB 2894安全标志及其使用导则
GB 6095安全带
GB 13495.1消防安全标志 第1部分:标志
GB 15630消防安全标志设置要求
3术语和定义
下列术语和定义适用于本文件。
3.1
安全色 safety colour
传递安全信息含义的颜色,包括红、蓝、黄、绿四种颜色。
[GB 2893—2008,定义 3.1]
3.2
对比色 contrast colour
使安全色更加醒目的反衬色,包括黑、白两种颜色。
[GB 2893—2008,定义 3.2]
3.3
安全标志safety sign
用以表达特定安全信息的标志,由图形符号、安全色、几何形状(边框)和文字构成。
[GB 2894—2008,定义 3.1]
3.4
禁止标志 proNbition Sign
禁止人们不安全行为的图形标志。
[GB 2894—2008,定义 3.3]
1
犌犅/犜36291.2—2018
3 .5
警告标志 warning sign
提醒人们对周围环境引起注意,以避免可能发生危险的图形标志。
[GB 2894—2008,定义 3.4]
3 .6
指令标志direct狅狀Sign
强制人们必须做出某种动作或采用防范措施的图形标志。
[GB 2894—2008,定义 3.5]
3 .7
提示标志 prompt Sign
向人们提供某种信息(如标明安全设施或场所等)的图形标志。
[GB 2894—2008,定义 3.6]
3 .8
环境信息标志 environmental informatθn Sign
所提供的信息涉及较大区域的图形标志。
[GB 2894—2008,定义 3.8]
3 .9
局部信息标志 PartiaIin狅rmat狅狀Sign
所提供的信息只涉及某地点,甚至某个设备或部件的图形标志。
[GB 2894—2008,定义 3.9]
3 .10
设备标志device Sign
用以标明设备名称、编号等特定信息的标志,由文字和(或)图形构成。
3 .11
安全防护设施Safety PrOteCt狅狀facility
防止人身伤害、设备损坏而配置的防护装置和用具。
4 总则
4.1电力线路的设备(设施)、检修施工等特定区域以及保护区范围内其他有必要提醒人们注意安全的 场所,应配置安全设施。
4.2安全设施包括安全标志、设备标志、安全防护设施。
4.3安全设施所用的颜色应符合GB 2893的规定。红色传递禁止、停止、危险或提示消防设备、设施的 信息;蓝色传递必须遵守规定的指令性信息;黄色传递注意、警告的信息;绿色传递表示安全的提示性 信息。
4.4安全设施的设置应清晰醒目、安全可靠、便于维护,适应使用环境。
4.5安全设施的安装应符合安全要求。安全设施的规格、尺寸、安装位置可视现场情况确定,同类设备 (设施)应规范统一。
5 安全标志
5.1 -般要求
5.1.1安全标志包括禁止标志、警告标志、指令标志、提示标志和消防安全标志、航空警告标志等。
2
犌犅/犜36291.2—2018
5.1.2安全标志一般使用相应的通用图形标志和文字辅助说明的组合标志。
5.1.3安全标志一般采用标志牌的形式,宜使用衬边,以使安全标志与周围环境之间形成较为强烈的 对比。标志牌文字图形内容宜使用发光材料印刷。
5.1.4安全标志所用的图形符号、几何形状、文字,标志牌的材质、表面质量、衬边、型号选用应符合 GB 2894的规定。
5.1.5 标志牌应设在与安全有关的醒目地方。环境信息标志宜设在有关区域的入口位置和醒目位置; 局部环境信息应设在有关地点或设备(部件)的醒目位置。
5.1.6标志牌不宜设在可移动的物体上。标志牌前禁止放置妨碍认读的障碍物。
5.1.7标志牌设置的高度尽量与人眼的视线高度相一致,悬挂式和柱式的环境信息标志牌的下缘距地 面的高度不宜小于2 m,局部信息标志的设置高度应视具体情况确定。
5.1.8多个标志牌在一起设置时,应按照警告、禁止、指令、提示类型的顺序,先左后右、先上后下排列。
5.1.9标志牌的固定方式分附着式、悬挂式和柱式。附着式和悬挂式的固定应稳固不倾斜,柱式的标 志牌和支架应联接牢固。临时标志牌应采取防止脱落、移位措施。
5.1.10标志牌应定期检查,如发现遗失、破损、变形、褪色时,应及时修整或更换。修整或更换时,应有 临时的标志替换。
5.2禁止标志
5.2.1禁止标志牌的基本形式是一长方形衬底牌,上方是禁止标志(带斜杠的圆边框),下方是文字辅 助标志(矩形边框)。图形上、中、下间隙,左、右间隙相等。制作标准参见附录Ao
5.2.2禁止标志牌长方形衬底色为白色,带斜杠的圆边框为红色,标志符号为黑色,辅助标志为红底白 字、黑体字,字号根据标志牌尺寸、字数调整。如图1所示。
图1禁止标志牌的基本形式与标准色
5.2.3常用禁止标志见表1。
3
GB/犜 36291.2—2018
表1常用禁止标志
|
序号 |
图形标志示例 |
名称 |
设置范围和地点 | ||
|
1-1 |
禁止吸烟 |
电缆隧道出入口、电缆井内、检修井内、电 缆接续作业的临时围栏等处 | |||
|
1-2 |
禁止烟火 |
电缆隧道出入口等处 | |||
|
1-3 |
I |
禁止跨越 |
不允许跨越的深坑(沟)等危险场所、安全 遮栏等处 | ||
|
1-4 |
® |
禁止停留 |
高处作业现场、吊装作业现场,临时搭设的 跨越架等处 | ||
4
GB/犜 36291.2—2018
表1 (续)
|
序号 |
图形标志示例 |
名称 |
设置范围和地点 | ||
|
1-5 |
未经许可不得入内 |
未经许可 不得入内 |
电缆隧道入口等易造成事故或对人员有伤 害的场所 | ||
|
1-6 |
禁止通行 |
有危险的作业区域入口处或安全遮栏等处 | |||
|
1-7 |
禁止堆放 |
消防器材存放处、消防通道,电缆隧道出入 口等处 | |||
|
1-8 |
禁止合闸 线路有人工作 |
一经合闸即可送电到施工设备的断路器 (开关)和隔离开关(刀闸)操作把手上等处 |
5
GB/犜 36291.2—2018
表1 (续)
|
序号 |
图形标志示例 |
名称 |
设置范围和地点 | |||
|
1-9 |
® |
禁止分闸 |
接地刀闸与检修设备之间的断路器(开关) 操作把手上 | |||
|
1-10 |
禁止攀登 高压危险 |
线路杆塔下部 | ||||
5.3警告标志
5.3.1警告标志牌的基本形式是一长方形衬底牌,上方是警告标志(正三角形边框),下方是文字辅助 标志(矩形边框)。图形上、中、下间隙,左、右间隙相等。制作标准参见附录Ao
5.3.2警告标志牌长方形衬底色为白色,正三角形边框底色为黄色,边框及标志符号为黑色,辅助标志 为白底黑字、黑体字,字号根据标志牌尺寸、字数调整。如图2所示。
图2警告标志牌的基本形式与标准色
6
GB/犜 36291.2—2018
5.3.3常用警告标志见表2。
表2常用警告标志
|
序号 |
图形标志示例 |
名称 |
设置范围和地点 |
|
2-1 |
Δ I注意安全I |
注意安全 |
易造成人员伤害的场所及设备处 |
|
22 |
A I注意通风I |
注意通风 |
电缆隧道入口等处 |
|
2-3 |
ʌ I当心火灾I |
当心火灾 |
易发生火灾的危险场所,如电气检修试验、 焊接及有易燃易爆物质的场所 |
|
2-4 |
A I当心中毒I |
当心中毒 |
可能产生有毒物质的电缆隧道等地点 |
7
GB/犜 36291.2—2018
表2 (续)
|
序号 |
图形标志示例 |
名称 |
设置范围和地点 |
|
2-5 |
ɪ I当心触电I |
当心触电 |
有可能发生触电危险的电气设备和线路 |
|
2-6 |
遮k I当心电缆I |
当心电缆 |
暴露的电缆或地面下有电缆处施工的地点 |
|
2-7 |
A I当心机械伤人I |
当心机械伤人 |
易发生机械卷入、轧压、碾压、剪切等机械 伤害的作业地点 |
|
2-8 |
众 I当心伤手I |
当心伤手 |
易造成手部伤害的作业地点,如机械加工 工作场所等 |
8
GB/犜 36291.2—2018
表2 (续)
|
序号 |
图形标志示例 |
名称 |
设置范围和地点 |
|
2-9 |
ʌ I当心扎脚I |
当心扎脚 |
易造成脚部伤害的作业地点,如施工工地 及有尖角散料等处 |
|
2-10 |
▲ I当心吊物I |
当心吊物 |
有吊装设备作业的场所,如施工工地等处 |
|
2-11 |
A I当心坠落I |
当心坠落 |
在易发生坠落事故的作业地点,如脚手架、 高处平台、地面的深沟(池、槽)等处 |
|
2-12 |
A I当心落物I |
当心落物 |
易发生落物危险的地点,如高处作业、立体 交叉作业的下方等处 |
9
GB/犜 36291.2—2018
表2 (续)
|
序号 |
图形标志示例 |
名称 |
设置范围和地点 |
|
2-13 |
ʌ I当心坑洞I |
当心坑洞 |
生产现场和通道临时开启或挖掘的孔洞四 周的围栏等处 |
|
2-14 |
I当心弧光I |
当心弧光 |
易发生由于弧光造成眼部伤害的各种焊接 作业场所等处 |
|
2-15 |
I当心车辆I |
当心车辆 |
施工区域内车、人混合行走的路段,道路的 拐角处、平交路口,车辆出入较多的施工区域 出入口处 |
|
2-16 |
A I止步高压危险I |
止步 高压危险 |
带电设备固定遮栏上,高压试验地点安全 围栏上,因高压危险禁止通行的过道上,工作 地点临近室外带电设备的安全围栏上等处 |
io
GB/犜 36291.2—2018
5.4指令标志
5.4.1指令标志牌的基本形式是一长方形衬底牌,上方是指令标志(圆形边框),下方是文字辅助标志 (矩形边框)。图形上、中、下间隙,左、右间隙相等。制作标准参见附录Ao
5.4.2指令标志牌长方形衬底色为白色,圆形边框底色为蓝色,标志符号为白色,辅助标志为蓝底白 字、黑体字,字号根据标志牌尺寸、字数调整。如图3所示。
图3指令标志牌的基本形式与标准色
5.4.3常用指令标志见表3。
表3常用指令标志
|
序号 |
图形标志示例 |
名称 |
设置范围和地点 | ||
|
3-1 |
必须戴防护眼镜 |
对眼睛有伤害的作业场所,如机械加工、各 种焊接等场所 | |||
|
3-2 |
必须戴安全帽 |
生产现场主要通道入口处,如电缆隧道入 口、线路检修现场等可能产生高处落物的 场所 | |||
11
GB/犜 36291.2—2018
表3 (续)
|
序号 |
图形标志示例 |
名称 |
设置范围和地点 | ||
|
3-3 |
必须戴防护手套 |
易伤害手部的作业场所,如具有腐蚀、污 染、灼烫、冰冻及触电危险的作业等处 | |||
|
3-4 |
必须穿防护鞋 |
易伤害脚部的作业场所,如具有腐蚀、灼 烫、触电、砸(刺)伤等危险的作业地点 | |||
|
3-5 |
g |
必须系安全带 |
易发生坠落危险的作业场所,如高处作业 现场 |
5.5提示标志
5.5.1提示标志牌的基本形式是一正方形衬底牌和相应文字,四周间隙相等。制作标准参见附录Ao
5.5.2提示标志牌衬底色为绿色,标志符号为白色,文字为黑色(白色)黑体字,字号根据标志牌尺寸、 字数调整。如图4所示。
12
GB/犜 36291.2—2018
图4提示标志牌的基本形式与标准色
5.5.3常用提示标志及设置规范见表4。
表4常用提示标志
|
序号 |
图形标志示例 |
名称 |
设置范围和地点 |
|
41 |
从此上下 |
工作人员可以上下的铁(构)架、爬梯上 | |
|
4-2 |
从此进出 |
户外工作地点围栏的出入口处 | |
|
43 |
在此工作 |
在工作地点处 |
13
犌犅/犜36291.2—2018
5.6消防安全标志
5.6.1在电缆隧道入口处以及储存易燃易爆物品仓库门口处应配置灭火器等消防器材,在火灾易发生 部位应设置火灾探测和自动报警装置。
5.6.2生产场所应有逃生路线的标示,楼梯主要通道门上方或左(右)侧应装设紧急撤离提示标志。
5.6.3消防安全标志表明下列内容的位置和性质:
a)火灾报警和手动控制装置;
b)火灾时疏散途径;
C)灭火设备;
d)具有火灾、爆炸危险的地方或物质。
5.6.4消防安全标志按照主题内容与适用范围,分为火灾报警及灭火设备标志、火灾疏散途径标志和 方向辅助标志,其设置场所、原则、要求和方法等应符合GB 13495.1和GB 15630的规定。制作标准参 见附录Ao
5.6.5常用消防安全标志及设置规范见表5。
表5常用消防安全标志
|
序号 |
图形标志示例 |
名称 |
设置范围和地点 | |||
|
5-1 |
火警电话 |
依据现场环境,设置在适宜、醒目的位置 | ||||
|
5-2 |
I消火栓IlP 火警电话:119 I 厂内电话:*** ■ AO(H ■ |
消火栓箱 |
生产场所构筑物内的消火栓处 | |||
|
5-3 |
编号:*** |
灭火器 |
a)悬挂在灭火器、灭火器箱的上方或存 放灭火器、灭火器箱的通道上。 b)泡沫灭火器器身上应标注“不适用于 电火”字样 | |||
14
GB/犜 36291.2—2018
表5 (续)
|
序号 |
图形标志示例 |
名称 |
设置范围和地点 | |||
|
5-4 |
g |
灭火设备或报警 装置的方向 |
指示灭火设备或报警装置的方向 | |||
|
55 |
疏散通道方向 |
a)指示至I」紧急出口的方向。 b)用于电缆隧道指向最近出口处 | ||||
|
5-6 |
Ql |
紧急出口 |
便于安全疏散的紧急出口处,与方向箭头 结合设在通向紧急出口的通道、楼梯口等处 | |||
15
GB/犜 36291.2—2018
表5 (续)
|
序号 |
图形标志示例 |
名称 |
设置范围和地点 | ||
|
5-7 |
从此跨越" |
从此跨越 |
悬挂在横跨桥栏杆上,面向人行横道 | ||
5.7航空警告标志
临近机场或者航路的架空线路杆塔,应设置障碍物及灯光航空警告标志。
6设备标志
6.1 一般要求
6.1.1电力线路设备标志由设备编号和设备名称组成。设备标志一般采用标牌安装,也可采用涂刷 方式。
6.1.2设备标志应定义清晰,具有唯一性,准确反映设备的功能、用途和属性。
6.2架空线路设备标志
6.2.1杆塔应配置设备标志牌或涂刷标志,标明线路的名称、电压等级和杆塔号。
6.2.2杆塔标志牌的基本形式一般为矩形,白底,红色黑体字,安装在杆塔的小号侧;特殊地形的杆塔, 标志牌可悬挂在其他的醒目方位上。
6.2.3耐张型杆塔、分支杆塔和换位杆塔前后各一基杆塔上,应有明显的相位标志。相位标志牌基本 形式为圆形,标准颜色应为黄色、绿色、红色。
6.2.4同杆塔架设的双(多)回线路应在横担上设置明显的异色区分标志。各回路标志牌底色应与本 回路色标一致,白色黑体字(黄底时为黑色黑体字)。
6.2.5同杆架设的双(多)回路标志牌应在每回路对应的小号侧安装,特殊情况可在回路对应的杆塔两 侧面安装。
6.3电缆线路标志
6.3.1电缆线路应配置设备标志牌,标明线路的名称、电压等级、型号、长度、起止变电站名称。
6.3.2电缆标志牌的基本形式是矩形,白底,红色黑体字。
6.3.3电缆接头盒、接地盒应悬挂标明电缆编号、始点、终点及接头盒编号的标志牌。
6.3.4电缆应设置路径、宽度标志牌(桩)。城区直埋电缆可采用地砖等形式。
6.4常用设备标志
常用设备标志见表6。
16
表6常用设备标志
GB/犜 36291.2—2018
|
序号 |
图形示例 |
名称 |
设置范围和地点 | ||||
|
6-1 |
500 kV姚郑线 1号 |
单回路杆号 标志牌 |
安装在杆塔的小号侧。特殊地形的杆塔, 标志牌可悬挂在其他的醒目方位上 | ||||
|
6-2 |
双回路杆号 标志牌 |
a) 安装在杆塔的小号侧的杆塔水平 材上。 b)标志牌底色应与本回路色标一致,字 体为白色黑体字(黄底时为黑色黑体 字) | |||||
|
500 kV嵩郑I线 | |||||||
|
1号 | |||||||
|
500 kV嵩郑H线 1号 | |||||||
|
6-3 |
多回路杆号 标志牌 |
a)安装在杆塔的小号侧塔身,按照实际 空间布局分别安装在对应的位置。 b)标志牌底色应与本回路色标一致,字 体为白色黑体字(黄底时为黑色黑体 字)。色标颜色按照红黄绿蓝白紫排 列使用 | |||||
|
500 kV马嵩I线 | |||||||
|
1号 | |||||||
|
500 kV马嵩H线 | |||||||
|
1号 | |||||||
|
6-4 |
涂刷式杆号 标志 |
a)涂刷在铁塔主材上,涂刷宽度为主材 宽度。 b)双(多)回路塔号应以鲜明的异色标志 加以区分。各回路标志底色应与本回 路色标一致,白色黑体字(黄底时为黑 色黑体字) | |||||
17
GB/犜 36291.2—2018
表6 (续)
|
序号 |
图形示例 |
名称 |
设置范围和地点 | ||||||
|
6-5 |
双(多)回路杆塔 标志 |
装设在杆塔横担上,以鲜明异色区分 | |||||||
|
500 kV 马嵩I线 | |||||||||
|
500 kV 马嵩∏线 | |||||||||
|
I |
涂刷在杆塔横担上,以鲜明异色区分 | ||||||||
|
区冬涧 添列 卷急蛇 受运好 修区注 ,空承 腹送枢 ^^^ 寒噩与 总;— |
B | ||||||||
|
6-6 |
相别标志牌 |
a)装设在终端塔、耐张塔、换位塔及其前 后一基直线塔的横担上。 b)电缆为单相时,应注明相别标志 | |||||||
|
□® | |||||||||
|
6-7 |
∣∙∙∙∣ • |
涂刷式相别 标志 |
涂刷在杆号标志的上方,涂刷宽度为铁塔 主材宽度,长度为宽度的3倍 | ||||||
|
6-8 |
IokV金凤线 1号变压器 |
配电变压器、箱式 变压器 标志牌 |
装设于配电变压器横梁上适当位置或箱式 变压器的醒目位置 | ||||||
|
6-9 |
IokV金凤线 1号环网柜 |
环网柜、电缆 分接箱 标志牌 |
装设于环网柜或电缆分接箱醒目处 | ||||||
18
GB/犜 36291.2—2018
表6 (续)
|
序号 |
图形示例 |
名称 |
设置范围和地点 |
|
6-10 |
IokV金凤线 1号分段断路器 |
分段断路器 标志牌 |
装设于分支线杆上的适当位置 |
|
6-11 |
IlokV东月线 自:东风变 至:月季变 型号:YJLW02 长度:1 500 m |
电缆标志牌 |
悬挂于电缆的两端,转角处及隧道内间距 宜 100 m |
|
6-12 |
220 kV滨人线 自:滨河变 至:人民变 1号接头盒 |
电缆接头盒 标志牌 |
装设于电缆接头盒的醒目位置 |
|
6-13 |
220 kV滨人线 自:滨河变 至:人民变 长度:600 m 1号接地盒 |
电缆接地盒 标志牌 |
装设于电缆接地盒的醒目位置 |
7安全防护设施
7.1 一般要求
7.1.1安全防护设施包括安全帽、安全带、临时遮栏(围栏)、孔洞盖板、爬梯遮栏门、杆塔拉线(接地引 下线、电缆)防护套管及警示线、杆塔防撞警示线等装置和用具。
7.1.2工作人员进入生产现场,应根据作业环境存在的危险因素,穿戴或使用必要的防护用品。
7.1.3所有升降口、坑洞、楼梯和平台,应装设1 050 mm〜1 200 mm高的栏杆和不低于180 mm高的 护板。检修期间如需拆除栏杆,应装设临时遮栏,并在检修结束后立即恢复。
7.2常用安全防护设施
常用安全防护设施见表7。
19
犌犅/犜36291.2—2018
表7常用安全防护设施
序号
图形示例
名称
配置规范
7-1
7-2
安全帽
安全带
7-3
临时遮栏 (围栏)
20
a)任何人进入生产现场,应正确佩戴安全帽。
b)安全帽应符合GB 2811的规定。
C)安全帽实行分色管理。红色安全帽为管理人员使 用,黄色安全帽为运行人员使用,蓝色安全帽为检 修(施工、试验等)人员使用,白色安全帽为外来参 观人员使用
a)在没有脚手架或者在没有栏杆的脚手架上工作, 高度超过1∙5 m时,应使用安全带。
b)安全带应符合GB 6095的规定
a)临时遮栏(围栏)适用于下列场所:有可能高处落物 的场所;作业现场与运行设备的隔离;作业现场规范 工作人员活动范围;作业安全通道;作业临时起吊场 地;防止其他人员靠近的高压试验场所;安全通道或 沿平台等边缘部位,因检修卸下拆除常设栏杆的场 所;事故现场保护;需临时打开的平台、地沟、孔洞盖 板周围(距地沟、空洞边缘不小于150 mm)0
b)临时遮栏(围栏)应采用满足安全、防护要求的材 料制作。有绝缘要求的临时遮栏应采用干燥木 材、橡胶或其他坚韧绝缘材料制成。
c)临时遮栏(围栏)高度应为1 050 mm〜1 200 mm; 防坠落遮栏应在下部装设不低于180 mm高的挡 脚板,并设500 mm~600 mm高的中间安全横 栏杆。
d)临时遮栏(围栏)应悬挂安全标志,位置根据实际 情况而定
GB/犜 36291.2—2018
表7 (续)
|
序号 |
图形示例 |
名称 |
配置规范 |
|
7-4 |
圆 覆盖式 勿 镶嵌式 |
孔洞盖板 |
a)适用于生产现场可打开的孔洞。 b)孔洞盖板均应为防滑板,且应覆以与地面齐平的 坚固的有限位的盖板。盖板边缘应大于孔洞边缘 100 mm,限位块与孔洞边缘距离不得大于25 mm 〜30 mm,网络板孔眼不应大于50 mm×50 mm。 C)在检修工作屮如需将孔洞盖板取下,应设临时围 栏。临时打开的孔洞,施工结束后应立即恢复原 状;夜间不能恢复的,应加装警示红灯。 d)孔洞盖板可制成与现场孔洞互相配合的矩形、正 方形、圆形等形状,选用镶嵌式、覆盖式,并在其表 面涂刷45。黄黑相间的等宽条纹,宽度宜为 50 mm~100 mm。 e)孔洞盖板拉手可做成活动式,或在盖板两侧设直 径约8 mm小孔,便于钩起 |
|
7-5 |
K |
杆塔拉线 (接地引下 线、电缆) 防护套管 及警示标志 |
a)在线路杆塔拉线、接地引下线、电缆的下部,应装 设防护套管,也可采用反光材料制作的防撞警示 标志。 b)防护套管及警示标志,长度不小于1.8 m,黄黑相 间,间距宜为200 mm |
21
GB/T 36291.2—2018
附录A
(资料性附录) 安全设施标志牌制作标准
A.1 禁止标志
禁止标志牌的制图标准见图A.1,参数见表A.1,可根据现场情况采用甲、乙、丙、丁、戊、己或庚 规格。
图A.1禁止标志牌的制图标准
表A.1禁止标志牌的制图参数(α = 45。)
单位为毫米
|
种类 |
参 |
数 | ||||
|
犃 |
犅 |
犃1 |
犇(犅1) |
犇1 |
犆 | |
|
甲 |
900 |
720 |
207 |
549 |
439 |
45 |
|
乙 |
700 |
560 |
161 |
427 |
341 |
35 |
|
丙 |
500 |
400 |
115 |
305 |
244 |
24 |
|
丁 |
400 |
320 |
92 |
244 |
195 |
19 |
|
戊 |
300 |
240 |
69 |
183 |
146 |
14 |
|
己 |
200 |
160 |
46 |
122 |
98 |
10 |
|
庚 |
80 |
65 |
18 |
50 |
40 |
4 |
A.2警告标志
警告标志牌的制图标准见图A.2,参数见表A.2,可根据现场情况采用甲、乙、丙或丁规格。
22
犌犅/犜36291.2—2018
图A.2警告标志牌的制图标准
表A2警告标志牌的制图参数 单位为毫米
|
种类 |
参 |
数 | ||||
|
犃 |
犅 |
犅1 |
犃2 |
犃1 |
犵 | |
|
甲 |
500 |
400 |
305 |
115 |
213 |
10 |
|
乙 |
400 |
320 |
244 |
92 |
170 |
8 |
|
丙 |
300 |
240 |
183 |
69 |
128 |
6 |
|
丁 |
200 |
160 |
122 |
46 |
85 |
4 |
|
注:边框外角圆弧半径1 |
0.080犃1。 | |||||
A∙3指令标志
指令标志牌的制图标准见图A.3,参数见表A.3,可根据现场情况采用甲、乙、丙或丁规格。
图A3指令标志牌的制图标准
23
犌犅/犜36291.2—2018
表A∙3指令标志牌的制图参数
单位为毫米
|
种类 |
参 |
数 | ||
|
犃 |
犅 |
犃1 |
犇(犅1) | |
|
甲 |
500 |
400 |
115 |
305 |
|
乙 |
400 |
320 |
92 |
244 |
|
丙 |
300 |
240 |
69 |
183 |
|
丁 |
200 |
160 |
46 |
122 |
A.4提示标志
提示标志牌的制图标准见图A.4,参数为:A = 250 mm,犇= 200 mm或犃=80 mm,犇=65 mmo
图A.4提示标志牌的制图标准
A.5消防安全标志
A∙5.1方向辅助标志牌
基本型式是一正方形衬底牌和导向箭头图形,标志牌尺寸(边长)一般为250 mm或根据现场实际 选择,箭头方向可根据现场实际情况选择。衬底为绿色时指示到紫急出口的方向,衬底为红色时指示灭 火设备或报警装置的方向。
A.5.2组合标志牌
基本型式是长方形衬底牌,由图形标志、方向辅助标志和文字辅助标志的组合。其中,方向辅助标 志与有关标志联用,指示被联用标志所表示意义的方向。衬底为绿色时指示到紧急出口的方向,衬底为 红色时指示灭火设备或报警装置的方向。
图例见图A∙5,制图参数见表A.4o
24
犌犅/犜36291.2—2018
图A∙5消防组合标志牌的制图标准
表A.4消防组合(电抗器等)标志牌(示例)的制图参数
单位为毫米
|
种类 |
参 |
数 | ||
|
犅 |
犃 |
犅1 |
犃1 | |
|
甲 |
500 |
400 |
200 |
200 |
|
乙 |
350 |
300 |
140 |
140 |
A.6设备标志图例
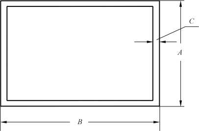
A∙6.1电力线路设备标志牌基本型式为长方形,白底,红色黑体字,字号根据标志牌尺寸、字数适当调 整。同杆塔架设的双(多)回线路标志牌底色应与本回路色标一致,白色黑体字(黄底时为黑色黑体字)。 色标颜色按照红黄绿蓝白紫排列使用。设备标志牌图例见图A.6〜图A.8,制图参数见表A.5〜表A.7, 标志牌尺寸可根据现场实际适当调整。
A.6.2 设备标志制图标准色:红色MlOO Y100,黑色K100,绿色ClOO Y100,黄色M20 Y100,蓝色 M50 ClOO,紫色 C5O M50。
A.6.3架空线路杆塔标志牌的图例见图A.6,制图参数见表A.5。
图A.6杆塔标志牌(示例)
25
犌犅/犜36291.2—2018
表A∙5杆塔标志牌的制图参数
单位为毫米
|
电压 |
参 数 | ||||
|
犅 |
犅1 |
犃 |
犃1 |
犃2 | |
|
10kV |
320 |
300 |
260 |
240 |
170 |
|
35kV~110kV |
400 |
370 |
320 |
290 |
190 |
|
220kV~500kV |
500 |
470 |
400 |
370 |
245 |
|
750kV~1000kV |
700 |
680 |
500 |
480 |
390 |
A.6.4电缆线路标志牌的图例见图A.7,制图参数见表A.6。
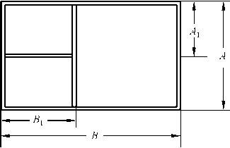
图A∙7电缆线路标志牌(示例)
表A.6电缆线路标志牌参数 单位为毫米
|
种类 |
参 数 | ||
|
犃 |
犅 |
犆 | |
|
甲 |
80 |
120 |
5 |
A.6.5线路相位标志牌的图例见图A.8,制图参数见表A.7。
图A.8相位标志牌(示例)
26
表A.7相位标志牌的制图参数
犌犅/犜36291.2—2018
单位为毫米
|
电压 |
参 |
数 |
|
犇 |
犃 | |
|
35kV~110kV |
160 |
200 |
|
220kV~500kV |
300 |
340 |
|
750kV~1000kV |
460 |
500 |