Γ≡I≡≡i≡ift


穗勘设协字[2019]14


关于《广州市建设工程消防设计、审查难点问题解答》 申请备案的函


广州市住房和城乡建设局:

为顺应国家审批制度改革,全面贯彻落实消防审批验收“放、管、 服”改革精神,提高企业设计、审批、验收办事便利性,由广州市工 程勘察设计行业协会组织,广州市设计院牵头编制了《广州市建设工 程消防设计、审查难点问题解答》,并经专家审查通过,形成了建设 工程消防设计、审查、验收的指导性文件。

现将《广州市建设工程消防设计、审查难点问题解答》报请你局


备案。


附件:

1、《广州市建设工程消防设计、审查难点问题解答》


广州市工程勘察设



主题词:消防设计 审查 备案

抄送:各会员单位

广州市工程勘察设计行业协会


20191225日印发


2


广州市建设工程


消防设计、审查难点问题解答


201912月 发布


广州市设计院

广州市工程勘察设计行业协会


联合编制


前 言

为顺应国家审批制度改革发展,全面贯彻落实消防审批验收“放、 管、服”改革精神,提高企业设计、审批、验收办事便利性,广州市设计 院、广州市工程勘察设计行业协会组织编制《广州市建设工程消防设计、 审查难点问题解答》。


本解答主编单位、参编单位、编写人员、审查人员:

主编单位:广州市设计院

广州市工程勘察设计行业协会

参编及审核单位:广东省建筑设计研究院

华南理工大学建筑设计研究院

广州市城市规划勘测设计研究院

广州珠江外资建筑设计院

广州瀚华建筑设计有限公司


协作单位:广州迪安工程技术咨询公司


编写人员:马震聪

常 煜

杨焰文 丰汉军

邹 军

李继路

胡世强

钟献荣

赖海灵 胡晨炯

袁尚红

韩建强

周名嘉

张南宁

谭志昆 郭进军

熊 伟

蔡昌明

邓孟仁

林旭文

梁 隽 张庆宁

郭奕辉

刘福光

王红玉

陈欣燕

庄孙毅 黄晓峰

刘杰峰

廖坚卫

刘汉华

孙咏梅

谭海阳 曾庆钱

黄彤斌

金 超

审查人员:江 刚

陈 洁

张瑞良 符培勇

俞 洋

屈国伦


张兴富


目录


目录 ........................................................................................................... 1

相关规范简称 ........................................................................................... 3

一、资质、程序问题 ................................................................................ 5

二、适用规范的问题 ................................................................................ 6

三、规范不涵盖........................................................................................ 9

四、建筑现有规范疑难点 ...................................................................... 12

1、厂房和仓库 ....................................................................................................... 12

2、民用建筑 ........................................................................................................... 14

2.1、建筑分类和耐火等级 ............................................................................ 14

2.2、总平面布局 ............................................................................................ 17

2.3、防火分区和层数 .................................................................................... 22

2.4、平面布置 ................................................................................................ 26

2.5、安全疏散和避难 .................................................................................... 27

3、建筑构造 ........................................................................................................... 41

4、灭火救援设施及消防设施 ............................................................................... 45

5、室内装修 ........................................................................................................... 50

6、防排烟(关于建筑部分) ............................................................................... 51

五、给排水现有规范疑难点 .................................................................. 52

1、《建筑设计防火规范》问题解答 .................................. 52

2、《消防给水及消火栓系统技术规范》问题解答 ...................... 55

3、《自动喷水灭火系统设计规范》问题解答 .......................... 63

4、人防、车库问题解答 ........................................... 66

5、其他问题解答 ................................................. 67

六、电气现有规范疑难点 ...................................................................... 68

1、规范之间矛盾问题解答 ......................................... 68


1


2、《建筑设计防火规范》问题解答 .................................. 69

3、《火灾自动报警系统设计规范》问题解答 .......................... 72

4、《消防应急照明和疏散指示系统技术标准》问题解答 ................ 73

5、《建筑防烟排烟系统技术标准》问题解答 .......................... 76

6、其他规范方面问题解答 ......................................... 77

七、暖通现有规范疑难点 ...................................................................... 78

1、《建筑设计防火规范》问题解答 .................................. 78

2、《建筑防烟排烟系统技术标准》问题解答 .......................... 80

3、其他规范方面问题解答 ......................................... 85

八、结构现有规范疑难点 ...................................................................... 86


2


相关规范简称


《建筑设计防火规范》GB50016-20142018年版)


简称《建规》


《建筑设计防火规范》图示18J811-12018年版)


简称《建规图示》


《中华人民共和国消防法》(2019423日第十三届全国人民代表大会常务委


员会第十次会议修正)


简称《消防法》


《人民防空工程设计防火规范》GB50098-2009


简称《人防规范》


《民用建筑设计统一标准》GB50352-2019


简称《民用统一标准》


《建筑内部装修设计防火规范》GB50222-2017


简称《建筑装修设计规范》


《饮食建筑设计标准》JGJ 64-2017


简称《饮食建筑标准》


《汽车库、修车库、停车场设计防火规范》 GB 50067-2014


简称《车库消规》


《消防给水及消火栓系统技术规范》GB 50974-2014


简称《水消规》


《消防给水及消火栓系统技术规范》图示15S909


简称《水消规图示》


《气体灭火系统设计规范》GB50370-2005


简称《气规》


《自动喷水灭火系统设计规范》GB 50084-2017


简称《喷规》


《自动喷水灭火系统设计》图集19S910


简称《喷规图集》


《建筑灭火器配置设计规范》GB 50140-2005


简称《灭火器规》


《建筑给水排水设计规范》GB 50015-2003(2009年版


简称《给排水规范》


《消防给水稳压设备选用与安装》图集17S205


简称《消防给水稳压设备选用与安装图集》


《消防专用水泵选用及安装》图集04S204


简称《消防水泵图集》


《火灾自动报警系统设计规范》GB50116-2013


简称《火规》


《火灾自动报警系统设计规范》图示14X505-1


简称《火规图示》


《民用建筑电气设计规范》JGJ16-2008


简称《民规》


《消防应急照明和疏散指示系统技术标准》GB51309-2018 简称《应急照明标准》


《建筑防烟排烟系统技术标准》GB51251-2017


简称《防排烟标准》


《建筑防烟排烟系统技术标准》图示15K606


简称《防排烟标准图示》


《电动汽车充电基础设施建设技术规程》DBJ/T15-150-2018


3


简称《电动汽车充电基础设施建设技术规程》

《电动汽车分散充电设施工程技术标准》GB/T51313-2018

简称《电动汽车分散充电设施工程技术标准》


《地铁设计防火标准》GB51298-2018

《剧场建筑设计规范》JGJ 57-2016

《人民防空地下室设计规范》GB 50038-2005

《混凝土结构耐久性设计规范》GB/T 50476-2008

简称《地铁防火标准》 简称《剧场设计规范》 简称《人防地下室规范》 简称《混规》


4


一、资质、程序问题

1、是否需要审查签名栏中人员资质问题。其中二次装修的消防设计资质是否有 什么不同要求?

答:一、图签签注必须不少于三个人,设计、校对、审核不应一人兼二职。每个专业(水、 电、暖等)不应少于三个人。

二、设计人员职称不得低于助理工程师,校对及审核均应不低于工程师。

2、消防图中图框栏中是否需分专业签注?

答:要求分建筑(装修)、水、电、通风等。


5


二、适用规范的问题

1、工程项目设计及施工图审查依据与新实施规范的衔接时间如何确定?

答:根据住建部建法函[2012]163号文,原则上可按建设工程设计合同签订的时间,并鼓 励使用现行规范。

对于设计周期较长的工程项目,例如分期建设项目,除新规范实施前已经通过单体报规及 技术定案的,应执行现行规范,单体报规及技术定案的控制时间点为:大型项目(公建面积2 万㎡以上,住宅10万㎡以上)以取得工程规划许可证加上初步设计批复的时间,一般项目以 取得工程规划许可证的时间。

2、对于既有建筑物的改造设计审查,很多建筑按旧规范设计建设,按新规范审 查就不满足要求,建议统一给出审查指引。

答:

一、扩建、改建的建筑原则上均应执行现行规范。对于改建和扩建的建筑,分以下几种 情况处理:

1)对于改建:

1、不改变原有的建筑功能和使用性质,不改变原有的建筑防火分区和建筑疏散系统以及 疏散构件,不改变建筑的建筑面积,只是对建筑局部平面做出分隔调整的,可以视同室内装修, 可按原建筑设计时所依据的防火规范进行设计。

(如:(1)原设计使用功能为办公室,对办公室的分隔作调整,调整后的建筑平面仍作为 办公空间使用,包括增加了相应的办公辅助用房如会议室(其人数的变化未导致建筑疏散系统 的变化)、资料室等用房等,均可以认为没有改变使用性质和使用功能;而调整部分的建筑面 积没有发生变化,这样的局部调整可以认定为装修,可按原设计时所执行的规范设计;

2)对于商业营业厅的分隔和布局作调整,不改变原设计的防火分区、疏散系统、疏散 宽度和疏散楼梯的位置等,建筑面积没有发生变化时,也可以按原设计时依据的规范进行设 计。)

2、对原有建筑用房进行使用内容调整,调整后的建筑类型属性没有改变,如商业营业厅 改为餐饮、防火分区内少量商铺从零售改为轻餐饮(面包铺、咖啡室、冷餐室等)等,这样虽 然使用内容发生了变化,但不影响建筑这部分场所的商业营业类型属性。这种情况下,如调整 的设计不改变原有的建筑防火分区和建筑疏散系统以及疏散构件,不改变建筑的建筑面积,可 以按原设计时依据的规范进行设计。但如果修改设计出现按原来所依据的规范也需要作出防


6


火分区、安全疏散等方面的调整时,则调整后发生改变的那些防火分区,应按现行建筑设计防 火规范进行设计。


3、进行上述(改建中第1点与第2点)调整的项目,如局部建筑面积发生改变,如:因 为开设楼板洞口、增设自动扶梯、增设中庭等设计改动行为,而造成原设计的防火分区产生分 隔和面积变动的所有建筑防火分区,均应按现行防火设计规范进行设计。原有平面分隔保持不 变的防火分区可以维持原有的防火设计做法。

4、老年人照料场所、儿童活动、儿童照料和少年儿童培训场所等用房应符合以下要求:

1)原有建筑中合建的老年人照料场所、儿童活动、儿童照料和少年儿童培训场所等用 房如防火分区不改变,但进行了房间分隔调整时,其所属防火分区应按现行规范进行防火设计。

2)在商业营业场所中,调整部分营业场所为对外营业的老年人照料场所、儿童活动、 儿童照料和少年儿童培训场所等用房时,或不改变建筑总面积的情况下,扩大建筑中合建的此 类房间面积时,此类房间所在的防火分区应按现行防火规范进行设计。建筑中因为上述用房调 整而产生平面变化,但使用功能没有改变的其余的防火分区可按原设计所依据的规范进行设 计。如涉及到整层建筑平面都发生改变的情况,应提出有效的专项防火设计方案,并向有关主 管部门申请,按本解答第三章节中1.1条进行相关评审。(注:儿童是指不超过16周岁及以下 的未成年人。)

5、既有厂房和仓库合建的工业建筑,原则上,进行不改变生产内容和储存物资类别的有 关工艺流线和设备的调整时(包含降低火灾危险性类别),可按原设计所依据的规范设计。其 余情况下均应按现行规范设计。

6、以上可按原设计所依据的防火规范设计的场所,设计时如发现原有建筑存在违反原设 计当时的有效防火规范和标准的情况时,应依据现行防火规范对原有建筑进行修改、调整,确 有困难时,可对相关区域优化防火设计并按本解答第三章节中1.1条进行相关评审。

2)对于扩建:

1、在原有建筑外部另行加建,同时需要与原有建筑连接时,新建的部分应按现行规范设 计,原有建筑可保持原有状况,连接部位应由设计单位提出有效的连接和分隔措施,以及消防 设备系统、报警系统的特殊技术处理措施,报送有关主管部门,按本解答第三章节中1.1条申 请相关评审。

2、对建筑上部进行的加层扩建,应按下面要求进行防火设计:

1)面积不超过建筑屋面面积的1/4的加层平面,如加建后建筑的总体高度没造成建筑 防火分类改变的,加建部分应按现行规范进行设计。


7


2)面积超过建筑屋面面积1/4的加层平面,应按现行规范的要求对总体建筑进行扩建


设计。

3、因扩建而增加建筑局部面积的,如局部增设夹层、封堵中庭洞口等增加了少量建筑面 积而造成原有防火分区分隔和面积变动或建筑层数增加的,所产生变动的各层建筑平面,包括 存在部分防火分区的分隔保持不变的平面,均应按现行防火规范进行设计。(注:因增加局部 面积需增加疏散楼梯并导致下部楼层相应增加疏散楼梯的,不算改变下部楼层的防火分隔,涉 及的楼层无需按现行防火规范调整。)

3)一般既有建筑的总体改建,应按现行规范的要求进行设计。历史建筑活化利用以及改 建和扩建,应进行专项的防火设计研究,并提交特殊消防设计文件给有关部门,按本解答第三 章节中1.1条进行相关评审,评审通过的特殊消防设计文件,可作为消防设计及审批依据。

二、室内装修工程的如下消防设计内容:房间疏散门的宽度、数量、防火构造要求以及 装修材料的选用等,应符合现行规范的规定,其它消防设计内容可按原建筑主体取得消防许可 时的规范执行,鼓励也执行现行规范。

注:

1、扩建是指在原有建筑轮廓基础上的向外扩建(包括加层和添加具有使用功能或存在可 使用空间的建筑夹层),改建是指建筑变更使用功能和用途,或全面改造,如厂房改为餐厅、 住宅改为宾馆、办公改为宾馆或办公改为商场等。

2、室内装修工程,是指既不存在扩建、改建,不改变所装修房间或空间的原有建筑使用 功能,也不改变防火分区和减少安全疏散设施的情形下,对建筑内部进行改造或装饰的建设工 程。

3、建筑整体已于199891日前已投入使用,在申报内部装修改造工程的 消防设计审查、验收、备案手续时,无法提供土建工程的消防审核、验收、备案批 文,是否可以提供证明使用性质的房产证代替?

答:可以。在住房城乡建设部明确相关政策之前,暂时参照《关于明确建设工程消防监 督管理有关分工事项的通知》(广公消〔201755号)的要求执行:199891日后投入 使用的建筑,建筑整体或装修部位通过土建工程消防验收或竣工验收备案前,内部装修工程 消防验收或竣工验收备案不得单独申报。


8


三、规范不涵盖


1、超出现有规范消防报审程序的项目。

1.1、例如某一个地下污水处理厂,业主与设计认为地下污水处理厂的火灾危险 性比其他地下工厂低,希望地下防火分区面积突破规范要求的2000平方米以下的 要求,地下防火分区面积做到6000平方米以上;虽然地下建筑面积已大于3000平 方米,埋深超过10米,但希望不做或局部做消防电梯,如何处理。

答:参照住建部2019510日《建设工程消防设计审查验收管理规定(征求意见 稿)》第十六条规定:具有下列情形之一的,建设单位除提供本规定第十五条所列材料外,应 当同时提供特殊消防设计文件,或者设计采用的国际标准、境外消防技术标准的中文文本, 以及其他有关消防设计的应用实例、产品说明等技术资料,专家评审论证材料:

(一)国家工程建设消防技术标准没有规定的;

(二)消防设计文件拟采用的新技术、新工艺、新材料可能影响建设工程消防安全,不 符合国家标准规定的;

(三)拟采用国际标准或者境外消防技术标准的。

故应对该污水处理厂工程进行研究分析。确有符合上述三点之中某点规定情况的,可参 照上述文件第十九条规定:“对具有本规定第十六条情形之一的建设工程,消防设计审批机关 应当会同同级应急管理部门组织专家,对建设单位提交的特殊消防设计文件进行评审。参加 评审的专家应当具有相关专业高级技术职称,总数不得少于七人,评审专家应当独立出具评 审意见。评审专家有不同意见的,应当注明。未经全部评审专家同意的特殊消防设计文件, 不得作为消防设计审查的依据。评审通过的特殊消防设计文件可以作为消防设计审核的依 据。”(注:具有相关专业高级技术职称须再提高专家的专业技术高度,应为省市消防协会消 防设计专家或经主管部门考核认可的专家。)

参考《人防规范》条文4.1.2-3规定,污水处理池的水面面积不计入防火分区的建筑面积。

1.2、《建规》第5.3.1条中关于“体育馆剧场的观众厅防火分区的最大允许建 筑面积可适当增加”如何准确把握执行?对本条文解释中“采取相关防火措施” 和“按照国家相关规定和程序进行充分论证”如何正确理解?

答:体育馆和剧场因为建筑功能需要,其演出、比赛场地和观众厅的规模有很大的不确 定性,而且观众厅空间是不可能划分防火分区的,否则建筑无法满足使用要求。规范对此就是 对应的给出“适当增加”的措施。至于增加的面积是否合理,对应的措施是否得当,规范要求


9


设计人针对性研究防火设计技术措施,提交特殊消防设计文件给有关部门,按本解答第三章节 中1.1条进行相关评审,评审通过的特殊消防设计文件,可作为消防设计及审批依据。

1.3《建规》7.2.2条规定:消防车登高场地应符合下列规定,场地应与消防车 道连通场地靠建筑外墙一侧的边缘,距建筑外墙不宜小于5米,且不应大于10米。 问题:如果建筑物层层外挑,建筑外墙应从何处算起?是否是从最大轮廓线就算起?

答:按照规范要求,从建筑最大外轮廓(外墙投影)算起,特殊造型确有必要或有特殊 需求时,设计人员应提出针对相应建筑特点的技术措施,按本解答第三章节中1.1条进行相关 评审。

1.4、例如某一项目,用地被市政路分为左右两个地块,两个地块之间在地下一 层设连通车道;由于市政路、绿地、建筑回退的原因,连通车道中间到安全出口的 距离超过60米,如何处理。

答:应按《车库消规》规范执行。

2、办公楼内的健身区域按什么标准来计算人员密度及疏散距离?不应该按照歌舞 娱乐放映游艺场所。

答:健身房原则上可按办公场所疏散人数计算,若设计人能提供可靠、科学的依据(例 如《建筑设计资料集》或其他研究文献),也可按该依据计算最不利情况下的健身房的疏散人 数。

3、屋面安全面积怎么计算?有没最少面积要求?

答: 1、对于商业建筑,其安全屋面要求应满足《商店建筑设计规范》5.2.5条相关规定:

大型商店的营业厅设置在五层及以上时,应设置不少于2 个直通屋顶平台的疏散楼梯间。屋 顶平台上无障碍物的避难面积不宜小于最大营业层建筑面积的50%

2、对于其他建筑没有具体规定。

3、对于有两座及以上楼梯间通达的建筑屋面,屋面布置的设备或设施之间,应留出净宽 不小于1.2m(两股最不利人流)的便捷通道连通各楼梯间。

4、坡地建筑中的地下室其中一面能直通室外(其余三面位于覆土以内),且有消防 车通道可达,此地下室是否可定义为首层?

答:按《建规》2.1.6进行计算,当该层地面低于室外设计地面的平均高度大于该房间 平均净高1/3时,不能按首层(地上建筑)判定。

针对室外场地有高差情况下,按本指南第四章节2.2.2执行。


10


5、机场塔台层数如何界定?按民用建筑规范超出相关高度及人数要求时,是否需 做剪刀梯或室外梯来满足两个安全出口的要求?


答:机场塔台属于一种特殊类型建筑,功能及专业具有高度同一性,塔台面积不大,工 作人员不多,同时安保管理非常严密,不对外开放,所在工作人员均为受训人员,熟悉工作及 疏散环境,方便在紧急情况下的撤离,其工艺和使用性质性质与普通民用建筑不同。在已建并 使用的塔台中,核心筒的布置基本上都是一台电梯周边围绕一个环形疏散梯的方式,这些建筑 经过都长期各地广泛使用,证明在机场塔台这种特殊建筑类型中这种疏散方式是安全的。 6、规范中未对部分特殊功能区域的防火分区做出明确,例如半地下、地下的游泳 池设置,这些分区面积都大于1000平米,但实际泳池的火灾危险性没有,能否对 此有解决方案,或者说分区面积可以不计算泳池区域?人员密度如何计算?

答:1、参考《人防规范》条文4.1.2-3规定:溜冰馆的冰场、游泳馆的游泳池、射击馆的 靶道区、保龄球馆的球道区等,其面积可不计入溜冰馆、游泳馆、射击馆、保龄球馆的防火分 区面积内。

2、人员密度:根据《建筑设计资料集》(第三版)第6册,按每人4 ㎡水面计算。

7、民用建筑内的柴油发电机房不应布置在人员密集场所的上一层、下一层或贴邻。 (建规第5.4.13条)如何定义“上一层、下一层”?如在人员密集场所的上空采用 双层板处理,是否满足规范的要求?

答:可以采用双层墙或双层板处理以满足规范要求,墙间、板间应留有适当距离。 8、封闭母线、电缆桥架是否可以穿越避难区、避难走道、避难间、防烟楼梯间及 前室等?(《建规》第5.5.236.4.3条)

答:穿越处及穿越区域均应做防火包裹,穿越区域的防火措施应满足该区域的耐火极限要 求,穿越处的防火措施应满足穿越处(楼板或墙体)的耐火极限要求。


11


四、建筑现有规范疑难点

1、厂房和仓库


1.1、多层丙类仓库需不需要做封闭楼梯间?《建规》3.8.7条高层仓库的疏散楼梯 应采用封闭楼梯间,但是3.8.2条又注明通向疏散走道或楼梯的门应为乙级防火门, 那是不是可以理解为仓库的楼梯都为封闭楼梯间呢?

答:规范条文不矛盾,3.8.7条说的高层仓库楼梯间的要求,3.8.2条是的是仓库房间门的 要求,一个是楼梯间门一个是房间门。

1.2、《建规》第3.3.5条,办公室、休息室设置在丙类厂房内时,应采用耐火极限 不低于2.5h的防火墙和1.0h的楼板与其他部位分隔,并应至少设置一个独立的安 全出口。办公室、休息室面积与厂房面积规模(面积比例)如何界定?

答:《建规》对此没有要求。规范中所说的设置在丙类厂房内的办公室、休息室,应是以服 务丙类厂房为主要功能,是为管理需要而设的。

1.3、厂区内的研发车间是按厂房建筑还是办公建筑进行消防设计? 答:应按厂房建筑进行消防设计。

1.4、厂房两个相邻防火分区,能否在防火墙上开一个甲级防火门作为另外一个疏 散口?

答:按《建规》第3.7.3条执行,规范中仅允许地下或半地下厂房可利用防火分区之间分隔 防火墙上的甲级防火门作为第二安全出口。

1.5、《建规》第 3.7.2 条、第 5.5.8 2 款规定可设置 1个安全出口或 1 部疏散 楼梯的条件中,当建筑首层与其余各层建筑、疏散楼梯完全分隔时且首层疏散满足 规范要求时,首层建筑面积是否可不限?

答:当建筑首层与其余各层完全分隔且首层疏散满足规范要求时,规范对首层建筑面积没 有提出要求。

1.6、劳动密集型企业生产加工车间的判定标准?

答: 《建筑设计防火规范》第8.3.1条第2款规定的类似生产厂房、第 8.4.1 条第 1 项 规定的类似用途的厂房和第 10.3.1 条第 5 款规定的人员密集的厂房是指“单体建筑任一生 产加工车间或防火分区,同一时间的生产人数超过 200 人(或者同一时间的生产人数超过 30


12


人且人均建筑面积小于 20 平方米)的制笔、制伞、打火机、眼镜、印刷等丙类厂房、肉食蔬

菜水果等食品加工,或生产性质及火灾危险性与之相类似的厂房”。


13


2、民用建筑

2.1、建筑分类和耐火等级

2.1.1、《建规》第5.1.1条,表中“一类”第2项中的“其他多种功能组合”,不 包括住宅与公共建筑组合建造的情况。建筑分类该如何确定?

答:现行规范已经取消了“商住楼”的分类,住宅建筑下部设置有商业或其他功能的裙 房时,该建筑不同部分的防火设计可按《建规》第5.4.10条的规定进行设计。住宅与其他功能 组合建造时,各自按自身的建筑高度执行相应的规范条文,建筑类分类可直接写“住宅与xx合 建”。

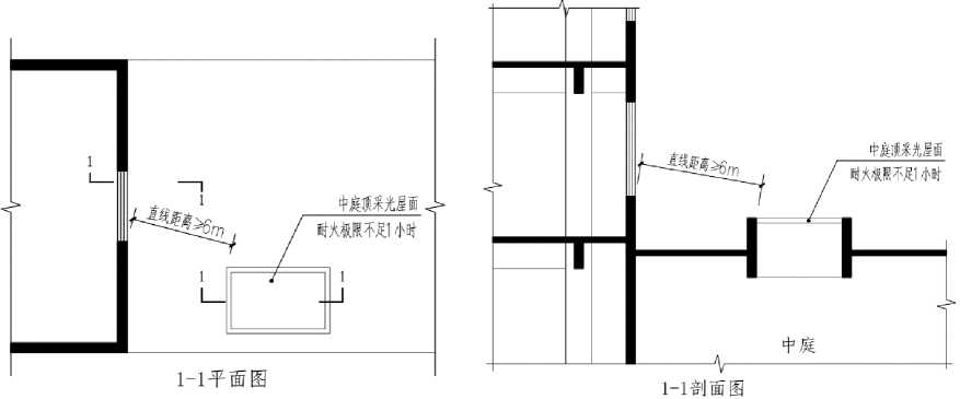
2.1.2、中庭顶的耐火极限满足什么级别的燃烧性能和耐火极限?中庭顶需与建 筑物之间满足什么消防间距?

答:中庭的顶部耐火极限视设计的具体情况,按规范对上人屋面或不上人屋面的要求执行。 中庭屋面采用不燃材料的非采光屋面,亦没有开设洞口时,中庭屋面与同一建筑的高跨墙身之 间没有间距要求。如果中庭采用采光屋面,则应该满足以下要求:


1、中庭采光屋面的耐火极限不低于1.0h时,与同一建筑的其他部位或构件之间的间距

没有要求(参照附图 2.1.1)。



附图 2.1.1

2、若中庭顶采光屋面的耐火极限不满足1.0h时,中庭采光屋面与同一建筑高跨外墙上 的门窗洞口的直线距离,不应小于 6m(参照附图 2.1.22.1.3)。如中庭采光屋面相邻高跨外 墙采用乙级防火门窗时,采光屋面与建筑外墙的间距没有要求(参照附图 2.1.4)。


14



附图 2.1.2


附图 2.1.3



附图 2.1.4


3、建筑屋面、地下室顶板上开设的进排气口、露天采光口、通风口等洞口与同一建筑 高跨墙身的门窗洞口之间的间距不应小于 6m(附图 2.1.5),如其洞口相邻高跨外墙采用乙级 防火门窗时,采光屋面与建筑外墙的间距没有要求。



附图 2.1.5


15


4、对于第2点与第3点所述的洞口,洞口与洞口之间的水平距离不限(附图 2.1.6)。



附图 2.1.6

2.1.3、《建规》中的重要公共建筑如何定性?

答:根据《建规》术语2.1.3条文说明:对于重要公共建筑,不同地区的情况不尽相同, 难以定量规定。本条根据我国的国情和多年的火灾情况,从发生火灾可能产生的后果和影响作 了定性规定。一般包括党政机关办公楼, 人员密集的大型公共建筑或集会场所,较大规模的中 小学校教学楼、宿舍楼,重要的通信、调度和指挥建筑,广播电视建筑,医院等以及城市集中 供水设施、主要的电力设施等涉及城市或区域生命线的支持性建筑或工程。

2.1.4、人员密集场所、儿童活动场所如何定义? 什么场所属人员密集场所?

答:人员密集场所:根据《消防法》第七十三条释义,人员密集场所是指宾馆、饭店、 商场、集贸市场、客运车站候车室、客运码头候船厅、民用机场航站楼、体育场馆、会堂以及 公共娱乐场所等公众聚集场所,医院的门诊楼、病房楼,学校的教学楼、图书馆、食堂和集体 宿舍,养老院,福利院,托儿所,幼儿园,公共图书馆的阅览室,公共展览馆、博物馆的展示 厅,劳动密集型企业的生产加工车间和员工集体宿舍,旅游、宗教活动场所等。

《消防法》所表示的主要是建筑物整体的监管定性。在规范条文中,人员密集场所应按规 范条文所表述的要求执行,并应具体到建筑内部的使用空间,并不是所有符合人员密集场所规 定的建筑物内部的所有房间都属于人员密集场所,比如宾馆内的餐厅、会议厅及多功能厅属于 人员密集场所,但客房、办公等就不是。商场的营业厅属于人员密集场所,设备房、办公等不 属。再如体育场馆的观众厅、集散厅等观众聚集空间属于人员密集场所,但内部用房就不属, 等等,设计与审查时应客观加以分辨。

儿童活动场所:按粤公通字《13号文》和《建规》5.4.4条文解释:儿童游乐厅、儿童乐 园、儿童早教中心、儿童教育培训学校、亲子园、午托、日托机构举办儿童特长培训班等类似 用途的场所均属于儿童活动场所。(注:儿童是指不超过16周岁及以下的未成年人。)


16


2.2、总平面布局

2.2.1、如何定义两栋建筑?当两栋建筑贴临建设时,防火间距如何确定?


答:当两栋公共建筑互不相通时(结构体系、设备体系、消防疏散亦各自独立)定义为


两栋贴临建筑;同时根据《建规》5.2.2条文解释中第四点对于通过裙房、连廊或天桥连接的


建筑物,需将该相邻建筑设为不同的建筑来确实防火间距。若有特殊情况,应按本解答第三


章节中1.1条进行相关评审。


一栋住宅建筑,可以由多个住宅单元构成,构成一栋住宅的住宅单元可以各自具有不同的


建筑高度,每个单元的消防设计可根据单元的建筑高度执行相应的规范条文。住宅的灭火救援


应按整体的建筑性质进行设计,高层住宅的落地扑救面应能顾及构成住宅建筑的所有居住单


元。住宅单元之间的门窗、洞口间距满足《建规图集》5.2.2的要求。(附图2.2.1、附图2.2.2




当两栋建筑贴临建设时,两座相邻的公共建筑外墙夹角与紧靠邻接外墙两侧的门、


窗、洞口最近边缘之间的防火间距应满足表2.2.1的要求。


17


2.2.1 两座相邻的公共建筑外墙夹角

与紧靠邻接外墙两侧的门、窗、洞口最近边缘之间的防火间距


外墙夹角角度

紧靠邻接外墙两侧的门、窗、洞口最近边缘之间

的防火间距

两座相邻的

公共建筑

外墙夹角≥180度时

水平距离应不小于2m(附图2.2.3

180>外墙夹角>90度时

水平距离应不小于4m(附图2.2.3

外墙夹角≤90度时

水平距离不应小于相应的防火间距要求 (附图

2.2.4

当上述两侧门窗中,其中一侧采用乙级防火门窗时(固定或火灾时可自行关闭的乙级防火

窗),间距不限。(附图 2.2.5

若为一个建筑内的两个贴临防火分区,应依据《建规》第6.1.3条、6.1.4条执行。



附图2.2.3


附图 2.2.4


附图 2.2.5


2.2.2、关于消防建筑高度如何计算?


答:1、建筑屋面坡度不大于5%时,按照平屋面的计算高度。


2、建筑物的消防高度以室外地坪至女儿墙与屋面板交接的屋面建筑完成面标高为


18


准。(附图 2.2.6



附图 2.2.6 屋面面层计算


位于不同高程地坪上的台地或坡地建筑,当无法按规范满足分别计算各自建筑高度的条 件时,可按下列原则计算建筑高度和进行防火设计:

1、当建筑的环形消防车道或沿建筑两个长边设置的的消防车道分别处于不同标高的台地 或坡地时,可按以下原则计算建筑高度和进行防火设计:

1)按最低的消防车道所处的室外设计地坪作为起点计算建筑高度。低于最高消防车道 室外设计地坪的房间,当具备从建筑外立面进入扑救的条件且进深不大于30m,同时防火疏散 组织也满足向下或直接疏散到室外的条件时,可按地面以上建筑进行防火设计;不能满足上述 扑救和疏散的任一条件的房间,应按地下室的要求进行防火设计。这类高层建筑的消防扑救场 地应主要布置在处于低处的室外地坪处(附图 2.2.7)。

2)按最高的消防车道所处的室外设计地坪作为起点计算建筑高度。低于最高消防车道 室外设计地坪的房间,应按地下室的要求进行防火设计,其疏散流线可向上疏散至最高处消防 车道所处的室外地坪,也可向下或直接疏散至低处的室外地坪。高于最高处消防车道所处的室 外地坪以上建筑的安全疏散出口,应直通高处的室外地坪,不应通向低处的室外地坪,疏散楼 梯的设计应满足规范关于地上、地下楼梯间分隔设置的规定。这类高层建筑的救援场地可主要 设置在最高处消防车道的一侧,有条件时应兼顾建筑的最低室外地坪(附图 2.2.8)。

2、符合沿建筑长边设置单边消防车道的建筑,其建筑高度按消防车道所处的室外设计地 坪作为起点计算建筑高度,并应满足以下要求:

1)建筑的进深不宜超过50m

2)低于消防车道所处室外地坪标高的建筑房间,应按地下室的要求进行防火设计,其 疏散流线可向上疏散至消防车道所处的室外地坪,有条件时也可向下或直接疏散至低处的室


19


外地坪。高于消防车道所处室外地坪标高以上建筑的安全疏散出口,应直通消防车道所处的室


外地坪,不应通向低处的室外地坪,疏散楼梯的设计应满足规范关于地上、地下楼梯分隔设置 的规定(附图 2.2.9)。


3)高于消防车道所处室外地坪标高、但建筑只有部分外墙临空的平面,当房间具备从


建筑外立面进入扑救的条件且进深不大于 30m,同时防火疏散组织也满足向下或直接疏散到


室外的条件时,可按地面以上建筑进行防火设计;不能满足上述扑救和疏散的任一条件的房间,


应按地下室的要求进行防火设计(附图 2.2.10)。




附图 2.2.7


附图 2.2.8



附图 2.2.9


附图 2.2.10


室外用面

V7-


2.2.3、屋顶停车场的汽车坡道应满足什么样的土建条件?建筑物地面少量的停车 (非社会停车),是否要满足停车场与建筑之间的防火间距要求?如果可以不用按 此要求,少量停车是指多少辆?

答:1、屋顶停车场的汽车坡道按地上汽车库要求设置。


20


2、路边停车位或绿化边停车位,不属于规范中表示的停车场,其间距没有要求。停


车场是指具有内部行车道的集中室外停车场地。

2.2.4、液氧站到建筑之间的间距要求是从液氧站维护墙还是液氧罐起算?

答:《建规》第 4.3.3 条的陈述为氧气储罐与建筑物、储罐、堆场等的防火间距。所以从 罐体的外壁起计算。


21


2.3、防火分区和层数

2.3.1、《建规图示》5.3.6图示3有顶步行街最大高度是多少?

答:步行街属于裙楼,即其建筑高度不能超过24米。

2.3.2、《建规》第5.3.5条,明确了防火隔间、避难走道的适用场所:总建筑面积 大于20000m2的地下或半地下商店。—— 仅针对上述场所使用,其它场所不适用?

答:5.3.5条表示的是地下商店超过20000m2时做了分隔后的连通方式,并非这类建筑防火 设施的应用范围。对于避难走道的应用,详2.1.14条及其条文解释。

2.3.3、地下室的消防水池和生活水池是否应计入防火分区面积? 答:均可以不计入防火分区面积。

2.3.4、关于疏散楼梯及消防电梯共用问题

2.3.4.1、相邻防火分区之间的疏散楼梯间,是否可以共用?

答:原则上每个防火分区平面应各自具有独立的疏散楼梯。确有必要共用疏散楼梯时,应 满足以下条件:

1、每层疏散楼梯的总数量应大于每层总防火分区的数量,且每层平面疏散楼梯的总宽度不 应小于整层建筑的疏散总宽度;

2、一把疏散楼梯最多两个相邻防火分区共用;

3、共用封闭楼梯间时,应分别以疏散走道接入(附图 2.3.1);若共用防烟楼梯间,应分别

设防烟前室(附图 2.3.2);

4、楼梯间计入各自防火分区的安全出口宽度应按楼梯间梯段的1/2净宽度、楼梯间门的1/2 净宽度和各分区需要分摊的净宽度中的最小者值计算,且不应小于0.6m




附图 2.3.1


附图 2.3.2


22


2.3.4.2、消防电梯是否可以共用?

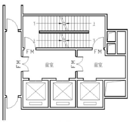
答:当地下建筑防火分区面积不大于2000 ㎡,每个防火分区设置不少于一台消防电梯确有 困难时,相邻防火分区方可共用消防电梯,否则应按《建规》7.3.2执行。当共用消防电梯时, 应满足以下条件:


1、当共用消防电梯时,防火分区数量不超过两个,且应分别独立设置前室。

2、若防烟楼梯间和消防电梯合用电梯厅时,应在合用电梯厅两侧各加多一个前室。如下图

所示(附图 2.3.3



附图 2.3.3

注:附图2.3.3中两侧合用前室净面积不小于6平方,中间电梯厅净面积不小于10平方

2.3.5、步行街外墙是否可做带形窗?外墙窗之间有没有距离限制?相邻商铺之间 邻外墙的一侧耐火极限是否需设不低于1.00h的实体墙分隔?步行街二层交通连 廊是否算外廊?相连疏散楼梯是否可采用开敞楼梯间,自然排烟?

答:步行街外墙可以做带形窗,外墙窗之间没有距离限制;

相邻商铺之间邻外墙的一侧不用设1.00h耐火极限的隔墙;

步行街二层交通连廊不可以算外廊,相连疏散楼梯不可以采用开敞楼梯间。

2.3.6、当地下室面积大,有不同深度;地上有不同高度的塔楼,地下室车库是否 可按塔楼投影范围适用不同规范标准?另外针对地下车库不同深度的分区,是否 也要求满足《建规》7.3.2“消防电梯分别设置在不同防火分区内,且每个防火分 区不应少于1台。”?

答:根据以下不同情况分别对待:

1、当地下室功能为机动车库(包括设备用房及非机动车库)时,其防火设计按《车库消 规》中有关地下车库的规定执行。《车库消规》中没有要求地下车库设置消防电梯。


23


2、当地上建筑部分按照《建规》7.3.1的规定需要设消防电梯时,该消防电梯按照《建规》


7.3.8的规定,需通往至地下室各层且应能每层停靠。

3、当地下室功能为非汽车库(如商业或商业与汽车库功能并存时),针对不同深度的分区, 当采用防火分隔(防火门、防火墙、防火卷帘(仅用于车道))时,也可按各自部分地下室的 深度决定是否设消防电梯。

2.3.7、设置充电桩的地下停车场,省标《电动汽车充电基础设施建设技术规程》 与国标《电动汽车分散充电设施工程技术标准》在防火分区面积等规定要求不一致, 具体审查时如何执行?

答:按规范和标准的编制和执行原则,地标的技术规定和执行均应高于国标,广东省内 建筑应满足省标《电动汽车充电基础设施建设技术规程》。

2.3.8、车库汽车疏散坡道总数为两个时,需分散设置,不允许设在同一防火分区 内(《车库消规》6.0.9条)。若汽车疏散坡道总数为三个或以上时,可否允许其中 两个汽车疏散坡道设置在同一防火分区内?

答:可以允许其中两个汽车疏散坡道设置在同一防火分区内。

2.3.9、地下室的设备房或自行车库可否与机动车库设置在同一防火分区内?

答:原则上不能与机动车库设置在同一防火分区内(除仅为本分区服务的设备用房外)。 当确有困难时,设备用房需要与机动车库设于同一防火分区时,设备用房应采用防火隔墙和耐 火极限不低于1.50h的不燃性楼板相互隔开或与相邻部位分隔,且其防火分区面积等消防疏散 设施需同时满足两功能在消防规范方面的要求。

2.3.10、商业的后仓区按什么标准来控制防火分区面积?

答:其商(市)场附属的丙类二项、丁、戊类物品库房总面积不应超过该层总建筑面积 的10%,且每个库房的建筑面积地上不宜大于500平方米,地下不宜大于150平方米,如库房 按仓库的防火设计要求设置自动灭火系统,每个库房的最大允许建筑面积可增加1倍。附属库 房与其他部位应进行防火分隔,地上面积大于100平方米或地下面积大于50平方米的库房, 应采用耐火极限不低于2小时的隔墙和1.5小时的楼板与其他部位分隔,隔墙上的门应采用甲 级防火门,且应向外开启并保持常闭状态。(附图2.3.4


24



采用防火分IW措北分IW开且疏散时反*无■进入 曾业厅内的仓借,设备房,工具同,办公蜜等


离店it做人敷-A


ATt业厅竞气面积(B,

B-人黄常度(人/W) (JalT割面历禾)


B-0. 30-0.42


1.43-0.60


D.60


B-0. 56


商店管业厅

(每层营业厅的■9t百积A)


商店普业厅平面示怠IE


ʌ-四层以上


、地下二S


[注兩

1建#西卷A包括曾业厅内果示貨 築、梔台,走速号及*参与购■ 的用所,Cuur业厅内的卫生间, 楼梯间、自动扶3等的Itit面铁. 对于果用防火分制我龍分开且 花散时及客无富爱入曹业厅内的 包*、tt0.工具同,办公篁 号可不计入安定筑巾职.

JJ⅛5.5Jl-2一定人员育度值 (B)时.应考恵商店的Jt筑弱 模,当龙筑规模祓小比加着业 厅的总座筑百程小于3000"It 宣項上网伎,*电筑規也较大时, 可取下It值.

3对于度材由店*家具和灯伸及示 *#.可按B30Ml定.但当一 座育府建筑内就,痛多冷育业用 建时,考虑到不同用途区域可候 会It经曾状况或銓卷者的变化而 变化,蒸一禅分区域可能用于* 具、电材&*等矣位用途,但人 员密度仍,要按屋域更筑的主县 肓业用途来0定,不能再校息上 超方法折IL


附图2.3.4


2.3.11、汽车坡道的面积是否应算入防火分区面积?疏散距离如何计算?

答:按《车库消规》执行。 另依据《车库消规》5.3.3,当汽车库和汽车坡道上均设置自 动灭火系统时,坡道的出入口可不设置水幕、防火卷帘或甲级防火门,故坡道疏散距离可按双


向疏散设计。


25


2.4、平面布置

2.4.1、《建规》第2.1.4商业服务网点设置在住宅建筑的首层或首层及二层,每 个分隔单元建筑面积不大于300m2的商店、邮政所、储蓄所、理发店等小型营业性 用房。

疑问:商业网点12层相加面积不应超过300 ㎡,但对上、下层营业用房面积比 例未作规定,设计中出现在一层仅设楼梯,二层均为营业用房,此作法可行吗?又 有何依据判断为不合理呢?

答:可行,但要满足二层大于200 ㎡需设两个安全出口的要求,同时疏散距离也应满足 规范要求。


26


2.5、安全疏散和避难


2.5.1、根据《建规》附录B.0.1条未明确扶梯、阳台(开敞、封闭)或外走廊及 步行街外廊是否要纳入防火间距计算?另外该扶梯、阳台(开敞、封闭)或外走廊 及步行街外廊算不算防火分区?

答:扶梯、阳台(开敞、封闭)或外走廊及步行街外廊应全部纳入防火间距,开敞阳台 和室外扶梯可不算入防火分区面积内,其余都需要计入防火分区面积。对于开敞外走廊的防火


分区界限,可定义在贴外廊的墙体外表面(附图 2.5.1)。



教室


防火分区A


防火分区B


开敞外走廊


开敞外走廊


护栏


防火分区界限  防火分区


防火分区界限


附图 2.5.1

2.5.2、《建规》5.5.6条:直通建筑内附设汽车库的电梯,应在汽车库部分设置电 梯侯梯厅,并应采用耐火极限不低于2.00h的防火隔墙和乙级防火门与汽车库分 隔。那电梯侯梯厅可否采用相当于2.00h耐火极限的防火玻璃、防火卷帘或水幕 等等效分隔措施与汽车库分隔?

可以采用满足两个小时耐火极限的防火玻璃隔断(防火玻璃隔断应整体满足耐火完 整性和隔热性要求,并应提供相应的构件检验报告),不建议使用防火水幕,不应采用防火卷 帘。

2.5.3、六层办公、商业或宿舍的局部平面如下图所示(附图 2.5.2),问走廊的楼 梯是否需设封闭楼梯间?


27




附图 2.5.2

答:走廊开敞段对应的楼梯依据规范5.5.13执行采用开敞楼梯,非开敞走廊对应的楼梯 应采用封闭楼梯间。

2.5.4、《建规》6.4.11-3条规定楼梯门完全开启后对梯段疏散造成影响。是否要 求楼梯门开启过程中也不能对梯段疏散造成影响?是否可以做180度开启的疏散 门?即下图是否满足要求(附图 2.5.3)?



附图 2.5.3

答:在满足防火门相关要求的前提下,可按楼梯门完全开启后对梯段疏散不造成影响即 可。但是防火门如采用图中所表示的开启方式,很难通过产品检验,市场上目前满足这种要求 的产品极少,若采用,需提供此类防火门的检验报告。

2.5.5、地下车库,剪刀梯分设置前室,但地面上剪刀梯是合用前室,地下的剪刀 梯可否分别作为两个防火分区的安全疏散口?距离如何控制?

答:对于地下车库,剪刀楼梯可以作为两个防火分区的安全疏散口。人员疏散距离控制 不超过60m


28


2.5.6、办公与酒店、酒店与商业以及商业与办公是否都可以共用(竖向、水平) 疏散楼梯?什么情况下(什么功能)可以共用?

答:办公与酒店、酒店与商业以及商业与办公均可以共用竖向疏散楼梯间,但不可以同 层共用疏散楼梯间。且当共用竖向楼梯时,应同时满足酒店及商业关于疏散宽度的规范要求。 2.5.7、居建与公建是否可以共用疏散楼梯?民用公共建筑与工业厂房是否可以共 建?是否可以共用疏散楼梯?

答:1、居建与公建不能共用疏散楼梯,竖向与水平疏散均不可以。

2、依据《建规》5.4.2民用公共建筑与工业厂房不应共建,但除《建规》有规定的工业厂 房外,为工业厂房服务的办公室、食堂等可以与民用公共建筑合建,若共建,应满足《建规》 3.3.5条“应采用耐火极限不低于2.50h的防火隔墙和1.00h的楼板与其他部位分隔”的要求, 且应设置独立疏散,不可以与民用公共建筑共用疏散楼梯。

2.5.8、疏散楼梯在首层和屋面是否需要设防火门?首层两个疏散楼梯之间,要不 要防火门,普通门什么间距要求?防火门什么间距要求?是否也是要大于1米的 距离?

答:1、一般情况下,楼梯间在首层、屋面直接对室外开启的门不需要设防火门。

2、当疏散楼梯间采用加压送风形式时,首层和屋面直通室外的门应采用可自动关闭 的防火门,以保证楼梯间门自闭时的压力。

3、当地下室疏散楼梯间,利用首层通室外的门作为自然排烟口时,不应采用防火门。 4、疏散宽度楼梯的直通室外的非防火门与相邻房间洞口需要满足不小于1m的间距 要求,如为防火门则无要求。

2.5.9、屋面或室外露台算不算安全出口?例如二层以上的楼梯间疏散到二层室 外露台(该楼梯不到首层),然后通过露台转到其他位置的室外楼梯才能疏散到地 面,该做法是否可行?

答:屋面或室外露台需有疏散楼梯下到地面才可算安全出口,具体条件应根据设计的具 体情况而定。

2.5.10、《建规》5.5.174点,观众厅、……、营业厅等,“等”字表示未穷举, 其中是否包括:开敞性办公空间、图书馆的大空间阅览室?高校实验楼的大空间型 实验室?

答:列举内容(开敞性办公空间、图书馆的大空间阅览室和高校实验楼的大空间型实验 室)属于多功能厅,可参照“其室内任一点至最近疏散门或安全出口的直线距离不应大于30m


29


执行。

2.5.11、超高层建筑中避难层的避难区域做空中花园是否可行?除避难区外的区 域,如果是空中花园等绿化空间是否可行?

答:超高层建筑中避难层的避难区域不可做空中花园,但除避难区外的区域可做空中花 园等绿化空间。

2.5.12、楼梯间满足什么土建条件时,可定义为开敞楼梯间? 答:开敞楼梯间是指设有不同朝向的外窗或洞口的楼梯间。

2.5.13、如何定义建筑中庭?

答:中庭是指三层或三层以上或净高大于等于9m,且对边最小净距离不小于6m,且连 通空间的最小投影面积大于100 ㎡的大容积空间。(参考:上海市工程建设规范《建筑防排烟 技术规程》)


30


2.5.14、公共建筑

2.5.14.1、明确餐饮的防火分区及疏散宽度的计算。燃气厨房是否可以设置在地下 建筑内?

答:1、以《建规》餐饮的防火分区为准,疏散宽度按《饮食建筑标准》的人数计算。面 包屋、饮料店等不属于餐饮,属于商铺性质;可按营业厅防火分区设计。

2、燃气厨房应靠外墙布置,按现有条件仍不允许布置在地下建筑内。

2.5.14.2、地下共三层,其中的地下一层能否采用地下室范围内的开敞的直通室 外的露天楼梯作为安全疏散口(不是在下沉广场中楼梯)?

答:负二、负三应设防烟楼梯间,负一可设敞开直通室外的露天楼梯作为安全出口(但 应满足室外疏散楼梯的要求)。

2.5.14.3、当展览厅、营业厅是大空间,不能满足任意点到楼梯门的距离小于10 米,也不能满足展览厅、营业厅中其他疏散门到楼梯门的距离小于10米时,多层 建筑的展览厅、营业厅能否用剪刀梯作为安全出口?

答:剪刀梯可以作为安全出口,但应满足以下两种情况:

1、当不能满足任意点到楼梯门的距离小于10米时,仅可以作为一个安全出口。当采用一 对剪刀楼梯或一组剪刀楼梯作为公共建筑的一个安全出口时,每个防火分区的安全出口应在 平面均匀布置,疏散宽度的分配也应均匀安排。

2、当一部剪刀楼梯作为一个防火分区仅有的2个安全出口时,必须满足分别设置防烟前 室、房间门到安全出口的距离不超过10m、且两个安全出口的净距离不小于5m的规定。

2.5.14.4、塔楼为办公建筑,裙楼能否按照商业服务网点来做,内部连通的楼梯的 尺寸是否需按商业楼梯的要求设计?楼梯是否可设计为敞开楼梯?

答:1、商业服务网点只适用于住宅底部,公共建筑不存在商业服务网点。公共建筑如果 做商业,应按商业建筑要求设计。

2、商业建筑应满足《建规》5.5.13要求,不能采用敞开楼梯。

2.5.14.5、独立的两层高商业建筑,商业每个铺面内部做两层(商业内部设置敞开 楼梯),两层的面积加起来小于200平方米,可否第二层到首层的门的疏散距离小 于30米(如果设置自动喷水灭火系统37.5米)?当只是设置一个门时,疏散门净 宽是否需要不小于1.4m

答:1、疏散距离不可以按小于30米设计,应按《建规》表 5.5.17位于袋形走道两侧或 尽端的疏散门的相关要求。独立的两层高商业建筑室内二层最远点到首层出口的距离不超过


31


22米(如果设置自动喷水灭火系统27.5米),楼梯可以为敞开楼梯(楼梯的疏散距离按水平段 1.5倍计算,楼梯宽度不小于1.4m)。

2、商业的疏散门净宽均不应小于1.4m

2.5.14.6、多层公共建筑,沟通上下层的室内开敞楼梯,可否作为疏散楼梯? 答:多层公共建筑,沟通上下层的室内开敞楼梯,不能作为疏散楼梯。

2.5.14.7、消防控制中心、消防水泵房、锅炉房需直通安全出口,经过一段公共的 疏散走道(该走道开有其他房间的防火门)才能到达楼梯间是否算直通安全出口? 若算直通安全出口,以上设备房的疏散门与楼梯前室门之间的距离有没有规定最 大值?

答:消防控制中心、消防水泵房、锅炉房的房间门宜紧邻安全出口,当房间门紧邻安全 出口确有困难时,应在安全出口能够清晰看到并方便到达消防控制中心和消防水泵房。

2.5.14.8、高层或超高层的塔式办公楼或酒店,在满足疏散距离的要求的前提下, 是否可不设环形走道?

答:1、高度大于250m的超高层建筑须设环形走道,或确保每个房间门都满足通过疏散 走道双向疏散的要求;

2、高层建筑应以双向疏散为主,高层建筑中,尽端疏散和单向疏散的房间面积占所有使 用房间的面积的比例不应大于1/3,且尽端走廊长度不超过疏散走道总长度的1/3

2.5.14.9、商场内的电影院需设置专用疏散楼梯,若电影院有两个防火分区,是否 两个防火分区都需要设置专用疏散楼梯?

答:若电影院在建筑内的四层及四层以上楼层,且单个观众厅设计建筑面积大于400平 方米的电影院的情况,该影院区域内应设置不少于两部独立使用的疏散楼梯。若不是上述情况, 设一部专用疏散楼梯即可。

2.5.14.10、建筑入口或房间疏散门不能采用推拉门(《建规》6.4.11-1条),那可 否采用电动感应推拉门?(该情况在很多办公楼项目、医院部分功能用房均会出 现)?

答:除医院手术室等特殊洁净用房外,可以按手术工艺要求,设置电动感应推拉门;其 他公共建筑用于疏散的门都不能采用电动感应推拉门,应采用平开门。

2.5.14.11、普通商业综合体的电影院疏散计算人数方式(包括候场人数)。

答:1、观众厅内的疏散按《建规》固定座位数×1.1倍的疏散要求计算。

2、候场人数以最大观众厅的固定座位数来计算人数。


32


2.5.14.12、办公建筑标准层和大堂人员计算标准?


答:办公建筑的标准层按办公使用面积每人6 ㎡计算,大堂按大堂使用面积每人6 ㎡计 算人数。

2.5.14.13、高层公共建筑塔楼不同疏散梯在首层同一大堂出,大堂设对应数量的 出口时,是否需要用隔墙分隔各疏散梯及其出口?

答:对于高层公共建筑塔楼,两个地上疏散楼梯可以共用直通室外的一个扩大前室出室 外,但要保证大堂直通室外的出口不少于两个安全出口(宜不同朝向),楼梯至首层外门不超 30m

2.5.14.14、《建规》5.5.17.2规定:“楼梯间应在首层直通室外,确有困难时,可 在首层采用扩大的封闭楼梯间或防烟楼梯间前室。当层数不超过4层且未采用扩 大的封闭楼梯间或防烟楼梯间前室时,可将直通室外的门设置在离楼梯间不大于 15m处。”

问题:1当层数超过4层及高层、超高层且采用扩大的封闭楼梯间或防烟楼梯间 前室时,将直通室外的门设置在离楼梯间应控制在多少米之内?

2民用建筑有时首层楼梯间通过一室外长凹廊(有顶)或一室内长走廊疏散, 这一室外凹廊长宽高比例有要求吗?室内长走廊长度是否有限制?

3位于建筑首层架空层内较深入位置的门厅、房间或楼梯间,其开入架空层 的疏散门,是否可以认定为直通室外安全区域的出口?还有,位于首层开向一端有 敞口的廊道上的疏散门呢?是否需要有关于空间尺寸的附加规定作为前提?

答:1):采用扩大的封闭楼梯间或扩大防烟楼梯间前室时,离楼梯间到直通室外门的直 线距离不应大于30m

2):所谓“凹廊”超过一定深度其实就是内廊。疏散楼梯间在首层通过走廊直通室外, 可以按规范的要求将走廊按扩大封闭楼梯间或扩大防烟前室设计,当多个楼梯通过同一走廊 通向室外时,走廊的宽度应大于利用走廊疏散的同一防火分区楼梯的最大合计宽度加上通向 走廊的首层房间门的总宽度;

也可以利用只设有通向室外的门或门洞、两侧隔墙耐火极限不低于2.0h、行走直线距离 的长度不超过20m,且无房间门外开的走廊直通室外,当多个楼梯通过同一走廊直通室外时, 走廊的宽度应大于利用走廊疏散的同一防火分区楼梯的最大合计宽度。

上述情况的疏散楼梯也可以通过避难走道通至室外。避难走道按照规范相关条款设置。 (附图 2.5.4)避难走道的宽度应不小于规范规定的疏散走廊宽度,也不应小于通向避难走道


33


的最大疏散门的宽度。


住宅建筑的疏散楼梯间在首层可利用同一作为扩大封闭楼梯间或扩大防烟前室的门厅疏



3):处于建筑两个长边及以上的外墙均开敞的首层架空层中的安全出口和疏散出口,当其


直通室外的直线距离不大于30m时,等同于直通室外。


首层安全出口通过凹廊、骑楼、敞廊或相似建筑部位时,这类部位的开口面宽宽度不小于


进深时,可以认为满足直通室外的要求(附图 2.5.5)。



附图 2.5.5


注:


1、距离计算疏散距离通往室外的长度以首层走廊顶板投影的范围为界限。


2、楼梯至室外的距离:从梯段踏步前缘不超过梯段宽度的位置起算。


2.5.14.15、直升机停机坪的尺寸应如何确定?


答:直升机停机坪的尺寸为直径不小于 21m,直升机救助设施的场地尺寸为长、宽分别


不小于 15m12m


34


2.5.14.16、金融机构内部使用的金库防火分区该如何划分?安全出口如何设置?


答: 现行规范对此无要求。

2.5.14.17、商业综合体疏散设计中,不同规模的疏散系数有一定差别,但规模是 指整个项目的规模还是本防火分区规模并不明确。

答:据《建规》中表 5.5.21-2 确定人员密度值时,应考虑商店的建筑规模,当建筑规模 较小(营业厅总建筑面积小于5000 ㎡ )时宜取上限值,反之当建筑规模较大时,可取下限 值。(注:5000依据《商店建筑设计规范》1.0.5条)

2.5.14.18、餐厅、宴会厅、食堂,医院门诊楼,学校的教学楼,图书馆的阅览室 等场所的疏散人数计算应依据什么标准?是否参照专业建筑设计规范中规定的最 高人员密度标准执行?

答:参照专业建筑设计规范中规定的最高人员密度标准执行,若专业规范无具体规定, 应寻找相关可支持设计的有效依据(如:《建筑设计资料集》等)。

2.5.14.19、消防控制室应设置在建筑什么位置?

答:1、参照《13号文》大中型商业建筑和一类高层公共建筑消防控制室应设置在首层 的靠外墙部位,并设有直通室外的安全出口。

2、除大中型商业建筑和一类高层公共建筑外,消防控制室宜设置在建筑首层的靠外墙部 位。


35


2.5.15、居住建筑

2.5.15.1、住宅相邻户户门处均为敞开外廊或敞开阳台,其建筑外墙相邻户开口之 间墙体宽度是否满足1.0m规定。(如户门为防火门呢?)


答:若通过开敞的入户花园入户,则两户门之间不需要满足1.0m规定(附图2.5.6图示 1);反之,若外廊或阳台不属于户内,则需满足1.0m规定(附图2.5.6图示2);若其中任意 一个户门为防火门,两入户门之间无间距要求。




附图 2.5.6图示1


附图 2.5.6图示2


2.5.15.2、超高层住宅若仅设置避难间,那么设置避难间的那层平面除了设置避难 间外,其他位置可否设置住宅?

答:超高层住宅按规范要求,应设避难层,除了避难层、避难区以及设备用房之外,不


允许设置避难层同层进入的住宅。若设跃层户型,应满足附图2.5.7


在贵・河进入楼餐周的入口爱和



的貯川t与其值 用房分匾


««.請脉专* 电话玲应急广It


⅜⅜⅜⅛⅜⅝X⅜⅜⅜⅛⅝ WΛ*HΛ⅛i∙⅛rS 時第喪族,孙應方柔招乙 KBAV


祖工啊鼻的指录标*


**,■宣集中卒量,■


比集中相工,ifc**≡tK 亶杲用JlMUI* >3. OOh

康火1**%电*区分*


r∙t⅜*ιt<R⅛r]



*开*菱瑜区时「5

出入口的跑育应)4且庇 采用甲量算火门


*.并宣我S∙<A/H计算


LI. LHl应大于■于5%


附图2.5.7


36


通・区来用不开量门.■. 村口的弟大*耳*他用席


2.5.15.3、《建规》第5.5.32条,用卫生间做避难房间是否可行?

答:不可行,防火门无法满足卫生间需要通风的要求。

2.5.15.4、住宅核心筒

1什么情况下,住宅核心筒需增设环形和半环形疏散走道?

2关于住宅核心筒每层能最多允许户数问题及户数分布,如四加二户还是三 加三户?

3前室串套问题:防烟楼梯间和消防电梯合用前室是否能与防烟楼梯间串套? 答:依据《建规》条文说明5.5.28及《建规图示》5.5.275.5.28图示注释:当两部剪刀 楼梯间共用前室时,进入剪刀楼梯间前室的入口应该位于不同方位,不能通过同一个入口进入 共用前室,入口之间的距离仍要不小于5m;在首层的对外出口,要尽量分开设置在不同方向。 当首层的公共区无可燃物且首层的户门不直接开向前室时,剪刀梯在首层的对外出口可以共 用,但宽度需要满足人员疏散的要求。

1)尽端进入合用前室若超过三户(不含三户)时,应增设环形和半环形疏散走道,详见 附图 2.5.8图示1,三合一前室总户数不应超过6户,详见附图 2.5.8图示15

2)关于核心筒每层能最多允许户数问题及户数分布,详见附图2.5.8图示2~附图2.5.8 图示7

3)关于前室串套问题,详见附图2.5.8图示8~附图2.5.8图示14

注:其中图示(√)为可行,(×)为不可行。



附图 2.5.8图示1          附图 2.5.8图示2


37



附图 2.5.8图示3


附图 2.5.8图示4




附图 2.5.8图示5


附图2.5.8图示6×




注释:


不能同时满足两侧疏散门应向疏散方向开启的要求


附图2.5.8图示7×


附图2.5.8图示8×


38




注释:不能同时满足两侧疏散门应向疏散方向开启的要求


附图 2.5.8图示9×


附图 2.5.8图示10×



注释:不能同时满足两侧疏散门应向疏散方向开启的要求 附图 2.5.8图示11×


注释:根据《建规》5.5.30,疏散门净宽不应小于0.9m


附图 2.5.8图示12




附图 2.5.8图示13 ×


附图 2.5.8图示14×


39


入户门



入户门

注释:三合一前室总户数不应超过6

附图 2.5.8图示15 ×


40


3、建筑构造


3.1、裙房与高层建筑主体之间设置防火墙,是否可以开设甲级防火门、窗、洞口? 是否可以设置防火卷帘?

答: 完全以防火墙隔开,会使建筑平面设计受到过度限制,因此在疏散和灭火设施分开 设置的前提下,可在通道设置甲级防火门、窗,以满足必要的功能联系。不可设置防火卷帘。


3.2、建筑洞口问题

3.2.1、上下层窗距离应≥1200mm是结构高度,还是可以为完成面? 答:可按满足外墙耐火极限大于1.00h的建筑构造层完成面计算。

3.2.2、多层民用建筑整栋建筑为一个独立的防火分区,建筑外窗、洞口是否要 满足上、下层开口之间设置不小于1.20m实体墙。若二、三层为同一防火分区,那 么三层楼板的结构梁与玻璃幕墙交接处还要做防火封堵吗?

答:除建筑外窗、洞口所连通的室内空间为上下层直接连通的部位外(如:靠外墙的楼 梯间、靠外墙的中庭回廊等),其余应按规范要求采取防火封堵措施。

3.3、当下沉式广场等室外开敞空间(以下简称“下沉广场”)用于地下或半地下商 业 20000 ㎡之间的分隔时,“下沉广场”的周围回廊的进深以及开敞部分的短边尺


寸以及开口最近边缘的水平距离有无具体规定?(附图 3.1


:况火广身写宣外开,空同内帽 t不少于1部直■*國的母* m».势连接下又广年的防火分

:*利用下加广哥进行篇散H, I*楼柵的A*寛度不应小于任 -防火分区/向宽外开*空同的 tfrattΛ*lΛ


【外开*空同*用于人JtR做" M*用于其包商业或可他导致火 (*曼的用途,其中用于就做的 卜田秋不应小于169m



LilIHlM#的总冷亮度 »■曲宣外的M效冷完Jt “MTV a>”*>i


附图 3.1


答:“下沉广场”敞开空间的上部开口各层最不利的面积均不应小于 169 ㎡,且该开口的

短边不应小于 13m(不含回廊),四周如设置回廊应满足附图3.2、附图3.3的要求。不能满足


上述条件的回廊,应按室内进行防火设计。


41



当"下沉广场"四周设置回廊时, 应满足以下条件:


2(a1+a2)h20. 25XS

2(a1+a2)h≥0. 25×2(L1+L2)H 2(a1+a2) 20. 5X2(L1+L2) 敞开区域应均匀分布


下沉广场"敞开空间 面积2169m'


附图3.2



附图3.3


3.4、《建规图示》P1366.1.3图示2附图 3.2是否有误?实践中一侧防


火便可?



附图 3.4

答:可以按《建规图示》或一侧做防火门窗。


42


3.5、阳台作为防烟楼梯间前室,开向阳台的门窗是否要求设置乙级防火门窗?


答:参照《建规图示》8.5.1图示5,要求设置乙级防火门窗。(附图3.3



附图 3.5


3.6、同一建筑物不同裙楼之间的封闭连廊是否不计入防火分区面积?同一建筑物 不同裙楼的防火分区之间通过连廊进行互通,安全出口及疏散宽度计算是否按《建 规》第5.5.9条进行要求?

答:同一建筑物不同裙楼之间的封闭连廊计入防火分区面积。连廊应计入到其中一个防


火分区,并按两个相邻两个防火分区的相关规定执行。

3.7、一类高层公共建筑中首层~三层为商业,四层及以上为办公,两者的楼梯不共 用,那么首层~三层的楼梯是否需要做防烟楼梯间及机械加压送风?

答:若楼梯位于高层建筑塔楼投影范围内的区域,应按高层建筑要求,不能按裙房。 3.8、建筑幕墙应在每层楼板外沿处采取防火封堵(《建规》第6.2.6条)。是需要 在交接处的上下口均封堵?还是只需要在上口或下口封堵就行?

答:应至少在两端作封堵,详见《建规图示》6.2.6(附图3.4)。



附图3.6


43


3.9、公安部<2016>113号文规定10万平米以上规模的大型综合体项目不允许做折 叠提升式卷帘(异型卷帘)?这将导致购物中心项目中庭的防火分隔很难处理,如 果设计能提供异型防火卷帘的3C认证资料,那是否允许做异型防火卷帘?这条规 定对于其他单一功能的建筑(如纯办公楼),或规模小于10万平米的综合体项目 是否也需要执行?

答:根据消防设备厂家提供的资料,若已有通过认证的新型异形防火卷帘,可以替代原 折叠提升式卷帘;《113号文》要求小于10万平米的综合体项目也要参照执行,所以应按规定 执行;对于单一功能的办公楼可采用折叠提升式卷帘。

3.10、疏散走道的墙体是否可以设置普通窗?那可以设置多少比例的普通窗?敞 开外廊是否可以?

答:1、房间靠外廊的墙体(包括敞开外廊)可以设置普通窗。

2、一、二级耐火等级建筑的疏散内走道两侧的墙应为耐火极限不低于 1h 的墙,除 规范另有规定外,墙上的门可为普通门和普通窗,窗的面积比例规范没有限制,但一般情况下 不应超过窗所处房间墙身面积的50%;当窗的面积超过所处房间墙身面积的50%时,应采用乙 级防火窗或设置耐火隔热性和耐火完整性均不低于1.0h的玻璃墙体。当疏散走道两侧墙的耐 火极限低于 1.00h 时,从房间内任一点至安全出口的直线距离不应大于 30m,且行走距离不 应大于 45m。当上述场所设置自动喷水灭火系统时,其直线距离可增加 25%,行走距离不应 增加。

3.11、楼梯间、前室及合用前室外墙上的窗口与两侧门、窗、洞口最近边缘的水平 距离不应小于1 0m楼梯间与阳台相邻时,阳台算不算洞口边缘?住宅建筑外墙 上相邻两户阳台是否需要满足1m的防火间距?

答:楼梯间、前室及合用前室三者之间以及三者与两侧门、窗、洞口最近边缘的水平距 离不应小于10m,但因阳台属于室外空间,阳台不算洞口边缘。

3.12、建筑疏散门的净宽应满足规范要求,建筑图表达的是土建门洞,对应净宽如 何确定?

答:应根据单项工程疏散门的详图设计或参照国家相关标准图集(如:防火门国标图 集)进行计算,原则上,规范所要求的门净宽,应为门完全开启时可供人员通行的净宽度。


44


4、灭火救援设施及消防设施

4.1、地下室埋深超过10米且地下室面积超过3000平方米,什么情况下可以 不做消防电梯?(例如万博、琶洲的地下空间消防部门都没有要求做消防电梯)

答:应按规范执行,不能以已建的案例做参考。特殊情况下,可按本解答第三章节中1.1 条进行相关评审。

4.2消防电梯首层通室外的疏散及救援功能的通道,能否开设功能房间的门(附


4.1)?



<3‰α


附图 4.1


答:应按规范执行,特别应注意《建规》7.3.5(2-4)款为强制性条文。当经过长度不大于

30米的通道(从前室门算起)直通室外时,该通道应有防火保护,且具有防烟功能,不需经


任何其他房间通向室外。

若因功能需要设开向该防烟功能走道的门时,除规范另有规定外,应为乙级防火门且不得 影响该走道的疏散及救援功能。

4.3、沿相邻两栋高层建筑塔楼之间,布置一块共用的消防登高救援场地,最小宽 度可否按10m+5m=15m?即非实施灭火救援建筑的一侧,场地紧贴建筑外墙布置, 没有5m退距。)

答:可行,建议消防车道可居中接入消防车登高救援场地。

4.4、开向消防前室的非消防电梯是否要调整为消防电梯?

答:是的。电梯产品以及防火设计均要符合消防电梯的设计标准,电梯控制系统可按普


45


通乘用电梯选用。

4.5、普通消防车道的转弯半径规范固定不能小于9米,转弯半径是否指道路转弯 处倒圆角的半径(如下图)?什么时候按普通消防车设计?什么时候按大型消防车 设计?(附图 4.2



附图 4.2


答:转弯半径是指道路转弯处倒圆角的半径(附图4.2)。对于建筑高度超过100m的建 筑,需考虑大型消防车辆灭火救援作业的需求。考虑广州市的目前消防车的配置状况,建议建 筑高度超过50m的建筑,均应考虑大型消防车辆灭火救援作业。多层建筑,消防车道转弯半 径不应小于9米;不超过100米的高层建筑,消防车道转弯半径不应小于12米;超过100米 的高层建筑,消防车道转弯半径不应小于18米。

4.6、消防车道的转弯内半径与消防车辆的转弯半径,《建规》没有明确区分,7.1.8 条文说明提及消防车的转弯半径为9-12m有的消防审查人员直接按此作为消防车 道的转弯内半径,参考《车库建筑设计规范》的条文,要求超出实际需要,应给予 明确。

答:考虑到消防救援的特殊性,消防车的转弯半径为9-12m 可以认为是消防车道的转弯 内半径。

4.7、消防救援窗口的数量。规范规定救援窗口间距不宜大于20m且每个防火分 区不应少于2个(《建规》7.2.5条)但距离下限有无规定?个别工程的极端做法, 几乎是紧挨着布置。

4.7.1、若其中一个防火分区与消防登高面对应的面宽较窄(如下图,附图4.3 中的防火分区二),防火分区二可否只设一个消防救援窗口;(附图 4.3


46



答:按规范执行,要设置两个消防救援窗口,且应均衡布置。

4.7.2、消防救援窗口的数量是要沿消防救援场地通长布置多个、间距20米(附



答:按规范执行。(按附图 4.4.1执行)消防救援窗口间距20米主要因为20米是一辆消 防车悬臂摆动的有效救援范围。

4.8、《建规》第7.2.5条:厂房、仓库、公共建筑的外墙应在每层的适当位置设 置可供消防救援人员进入的窗口。

疑问:1. 首层需要设置吗?

答:首层设有出入口,出入口的门可作为消防救援出入口。

2. 有阳台或外廊可否视作救援窗口?

答:按规范执行,阳台或外廊设有门时可视作救援窗口,阳台或外廊上的门应易于 开启或破拆,并应设置可在室外易于识别的明显标志。

3. 超高层的部分需要设置救援窗口吗?

答:按规范执行,要设置。

4. 防火救援窗是否规定为玻璃窗?外墙上可开启的石材暗门是否可作为 救援窗?

47


答:救援窗应为易于破碎的玻璃窗,外墙上可开启的石材暗门不能作为救援窗,但当救 援窗采用可开启的石材暗门做装饰时,可按本解答第三章节中1.1条进行相关评审。

4.9、消防登高场地设置在山墙面,是否可行?山墙面的窗很小的话,算不算? 答:消防登高场地可以设置在山墙面,同时消防救援窗的设置需满足《建规》7.2.47.2.5

条的规定。

4.10、通道式轿厢的电梯,是否可以设置为消防电梯?如可以,是否两边均为消 防前室?

答:满足消防电梯设计要求的电梯可以设为消防电梯,消防电梯应设消防前室。

4.11、避难房间是否需要在消防扑救场地一侧?

答:针对建筑高度大于100m的公共建筑应设置避难层(或避难间),建筑高度大于100m 的住宅建筑应设置避难层,避难层(或避难间)应尽量合理布置在消防扑救场地一侧。

针对建筑高度大于54m的住宅建筑,每户应有一间房间符合下列规定:

1、应靠外墙设置,并应设置可开启外窗;

2、内、外墙体的耐火极限不应低于100h,该房间的门宜采用乙级防火门,外窗的耐 火完整性不宜低于100h

4.12、天井内是否可算扑救场地?天井内的扑救场地有没面积要求?

答:如天井能满足《建规》7.1.9条(消防车道的设计要求)、7.2.17.2.27.2.3条(救 援场地和入口的设计要求)的相关规定可算消防救援场地。

4.13、超高层建筑中,其屋顶疏散区域是指疏散楼梯在天面开口的平面还是指直 升机消防救援平台?

答:屋顶疏散区域应是疏散楼梯开向屋面的区域。如超高层建筑设有直升机消防救援平台 时,该区域与救援平台应能直接连通。

4.14、《建规》第7.2.4条:厂房、仓库、公共建筑的外墙应在每层的适当位置 设置可供消防救援人员进入的窗口。在登高面处需要设置救援窗,但是不在登高面 的区域但要在消防环道上的区域是否要增设救援窗?如果没有消防车道也没有登 高面时(例如高层建筑面向裙楼屋顶的一侧还是否需要设置救援窗?)

答:按规范条文设置消防救援窗供消防救援人员进入即可。救援窗口的设置既要结合楼层 走道在外窗上的开口、还要结合避难层、避难间、救援场地和消防车道,在外墙上选择合适的 位置进行设置。


48


4.15、关于消防登高面的要求,规范要求不少于一个长边及1/4周长。如果建筑 的形状复杂,例如多边形,五角星形状等,如何界定哪个是长边,是否可以理解为 只要符合最长边长及不小于1/4周长就可以?


答:建筑形状复杂时,应以最长的边长且不小于1/4周长来计算消防登高面。具体的消防 车登高操作场地连续布置方案可参考《建规图示》中相关内容。

4.16、地下室车库出入口面向消防车登高场地时,需满足什么条件?

答:《建规》第7.2.2条第1款规定的“车库出入口” 不包括非机动车出入口。消防车 登高操作场地与登高操作面的建筑外墙之间不应设置汽车库(坡道)出入口。当设有在建筑投 影范围内的汽车库(坡道)出入口时,建筑外墙与消防车登高操作场地的距离不应小于 6m, 汽车疏散不应影响消防车的通行;汽车库(坡道)出入口两侧应设置长度不小于6m的不开设 门窗洞口的防火墙,汽车库坡道应设置自动喷水灭火系统,汽车库坡道出入口应设置高度不小 于1.0m的挡烟垂壁。(附图4.5



消防车登高操作场地


附图4.5建筑投影范围内的汽车库(坡道)出入口

417、消防救援场地是否有具体要求(如:人行道、道路高差或路牙等)? 答:消防救援场地要求平整,不允许跨人行道、存在道路高差或路牙等且不得有绿地。


49


5、室内装修

5.1、《建筑装修设计规范》的4.0.8条要求:“无窗房间内部装修材料的燃烧性能 等级除A级外,应在表511、表521、表531、表601、表605 规定的基础上提高一级。”,按照此条要求,大多无窗房间的顶棚、墙面、地面装修 材料均需采用A级,而对于一些医疗、科研实验室等项目,存在大量内部无外窗 房间,且根据工艺装修要求需采用属于B1级的PVC卷材地面、环氧树脂自流平等 地面装修材料。

疑问:

1、是否可以认可医院手术室、洁净区或者科研实验室建筑,采用开向内走道的 内窗解决规范4.0.8条的问题?是否认可房间开在疏散走道的门上的观察窗?

2、其他类型的建筑是否可以采用开向内走道的内窗甚至门上的观察窗解决规 范4.0.8条的问题吗?

答:基于医院建筑内多种空间的功能要求,医院手术室、ICU、移植仓……等多种洁净区 域,功能及布局上不允许有对外开采光窗,又因洁净要求必须使用PVC、橡胶等弹性材质(可 无缝、可弯曲的地板材料)时,其开向内走道的门上设有观察窗的,建议可视为有窗房间处理。

其他类型建筑中有洁净要求的功能区域,如:洁净厂房、有洁净要求的科研实验室等, 当该功能用房无对室外开窗但其开向内走道的门上设有观察窗时,其室内装修装修材料要求 可等同处理。

5.2、地上建筑内的无窗房间如何界定,如办公场所、展馆中的房间,其开窗未 直接开向室外,但开向室内的有窗的大空间,能否按有窗房间设计?

答:房间内如果安装了能够被击破的窗户、外部人员可通过该窗户观察到房间内部情况, 则该房间可不被认定为无窗房间。

5.3、乳胶漆的燃烧性能等级是否能认定为A级?

答:根据《建筑内部装修设计防火规范》3.0.6条的要求,只有无机涂料能认定为A级。 乳胶漆为有机涂料,不能作为燃烧性能A级材料使用。


50


6、防排烟(关于建筑部分)

6.1、防排烟规范要求楼梯间需在最高位置设置固定窗或可开启窗,最高位置是 否一定要设在顶板上或顶板的梁底下?能否进行量化?如外窗有效的面积设置在 顶层楼梯楼板标高以上多少米以上?

答:在储烟仓的有效高度内都可以。

6.2、建筑外墙使用玻璃幕墙时,设置自然排烟设施却是很困难和无法满足要求 的,建议应规定此类房间必须设置机械排烟设施。

答:不建议一刀切超规范要求。根据《建规》8.5.38.5.4条,并非地上所有的房间均需 设排烟;若需要排烟的房间,外墙玻璃幕墙上可设置可开启扇,来满足自然排烟的要求;若采 用自然排烟确实有困难时,方考虑设置机械排烟。

6.3、根据《防排烟标准》中3.3.11条,设置机械加压送风系统的封闭楼梯间、 防烟楼梯间,尚应在其顶部设置不小于1 ㎡的固定窗。对于地下室楼梯间、内区楼 梯间无外墙时,无法直接设置固定窗,是否可设在室内墙上,或设专用通道间接设 置,请明确做法。

答:固定窗为外窗,应设置在外墙上。当楼梯间无外墙时,应设满足耐火极限不低于1.0h 不燃材料烟道通至外墙。

6.4、地下室楼梯间在首层开向门厅的门可作为该楼梯间顶部的固定窗使用吗? 答:不可以,地下室楼梯间只有在首层开向直通室外的门可作为该楼梯间顶部的固定窗使 用。


51


五、给排水现有规范疑难点

1、《建筑设计防火规范》问题解答

1.1、《建规》5.4.125.4.13条规定,建筑内设有自动喷水灭火系统时,柴油发电 机房内应设置自动喷水灭火系统,且为强条。柴油发电机房、储油间是否可以设气 体灭火?

答:按《建规》第5.4.12条第8款、第5.4.13条第6款,建筑内设有自动喷水灭火系统 时,柴油发电机房应设置自动喷水灭火系统。按《建规》第8.3.8条,储油间可采用水喷雾灭 火系统、气体灭火系统、泡沫灭火系统或细水雾灭火系统。

1.2、加油、加气站的站房是否需按民用建筑要求,设置室外消防系统?

答:加油加气站消防设施应满足《汽车加油加气站设计与施工规范》GB5015610.2节 的要求。配建的收费和零售用房按《建规》设置消防设施,室外消火栓按第8.1.2条规定执行。 1.3、《建规》8.3.1条中,对需设喷淋的厂房生产类型做了规定。实际工作中,有 许多多层丙类厂房的生产类型未能明确,如何界定是否需要设喷淋?

答:应按《建规》第3.1.1条、第8.3.1条说明生产、存储的物品分类和火灾危险类别, 设计相应的灭火系统。

1.4、按《民用统一标准》中8.1.11条第1款,要求高位消防水箱最低有效水位应 高于其所服务的水灭火设施,而建筑专业希望高位消防水箱放在屋顶层,与屋顶风 机房(设有消火栓、喷淋)位于同一建筑高度,是否可以?

答:按《水消规》第5.2.2条、《民用统一标准》第8.1.11条第1款,高位消防水箱的最 低有效水位应高于其所服务的水灭火设施。

1.5、《建规》8.3.3条中,对二类高层建筑中需设喷淋保护的部位有清楚描述,但 对多层建筑中需设置的部位没有明确规定,如何执行?

答:符合《建规》第8.3.4条的多层建筑,该建筑内凡具有可燃物且属于适宜用水保护或 灭火的场所,均需设置自动喷水灭火系统。

1.6、二类高层宿舍的卧室是否要设置喷头?

答:按《宿舍建筑设计规范》第7.1.7条,二类高层宿舍卧室可不设喷头。

1.7、屋顶单独设置的风机房、水泵房等设备间是否需要设消火栓系统、喷淋系统 保护?

答:参照《水消规》第7.4.3条,设置室内消火栓的建筑,包括设备层在内的各层均应设


52


置消火栓;参照《建规》第8.3.1~4条,属于宜用水保护或灭火的场所应设自动喷水灭火系统。 故建议屋顶风机房、水泵房等设备间设消火栓系统、喷淋系统保护。

1.8、住宅首层是商业网点,住宅不设喷淋,商业网点是否设喷淋?

答:商业网点可以不设喷淋,建议有条件时设喷淋。

1.9、医院工程有喷淋系统,分娩室、麻醉间、手术室、无菌物品储藏间需要设喷 淋吗?

答:根据《建规》第8.3.3条、第8.3.4条、《综合医院建筑设计规范》GB510396.7.4 条,血液病房、手术室、有创检查的设备机房不适宜设自动灭火系统,待产室、麻醉间、无菌 物品储藏间、中西医药房可设自动喷水灭火系统。

1.10、游泳池上要求设自喷吗?

答:根据《建规》第8.3.3条,游泳池上方不要求设自喷,吊顶内有可燃物且净空大于 800时需要设喷头,吊顶内喷头不受高度限制。

1.11、防火分区面积大于500 ㎡的住宅地下自行车库、住宅储物间是否要设自动 喷水灭火系统?

答:1)自行车库为有可燃物的丁、戊类库房,参照《建规》第8.3.2条第6款,建筑总 面积大于500 ㎡的住宅地下自行车库宜设置自动喷水灭火系统。

2)住宅储物间为丙2项库房,根据《建规》第8.3.2条第6款和表3.3.2,总建筑面积 大于500 ㎡或防火分区面积大于300 ㎡的住宅地下储物间,应设置自动喷水灭火系统。

1.12、建筑面积大于3000m2的办公楼、教学楼当采用多联机空调系统时(设置新 风管道、盘管风机并设有短距离送风管道),是否需设置喷淋系统?

答:按《建规》第8.3.3条,高层办公楼、教学楼要设喷淋。按《建规》第8.3.4条第3 款,有送、回风管的单层多层办公楼、教学楼应设喷淋。

1.13、大于8米的高大净空场所(办公大堂等),用自喷与水炮均可以灭火,要优 先自喷吗?

答:根据《建规》第8.3.5条要优先选自喷,闭式自动喷水灭火系统是最有效的灭火系 统。

1.14、公安部公消【2007226号文:高层建筑中变配电房是否按226号文设置气 体灭火系统?多层、单层建筑中的变配电房是否需执行?

答:根据《建规》第8.3.9条条文解析,高层建筑中变配电房属重要设备房,应设置气体 灭火系统。多层、单层建筑中的变配电房建议设气体灭火系统。


53


1.15、消防控制室是否需要设自动喷水灭火系统?


答:不需要,但应按《灭火器规》的要求配置灭火器。

1.16、《建规》第8.3.7条:特等、甲等剧院,超过1500个座位的其它等级剧院和 超过2000个座位的会堂或礼堂的舞台葡萄架下部设置雨淋喷水灭火系统;《喷规》 附录A中将舞台葡萄架归为严重危险级II级,《喷规》4.2.6条第3款要求火灾危险 等级为严重危险II级的场所应采用雨淋系统。那么不是特等、甲等剧院,不超过 1500个座位的其它等级剧院和不超过2000个座位的会堂或礼堂的舞台葡萄架下 是否设置雨淋喷水灭火系统?

答:建筑物是否设置雨淋系统应执行《建规》及《剧场设计规范》JGJ57,雨淋系统的设 计应执行《喷规》。根据《剧场设计规范》JGJ578.3.5条,中型及以上(超过800座)规模 的乙等剧场的葡萄架下宜设置雨淋喷水灭火系统,如该建筑物应设自动喷水灭火系统,则该建 筑的葡萄架下应设置雨淋喷水灭火系统。


54


2、《消防给水及消火栓系统技术规范》问题解答

2.1、《水消规》3.2.2条:对于超大单座建筑,若人数超过2.5万人,究竟是按1 起火灾,还是2起火灾?本条是否仅适用于市政消防给水设计,并不适用于民用 建筑消防设计?

答:单座建筑按1起火灾考虑,但应注意《水消规》第6.1.11条对建筑共用一套临时高 压给水系统有要求,《水消规》第3.3.2条之注4,当单座建筑的总建筑面积大于 50 万平方米 时,建筑物室外消火栓设计流量应按本表规定的最大值增加一倍。《水消规》3.2.2条仅适用于 市政消防给水设计,不适用于单座建筑消防设计。

2.2、《水消规》3.3.2条:单座建筑总建筑面积如何计算?某项目地下室上有多 栋建筑,请问总建筑面积如何计算?

答:单座建筑的总建筑面积=地上各栋的建筑面积之和+地下室总建筑面积;规范对单 座和单栋有不同定义,其中地下室投影线范围内的所有建筑含地下室统称为单座建筑;地 下室上方的独立建筑称为单栋建筑。此外,两个地下室间以通道相连,且该通道仅考虑通 行,不考虑停车,且两个地下室之间有防火门分隔,则算两个地下室。

2.3、《水消规》3.3.2条和3.5.2条:

2.3.1、地下建筑是指独立建造的地下建筑,还是指包含建筑物附属的地下 室?

2.3.2、带地下车库的地下建筑,室内和室外消火栓水量是否按照地下车库和 地下建筑分别取流量,然后选大者为设计流量?

2.3.3、单独的地下建筑作为人防用,室内消火栓设计流量套用地下建筑还是 人防?

2.3.4、建筑室内外消防水量均依据建筑性质、建筑体积大小确定。地下室与 地下室底盘上方的多栋建筑是否可以拆分计算建筑体积?请明确建筑体积计算规 则。

答:1)地下建筑和建筑地下室是两个不同的概念:建筑地下室是指附建在建筑物地面 以下用于建筑物配套设施的那部分建筑;地下建筑是指独立建造的地下建筑物,如地铁、隧道、 人防工程、地下商场等建筑。

2)附建在建筑物内的地下车库,消防设计流量按《车库消规》确定,当建筑地下室不 仅有汽车库,还有商业等其它功能时,应按汽车库、地下建筑分别计算并取大值作为系统设计


55


流量。


3)仅供人防时使用的人防地下建筑,消防设计流量按《人防规范》确定,平战结合的


人防地下建筑,按《水消规》的人防建筑、地下建筑分别计算并取大值作为系统设计流量。

4)除《建规》第5.4.10条第3款允许室内消防设施配置可以分住宅部份及非住宅部份 外,规范中的建筑高度、层数、体积等建筑基础参数均是按整座计算,不能随意拆分。如果地 下室与地上建筑无任何连通可分开计算体积,两个地下室仅通过通道连接且通道口设防火分 隔措施也可分开计算体积。

2.4、《水消规》3.6.2条规定综合楼火灾延续时间按3小时计,但该规范及《建 规》中均无“综合楼”的定义,如何界定综合楼?

答:综合楼:由二种及二种以上用途的楼层组成的公共建筑。根据《建规》第1.0.4条条 文解析,建筑内有几种用途判定标准为:看不同使用性质的房间是否属于为同一用途服务的配 套用房,若是就可以认定为同一用途,否则为另一用途。按《水消规》第3.6.2条,多层综合 楼火灾延续时间为2小时,高层综合楼火灾延续时间为3小时。

2.5、《水消规》3.5.2条注3当一座多层建筑有多种使用功能时,室内消火 栓设计流量应分别按本表中不同功能计算,且应取最大值”。请问如下建筑单体 的室内消火栓系统设计水量的确定是否正确:

2.5.1、假设有一栋高度22米的住宅楼:一层是层高5米的商业,面积800平方 米,即体积V=4000立方米;二层以上是住宅,住宅楼层总高度17米。单独按首层 商业计,体积小于5000可不设消火栓;单独按住宅楼层计,高度小于21米,可 不设消火栓。是否该栋建筑可不设消火栓?

答:本项目属商业与住宅合建建筑。对于本案例,若商业分隔较小,可定性为商业网点, 则该项目为住宅建筑,由于其建筑高度>21米,根据《建规》第8.2.1条第2款应设室内消火 栓。如果首层超出商业网点规模,可拆分为住宅及非住宅两部份计算室内消防水量并取大值。 按《建规》第5.1.1条,非住宅部分属于“建筑高度不大于24m的其他公共建筑”,根据《建 规》第8.2.1条第3款,非住宅部分可不设室内消火栓。但由于住宅部分需要设消火栓,整栋 建筑均需要设消火栓,室内消防水量按住宅取值。

2.5.2、假设有一栋高度22米的住宅楼:一层是层高5米的商场,面积1200平方 米,即体积V=6000立方米;二层以上是住宅,住宅楼层总高度17米。单独按首层 商业计,体积大于5000需设消火栓,水量15L/S单独按住宅楼层计,高度小


56


21米,可不设消火栓。是否该栋建筑仅首层商业设消火栓即可?

答:本项目属于商业与住宅合建建筑,可拆分为住宅及非住宅两部份计算室内消防水量 并取大值。非住宅(商业)部份按表3.5.2室内消防水量为15L/S。住宅部分由于其建筑高度> 21米,根据《建规》第8.2.1条第2款应设室内消火栓,流量取值为5L/S

2.6、《水消规》3.5.3条:“当建筑物室内设有自动喷水灭火系统、水喷雾灭火 系统、泡沫灭火系统或固定消防炮灭火系统等一种或两种以上自动水灭火系统全 保护时,高层建筑当高度不超过50m且室内消火栓设计流量超过20L/S时,其室 内消火栓设计流量可按本规范表3.5.2减少5L/S多层建筑室内消火栓设计流量 可减少50% ,但不应小于10L/S。”

问:本条中的“全保护”如何判断?若某住宅楼,住宅部分仅设有室内消火 栓系统,地下室部分设有自喷+消火栓系统,该建筑(住宅+地下室)属于自喷全保 护吗?

答:全保护是指整个建筑均设有自动灭火的情况,该建筑地下室设有自喷,但住宅未 设自喷,不算全保护。

2.7、《水消规》3.6.1条,大型住宅小区项目,地块内整体设地下室、地上有多 座住宅塔楼、商业公建等,该项目的室内外消防用水量如何计算?

答:一次消防用水量的计算,当一个系统防护多个建筑或构筑物时,需要以各建筑或 构筑物为单位分别计算消防用水量,取其中的最大者为消防系统的用水量。注意这不等同于 室内最大用水量和室外最大用水量的叠加。本项目属于单座建筑,应计算整座建筑的面积及 体积,按《水消规》3.3.2条建筑物用途、体积、耐火等级确定室外消防用水量。当这些建筑 的面积之和大于500000㎡时,室外消防设计流量应按表3.3.2增加一倍。

本项目属于单座建筑内有多个防护对象或防护区,需要以各防护对象或防护区为单位分 别计算室内消防用水量,取其中的最大者为建筑物的室内消防用水量。注意这不等同于室内 消火栓最大用水量、自动灭火最大用水量、防火分隔或冷却最大用水量的叠加,详见《消防 给水及消火栓系统技术规范》图示第3.6.1条解析。

2.8、大空间智能喷水灭火系统与自动喷水灭火系统合用时,大空间智能喷水灭火 系统消防用水量是否需单独计算?是否水炮系统与喷淋系统用水量进行比较取大 值?

答:应按《水消规》第3.6.1条计算。自动喷水灭火系统与大空间智能灭火系统保护区


域有交叉时应叠加计算。


57


2.9、《水消规》4.2.2条第2款:“市政给水管网应为环状供水”,如近期市政 管网为枝状,远期成环状,设计条件是否可按远期考虑?

答:设计条件只能按市政现状进行考虑。

2.10、《水消规》4.2.2条第3款:“应至少有两条不同的市政给水干管

上......”,如同一侧的同一根市政给水管引入两路,中间加分隔阀,是否为两

路消防供水?

答:同一侧的同一根市政给水管引入两路,中间加分隔阀的情况,不属两路消防供 水。两路供水至少要求两个市政接口来自不同的市政道路。

2.11、《水消规》4.3.6条:请问两格和两座的概念是否为:两格可以共用隔墙 作为池壁,而两座则必须是有分别独立的池壁,不可共用隔墙?

答:是。两格是指可共用隔墙作为池壁,两座则必须是有分别独立的池壁两座池壁紧 贴也可,但建议结构尽量脱开独立,不可共用隔墙。考虑地震、沉降等原因,两座的安全性 高于两格。此外,对于2000m³的水池,仅分为两座1000m³的独立水池即可,水池内不必再 分两格。

2.12、《水消规》4.3.7条:是否所有储存室外消防用水量的消防水池都必须设置 取水口?如果已经设置室外消防加压水泵及稳压设备是否还需要设置取水口?

答:是。对于储存室外消防用水或供消防车取水的消防水池,即使已设置室外消防加 压泵,仍需设消防取水口。

2.13、单栋或多栋建筑,室外消防无法满足两路水源要求时需建消防水池。如只设 室外消防水池及取水口(取水口满足150m保护半径的情况),不再设置室外临时 高压系统,是否可以?

答:该消防水池符合《水消规》4.3.7条要求,取水口数量(一个取水口流量按1015L/S满足室外消火栓设计流量,并且取水口离消防登高场地、消防水泵接合器不大于 40m,可不再设置室外临时高压系统,但建议市政进水管至少设一个室外消火栓。

2.14、《水消规》4.3.9条:消防水池最低水位如何确定?是否高于水泵吸水管 即可?火灾初期水泵启动时,消防泵必须考虑自灌式,那么水池最低水位时,消 防泵是否还需要考虑自灌呢?

答:(1)消防水池的最低水位应根据水泵自灌要求确定,具体参见《消防水泵图示》,一 般高于水泵出水管放气孔。

(2)根据《水消规》5.1.12条规定:消防水泵应采取自灌式吸水,虽然正文中并未明确自


58


灌水位是火灾初期水位还是最低水位,但条文说明中已经提出应保证消防水泵随时启动,因 此,当消防水池处于最低水位时,也应考虑自灌式;具体做法可参见《消防水泵图集》。

2.15、《水消规》4.3.11条:“除可一路消防供水的建筑物外,向高位消防水池 供水的给水管不应少于两条。”

问:超高层的消防转输水箱的转输管、高位消防水箱的进水管也要遵守吗? 答:消防转输水箱的供水管不应少于两条。本条限定的对象是高位消防水池,而非高

位消防水箱,故对于向高位消防水箱供水的生活给水管可设1条。

2.16、《水消规》5.2.2条:消防水箱“应高于其服务的水灭火设施,且最低有 效水位应满足水灭火设施最不利处静水压力,并应符合下列规定:....5.当高位 水箱不能满足本条14款的静压要求时,应设稳压泵。”如何理解?

答:1)高位消防水箱的最低有效水位应高于其服务的水灭火设施,当最低有效水位 不能满足水灭火设施最不利点处的静水压力时,应设置稳压泵;

2)符合《水消规》第6.1.9条第1款的建筑,必须设置高位消防水箱;只有符合《水消 规》第6.1.9条第23款的建筑,可不设高位消防水箱。

2.17、《水消规》 5.4.4条:“临时高压消防给水系统向多栋建筑供水时,消防 水泵接合器应在每座建筑附近就近设置”。距离多少米的接合器可算该建筑设置 了?

答:建筑离水泵接合器不大于40米可以算设置了。

2.18、《水消规》 5.4.4条:“消防水泵接合器应在每座建筑附近就近设置”, 问:(1如果消火栓系统采用减压阀分区,如按分区设水泵接合器则水泵接合器 会很多,此条是否需按规范严格执行?

2如水泵接合器需分区设置,喷淋系统是否设置了减压阀就需在阀后设置水泵 接合器?

3 超过消防车供水高度的建筑,手抬泵或移动泵是否仅需预留接口?无需预留 电量?

答:(1)应按规范严格执行,在消防车供水范围内,每栋每个分区每个消防系统均需设 水泵接合器。

(2)喷淋系统也应按竖向分区设置水泵接合器,避免低区着火的情况下,消防车水泵做无 谓的加压。


(3)是,手抬泵无需预留电量。


59


2.19、《水消规》5.4.6条,超高层住宅建筑要求设手抬泵或移动泵接口,但电 梯厅及前室面积比较小,手抬泵或移动泵怎么设置?是采购备用,还是现场安 装?

答:手抬泵或移动泵设在水泵接合器后即可,确保消防车内水泵经过水泵接合器后, 再进过手抬泵或移动泵串联加压。手抬泵或移动泵由消防队员自带,现场安装。

2.20、室外消防采用临时高压系统,除主泵外是否还要设稳压系统?

答:室外消防管网临时高压系统需要设稳压泵或由高位消防水箱稳压,否则管网系统 会因漏损会转为干式的管网,违反《水消规》第7.1.1条。

2.21、《水消规》6.1.7条:“独立的室外临时高压消防给水系统宜采用稳压泵 维持系统的充水与压力”,可采用高位消防水箱维持系统的压力与充水吗?

答:室外临时高压消防给水系统可采用高位消防水箱稳压,宜独立设置高位消防水 箱,并符合《水消规》第5.2.1条要求。

2.22、减压阀后消防管材如何选?需要考虑减压阀失效吗?

答:减压阀后的管材可按阀后的系统工作压力选择,不考虑减压阀失效时的水压,但 阀后应设安全泄压阀,见《水消规》第6.2.4条第7款。

2.23、《水消规》7.4.6条:“室内消火栓的布置应满足同一平面有2支消防水枪 的2股充实水柱同时达到任何部位的要求...”,

问:是否室内消火栓的布置不必保证每个防火分区同层的任何一点有两股水枪 的充实水柱,而只需满足同层(同一平面)有两股充实水柱即可?

答:室内消火栓布置应满足同层(同一平面)的任何一点有两股水枪的充实水柱到 达。室内消火栓宜按防火分区独立布置,不应跨防火卷帘使用。

2.24、《水消规》7.4.7条第2款,高层住宅消火栓能否设在封闭楼梯间或防烟楼 梯间内?

答:可设在封闭楼梯间或防烟楼梯间内,此消火栓可穿越防火门参与其他部位灭火。 2.25、《水消规》7.4.12条,消火栓栓口动压力不应大于0.5MPa当大于0.7MPa 时必须设置减压装置。问:若栓口动压力为0.50.7MPa是否应设减压装置 呢?

答:消火栓栓口动压力大于0.5MPa时应设减压装置。

2.26、《水消规》7.4.15条,跃层住宅和商业网点的室内消火栓应至少满足一股


60


充实水柱到达室内任何部位,并宜设置在户门附近。 问(1本条与第7.4.6条相矛盾,如何把握? 2跃层住宅如果面积太大,楼层高,只在入户门位置设一个消火栓,充 实水柱无法到达室内任何部位怎么办?

答:1)这种情况下是特例,按第7.4.15条规范执行。

2)建筑专业增加门,或在室内增加消火栓,必须保证一股水柱到达室内任何部 位。

2.27、可以采用双立管双栓吗?

答:根据《水消规》第7.4.2条,规范已经取消双栓,且两个消火栓装在同一个地方会 降低消火栓系统的安全性,除规范另有规定外不建议采用。

2.28、消火栓立管在同层接入双栓,其中一个为电梯前室消火栓,是否可行? 答:根据《水消规》第8.1.6条,室内消火栓系统阀门、管网设置应保证每个防火分区 在检修时至少有1支消防水枪的1股充实水柱到达室内任何部位。如两个消火栓不在同一防火 分区,且不需要互相借用,可以。

2.29、《水消规》8.1.6条,室内消火栓系统当采用水平环网布置时,环网、环网 上阀门应如何设置?接消火栓箱的短管与环网连接处是否需加设阀门? 答:除规范另有规定外,应按《水消规》第8.1.6条执行,室内消火栓系统阀门、管网

设置应保证每个防火分区在检修时至少有1支消防水枪的1股充实水柱到达室内任何部位。消 火栓箱的短管可不设阀门。

2.30、《水消规》9.3.1条:“消防给水系统试验装置处应设置专用排水设施, 排水管径应符合下列规定:1、自动喷水灭火系统等自动水灭火系统末端试水装 置处的排水立管管径,应根据末端试水装置的泄流量确定,并不宜小于DN75 2、报警阀处的排水立管宜为DN100 3、减压阀处的压力试验排水管道直径应根 据减压阀流量确定,但不应小于DN100”

问:除了以上123所指消防给水系统试验装置,还有屋顶试验用消火栓、 大空间智能灭火系统末端试水装置、消防水泵出口泵组流量和压力测试装置,这 些都要设置专用排水设施么?可否排至屋面、接纳地面废水的地漏、卫生器具、 或回流至消防水池?

答:按规范应设专用排水设施。由于消防给水系统试验时,瞬间水量大,因此规定测 试装置处应设专用排水设施,可排至屋面或回流至消防水池。接纳地面废水的地漏和卫生器


61


具,如果能保证及时排放测试排水量,且不影响其使用功能时,可作为测试装置的排水设 施。

2.31、《水消规》9.3.1条第1款,排水立管泄流量是否只能以重力流流态计 算?

答:是的。

2.32、《水消规》11.0.4条,流量开关应设在稳压泵的吸水总管还是在压水管之 后的出水总管?

答:消火栓系统的流量开关宜设在重力出水管上,喷淋系统的流量开关宜设在压水管 之后的出水总管上,可参考《水消规图示》及《喷规图集》。

2.33、超250米高层公建:如在250米处已设置了高位消防水池,250米以上还有5 层建筑(塔尖型),塔尖顶消防水箱容积如何确定?

答:若塔尖下已采用常高压系统,则塔尖楼层可按《水消规》第6.1.13条设置18m³消防 水箱即可。

2.34、消防部门要求250米以上的超高层设双水源,需要在地下室和屋面都备足 全部消防水量,这样的双水源消防系统如何控制?

答:按《加强性技术要求》第十四条及条文说明,地下室和屋面都备足全部消防水 量,但地下消防水也是通过屋面重力系统到室内管网。

2.35、《水消规》中没有“双栓”的条文,也没有“每层单独设水平环时,在环上 每5个消火栓设阀门”的条文,与《地铁防火标准》第7.3.5条第2款及7.3.6条 第3款有矛盾,目前地铁车辆段大多都有上盖物业开发,车辆段建筑也有高层的 区域控制中心综合楼等,应按哪个规范执行?

答:地铁的车站、区间和车辆段等按《地铁防火标准》执行,上盖住宅、公建等按 《水消规》执行,车库按《车库消规》执行。


62


3、《自动喷水灭火系统设计规范》问题解答

3.1、超8米的厂房只能用湿式吗?或者说干式、预作用只适用于净高不超8米的 场所?

答:可以这样理解,第5.0.2条是湿式系统的参数,《喷规》第5.0.10条、第5.0.11条对干 式系统、预作用系统的参数有规定,但仅针对不超过8米的场所。

3.2、最大净空高度超过8m的超级市场采用湿式系统的设计基本参数应按本规范 第5.0.4条和第5.0.5条的规定执行,不可以采用特殊应用喷头?

答:是的,根据《喷规》第5.0.3条规定,不可以采用规范第5.0.6条特殊应用喷头。

3.3、干式系统、预作用系统的充气作用有什么不同?

答:

1)干式系统可充气,充气作用是监测管网系统的严密性。预作用系统也充气,单连 锁作用是监测管网系统的严密性,双连锁还有防误充水作用,平时严禁管道误充水的场所, 比如冷库适合设双连锁预作用系统。

2)启动方式不同,详《喷规》第4.1.3条。

3)双连锁预作用系统作用面积要1.3倍,详《喷规》第5.0.11条。

3.4某个展厅项目设有自喷,既有通透性吊顶(不小于70%),又是双连锁预作用系 统,喷水强度、作用面积、流量如何确定?

答:按《喷规》第5.0.13条,通透性吊顶(不小于70%)场所其喷水强度按本规范规定 值1.3倍。按第5.0.11条,由火灾自动报警系统和充气管道上设置的压力开关控制预作用装置 时,作用面积按本规范规定值1.3倍。系统流量需要按第9.1.3条计算确定。

3.5、《喷规》5.0.4条、 5.0.5条、 5.0.6条设计参数均不同,如何选择?

答:仓库设计要了解火灾危险等级、储存方式、储物高度、最大净空高度、是否发泡 等信息。《喷规》第5.0.4条适用于标准覆盖面积洒水喷头,第5.0.5条适用于早期抑制快速响 应喷头,第5.0.6条适用于仓库型特殊应用喷头。当仓库不适用第5.0.5条、第5.0.6条的限定 时,只能按照第5.0.4条确定设计参数,具体可参照《喷规图集》。

3.6、如最大净空高度或最大储物高度超过《喷规》5.0.5条规定,除遵从《喷规》 5.0.8条在货架内置洒水喷头外,仓库顶板下布置的喷头按哪个条文执行?

答:规范不推荐采用顶板下布置ESFR 喷头十货架内置喷头的布置方式,当在货架内设 喷头时,顶板下布置的喷头应按《喷规》5.0.4条规定执行。


63


3.7、机械车位自动喷水灭火系统设计流量、作用面积、喷水强度等如何确定? 答:机械车库应按《喷规》第5.0.1条确定作用面积及喷水强度,并按第9.1.3条计算顶

板下及车架内喷头的流量之和。

3.8、车架内的侧喷头是否可以采用K=80直立、水平边墙型喷头?喷头最小工作 压力多大? 二层、三层车架内的喷头数量如何计算?

答:1)可采用K=80水平边墙型喷头,喷头最小工作压力不小于0.20MPa;也可采用

K=115水平边墙型喷头,喷头最小工作压力不小于0.10MPa

2)参照《喷规》第5.0.8条及《自动喷水灭火系统设计手册》第4.12.2节,可按两层车 架内喷头6个,三层车架内喷头12个计算。

3.9、《喷规》第5.0.2条,保护高度8~12m的喷头参数取消了,用什么喷头? 答:采用K115喷头或非仓库特殊应用喷头,详《喷规》表6.1.1

3.10、是否同一场所既可以采用普通喷头,又可以采用扩大覆盖面积喷头,只要喷 头响应时间(RTI相同即可?

答:是的。

3.11、《喷规》确定的喷水强度1214151616.51818.520.52224.528.532.534.5是否与特定的喷头关联?K=161202242363的大流量喷头 如何应用?

答:喷头按《喷规》第5.0.4条、第5.0.5条、第5.0.6条、第6.1.1条选用,喷水强度24.5以 上应采用K=161及以上喷头,喷水强度32.5应采用K=242363喷头。

3.12、住宅设喷淋要采用家用喷头吗?

答:家用喷头是适用于住宅建筑和非住宅类居住建筑,具有独特的喷洒性能和布水特 点的一种快速响应洒水喷头,住宅、宿舍、公寓等建筑建议采用家用喷头。

3.13、车库4.0m~4.2m井字梁,可否设1个扩大覆盖面积洒水喷头?

答:可以。按《喷规》第7.1.4条: 直立型、下垂型扩大覆盖面积洒水喷头应采用正方 形布置,其布置间距不应大于4.2m,且不应小于2.4m

3.14、通透格栅的孔隙率小于70%是否上下层均设喷头?要考虑集热吗? 答:如通透格栅天花内有可燃物,净空大于800mm,要设上下层喷头。通透格栅下层 喷头要设挡水板。

3.15、防护冷却水幕和防护冷却系统均可用于冷却防火卷帘和防火玻璃墙等防火


64


分隔设施,在设计中如何选用?


答:1)按《喷规》第5.0.14条、第5.0.15条,防护冷却水幕为开式系统,不限制喷水 点安装高度。防护冷却系统为闭式系统,喷头设置高度不应超过8m,系统应独立设置。

2)两者设计流量计算方法不同,防护冷却水幕设计流量计算见《喷规》第9.1.3条, 防护冷却系统设计流量计算见《喷规》第9.1.4条。

3.16、保护玻璃的防护冷却喷头是否要考虑集热?能否设集热罩?

答:闭式喷头要考虑集热,喷头安装高度不超8米,喷头与顶板距离按《喷规》第

7.1.15条要求。按《喷规》第7.1.10条,仅在货架和排管的孔洞、缝隙上方设挡水板,不应采 用挡水板作为辅助喷头启动的方式。

3.17、报警阀可承受工作压力是1.6MPa根据《水消规》第6.2.1条第3款自动 喷水灭火系统报警阀处的工作压力大于 1.6MPa 或者喷头处的工作压力大于 1.20MPa应分区供水, 按《喷规》配水管道的工作压力不应大于1.2MPa那么报 警阀后管道允许最大压力是1.60MPa或是1.20MPa

答:按《水消规》第6.2.1条,喷淋配水主管工作压力不大于1.6MPa,喷头工作压力不 大于1.2MPa

3.18、自动喷水灭火系统的稳压泵设计压力按《水消规》第5.3.3条和《消防给水 稳压设备选用与安装图集》执行,仅维持准工作状态的静水压力大于0.15MPa即 可,无需大于主泵设计压力?

答:是的,按《水消规》第5.3.3条确定。

3.19、建筑物内存在不同的危险等级,自动喷水灭火系统设计流量有30L/S60L/S 的不同工况且分别设置湿式报警阀,这时稳压泵设计流量该如何合理取值? 答:按《水消规》第5.3.2条,满足系统正常泄漏量和系统自动启动流量的要求,可按 《消防给水稳压设备选用与安装图集》执行。

3.20、住宅建筑地下室自行车库设自动喷水灭火系统按哪个危险等级? 答:建议按中危险级I级设计。

3.21、《喷规》8.0.6条:“系统中直径等于或大于100mm的管道,应分段采用法兰 或沟槽式连接件(卡箍)连接。”,是否喷淋管径小于100mm的喷淋管道可采用螺纹 连接,而不需卡箍连接?

答:是的,按《喷规》8.0.6条执行。


65


4、人防、车库问题解答

4.1、防爆波阀门与1.0MPa以上铜芯闸阀各用在什么地方?消防系统需要采用防 爆波阀门吗?

答:按《人防地下室规范》第6.2.13条,水消防系统应采用1.0MPa以上铜芯或不锈钢芯 闸阀,不应采用防爆波阀门。

4.2、人防区内哪些区域需要设置自动喷水灭火系统?

答:根据《人防规范》第3.1.14条,平战结合的人防工程应按平时使用功能设置自动喷 水灭火系统;独立建造的人防工程应按《人防规范》第7.2.2条、第7.2.3条设置自动喷水灭火 系统。

4.3、人防工程消防排水按消防设计流量的80计算,按单独防护单元还是整体地 下室考虑?非人防地下室是否参照人防地下室设计?

答:当消防废水可以在地下室漫流时,应按整体地下室计算消防排水量;当消防废水 不可以在地下室漫流时,应按地下室积水区域计算消防排水量;当地下室不允许积水时,消 防排水按消防设计流量的100%计算。非人防地下室参照人防地下室设计。

4.4、人防建筑是否应按《水消规》计算室内消火栓水量?对于地下室平时为车库 的平战结合人防地下室,室内消火栓水量按车库取值还是人防建筑取值?

答:是。根据《水消规》第3.5.2条注3,应按车库、人防建筑分别计算消火栓用水量并 取大值。

4.5、地下室车库是否需要设泡沫-水喷淋?泡沫-水喷淋的作用面积、喷水强度按 多大考虑?

答:按《车库消规》第7.2.3条,车库宜设泡沫-水喷淋,泡沫-水喷淋的作用面积为465 平方,喷水强度不小于6.5L/min.m2

4.6、室外设充电桩的停车场除室外消火栓外,还需要设什么措施保护?

答:应按《灭火器规》第4.2.2条、《电动汽车充电基础设施建设技术规程》第4.9.17条 配置手提灭火器及推车式灭火器。

4.7、设有充电桩的地下室车库,消火栓系统和泡沫-水喷淋系统是否应单独设置环 网和水泵接合器?

答:按《电动汽车充电基础设施建设技术规程》第4.9.15条第2款,室内消火栓系统需


要单独设置环网及水泵接合器。


66


5、其他问题解答

5.1、高层实体样板房设置楼层所在高度或体积达到需设置消火栓系统的条件 时,由于这个阶段现场通常不具备消防供水条件,怎么处理?

答:应按《建设工程施工现场消防安全技术规范》GB 50720-20115.3节执行。

5.2、对于装修项目,在不改动原建筑性质、防火分区、分隔等的情况下,室内消 火栓、喷淋系统是否需按新规范执行?消防系统控制方式、消防水池容积、高位消 防水箱容积、各消防系统设计流量等是否需按新规范执行?

答:按《水消规》1.0.2条,符合以下条件的装修设计,可以按原规范执行:

1)该建筑符合当时消防设计规范并通过消防验收;

2)原建筑使用功能、用途不变;

3)没有扩建工程。

如室内消火栓、喷淋系统按新规范执行,则控制方式、消防贮水、设计流量等参数需按 新规范执行。


67


六、电气现有规范疑难点

1、规范之间矛盾问题解答

1.1、广东省标准《消防安全疏散标志设计、施工及验收规范》(DBJ/T15-42-2005) 与《建规》、《应急照明标准》相矛盾时,如何处理?

答:按《建规》 《应急照明标准》执行。

1.2、《民规》中与建筑防火和消防相关的条款,与现行新版防火规范《建规》、《火 规》、《防排烟标准》、《应急照明标准》等相矛盾时,如何处理?

答:均按现行新版规范执行,《民规》有规定但现行新版规范未规定的条款,按《民 规》执行。

1.3、《建规》、《民规》、《应急照明标准》均对消防应急照明和疏散指示系统的供电 提出了要求,但要求不一致,如何处理?

答:按《应急照明标准》执行。


68


2、《建筑设计防火规范》问题解答

2.1、大型项目地下室设置多台柴油发电机组,如果设置2个或多个柴油发电机房, 是否可以按每个机房储油间的总储存量不大于1m3设计?是否可以在室内、但独立 于柴油发电机房的其它位置分设多个储油间,每个储油间的储油量不超过 1m3? (《建规》第5.4.13条)

答:按《建规》第5.4.13条第4款规定,机房内设置储油间时,其总储存量不应大于1 m3。当设置多个柴油发电机房,可按每个机房内储油间的总储存量不应大于1 m3设计。离开 柴油发电机房区域不允许单独设置储油间。

2.2、通风、空气调节机房和变配电房开向建筑内的门应采用甲级防火门,该 条文与供电部门变配电房应采用通风门的要求相矛盾,如何处理?(《建规》第 6.2.7条)

答:按《建规》执行。

2.3、消防电梯轿厢内部应设置专用消防对讲电话,是否可用电梯五方对讲的轿厢 分机?(《建规》第7.3.7条、《火规》第4.7.2条)

答:当电梯五方对讲系统主机设置在消防控制室内,且相关通信线路满足《火规》第 11.2.2条规定时,可用电梯五方对讲的轿厢分机替代消防电梯轿厢内部专用消防对讲电话使 用。

2.4、消防控制室不应设置在电磁场干扰较强及其他可能影响消防控制设备正常工 作的房间附近,如何理解?(《建规》第8.1.7条)

2.4.1、电磁场干扰较强的房间是指哪些房间? 答:指变压器室、高低压配电房、柴油发电机房等。

2.4.2、其他可能影响消防控制设备正常工作的房间是指哪些房间? 答:指锅炉房、空调主机房、水泵房等大型机房。

2.4.3、如何理解附近?

答:指正上方、正下方或相贴邻。

2.5、“火灾自动报警系统”是否指包括火灾探测器、手动火灾报警按钮、火灾声 光警报器、消防应急广播、消防专用电话、消防控制室图形显示装置、火灾报警 控制器、消防联动控制器等完整的系统?还是可由其中一部份组成或是火灾自动 报警系统的子系统?(《建规》第8.4.1条)


69


答:条文中第1~12款指定的场所的建筑应设置完整的火灾自动报警系统。对于第13

款,指满足该场所或部位的消防联动控制的需求,能发出火灾警报的报警装置,而不一定要


设置完整的火灾自动报警系统。

2.6、社区活动中心,只有局部一~二间标明为“老年人活动室”,是否需要设置 火灾自动报警系统?(《建规》第8.4.1条)

答:可不设置。按《老年人照料设施建筑设计标准》JGJ450-20182.0.1条规定,“老年 人照料设施”指为老年人提供集中照料服务的设施,是老年人全日照料设施和老年人日间照 料设施的统称。老年大学、老年人活动室、老年人住宅不属于老年人照料设施。

2.7、当一、二类高层住宅建筑塔楼公共部位按规范需设置火灾自动报警系统 时,住宅塔楼的商业服务网点、配套用房等是否均需设置火灾自动报警系统?

答:住宅塔楼的商业服务网点、配套用房按高层住宅建筑的公共部位的要求,需设置火 灾自动报警系统。

2.8、消防用电设备应采用“专用的供电回路”如何理解?(《建规》第10.1.6 条)

答:当本建筑内设置变电所时,专用的供电回路应从低压配电房引出配电线路;住宅 建筑按供电部门要求,如需设置用户低压房时,住宅建筑的消防电梯、应急照明等专用的供 电回路可从用户低压房引出配电线路。当本建筑内未设置变电所时,专用的供电回路应从低 压进线配电间引出配电线路。

2.9、消防配电干线宜按防火分区划分,消防配电支线“不宜”穿越防火分区。 多个防火分区消防用电共用一个消防总配电箱放射式配电,是否满足《建规》第 10.1.7条规定?

答:满足。消防总配电箱放射式至各防火分区消防设备的配电线路属于配电干线,并 已按防火分区划分。

2.10、柴油机消防水泵是否可采用单路电源供电,不设双回路末端切换?(《建 规》第10.1.8条)

答:柴油机消防水泵已自带备用电源,可采用单回路专线供电,不设双回路末端切 换。

2.11、按《民规》要求,消防水泵、防排烟设备的持续供电时间要求为3小时, 地下车库采用耐火电缆穿管加刷防火漆(耐火1.5小时)是否满足要求?(《民


70


规》第13.9.13条、《建规》第10.1.10条)


答:目前阶段无相关实验数据支持,不认可此做法。

2.12、火灾时连续供电的时间如何确定?(《建规》第10.1.10条)

答:火灾时连续供电的时间应满足各类消防用电设备在火灾发生期间需持续工作时间 的要求。

2.13、《建规》第10.1.10条第2款:暗敷时,应穿管并应敷设在不燃性结构内且 保护层厚度不应小于30mm。此处只是要求穿管暗敷,并未要求必须穿金属管。但 是该条的条文说明要求:暗敷设时,配电线路穿金属管并敷设在保护层厚度达到 30mm以上的结构内。是否暗敷也要求采用穿金属管?

答:消防应急照明和疏散指示系统暗敷管线按《应急照明标准》第4.3.1条规定执行, 其余消防设备暗敷管线按《建规》第10.1.10条的条文说明要求穿金属管敷设。

2.14、消防配电线路与其他配电线路敷设在低压配电房的同一电缆沟内,且消防 配电线路采用矿物绝缘类不燃性电缆,是否需要敷设在电缆沟的两侧?(《建 规》第10.1.10条第3款)

答:考虑到低压配电房发生火灾概率较低,且配电柜在制造标准中无法给出耐火时 间,如果电房发生火灾,设备的损坏程度远高于耐火电缆,变配电所内电缆沟敷设可不分设 在两侧。

2.15、强、弱电井的照明是否需要设置备用照明?(《建规》第10.3.3条、《应急 照明标准》第3.8.1条)

答:不需要。强、弱电井属于无人值守的场所。


71


3、《火灾自动报警系统设计规范》问题解答

3.1、消防水泵、防排烟风机等消防设备是否可采用软启动方式?


答:否。软启动器与变频器类似,均包含电力电子元器件,为了保证消防水泵、防排烟 风机等消防设备的运行可靠性,不允许采用软启动方式。

3.2、消防稳压泵、室外消防水泵是否需要在消防控制室设置手动直接控制装置? (《火规》第4.1.4条)

答:消防稳压泵不属于《火规》第4.1.4条中的消防水泵,消防稳压泵可不设置。室外消 防水泵应在消防控制室设置手动直接控制装置。

3.3、未设置火灾自动报警系统,但设置了消火栓的建筑,是否可不设置消火栓按 钮直接启泵和火灾声光警报器?(《火规》第4.3.1条)

答:按《火规》第4.3.1条的条文说明,应设置消火栓按钮直接启泵,宜设置火灾声光警 报器。

3.4、《火规》第6.1.4条第1款:设在无人值班场所的区域报警控制器,条件之一 是本区域内无需要手动控制的消防联动设备,此处消防联动设备指哪些设备?

答:按《火规》第4.1.4条规定,手动控制的消防联动设备是指消防水泵、防烟和排烟风 机。

3.5、报警总线兼有联动控制功能,是否需要采用耐火线?

答:按《火规》第11.2.2条规定,消防联动控制线应采用耐火铜芯电线电缆,故当报警 总线兼有联动控制功能时,应采用耐火线。

3.6、《火规》中增加了防火门监控系统的设计要求,但并无相关规范说明哪些类型 建筑需要设置该系统?

答:防火门监控系统属于消防联动控制设计的内容,设置集中报警系统或控制中心报警 系统的建筑应设置防火门监控系统。


72


4、《消防应急照明和疏散指示系统技术标准》问题解答

4.1、《应急照明标准》第3.1.2条:设置消防控制室的场所是否指设置消防控制室 的那栋建筑?

答:否。设置消防控制室的场所是指消防控制室服务于设有火灾自动报警系统的建筑。 4.2、《应急照明标准》第3.2.1条:

4.2.1、第43):除住宅建筑外,如丙类仓库、汽车库等采用非集中控制型切 断电源点亮时,距地8米以下的灯具是否可选择自带电源B型灯具?

答:按《应急照明标准》执行,除住宅建筑外均不可以。

4.2.2、第6款:高度是指室内净高还是标志灯设置高度?正文与条文解释不一 致,是否应按第4.5.11条的第3款执行?

答:按第4.5.11条第3款执行,指标志灯的安装高度。

4.3、《应急照明标准》第3.2.4条第5款:当按照本标准第3.6.6条规定设计时, 即采用集中控制型时,第1款~第4款规定的场所,持续工作时间应分别增加设计 文件规定的灯具持续应急点亮时间。灯具持续应急点亮时间如何确定?

答:按《应急照明标准》第3.6.6条规定,在非火灾状态下,灯具持续应急点亮时间不应超 过0.5h。非火灾点亮时间建议建筑高度大于54m,但不大于100m的住宅建筑可选15min,一 类高层公共建筑、建筑高度大于100m的住宅建筑及人员密集场所可选30 min,其他可选10min4.4、《应急照明标准》第3.2.9条:

4.4.1、汽车库、自行车库等场所疏散指示标志是否可吊装?

答:按《车库消规》第9.0.5条规定,疏散指示标志宜设置在疏散通道及其转角处,且距 地面高度1m以下的墙面上。当疏散通道有墙或柱,且没有遮挡时,疏散指示标志应设置在墙 或柱上,灯具上沿距地面高度1m以下;当疏散通道虽有墙或柱,但1米以下被遮挡 ,或应 安装标志灯位处无墙或柱时,疏散指示标志可高位安装。

4.4.2、第3款: “保持视觉连续的方向标志灯”是否可按《建规》第10.3.6 条选择蓄光疏散指示标志?

答:不可以。按《应急照明标准》第3.2.1条第2款规定,不应采用蓄光型指示标志代替 标志灯。

4.5、《应急照明标准》第4.5.5条:自带电源型灯具的非集中控制型系统,允许用 插头与插座连接,是否与第3.3.2条有矛盾?


73


答:否。第4.5.5条采用插座为专用插座,灯具插头与插座之间需采用专用工具方可拆卸

的连接方式连接。目前市场上如无专用插座产品,灯具应直接接入电源,严禁通过普通插座接


入电源。

4.6、《应急照明标准》第3.3.7条:

4.6.1、第31应急照明配电箱采用专用的供电回路,采用不同层或不同防 火分区的消防配电箱放射式供电,是否满足要求?

答:满足。应急照明配电箱的供电已满足消防用电设备供电要求。同理,第3.3.8条第31)也可按此执行。

4.6.2、第32):非集中控制型系统中,应急照明配电箱可从正常照明配电 箱供电”,此做法与《建规》第10.1.6条“消防用电设备应采用专用的供电回路” 有矛盾,如何处理?

答:按《应急照明标准》执行,非集中控制型系统可从正常照明配电箱供电,也可由低 压配电房采用专用的供电回路。同理,第3.3.8条第32)也可按此执行。

4.6.3、第42):沿电气竖井垂直方向为不同楼层的灯具供电时,应急照明 配电箱的每个输出回路在公共建筑中的供电范围不宜超过8层,在住宅建筑的供 电范围不宜超过18层”,与第3.3.3条按防火分区设置配电回路有矛盾,如何处 理?

答:电气竖井与其他场所之间设置了有效的防火隔离措施,配电回路沿电气竖井垂直方 向为不同楼层的灯具供电时,可不算跨越防火分区。除此之外,同一配电回路不能穿越不同的 防火分区为相应防火分区内的灯具供电。同理,第3.3.8条第42)也可按此执行。

4.7、《应急照明标准》第3.4.8条: 集中控制系统集中电源或应急照明配电箱应

按灯具配电回路设置灯具通信回路,两线制或控制到回路的消防应急照明和疏散 指示系统方案是否不能采用?

答:两线制方案是电源线与通信线共用,满足了按灯具配电回路设置灯具通信回路的要 求,可采用两线制方案。控制到回路的方案未按灯具配电回路设置灯具通信回路,不能采用。 4.8、设置火灾备用照明场所是否需要设置自带蓄电池或集中蓄电池的灯具作为电 源转换时的过渡照明?

答:按《应急照明标准》第3.8.1条规定,设置火灾备用照明场所应同时设置疏散照明和 疏散指示标志灯,可利用疏散照明兼作电源转换时的过渡照明。


74


4.9、《应急照明标准》第4.3.1条:“槽盒”是否特指“金属槽盒”?


答:指“金属槽盒”。消防应急照明和疏散指示系统线路明敷时,应满足《建规》第10.1.10 条第1款规定。

4.10、《应急照明标准》第4.3.3条:对管路暗敷提出了保护层要求,对明敷的管 路是否应按《建规》第10.1.10条采取防火保护措施?

答:是。消防应急照明和疏散指示系统线路明敷时,应满足《建规》第10.1.10条第1款 规定。

4.11、《应急照明标准》、《建规》、《民规》三本规范中对个别场所的疏散照明的地 面水平最低照度要求不一致时如何处理?如:按《应急照明标准》,疏散走道、疏 散通道,疏散照明地面水平最低照度应不低于1lx ;按《民规》,地下疏散区域的 疏散照明的地面水平最低照度不应低于5lx。那么,对于地下车库是按1lx,还是 5lx设计?

答:按《应急照明标准》执行。当其他特殊建筑专有电气设计规范如《教育建筑电气设 计规范》JGJ310-2013、《医疗建筑电气设计规范》JGJ312-2013等,提出疏散照明的地面水平最 低照度更高要求时,应按更高要求规范执行。


75


5、《建筑防烟排烟系统技术标准》问题解答

5.1、《防排烟标准》第5.1.2条、第5.2.2条第4款规定:常闭加压送风口与加压 送风机、排烟阀(口)与排烟风机/补风机的联动如何设置?


答:以《火规》的相关规定为准执行。即联动可采用火灾自动报警系统的模块控制,可不 设置直接连锁的“硬线控制”。

5.2、《防排烟标准》第5.1.4条:机械加压送风系统测压装置及风压调节措施的设 计分工界面如何界定?

答: 由空调专业确定是否需要电气专业设计。如需要电气专业负责设计,由空调专业提

资,明确加压送风机、常闭加压送风口、泄压电动阀、测压点等设备的具体位置。

5.3、《防排烟标准》第5.2.2条第3款:“排烟防火阀在280时应自行关闭,并 应连锁关闭排烟风机和补风机”中的“排烟防火阀”指的是哪个位置的阀?

答:此处的排烟防火阀是指排烟风机入口处的总管上设置的 280℃排烟防火阀,可按照 《防排烟标准》第4.4.6条、《火规》第4.5.5条和《火规图示》设计。排烟风机与补风机一一 对应设置,可连锁关闭相应的风机。


76


6、其他规范方面问题解答

6.1、民用建筑的柴油发电机房是否按照爆炸危险环境设计?


答: 民用建筑的柴油发电机房不属于爆炸危险场所,可不按爆炸危险环境设计。

6.2、厨房的事故风机、变配电所气体灭火的事后风机是否属于消防设备?如何供 电?

答:事故风机、事后风机发生火灾时不需要工作,不属于消防设备。应按事故风机、事后 风机的负荷分级供电,事故风机、事后风机的负荷分级可参照该项目的消防设备负荷级别。 6.3、消防排水的潜水泵是否设置剩余电流保护器?

答: 除消防电梯井的潜水泵外,均应设置剩余电流保护器。

6.4、消防设备配电干线过负荷保护的如何设置?

答:消防设备配电干线可选用复式脱扣器的断路器,但其长延时脱扣器整定值应大于该 配电干线所带最大一台消防设备额定电流的1.5~2倍及其他消防负荷的计算电流之和,或带过 载报警功能的断路器等。

6.5、《20kV及以下变电所设计规范》6 2 6条的”安全出口”,是否需满足《建 规》中“安全出口”的要求?

答: 不需要。配电房设置的出口是考虑运行人员能迅速离开事故现场,以及救援人员能 接近事故现场。而《建规》中安全出口是供人员安全疏散用的楼梯间和室外楼梯的出入口或 直通室内外安全区域的出口。按《民用建筑设计统一标准》GB 50352-20198.3.1条及条文说 明,变电所的门为疏散门,非安全出口。且配电室长度大于7m时,疏散门可以只设置1个, 配电室的出入口门应设置2个,一个可为疏散门,一个可为内部门。


77


七、暖通现有规范疑难点

1、《建筑设计防火规范》问题解答

1.1、建筑内设的应急发电机房、燃油/燃气锅炉房是否按可燃物较多的情况看待, 在不设置自动气体灭火系统时,是否必须执行《建规》中8.5.38.5.4设置排 烟系统。

答:应按可燃物较多情况来看待,当采用气体灭火时,设置事后排风系统,未采用气体 灭火时,按《建规》8.5.3条和8.5.4条执行。

1.2、建筑内设的蓄电池室一般被看作易燃爆房间,是否必须设置事故通风系统。 另外,其室内设置了防爆空调,是否可不执行《建规》中9.1.4有关不得使用室内 循环空气的规定,请明确。

答:有散发有害气体、可燃爆炸气体时,应设置事故通风系统。应执行《建规》中 9.1.4要求,不得使用室内循环空气。

1.3、走道长度如何计算?是算最远点至疏散楼梯的长度还是算整个走道的长 度?

答:整个走道的长度。

1.4、房间能否向外走廊(上面有板,侧面敞开)开窗排烟?

答:如建筑认定为室外空间,则可以。其余特例按不同情况特殊分析(以不影响人员 疏散为原则)。

条文解释:当外走廊兼疏散走道功能,考虑排出的烟气可能影响疏散,则不应利用该外窗 进行排烟;当外走廊不兼疏散走道功能,如类似阳台功能时,则可利用该外窗进行排烟。 1.5、走道长度的如何确定;按《建规》第8.5.3条,建筑内长度大于20m的疏散 走道应设排烟设施;有设计将超过20m的走道设防火门分隔成不超过20m的内走道 而不设排烟设施是否可行?部分走道连接大堂等空间,其走道长度是否应包括大 堂的长度?

答:按《建规》8.5.3条执行,长度超20m走道需设置,否则可不用设置排烟设施。走道 连接大堂等空间时,走道长度不包括大堂的长度,应分别考虑排烟设施。

1.6、按《建规》第9.3.9条,排除有燃烧或爆炸危险气体、蒸气和粉尘的排风系 统,排风设备不应布置在地下或半地下建筑(室)内;地下发电机房储油间是否在 此范围?


78


答:地下发电机房储油间不在此范围内。

1.7、地下非机动车库是否必须设置消防排烟系统?需要遵循的设计标准是什么? 可否按照普通汽车库进行设计?

答:应按《建规》 《防排烟标准》要求进行设计,不可按普通汽车库进行设计。

1.8、地上防烟楼梯间被避难层分为上、下两部楼梯间(高度之和小于100m),是 否可以共用一套机械加压送风系统(加压送风量按两部楼梯的计算风量叠加)?如 果不允许,依据的规范条文是什么?

答:独立设置,《建规》第5.5.23条(通向避难层的疏散楼梯应在避难层分隔、同层 错位或上下层断开),被避难层分开的两个防烟楼梯间是各自独立,应分别设置。

1.9、民用建筑项目,空调风管保温是否限制采用难燃B级材料(如橡塑发泡+不 燃铝箔贴面)?

答:按《建规》中第9.3.15执行,即设备和风管的绝热材料、用于加湿器的加湿材料、 消声材料及其粘结剂,宜采用不燃材料,确有困难时,可采用难燃材料。

1.10、根据《建规》第8.5.4条,地上无窗房间,当一个房间建筑面积大于 50m2且经常有人停留或可燃物较多时,应设置排烟设施。请问建筑面积大于 50m2、小于100m2的地上房间,采用玻璃幕墙,此类房间是否需设置排烟设施。

答:房间内如果安装了能够被击破、破拆的窗户、外部人员可通过该窗户观察到房间 内部的情况,则该房间可不被认定为无窗房间,当地上房间建筑面积大于50m2、小于100m2 时,设置此类外窗/玻璃幕墙的场所可不设置排烟设施。当采用玻璃幕墙时,可破拆区域应设 置相应标识。

1.11、根据《建规》第9.3.2厂房内有爆炸危险场所的排风管道,严禁穿过防 火墙和有爆炸危险的房间隔墙。请问民用建筑中,厨房、锅炉房事故排风管道是 否属于此范围,不可穿越防火分区、防火墙?如按此考虑,厨房、锅炉房事故排 风风管难以布置。

答:民用建筑中厨房、锅炉房等事故排风管道不属于此范围。

1.12、在高层办公楼局部装修改造项目中,首层沿街商铺只有外门无外窗,如加 设机械排烟系统,由于涉及外立面开百叶及消防配电重新拉线,对于租户很难实 现,如果外门到房内任一点距离不超过30m是否可以按自然排烟来判断。

答:当沿街商铺利用外门进行排烟时,应满足《防排烟标准》自然排烟相关要求,包 括防烟分区划分要求、清晰高度要求、排烟口面积及高度要求等等。


79


2、《建筑防烟排烟系统技术标准》问题解答

2.1、《防排烟标准》第3.1.6条,地下、半地下建筑的封闭楼梯间不与地上楼梯间 共用且仅为一层时,可不设置机械加压送风系统;是否意味如果地上、地下共用或 地下层数大于一层时,则应该设置机械加压送风系统?

答:对于地下、半地下建筑(室)的封闭楼梯间,当其不与地上楼梯间共用且地下仅 为一层时,可不设置机械加压送风系统,但首层应设置有效面积不小于12m2的可开启外窗 或直通室外的疏散门。

对于其他情况下的封闭楼梯间、防烟楼梯间,含地上、地下楼梯间,如采用自然通风, 应满足《防排烟标准》第3.2.1要求。

2.2、《防排烟标准》中 4.3.3-2条“自然排烟窗(口)的开启形式应有利于火灾 烟气的排出;”所指的:有利于火灾烟气的排出的排烟窗(口)的开启形式是指何 种窗,大于200m²的排烟房间可否使用上悬窗,其开窗角度如何设定。

答:大于200m²的排烟房间,其设置在外墙上的单开式自动排烟窗宜采用下悬外开式, 当采用上悬窗时,其有效面积计算按开启外窗两侧扇形面积之和,且有效面积取值不应大于 外窗面积。

2.3、《防排烟标准》中 4.4.2条“建筑高度超过 50 m 的公共建筑和建筑高度超 过100m的住宅,其排烟系统应竖向分段独立设置。”所指的建筑高度是否应改为 “竖向排烟系统的作用区间高度”,以减少歧义。

答:广东省工程勘察设计行业协会关于印发《防排烟标准》问题释疑的通知中,问题 26已有说明,指系统服务区间的高度。

条文解释:服务区间高度,对于防烟系统,指需要疏散的楼层竖向总高度(各疏散楼层 的底层地面至顶层顶板);对于排烟系统指所负担的排烟楼层竖向总高度(各排烟楼层的底 层地面至顶层顶板)。

2.4、一层高3.5m的房间,局部上空(上空部分面积<100m2),上空部分层高7m 则该房间是统一按7m层高计算排烟还是用挡烟垂壁将上空部分隔开分别计算排 烟?如果隔开分别计算排烟,上空部分<100m2是否不用考虑排烟?

答:可按净高不同划分不同防烟分区设计排烟,或者按净高大的划分防烟分区,并同 时满足2个净高对防烟分区面积、长边长度等的要求。通过档烟垂壁隔开的面积<100m2的上 空部分,也需考虑排烟。


80


2.5、按《防排烟标准》第4.3.4条,厂房、仓库的自然排烟窗(口)设置在外墙 时,应沿建筑物的两条对边均匀设置;两条对边自然排烟窗(口)需均匀设置是指 每个防火分区还是防烟分区,部分工业建筑两条对边均设有排烟窗,但因排烟口距 离不满足上述规范第4.3.2条要求,设计采用挡烟垂壁划分不同的防烟分区,靠 窗的防烟分区采用自然排烟,内区距离排烟窗较远的采用机械排烟,对于靠窗的防 烟分区只有一侧设有自然排烟口,但对于整个防火分区对流仍存在,是否可行?

答:两条对边需均匀设置自然排烟窗(口)是指每个防火分区;当防火分区内的侧墙 上设置的外窗可形成对流,且需自然排烟的防烟分区满足自然排烟条件时可以。

2.6、埋深10m以内的三层地下室楼梯是否可采用自然排烟?若可以,是否只需要 在首层设置面积不少于2.0m2的可开启外窗(标高没要求)?

答:满足《防排烟标准》第3.2.1要求时可以,即采用自然通风方式的封闭楼梯间、防 烟楼梯间,应在最高部位设置面积不小于1.0m2的可开启外窗或开口;当建筑高度大于10m 时,尚应在楼梯间的外墙上每5层内设置总面积不小于2.0m2的可开启外窗或开口,且布置间 隔不大于3层。

2.7、地下、地上共楼梯间,首层分隔设防火门,可否按国家建筑标准设计图集 《防排烟标准图示》第50页所示,只在地上楼梯间顶部设不小于1m2固定窗?

答:不可以,地下、地上楼梯间应分别设置固定窗。

2.8、通风(空调)风管、排烟管道是否允许穿越建筑内前室(合用前室)、疏散 楼梯间、避难走道?条件限制必须穿越时,需要采取什么措施?

答:建筑高度超250m时,排烟风管不可以穿越楼梯间、(合用)前室,当风管必须穿越 时,应设置土建夹层。

建筑高度小于250m时,当风管必须穿越时,应设置土建夹层;或风管设置耐火保护,其 耐火极限不应低于相应墙体耐火等级,穿越防火墙应设置防火阀(排烟防火阀)。

2.9、《防排烟标准》中3.1.32点“当独立前室、共用前室及合用前室的机械加 压送风口设置在前室的顶部或正对前室入口的墙面时,楼梯间可采用自然通风系 统;当机械加压送风口未设置在前室的顶部或正对前室入口的墙面时,楼梯间应 采用机械加压送风系统。”此处前室机械加压口设置于前室顶部,是否要求加压 口一定位于前室门顶上方?对于多个门的前室(如住宅三合一前室),当楼梯间 自然通风时,前室加压口有无要求设置在每个门上方?如是,则各风口风量如何


81


分配?


答:按《防排烟标准》规范条文,加压口设置在顶部即可,不需设置于前室门顶正上 方。

2.10、《防排烟标准》中3.1.32点“当独立前室、共用前室及合用前室的机械 加压送风口设置在前室的顶部或正对前室入口的墙面时,楼梯间可采用自然通风 系统;……”对建筑高度小于或等于50m的公共建筑、工业建筑和建筑高度小于 或等于100m的住宅建筑,当剪刀梯两部楼梯间分别设置前室,且前室加压设置满 足以上要求时,该剪刀梯是否可采用自然通风。

答:对建筑高度小于或等于50m的公共建筑、工业建筑和建筑高度小于或等于100m的 住宅建筑,当剪刀梯两部楼梯间分别设置前室,且前室加压设置满足以上要求时,该剪刀梯 可以采用自然通风。

2.11、《防排烟标准》中3.4.6中关于门洞风速和疏散门面积,提及“当独立前 室、共用前室或合用前室机械加压送风而楼梯间采用可开启外窗的自然通风系统 时,通向独立前室、共用前室或合用前室疏散门的门洞风速不应小于06A1 Ag1)(ms);A1为楼梯间疏散门的总面积(m2);Ag为前室疏散门的总面积 m2)。”

1、问:此处A1为各层楼梯间所有疏散门总面积还是计算该层楼梯对应的所有 疏散门之和?

2、问:Ag为各层前室所有疏散门总面积还是计算该层前室对应的所有疏散门 之和?

3、问:如为该层前室对应疏散门面积,则对于多个门的住宅前室,参照3.4.6 Ak住宅前室取值,是否为该层前室尺寸最大的一个疏散门的面积?

答:(1)(2)A1Ag均指计算当层的疏散门总面积;

(3)对于住宅多个门的前室,Ag为其中面积最大的门的面积。

2.12、根据《防排烟标准》术语中,排烟阀为平时呈关闭状态,火灾时可手动和 电动启闭,起排烟作用,其组成部件中不包括温感器。根据4.4.10 一个排烟系 统负担多个防烟分区的排烟支管上,应设置排烟防火阀。即排烟支管上需要设置 2个阀门,实现平时常闭、火灾时可手动和电动启闭,以及当烟气温度超过280 时可关断防止烟气蔓延。请问排烟支管上是否可以采用电动排烟防火阀(带


82


280温感,可手动和电动启闭,平时设为常闭)代替以上2个阀门?


答:当所设阀门可满足规范所要求实现的功能时可行。

2.13、《防排烟标准》第3.3.5条第三款,与《人防规范》第6.2.7条不一致,两 个规范要求的进风口和排风口水平距离分别是20m15m要求,垂直布置分别是 6m3m要求,建议统一要求。

答:应同时满足相关规范要求。

2.14、公共建筑、工业建筑中空间净高大于6m的场所,其每个防烟分区排烟量应 根据场所内的热释放速率进行计算确定,且不应小于《防排烟标准》表463 中的数值;部分建筑首层设置入户大堂或门厅,面积大于100m2且高度超过6m 但因面积较小要开足够的面积的自然排烟口较为困难,是否能按只有人员通行而 没有人员停留而不需设置排烟设施呢?

答:不可以,应按《防排烟标准》规范标准设置排烟设施。

2.15、排烟风管耐火极限0.5小时的问题,单纯镀锌风管达不到要求,造价影响 太大,有何经济性做法。

答:按《防排烟标准》规范标准执行。

2.16、关于《防排烟标准》条文4.6.3-34.6.3-4

4.6.3-3条文中的自然排烟要求是两端(侧)都需有2㎡自然排烟窗(口), 对于住宅、宿舍这类层高低、走道宽度窄的建筑,较难以做到,且两侧自然排烟 窗(口)的距离要求不应小于走道的2/3这意味着即使走道中部是敞开的,只 要两端(侧)无开窗/口,也是不满足自然排烟要求的。这类建筑的房间虽然不 需要设置排烟,但事实上房间一般都具备自然排烟条件,不需要通过走道或回廊 排烟。

自然排烟口有效面积计算示例:

假设走道梁高为500mm、净高为2.8m、宽度为2.2m即使把清晰高度以上的 空间全作为自然排烟口(2.8/2-0.5x2.21.98㎡<2㎡。

建议:对于走道或回廊周围的房间,都有自然排烟条件的(即使规范不要求 设置排烟设施),是否按4.6.3-4要求,设置有效面积不小于走道、回廊建筑面积 2%的自然排烟窗(口)更合理?

答:当走道或回廊周围的房间,均有排烟设施时(即具备自然排烟条件,虽然房间面 积小,规范不要求设置排烟设施),走道或回廊可按4.6.3-4要求设置排烟设施。


83


2.17、暖通机房、设备房、电梯机房等外墙上的排(进)风口是否需设置防火


阀?


答:如进排风口为连通室外空间,外墙风口处可不设置防火阀。


84


3、其他规范方面问题解答

3.1、冷库为丙类仓库,占地面积大于1000m2时,是否要求设计排烟系统?

答:按照《冷库设计规范》GB50072-2010管理组于2016126日发布的《冷库排烟设 计解释》,冻结间和冷藏间内不宜设置排烟设施。


85


八、结构现有规范疑难点

1、关于钢筋混凝土梁保护层厚度存在以下疑问:

1.1、该保护层厚度是否指构件最外层钢筋保护层厚度。

答:根据现行《混规》第2.1.18,钢筋的混凝土保护层厚度是指从混凝土表面到钢筋 (包括纵向钢筋、箍筋和分布钢筋)公称直径外边缘之间的最小距离;对后张法预应力筋为 套管或孔道外边缘到混凝土表面的距离。

1.2、耐火等级为一级时,《建规》附表一第四.1条注明梁混凝土保护层厚度为 25mm按现行《混规》第8.2.1条,一类环境时梁混凝土保护层厚度为20mm两 者存在偏差。耐火等级为一级的无钢丝网粉刷层之钢筋混凝土梁,保护层厚度是 否应按防火规范取用。

答:对于钢筋混凝土构件防火保护层厚度以《建规》要求为准。

2、关于钢结构防火做法存在以下疑问:

2.1、《建规》附表一第三.4.6条,采用薄涂型钢结构防火涂料时,表中钢柱耐 火极限最大值为1.5h。是否可以理解为钢构件采用薄涂型防火涂料防护时,最高 耐火极限为1.5h

答:不能这样理解。目前,国内大多数厂家生产的薄涂型钢结构防火涂料的耐火极限 检测结果表明:其耐火极限能达到1.5h以上,因此,应根据具体涂料的种类不同而定(详见 本章节第3.3条)。

2.2、《建规》附表一第四.3条,钢梁采用防火涂料防护时,表中仅给出LGLY 两种防火隔热涂料保护层厚度要求。如设计时仅注明采用符合耐火极限要求的薄 涂型(或厚涂型)防火涂料,是否可以满足要求?

答:可以采用,同时应由材料供应商提供政府相关检测部门出具的材料耐火极限检测 报告,防火涂料厚度应与检测报告相符。

3、补充意见:

3.1、钢结构设计防火等级要求与建筑专业设计说明一致。

3.2、根据建筑防火等级要求(详《建规》表3.2.1和表5.1.2相关规定),确定主要受力构 件等的耐火时间要求。

3.3、防火涂料选型,应根据本工程各主要受力构件的耐火时间要求,选择满足要求的防


86


火涂料。防火涂料的耐火时间应以政府相关检测部门提供的检测报告为准。(建议大于2.0小 时采用厚型,小于等于2.0小时采用薄型)

3.4、当存在有效的其他防火保护措施及通过耐火设计可以降低主要受力构件的耐火时限 要求时,应提供相应的设计说明及计算书。


87