ICS 71. 120;83. 140
G 94
GB/T 26500—2011
Generai technical SPeCifiCatiOil for PiPeS and fittings Iined With Huoroplastics
2011-05-12 发布 2011∙1Q01 实施
2 弓I«• • •«« •««••• ••• •*• *•«««• ••• «• • ■«*«•• *• * «««««• • ∙* ɪ
检验规则....................
标志、包装、运输和贮存
本标准与ASTM F1545-1997(2003年重新确认)《塑料衬里钢管、管件及法兰的要求规范》的一致 性程度为非等效。主要差异如下:
——ASTM F1545标准的塑料衬里材料包括PP和PVDC,本标准不包括PP和PVDCs
——ASTM F1545标准的氣塑料衬里材料总共6种,本标准合并为5种(本标准将ASTM F1545 中两种PVDF合并为一种);
…-ASTM F1545标准中的管道尺寸是英制的,本标准转化为公制,并且进行了圆整,
-ASTM F1545标准中的法兰等级是125磅、15。磅、300磅,本标准转化为中国标准的法兰 等级]
——ASTM F1545标准中的管道公称尺寸为1”〜24”,本标准为25 Inm〜600 mm;
—ASTM F1545标准中的管道制品没有具体的结构尺寸,本标准予以增加;
一一ASTM F1545标准内容包括了测试方法,本标准的测试方法直接引用了化工行业标准的测试 方法。
本标准由中国石油和化学工业联合会提岀。
本标准由全国非金属化工设备标准化技术委员会(SAC/TCI62)归口 β
本标准起草单位:温州赵氟隆有限公司、天华化工机械及自动化研究设计院、温州市氣塑设备制造 厂、温州市超星钢塑复合厂、温州市质量技术监督检测院、温州特种塑料研究所。
本标准主要起草人:赵君、赵炜、陈国龙、张俊科、陈烈、林瑞华、应仁爱、李国林。
1范围
本标准规定了氟塑料衬里钢管、管件的产品分类和结构、材料、设计、要求、试验方法、检验规则及标 志、包装、运输和贮存。
本标准适用于由金属外壳与氟塑料衬里组成的直管与管件制品。氟塑料包括聚四氣乙烯 (PTFE).聚全氟乙丙烯(FEP)、聚偏氟乙烯(PVDF).乙烯和四氟乙烯共聚物(ETFE).可熔性聚四氟乙 烯(PFA)。
本标准适用于设计压力不大于2.5 MPa;使用介质为气体、液化气体、蒸汽或可燃、易爆、有毒、有腐 蚀性、最高工作温度高于或等于标准沸点的液体;且公称尺寸为DN 25 mm〜DN 600 m范围的管道。
本标准也适用于上述介质、工况、直径的耐负压管道。
2规范性引用文件
下列文件中的条款通过本标准的引用而成为本标准的条款。凡是注日期的引用文件,其随后所有 的修订单(不包括勘误的内容)或修订版均不适用于本标准,然而,鼓励根据本标准达成协议的各方研究 是否可使用这些文件的最新版本。凡是不注日期的引用文件,其最新版本适用于本标准。
管道元件DN(公称尺寸)的定义和选用 管道元件PN(公称压力)的定义和选用 输送流体用无缝钢管
通用阀门碳素钢铸件技术条件
钢制对焊无缝管件
钢板制对焊管件
流体输送用不锈钢无缝钢管
模塑用聚四氟乙烯树脂
模塑和挤塑用聚全氟乙丙烯树脂
GB/T 1047—2005
GB/T 1048—2005
GB/T 8163—2008
GB/T 12229—2005
GB/T 12459—2005
GB/T 13401—2005
GB/T 14976—2002
HG/T 2902—1997
HG/T 2904—1997
塑料衬里设备
塑料衬里设备
水压试验方法 电火花试验方法
HG/T 4089
HG/T 4090
HG/T 4091塑料衬里设备耐温试验方法
HG/T 4092塑料衬里设备热胀冷缩试验方法
HG/T 4093塑料衬里设备衬里耐负压试验方法
HG/T 20592—2009钢制管法兰(PN系列)
HG/T 20615—2009 钢制管法兰(ClaSS系列)
ASTM D 3159-2006 改性 ETFE 模压及挤出材料规范(Standard SPeCifiCatiOn for MOdified ET-FE—FiUOrOPOIymer MOlding and EXtrUSiOn MateriaiS)
ASTM D 3222-2005 未改性 PVDF 模压、挤出及喷涂材料规范 EStandard SPeCifiCatiOn for UnmOdified POIy (VinyIidene FIUOride) (PVDF) MOlding EXtrUSiOn and COating Materials]
ASTM D 3307-2006 PFA 模压及挤出材料规范[Standard SPeCifiCatiOn for PerfIUOrOaIkOXy (PFΛ) - FlUOrOCarbOn ReSin MOI(Iing and EXtrUSiOn MatenaISJ 3术语和定义
下列术语和定义适用于本标准。
3. 1
氟塑料衬里钢管、管件 PiPeS and fittings Iined With fluoroplastics
由金属外壳与氟塑料衬里组成的管子与管件制品。管子一般是直管,管件包括弯头、三通、四通、异 径管和法兰盖。
3.2
轴向相对伸长率 axial relative elongation
指衬里在指定高温和室温时轴向长度变化差的绝对值与室温时轴向长度的比值。
4产品分类和结构
4. 1品种规格代号与标记
氟塑料衬里钢管、管件根据使用压力的状况,分为耐正压管和耐负压管,其品种规格代号与标记方 法见表Ie
表1品种规格代号与标记方法
|
产品类型 |
代号 |
____________标记方法____________ | |
|
直管 |
二端固定法兰的直管 |
FP |
PTFE/CSr(V)-FP-公称尺寸DNXL-法兰标准号 |
|
二⅞固定法兰、一癖动法兰 的直管 |
RP |
PTFE/CS-(V)-RP-公称尺寸DNXL-法兰标准号 | |
|
弯头 |
90°弯头 |
NL |
PTFE/CS-(V)-NL-公称尺寸DNX 90气法兰标准号 |
|
45°弯头 |
FL |
PTFE/CS-(V)-FL-公称尺寸DNX45°-法兰标准号 | |
|
三通 |
等径三通 |
ET |
PTFE/CS-(V)-ET-公称尺寸DN-法兰标准号 |
|
异径三通 |
RT |
PTFE/CS-(V)-RT-公称尺寸DNX小端公称尺寸DNI达兰标准号 | |
|
四通 |
等径四通 |
EC |
PTFE/CS-(V)-EC-公称尺寸DN-法兰标准号 |
|
异径四通 |
RC |
PTFE/CS(V)-RC-公称尺寸DNX小端公称尺寸DN「法兰标准号 | |
|
异径管 |
同心异径管 |
CR |
PTFE/CS-(V) CR-公称尺寸DNX小端公称尺寸DN】-法兰标准号 |
|
偏心异径管 |
ER |
PTFE/CS-(V)-ER-公称尺寸DNX小端公称尺寸DN】-法兰标准号 | |
|
法兰盖 |
BL |
PTFE/CS(V)-BL-公称尺寸DN-法兰标准号 | |
IPTFEl [7cs∣ I-(V)I 回両 X Ll ∣-HG∕T XXxH
I L法兰标准号
---------公称尺寸、长度等规格参数(见表1)
----品种:FP.RP-直管;NL-90o弯头JFL-45o弯头; ET-等径三通;RT-异径三通;EC-等径四通; , RC-异径四通;CR-同心异径管;ER-偏心异
径管;BL-法兰盖(见表1) ---V~耐负压管,耐正压管不标注(见表1)
----外壳材料:CS-碳钢;SUS-不锈钢;WCB-铸钢
--------------------------------- 村里材料:PTFE、FEP、PVDF、ETFE、PFA 等 标记示例1: 碳钢外売的聚四氯乙烯衬里、两端固定法兰的耐正压直管,公称尺寸DN为50 mm,长度为2 000 mm,采用 HG/T 20592—2009标准法兰,标记为:
PTFE/CS-FP-DN 50×2000-HG∕T 20592
标记示例2:
铸铜外壳的聚四範乙烯耐负压衬里90°弯头,公称尺寸DN为100 mm,采用HG/T 20615 2009标准法兰,标记为: PTFE/WCBV-NL-DN IOOX9O°-HG∕T 20615
4.2结构形式和主要尺寸
4, 2, 1氟塑料衬里直管的结构形式和主要尺寸见表2.
表2氟塑料衬里直管的结构形式和主要尺寸 单位为毫米
|
200 |
219X6 |
|
250 |
273X6 |
|
300 |
325X7 |
|
350 |
377X8 |
|
400 |
426X9 |
|
450 |
480X9 |
|
500 |
530X9。 |
|
600 |
630×10c |
1 OOOJ 500,
2 000.2 500、
3 000
1 OOoJ 500、
2 000
|
示意图 |
公称尺寸 DN |
常用碳钢钢管 DXTI |
衬里壁厚 t |
优选定尺长度 L |
|
• 25 |
38X3” | |||
|
PL ∖~l~ |
32 |
38X3* | ||
|
.....I.....⅜ |
40 |
48X4 | ||
|
[ "ιi -T 了 卧 _________________________ɪ________________________________ |
50 |
57X3.5 | ||
|
65 |
76X4 | |||
|
— — |
89X4 |
1 OOoJ 500、 | ||
|
— |
2 000,2 500、 | |||
|
WO |
108X4 |
3 000.4 000 | ||
|
两端固定法兰的衬里宜管 | ||||
|
125 |
133X4 | |||
|
150 |
'159X4.5 |
见表8 |
a本表常用碳钢钢管的外径D和壁厚T的耐压等级为1. 6 MPa,其他压力等级的外径D和壁厚T可由购买方与 制造商协商确定。
b衬里后管道实际截面积少于公称尺寸截面积2/3以下或影响介质的流量,往上取高一档的钢管直径.
DN 500以上,的钢外売也可选用钢板焊接卷制。
4. 2. 2氟塑料衬里90°弯头、45°弯头的结构形式和主要尺寸见表3。

4. 2. 3氟塑料衬里等径三通、异径三通的结构形式和主要尺寸见表4。
表4氟塑料衬里等径三通、异径三通的结构形式和主要尺寸 单位为毫米
|
等径三通 |
异径三通 | |||
|
L |
H |
L |
H |
小端公称尺寸DNI |
|
】96 |
98 |
196 |
98 |
20 |
|
216 |
108 |
216 |
108 |
25 |
|
230 |
115 |
230 |
115 |
25.32 |
|
250 |
125 |
250 |
125 |
25,32.40 |
|
274 |
137 |
274 |
137 |
25、32、40、50 |
|
288 |
144 |
288 |
144 |
25、32、40、50、65 |
|
312 |
156 |
312 |
156 |
25、 32、 40、 50、 65、80____________ |
|
346 |
173 |
346 |
173 |
25、32、40、50、65、 80、IOo____________ |
|
382 |
19】 |
382 |
191 |
25、32、40、50、65、 80.100,125 |
|
440 |
220 |
440 |
220 |
32、40、50、65、80、 100、125、150 |
|
514 |
257 |
514 |
257 |
40、50、65、80、100、 125350,200 |
|
570 |
235 |
570 |
285 |
50、 65、 80、 100、 125、150、200、250 |
|
600 |
300 | |||
|
650 |
325 | |||
|
700 |
350 | |||
|
760 |
380 | |||
|
87。 |
435 |
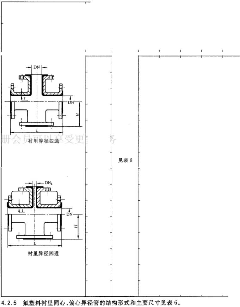
4.2.4氟塑料衬里等径四通、异径四通的结构形式和主要尺寸见表5.
衰5氤塑料村里等径四通、异径四通的结构形式和主要尺寸
単位为毫米
|
示意图 |
公称尺寸 DN |
村里壁厚 |
等径四通 |
异径四通 | |||
|
L |
H |
L |
H |
小端公称尺寸DNl | |||
|
25 |
196 |
98 |
196 |
98 |
20 | ||
|
32 |
216 |
108 |
216 |
108 |
25 | ||
|
40 |
|
50 |
|
65 |
|
80 |
|
100 |
|
150 |
|
200 |
|
250 |
|
300 |
|
350 |
|
400 |
|
450 |
|
500 |
|
600 |
|
230 |
115 |
230 |
115 |
25.32 |
|
250 |
125 |
250 |
125 |
25、32、40 |
|
274 |
137 |
274 |
137 |
25、32、40、50 |
|
288 |
144 |
288 |
144 |
25、32、40、50、65 |
|
312 |
156 |
312 |
156 |
25、32、40、50、 65、80____________ |
|
346 |
173 |
346 |
173 |
25、32、40、50、65、 80、IOo____________ |
|
382 |
191 |
382 |
191 |
25、32、40、50、65、 80 JOOj25 |
|
440 |
220 |
440 |
220 |
32、40、50、65、80、 100、125、150 |
|
514 |
257 |
514 |
257 |
40、50、65、80、100、 125、150、200 |
|
570 |
285 |
570 |
285 |
50、 65、 80、 100、 】25、150、200、250 |
|
600 |
300 | |||
|
650 |
325 | |||
|
700 |
350 | |||
|
760 |
380 | |||
|
870 |
435 |
4.2.6氟塑料衬里法兰盖的结构形式和主要尺寸见表7。
表7氣塑料村里法兰盖的结构形式和主要尺寸 单位为毫米
|
示意图 |
公称尺寸 DN |
衬里壁厚 t |
连接尺寸 | |
|
I |
______-、—、、」_ |
25、32、40、S0、65 80、100、125、150、200、250、 300、350、400、450、500、600 |
见表8 |
见相应标准 |
4.2. 7衬里产品的公称尺寸应符合GB/T 1047-2005,公称压力应符合GB/T 1048-2005的规定.
4.3村里壁厚、翻边面尺寸
氟塑料衬里钢管、管件的衬里壁厚、翻边面尺寸见表8.
表8氟塑料村里钢管、管件的村里壁厚、翻边面厚度、翻边面外圆最小直径单位为毫米
示意图
|
公称尺寸 DN |
缠绕法、松衬法 |
滾塑法、等压法 | ||||
|
t |
ti |
DI |
Dl (浪塑法) |
DI (等压法) | ||
|
25 |
22.0 |
≥1.6 |
>50 |
≥2.5 |
>50 |
>46 |
|
32 |
≥60 |
≥56 | ||||
|
40 |
≥70 |
≥70 |
>66 | |||
|
50 |
285 |
>85 |
≥73 | |||
|
65 |
>110 |
≥3.0 |
>105 |
≥97 | ||
|
80 |
>120 |
≥120 |
≥114 | |||
|
100 . |
22.5 |
≥2.0 |
>145 |
>145 |
≥134 | |
|
125 |
2175 |
>175 |
>164 | |||
|
150 20。 |
≥200 ≥255 |
≥3.5 |
>200 ≥255 |
≥186 ≥239 | ||
|
250 |
AIo |
2310 |
2299 | |||
|
300 |
≥3,0' |
22.4 |
≥370 |
気360 |
≥360 | |
|
350 |
>420 |
≥4.0 | ||||
|
400 |
>480 | |||||
|
450 |
≥3, 5 |
22.8 |
≥540 | |||
|
500 |
>600 | |||||
|
600 |
≥715 | |||||
4.4连接法兰
4.4.1直管与直管、直管与管件、管件与管件之间采用法兰连接•法兰应采用HG/T 20592-2009和 HG/T 20615-2009中合适的法兰标准;也可以采用其他合适的法兰标准。
4.4.2钢制外壳和法兰连接处的转角应圆弧过渡,其圆角半径为3 mm~6 mm.
4.5公差
4.5.1直管主要尺寸的公差按表9的规定.
表9直管主要尺寸的公差 单位为竜米
|
公祢尺寸 DN |
直管L | ||
|
1 OOO〜2 000 |
2 500—3 OOO |
3 OOo〜4 OCo | |
|
25〜】C0 |
±1.5 |
±2.0 |
±2.5 |
|
12S〜300 |
士 2.0 |
±2.5 |
±3.0 |
|
350~600 |
士 2. 5 |
±3.0 | |
4. 5. 2管件主要尺寸的公差按表10的规定。
表10管件主要尺寸的公爰 单位为臺*
|
公称尺寸 DN |
90。弯头 R |
45°弯头 |
三通、四通 |
异径管L | |||
|
L |
R |
L |
H |
150.200 |
250.300.350 | ||
|
25~100 |
±2.0 |
±2.0 |
±2.0 |
±1.5 |
±1.5 |
±1.0 |
±1.5 |
|
125-300 |
±2.5 |
士 2. 5 |
±2.0 |
±2.0 |
±2.0 |
±1.5 |
±2.0 |
|
350—600 |
±3.0 |
±3. C |
±2.5 |
±2. 5 |
±2.0 |
±2.0 |
±2.5 |
5材料
5.1氟塑料
a) PTFE 应符合 HG/T 2902 1997 的要求;
b) FEP 应符合 HG/T 2904—1997 的要求;
C) PVDF 应符合 ASTM D 3222-2005 的要求;
d) ETFE 应符合 ASTM D 3159-2006 的要求;
e) PFA 应符合 ΛSTM D 3307 2006 的要求。
5.2钢制外壳
5. 2. 1碳钢无缝钢管应符合GB/T 8163-2008的规定,不锈钢钢管应符合GB/T 14976—2002的规定。
5.2.2管件应符合下列要求:
a) 无缝管件应符合GB/T 12459 2005相关的规定,尺寸要符合本标准的规定;
b) 钢板制有焊縫管件应符合GB/T 13401—2005相关的规定,尺寸要符合本标准的规定i
C)铸造管件应符合GB/T 12229 -2005相关的规定,尺寸要符合本标准的规定。
6设计
6.1衬里材料的选择
氟塑料耐温性能的选择参见表IIO氟塑料耐腐蚀性能的选择,见参考文献口丄
表11氣塑料试验温度
|
氟塑料种类 |
PTFE |
FEP |
PVDF |
ETFE |
PFA |
|
高温/0 |
260±3 |
149±3 |
135±3 |
149±3 |
260土 3 |
|
低温/C |
≤-J8 | ||||
|
注1:表中各种温度是每神氟物料推荐的通常温度;制造商可以根据材料、制品和工艺情况(如将畑料进行改性), 规定不同于表中的温度值。 注2:表中各种温度是基于非腐蚀条件和无压力情况下测试的,在具体工况中该机型料的耐温性可能有变动。 具体工况中的温度限制应由用户与制造甫互相商定,或制造商根据实际经验来修正该试验值。如果是采 _____用塑料通过胶粘剂衬里工艺,还要同时老虑胶粘剂的耐高、低混能力. _______________ | |||||
6.2衬里厚度尺寸的设计
氟塑料衬里厚度、翻边面厚度、翻边面外圆最小直径应符合表8的规定。
6. 3管道衬里后截面积变小,应避免影响介质的流量,衬里后管道实际截面积不小于该公称尺寸截面 积的2/3。
7要求
7.1氟塑料村里外观要求
氟塑料衬里色泽均匀,平整光滑,不得有起泡、裂纹和明显白痕等缺陷。衬里翻边面允许有少许的 波浪面,但装配压紧后必须密封可靠。
7.2水压试验
制品应进行水压试验,试验压力取设计压力的1.5倍,保压时间不少于30 min,不得出现泄漏及破 裂现象C
注:该测试强度是基于常温和非腐蚀条件情况下测试的,在高、低温工况中设备的强度可能有变动;高、低温工况中 的强度限制应由制造商与用户商定,成制造商根据实际经验来修正该值.
7.3电火花试验
氟塑料衬里应进行电火花试验,试验电压为IO kv,不得有被击穿现象(没有出现击穿的火花或没
有报警声音)。
7.4负压试验
耐负压管制品应进行负压试验,氟塑料衬里不得出现明显变形、泄漏和破裂现象。
7.5轴向相对伸长率
衬里管道的轴向相对伸长率^≤0. 8%。
7.6耐温试验
氟型料衬里钢管、管件的高温和低温达到表11中规定的数值后,衬里应无明显变形、开裂等现象。
7.7热胀冷缩试验
氟塑料衬里钢管、管件的冷热交替温度和循环次数达到HG/T 4092中规定的数值后,衬里应无明 显变形、开裂和分层等现象。
8试验方法
8.1氟塑料村里外观要求
衬里外观采用目测方式检査。
8.2水压试验
水压试验〈正压试验)应按照HG/T 4089进行。
8.3电火花试验
电火花试验应按照HG/T 4090进行。
8.4负压试验
衬里耐负压试验应按照HG/T 4093进行。
8.5轴向相对伸长率
试样至少要取三根DN 50, K度500 mm〜1 OOO mm之间的衬里直管,升温至表11中规定的高温
并恒温15 min,测岀其高温时的轴向长度,再自然冷却至室温后,测出其室温时的轴向长度。
每个试样重复该试验,至少进行三次循环o将测出的轴向长度,取其算术平均值O
轴向相对伸长率按式(1)计算(取三位小数):
^=^×100⅜ ..............................( 1 )
式中,
8—— 聚四氣乙烯衬里直管轴向相对伸长率,%ι
—聚四氣乙烯衬里直管在200 C商室温时轴向K度变化差的绝对值,单位为毫米(mm);
A”聚四氟乙烯村里直管室温时轴向长度,单位为毫米(mm) O
8.6耐温试验
8. 6.1耐温试验分高温试验和低温试验。
8. 6.2高、低温试验应按照HG/T 4091逬行。
8.7热胀冷缩试验
热胀冷缩试验应按照HG/T 4092进行。
9检验规则
9∙1检验种类
9. 1. 1制品的检验分出厂检验和型式检验。
9. 1.2出厂检验和型式检验的项目见表12。
表12检验项目
|
序号 |
检验项目名称 |
要求 |
试验方法 |
出厂检验 |
型式检验, | |
|
1 |
夕卜观要求 |
7.1 |
8.1 |
√ |
√ | |
|
2 |
水压试验 |
7.2 |
8.2 |
√ | ||
|
3 |
电火花试验 |
7. 3 |
8.3 |
J |
√ | |
|
4 |
负压试验b |
7.4 |
8.4 |
√ | ||
|
5 |
轴向相对伸长率 |
7.5 |
8. 5 |
√ | ||
|
6 7 |
耐温试验 |
高温 |
7.6 _ |
&6 |
√ | |
|
低温 _ | ||||||
|
热胀冷缩试验 |
7.7 |
8,7 |
√ | |||
型式检验项目是否全部或部分采用,由制造商根据材料、制品和工艺情况而定,或由制造商与用户,或制造商与 检鸵方共同商定。
b仅对负任制品作测试,或合同规定时的正压制品。一 .. .
9.2 出厂检验
9.2. 1耐正压管
9. 2. 1. 1耐正压管的出厂检验项目为7. 1、7. 2.7.3,7. 1、7. 3检验为全检,7. 2为抽样检验。
9.2. 1.2制品批量按同一工艺条件下生产的同一个合同为一批;同一个合同管道数量比较少时,可以 合并若于个合同;一批的数量少于等于500件。抽样按10%的数量随机抽取。抽取测试的样品应是代 表性的直管和管件。
9,2,2耐负压管
9. 2. 2. 1耐负压管除按为7. 1.7. 2,7. 3进行检验外,还应按7.4进行抽样检验。
9.2.2.2制品批量按同一工艺条件F生产的同一个合同为一批;同一个合同管道数量比较少时,可以 合并若干个合同;一批的数量少于等于500件,抽样按5%的数量随机抽取。抽取测试的样品应有最大 直径的直管和管件。
9.3型式检验
9. 3. 1型式检验项目为本标准的全部检验项目。
注:型式检验项目是否全部或部分釆用由制造商根据材料、制品和T艺情况而定,或由制造商与用户,或制造商与
检验方共同商定.
9.3.2在下列情况下应进行型式检验:
a) 原料、工艺有较大改动可能影响制品性能时;
b) 正常生产时,三年不少于一次;
C)停产六个月以上恢复生产时;
d) 出厂检验结果与上次型式检验有较大差异时;
e) 国家质量监督机枸提出进行型式检验时.
9.3.3进行型式检验的样品根据表12在岀厂检验的合格品中随机抽取.
9.3.4进行型式检验,有一项超过合格判定数时,剔除不合格品后,再随机抽取双倍样品进行该项复 验;如检验后如仍有一项不合格,则判定该批制品不合格.
10标志、包装、运输和贮存
10. 1 标志
经检验合格的氟塑料衬里管和管件,应有下例様志:
|
制造许可号; 生产厂名或商标S 产品品种规格代号(见表1); 本标准号’ 生产日期或生产批号; 根据使用单位或者业主的要求,还可以标注诸如顺序号、项目号等内容。 |
10,2 包装
制品应妥善保管,以防损坏;衬里裸露面应用合适方法保护,如用橡胶板、人造板密封,加保护帽等.
10.3运输
在运输过程中,制品不应受剧烈冲击,锐物划伤和重物堆压.
10.4贮存
制品应平直贮存在干净的室内,禁止在露天日晒雨淋.法兰翻边面保护材料在未安装时不得取下, 破损或脱落。公称尺寸100 mm以下的制品,堆放高度不宜超过十层;公称尺寸125 mm〜200 Inm的 制品,堆放高度不宜超过五层;公称尺寸250 mm以上制品,堆放高度不宜超过三层.
…
参考文献
[1]左景伊,左禹.腐蚀数据与选材手册[M].北京:化学工业出版社,1995:928-968.
中华人民共和国
国家标准
氟塑料衬里钢管、管件通用技术要求
GB/T 26500—2011
中国标准出版社出版发行
北京复兴门外三里河北街16号
邮政编码:100045
网址 WWW. spc. net. Cn
电话,68523946 685J7548
中国标准岀版社秦皇岛印刷厂印刷 各地新华书店经捎
w
开本S&C X123O 1/16 印张1.25 字数28千字
2011年8月第一版 2011年8月第一次印刷
*
GB/T 26500-2011
书号:155066 • 1-43306 定价 21.00 元
如有印装差错由本社发行中心调换
版权专有侵权必究
举报电话:(010)68533533
打印日期:2。IL年9月5日FOog