北京市建设工程施工现场安全生产标准化管理图集
(2019 版)
北京市住房和城乡建设委员会 推二。一九年一月 T
编制说明
为进一步加强建设工程施工现场安全生产和绿色施工管理工作,提高施工现场安全生产、绿色施工标 准化管理水平,建立与国际一流和谐宜居之都相适应的施工现场管理标准,促进安全生产和绿色施工管理 制度化、规范化、标准化。根据《北京市建筑施工安全生产标准化考评管理办法(试行)》(京建法〔2015〕 15号),结合本市工程项目实际情况,编制《北京市建设工程安全生产标准化管理图集(2019版)》(以 下简称图集)。
本《图集》主要内容包括:1.安全管理;2.生活区、办公区管理;3.绿色施工;4.脚手架安全管理;
5.模板支撑体系安全管理;6.安全防护;7.临时用电;8.塔式起重机、起重吊装安全管理;9.机械安全; 10.消防保卫;11.安全智慧化。
本《图集》适用于北京市行政区域内建设工程新建、扩建、改建等活动,建设工程是指房屋建筑和市 政基础设施工程。
一、 《图集》编写原则
1. 在满足国家、行业及北京市现行法律、法规、规范、标准的同时,做到在施工现场安全标准化实施 过程中达到安全实用,并便于维护、周转、工具化。
2. 以图例形式体现北京市达标工地、绿色安全工地和绿色安全样板工地的标准化分级管理,作为日常 管理和检查考评的主要依据和工程项目标准化建设的实施标准。
二、 《图集》编制依据
1. 国家法律、法规
(1) 《中华人民共和国环境保护法》(主席令第9号)
(2) 《中华人民共和国安全生产法》(主席令第13号)
(3) 《中华人民共和国建筑法》(主席令第46号)
(4) 《建设工程安全生产管理条例》(国务院令第393号)
2. 国家标准
(1) 《安全帽》(GB2811)
(2) 《安全网》(GB5725)
(3) 《安全带》(GB6095)
(4) 《安全标志及其使用导则》(GB2894)
(5) 《塔式起重机安全规程》(GB5144)
(6) 《施工升降机安全规程》(GB10055)
(7) 《建设工程施工现场供用电安全规范》(GB50194)
(8) 《建设工程施工现场消防安全技术规范》(GB50720)
(9) 《高处作业吊篮》(GB191)
(10) 《建筑工程绿色施工规范》(GB50905)
3. 部门规章
(1) 《危险性较大的分部分项工程安全管理规定》(住建部令第37号)
(2) 《建筑起重机械安全监督管理规定》(建设部令第166号)
(3) 《企业安全生产费用提取和使用管理办法》(财企第16号)
4. 行业标准
(1)《施工现场临时用电安全技术规范》(JGJ 46)
(2) 《建筑施工安全检查标准》(JGJ 59)
(3) 《液压滑动模板施工安全技术规程》(JGJ 65)
(4) 《建筑施工高处作业安全技术规范》(JGJ 80)
(5) 《龙门吊及井架物料提升机安全技术规范》(JGJ 88)
(6) 《建筑施工扣件式钢管脚手架安全技术规范》(JGJ 130)
(7) 《建设工程施工现场环境与卫生标准》(JGJ 146)
(8) 《施工现场机械设备检查技术规程》(JGJ 160)
(9) 《建筑施工碗扣式钢管脚手架安全技术规范》(JGJ 166)
(10) 《建筑施工塔式起重机安装、使用、拆卸安全技术规程》(JGJ 196)
(11) 《建筑施工工具式脚手架安全技术规范》(JGJ 202)
(12) 《建筑施工升降机安装、使用、拆卸安全技术规程》(JGJ 215)
(13) 《建筑施工承插型盘扣式钢管支架安全技术规程》(JGJ 231)
(14) 《建筑工程施工现场标志设置技术规程》(JGJ 348)
(15) 《装配式混凝土结构技术规程》(JGJ 1)
5. 北京市相关文件规定
(1) 《北京市建设工程施工现场管理办法》(北京市人民政府令第247号)
(2) 《关于在建设工程施工现场开展安全防护标准化工作的通知》(京建法〔2014〕7号)
(3) 《北京市建筑施工安全生产标准化考评管理办法(试行)》(京建法〔2015〕15号)
(4) 《北京市建设工程施工现场安全生产标准化管理图集》(京建发〔2017〕107号)
(5) 《关于加强施工现场标准化评审工作的通知》(京建发〔2018〕149号)
(6) 《北京市房屋建筑和市政基础设施工程重大生产安全事故隐患判定导则(试行)》(京建发〔2018〕 397号)
(7) 《北京市房屋建筑和市政基础设施工程施工安全风险分级管控技术指南(试行)》(京建发〔2018〕 424号)
6. 地方标准
(1) 《建设工程施工现场安全资料管理规程》(DB11/383)
(2) 《绿色施工管理规程》(DB11/513)
(3) 《建筑工程施工现场安全防护、场容卫生及消防保卫标准》(DB11/945)
(4) 《建设工程施工现场生活区设置和管理规范》(DB11/1132)
(5) 《建筑垃圾运输车辆标识、监控和密闭技术要求》(DB11/T 1077)
(6) 《建设工程施工现场安全防护、场容卫生及消防保卫标准》第2部分:防护设施(DB11/T 1469)
三、《图集》使用规定
施工现场按照《北京市建筑施工安全生产标准化考评管理办法(试行)》(京建法〔2015〕15号)的 有关要求,结合本《图集》内容执行。
1. “★”表示“北京市绿色安全标准化达标工地”;
2. “★★”表示“北京市绿色安全工地”;
3. “★★★”表示“北京市绿色安全样板工地”;
4. “☆ ☆☆”表示推荐应用项目,可参照选用,鼓励创优;
5. 本《图集》中所选用防护设施的材料必须满足相关规范要求;
6. 本《图集》中设施设备、构件等示意图所标示的尺寸为参考尺寸。
主编单位:北京市住房和城乡建设委员会
北京城建集团有限责任公司
参编单位:中国建筑一局(集团)有限公司
中国建筑第八工程局有限公司
北京建工集团有限责任公司
中铁建设集团有限公司
北京城建十六建筑工程有限责任公司
北京天恒建设集团有限公司
中北华宇建设工程有限公司
北京博大经开建设有限公司
编写人员
主 编:王 鑫
副主编:凌振军冯志祥
编写人员:刘文政 王安邦 史洪涛 张罗鹏 燕 燕 苏正鹏 卢希峰 吉祖友 章勋锋 徐海峰 杨三建 李亚军 张兴振 张 强李城 徐健桐 朱杰 郭冀王 迪宋长 伟
审核人员:姚中才 原新全 刘志超 解金箭 张广宇 王静宇 夏军利 陈燕鹏 张剑平 王维军 张井华杨金峰晋津
第一章安全管理
|
序号 |
项目 分类 |
安全生产标准建设内容 |
实例图/示意图 |
标准化 达标工地 |
绿色安全 工地 |
绿色安全 样板工地 |
|
一 |
安全生产责任制 |
工程项目部应建立以项目经理为第一责任人的各 级管理人员安全生产责任制并实施考核。 |
XXXX公司文件 «>>3t (301B] 1 9 XFmaC«安全生产的域知 ft*<9!> 卖全生产企业*fit顿号.IHBSaK门.街关昔《8工 SJ4*ΛM. nɪs人员》0生产H人在JS动中対安全生产成酬⅛ ■1». Λ7∙∣WSH∙P*ARRKInS <S⅛⅛∕*Ht>. (MMJ>>. ,KUk"i⅛法》、工穆安全生产 βα*<nι (B*KΦKJ93⅞), HUB Cdtermltau KUtJtm*UXKKX31iMt*tFi⅞> 8tιħ故籽》第247・)KA. MK了公SH安 FaSlIŋ. U≡-tHBaHMBABa9K^iK≡qβ. HSS SΛ*⅛maι⅛. B∙s⅛a5>αna!R*⅛⅛i⅛⅞K W Sβ%FBHM Mfll 抄Ut溢EMIi m∙∙∙∙nπ>3L n∙nE* 安全生产责任制管理示意图 |
★ |
★★ |
★★★ |
|
二 |
安全管理机构设置及人员配备 |
建筑工程、装修工程总承包单位配备项目专职安全 生产管理人员应当满足:
配备专职安全生产管理人员。____________ |
κ.η .... ■ :..〉二5 一 pg" ■* ∙∙⅜MIlHJ u«» ______. . t,m<tt∙m-乎_________________ ♦«ni! ɪ HRin Λ∣e≡fi∙ n:M4* a%ιΛιH I ∕jn∙<⅛下 ∙nd>-l- I ʌ Φ⅝l :w __ u** I r tt¾dliB! I /f -C Hnf*⅛ F I;!IH tΛ UiildIIA! <■ ZJ WU I: Ψ⅛ Γ :i A. IlHi A4¼*βl.--- I.HΛ-∣ft IMmI ∕ijħ⅛l F ∙F⅛T∙ I Λ iJ⅛≤ MM宀』—Z人 - I V,ιiJtV>. I- diψ J- 3 Λ∣ HItiWWltiih • '■ ■•■ '■! ■•■ I- I I- . ∣' H I' ∙l∙∣∣∙ .; .......... «* I.AftIVMt*W 1» A WF I Λ -,' , bi>人-Slml A :EA InUHi__ i-* Γ 3 A, nnw*κIAiH aw λ⅛w I ɪ rr*m* rsu⅛wmm*r- ιι <- ∣B* I I «v» I Sm 5‰. 安全管理人员配备示意图 |
★ |
★★ |
★★★ |
|
土木工程、线路管道、设备安装工程总承包单位配 备项目专职安全生产管理人员应当满足土木工程、线路 管道、设备安装工程按照工程合同价配备:
专职安全生产管理人员。_______________ |
安全生产标准建设内容
实例图/示意图
标准化绿色安全绿色安全
达标工地 工地 样板工地
安全管理目标及考核危险性较大的分部分项工程方案管理
施工单位应结合工程特点制定以伤亡事故控 制、现场安全生产标准化、绿色安全施工等为主要 内容的安全生产管理目标及考核办法。
1. 施工单位应当在危险性较大的分部分项工 程施工前组织工程技术人员编制专项施工方案。
2. 对于超过一定规模的危险性较大的分部分 项工程,施工单位应当组织召开专家论证会对施工 方案进行论证。
3. 严格执行住建部第37号令和建办质〔2018) 31号文相关要求。
安全管理目标管理示意图
危大工程管理示意图
★ ★★ ★★★
★ ★★ ★★★
安全生产标准建设内容
实例图/示意图
标准化绿色安全绿色安全
达标工地 工地 样板工地
安全生产管理制度 施工组织设计
1. 项目部应制定各项安全生产管理制度。项目 负责人应当在施工期间现场带班,全面掌握项目施 工安全状况,做好带班检查记录并签字存档备查, 每月带班生产时间不得少于本月施工时间的80%。
2. 严格执行建质【2011】111号文件要求。
各类建筑工程在施工前均应编制施工组织设 计文件,包含施工合同中有关工程质量、安全、进 度、绿色施工等方面的要求,并应在开工前完成审 核和审批手续。
领导带班记录示意图
施工组织设计管理示意图
★ ★★ ★★★
★★ ★★★
序号
项目
分类
安全生产标准建设内容
实例图/示意图
标准化 达标工地
绿色安全 工地
绿色安全 样板工地
安全技术交底应按施工工序、施工部位、施 工栋号分部分项进行,现场管理人员应向作业人 员进行书面安全技术交底,并由双方和项目专职 安全管理人员共同签字确认。
★★
★★★
总承包单位与分包单位应签订并留存安全 生产管理协议书,同时留存分包单位的资质证 书、安全生产许可证、项目负责人和专职安全管 理人员的安全生产考核合格证书等相关加盖公 章的证照复印件。
安全技术交底示意图
资质证书实例图
安全生产许可证实例图
★★
★★
★★★
★★★
序号
项目
分类
安全生产标准建设内容
实例图/示意图
安 全 教 育 培 训
施工单位应建立安全教育培训制度及安全教 育培训计划,对施工人员应进行三级安全教育, 考核合格后才可上岗作业,并及时登记建档。
关于印发《安全生产教育培训管理制度》 的通知
各单位:
为加强和规范公司全体施工人员的安全教育培训工作,提 高从业人员的安全素质,防范伤亡事故,减轻职业危害,现根 据《中华人民共和国安全生产法》和北京市相关文件规定,结 合公司实际情况,特制定本制度。
抄谖:公司领导 —
XXXX公司 总经理办公室 ⅛n X年X X月Sr女苜
印发
安全教育培训制度示意图
项目从业人员应在进场后7日内完成体验式 安全培训,每年应进行不少于两次体验式安全培 训,每次培训时长应不少于2学时。
体验式安全培训示意图
|
标准化 达标工地 |
绿色安全 工地 |
绿色安全 样板工地 |
|
★ |
★★ |
★★★ |
|
★ |
★★ |
★★★ |
|
序号 |
项目 分类 |
安全生产标准建设内容 |
实例图/示意图 |
标准化 达标工地 |
绿色安全 工地 |
绿色安全 样板工地 |
|
十 |
特种作业人员管理 |
|
建筑誘丄特种作业操作资格UEdIif 姓名_____身使任号_______ ■什恐I_________ *ιvu( di) m∪((..> 建筑施工特种作业操作资格证 y号 饒名_______ IHDtf号_______ Nnftn_____________ I I WKSiffllll 一 ____ _______ :X ≡≡:-----註 印童 IW片 I______I S-MHl___________ ______ 特种作业持证管理示意图 |
★ |
★★ |
★★★ |
管 施工单位在槽、坑、沟土方开挖前,应取得《地
级 上/地下管线及建(构)筑物资料移交单》。对可能
十^一 H
构 造成损害的毗邻建筑物、构筑物和地上、地下管线
筑 等,应当采取专项防护措施。
★★
★★★
管线及建(构)筑物移交单实例图
|
序号 |
项目 分类 |
安全生产标准建设内容 |
实例图/示意图 |
标准化 达标工地 |
绿色安全 工地 |
绿色安全 样板工地 |
|
十二 |
安全防护用品管理 |
施工单位应当为员工、作业人员配备必要的劳 动保护用品,并督促作业人员在作业时正确使用。 用人单位应建立健全劳动防护用品的采购、验收、 保管、发放、使用、更换、报废等管理制度。劳动 防护用品应符合国家标准或行业标准。 劳动防护用品按人体生理部位分类:
|
XXXXX有限公司文件 (əθ J ⅜ K. I 卬发 <-<e*kMr,> 的Jdw 为InWSM ■工Utt*上Ie用g安全 防炉朋■的as毎 «s.險止f87*m∕**i*ΛMxst*ιVa «. MIRMX<!⅛. *M∙α∣τa⅛ Bβ0iH. BSL _ 一 . Mk 1 JB JW I JB ⅜⅝ . ■ A Bm⅜ 安全防护用品管理制度实例图 |
★ |
★★ |
★★★ |
|
SH∙ Wt 劳动防护用品示意图 |
★ |
★★ |
★★★ |
|
序号 |
项目 分类 |
安全生产标准建设内容 |
实例图/示意图 |
标准化 达标工地 |
绿色安全 工地 |
绿色安全 样板工地 |
|
十三 |
安全生产费用 |
|
XXXXX有限公司文件 ⅛⅛⅛ £20 )与 关于印发《安全生产资金保障制度》的通知 毎骨公司的《金全生产贵金保障制度》下发:给你们,清 ⅛kM≡B⅛⅛fτ. ⅛¾词:安全生产 ⅝⅛⅞障⅜⅝度 ⅞⅜]__________ SSS年冃^^^BHJS: 安全费用保障制度实例图 |
★ |
★★ |
★★★ |
|
安全防护、文明施工措施费用支付申協 贖号 表般-B2-2 TS名荐 在蠶SB使 S_______________CS B Kam Jtseβ⅛τsΛSi∙. Xeeɪee.短iSH∙ft∣mi电g⅛⅛卷___年 A___e 共斗 SMJxXg- £HS⅝W*. 0<7ElW≡jHFASHHMa*- ⅛⅛B>1∙.文W3βH*站项且極漬羊• ⅝βsa≡ute): 安全生产资金记录台账实例图 | ||||||
|
___月蚣全资金使用情况记录表 项目部名称 < 盖章): 序号 费用名袜 用逢 金技 合计金槌 备注 «BS9: 嗔目安全虫责人: « B B 资金使用情况统计实例图 |
安全生产标准建设内容
实例图/示意图
标准化 达标工地
绿色安全
工地
绿色安全
样板工地
生产安全事故管理
1.建立生产安全事故报告和调查处理制度。
2.发生产安全事故后,应于1小时内上报当地
安全监督管理部门,并妥善保护好现场,按照应急
救援预案开展应急响应工作。
安全生产事故管理制度示意图
事故统计表实例图
★★
★★★
安全生产标准建设内容
实例图/示意图
标准化 达标工地
绿色安全
工地
绿色安全
样板工地
安全标志
施工现场应合理设置安全生产宣传标语和标
牌。标牌设置应牢固可靠,在主要施工部位、作业
层面和危险区域以及主要通道口均应设置醒目的安
全警示标志。
禁止标志示意图
警告标志示意图
★★
★★★
指令标志示意图
提示标志示意图
≡≡安全生产奖罚及违章处理安全生产检查及隐患整改
安全生产标准建设内容
施工单位应制定安全生产奖罚制度,建立奖罚 台账。
1. 施工单位应建立安全检查和事故隐患排查 治理制度,依据《重大生产安全事故隐患判定导则》 进行管理,并按要求填写《安全检查(隐患排查) 记录表》及《安全隐患整改反馈表》。
2. 依据京建发〔2018) 397号确定工程项目重 大生产安全事故隐患判定目录清单。
3. 依据京建发〔2018 ) 424号确定工程项目风 险分级管控目录清单。
实例图/示意图
奖罚记录示意图
隐患排查记录示意图
标准化绿色安全绿色安全
达标工地 工地 样板工地
★ ★★ ★★★
★★ ★★★
|
序号 |
项目 分类 |
安全生产标准建设内容 |
实例图/示意图 |
标准化 达标工地 |
绿色安全 工地 |
绿色安全 样板工地 |
|
十八 |
应急救援管理 |
施工单位应制定生产安全事故应急救援预案,并 根据工程风险级别和危险性较大的分部分项工程制 定专项应急救援预案,配置应急救援器材和设备,建 立应急救援组织、配备应急救援人员,分工明确。 |
生 产安 金事故 用終教拨 珀芦流祚l⅛l 国产⅜∙全*⅛⅛ I I应急员I fz急j⅜a⅛⅞H6⅞j导小爼成员I 苒慕*春I I ⅜a⅜^⅛⅞⅛j • 1 ,--------------: t I----------------ɪ , I 保垢现⅛⅞ ] I ⅜b⅜⅛⅜⅛E I at导人j⅝ I I麹携急稍:] I车辆辅■证I UiXa∙⅛i⅛∣ -1 ⅜S 住 ⅞:京 B,E⅞ I 「了解⅝t⅛fc及⅜π±人灵∙jg¾⅞ I -------T撿吿平敞丽况I I会司首后h∙⅜卜 I公司应急⅜⅛⅜⅝Wr⅛¾⅜⅛控刁、蛔I-T 公司*⅜⅛⅝⅞⅛组I 应急救援流程示意图 |
★ |
★★ |
★★★ |
|
十九 |
安全资料管理 |
施工单位应按照《建筑工程施工现场安全资料管 理规程》及时收集、整理、组卷、归档各类安全生产 管理资料,并随工程进度同步更新。 |
Iiun 安全生产资料管理归档实例图 |
★ |
★★ |
★★★ |
第二章生活区、办公区管理
|
序 号 |
项目 分类 |
安全生产标准建设内容 |
实例图/示意图 |
标准化 达标工地 |
绿色安全 工地 |
绿色安全 样板工地 | |
|
一 |
办公用房 |
|
IIllljS⅛≡⅛⅞⅜ι 办公区箱式模块化集成房示意图 |
★★ |
★★★ | ||
|
⅝3HHM∣ _____彩钢板房示意图 |
★ |
★★ | |||||
|
二 |
取暖、降温 |
办公用房、宿舍配备防暑降温、冬季取暖等 符合要求的设施。 |
IB N 防暑降温取暖措施实例图 |
★ |
★★ |
★★★ | |
序号
项目
分类
安全生产标准建设内容
实例图/示意图
标准化 达标工地
绿色安全绿色安全
工地 样板工地
生活区临时用电
宿舍内地面铺设耐火地板,使用36V以下 安全电压照明。
生活区应专门设置充电间(柜),供对讲 机、手机等充电设备充电。
宿舍内采用低压USB充电接口,充电接口 应使用具有3C认证,且质量合格的面板。
宿舍内设施及照明示意图
手机充电柜实例图
宿舍内手机USB充电实例图
★ ★★ ★★★
★ ★★ ★★★
★★
★★★
安全生产标准建设内容
实例图/示意图
标准化绿色安全绿色安全
达标工地 工地 样板工地
生活区临时用房
建筑构件的燃烧性能等级应为A级。当 采用金属夹芯板材时,其芯材的燃烧性能等 级应为A级。
A级不燃材料实例图
★ ★★ ★★★
设置人员安全疏散通道及疏散指示标 识。
安全疏散示意图
★ ★★ ★★★
安全生产标准建设内容
实例图/示意图
标准化 达标工地
绿色安全
工地
绿色安全
样板工地
生活区、办公区内地面必须平整,并且有 绿化或美化措施,优先选用可周转利用、耐用 性较好的路面。
生活区、办公区内地面实例图
★ ★★ ★★★
环境卫生
生活区、办公区垃圾站实例图
设置密闭式垃圾站(桶),分类存放,并 及时清运。
生活区、办公区垃圾桶实例图
★★
★★★
序号
项目
分类
安全生产标准建设内容
实例图/示意图
标准化 达标工地
绿色安全绿色安全
工地 样板工地
食堂管理
食堂采用单层建筑,室内地面应铺贴 防滑瓷砖,餐饮设施符合标准。
应在食堂就餐场所醒目位置设置食品 经营许可证、从业人员健康检查证和卫生 法规知识培训证。
食堂应达到“明厨亮灶”的要求。
食堂建筑示意图
食品经营许可证、健康证示意图
透明厨房或视频监控厨房示意图
★★ ★★★
★★ ★★★
★★
★★★
安全生产标准建设内容
实例图/示意图
标准化 达标工地
绿色安全 工地
绿色安全
样板工地
1.食堂应设置有效的隔油池,设专人负责
定期清理,加强日常管理。
2.隔油池应达到两级及以上隔离。
★★
★★★
隔油池示意图
六釦
食堂管理(续)
食堂应使用具有质量合格证明的炊具。
电炊具示意图
★★
★★★
1.食堂设置消毒柜、灭蚊蝇等设施。
2.食堂每次制售餐饮食品必须在冷藏条件
下留样48小时以上。
消毒柜、灭蚊蝇灯实例图
★★
★★★
安全生产标准建设内容
实例图/示意图
配套设施
工程项目设置“农民工夜校”,配备必要的 设备设施,地面铺地砖。
农民工夜校实例图
文体活动室外景实例图
设置文体活动室,地面铺地砖或防火地板革
等,并配备必要设备、设施。
文体活动室内景实例图
|
标准化 达标工地 |
绿色安全 工地 |
绿色安全 样板工地 |
|
★ |
★★ |
★★★ |
|
★★ |
★★★ |
|
序号 |
项目 分类 |
安全生产标准建设内容 |
实例图/示意图 |
标准化 达标工地 |
绿色安全 工地 |
绿色安全 样板工地 |
|
七 (续) |
配套设施(续) |
生活区设置洗漱水池和节水型水龙头。 |
J≡sar ¾ 室外洗漱间示意图 室内洗漱室实例图 |
★ |
★★ |
★★★ |
|
生活区内设置防雨晾晒衣物设施。 |
Em* I _____晾晒衣物设施实例图_____ |
★★ |
★★★ | |||
|
生活区应设置饮用水设施。 |
∣r¾S^r ______饮用水设施实例图______ |
★ |
★★ |
★★★ |
|
序号 |
项目 分类 |
安全生产标准建设内容 |
实例图/示意图 |
标准化 达标工地 |
绿色安全 工地 |
绿色安全 样板工地 |
|
七 (续) |
配套设施(续) |
生活区设置满足现场人员需求的淋浴 室,地面铺设防滑地砖。 |
_______淋浴室示意图_______ |
★ |
★★ |
★★★ |
|
设置水冲式厕所或移动式厕所,地面 应进行防滑设置,墙面、墙面贴砖。 |
________厕所示意图________ |
★ |
★★ |
★★★ | ||
|
现场应配备急救药品和器材。 |
4「二 |
★ |
★★ |
★★★ | ||
|
- = 卫生室内局部 | ||||||
|
;■ _____急救药品和器材示意图_____ |
第三章绿色施工
|
序号 |
项目 分类 |
安全生产标准建设内容 |
实例图/示意图 |
标准化 达标工地 |
绿色安全 工地 |
绿色安全 样板工地 |
|
一 |
施工现场大门 |
4m,施工现场大门的设置必须按设计方案制 作。 |
------Ird 「 ■ |
★ |
★★ |
★★★ |
|
EIHfflB mi I | ||||||
|
—□J ■ 丨 , 施工大门、半封闭式人行通道示意图 | ||||||
|
Ill |
★ |
★★ |
★★★ |
全封闭式单、双人行通道示意图
|
序号 |
项目 分类 |
安全生产标准建设内容 |
实例图/示意图 |
标准化 达标工地 |
绿色安全 工地 |
绿色安全 样板工地 |
|
二 |
施工现场围挡 |
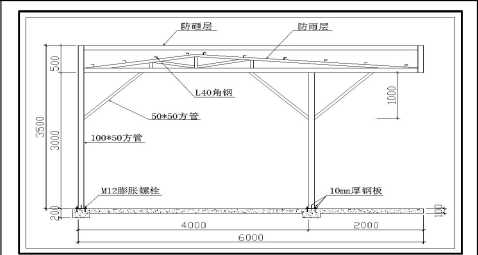
施工现场围挡板尺寸宜按右图设置,施 工现场围挡的设置必须按设计方案施工。 |
V-----斜撑间距7020 O Si 立杆间距2340 =η X ♦ :----------I F ∖z L 860」 围挡板尺寸图(单位:mm) |
★ |
★ ★ |
★★★ |
|
序号 |
项目 分类 |
安全生产标准建设内容 |
实例图/示意图 |
标准化 达标工地 |
绿色安全 工地 |
绿色安全 样板工地 |
|
(续) |
施 工 现 场 围 挡 (续) |
|
(M 建筑工程施工围挡(围墙)示意图 |
★ |
★★ |
★★★ |
|
市政工程围挡(围板)示意图 |
安全生产标准建设内容
实例图/示意图
标准化 达标工地
绿色安全 工地
绿色安全
样板工地
裸露地面覆盖
现场裸露的易扬尘地面和集中堆放的 土方应100%覆盖。
施工现场防尘网覆盖实例图
施工现场人造草坪覆盖实例图
★★
★★★
施工现场生活区、办公区空置场地或空 闲场地应进行绿化。
生活区、办公区绿化实例图
★★★
安全生产标准建设内容
实例图/示意图
标准化 达标工地
绿色安全
工地
绿色安全
样板工地
定型式车辆冲洗设施
施工现场出入口处必须设置车辆冲洗设 施。
滚轴式洗轮机实例图
直喷式洗车机实物图
★ ★★ ★★★
施工现场出入口进出车辆冲洗。
车辆进出冲洗实例图
★★
★★★
安全生产标准建设内容
实例图/示意图
标准化 达标工地
绿色安全
工地
绿色安全
样板工地
废水沉淀池
1. 混凝土输送泵及运输车辆清洗处应 设置沉淀池,废水不得直接排入市政污水管 网,经二次及以上沉淀后循环使用或用于场 地洒水降尘。
2. 沉淀池应设置防护盖板,周围宜加装 钢制防护栏杆。
3. 护身栏的高度不小于1. 2m。
废水沉淀池尺寸图
废水沉淀池示意图
★ ★★
★★★
废水沉淀池防护示意图
|
序号 |
项目 分类 |
安全生产标准建设内容 |
实例图/示意图 |
标准化 达标工地 |
绿色安全 工地 |
绿色安全 样板工地 |
|
六 |
场内硬化 |
|
H Ju ■ 混凝土硬化实例图 |
★ |
★★ |
★★★ |
|
序号 |
项目 分类 |
安全生产标准建设内容 |
实例图/示意图 |
标准化 达标工地 |
绿色安全 工地 |
绿色安全 样板工地 |
|
七 |
湿法作业 |
在土方开挖、回填以及破除(拆除)产 生扬尘时应采取湿法作业。 |
破除(拆除)时湿法作业实例图 |
★ |
★★ | |
|
土方开挖湿法作业实例图 |
★★ |
★★★ |
序号
项目
分类
安全生产标准建设内容
实例图/示意图
建 筑 垃 圾 消 纳 管 理
1. 建设(拆除)单位开工前要制定建筑垃 圾、土方清运和处置作业方案,依法办理建筑 垃圾消纳许可证。
2. 建设(拆除)单位在施工前,应到属地城 市管理部门申请办理建筑垃圾消纳许可证,并 在施工现场大门口张贴公示。
3. 建筑垃圾、土方、砂石运输车辆应取 得相关主管部门下发的准运证。
4. 垃圾、渣土消纳证和准运证从始至竣工 结束期间保持有效不间断。
建筑垃圾、土方、砂石运输使用“六统一” 车辆。
"六统一”即:统一车辆颜色,全密闭装 置统一为机械式金属折叠顶盖,电动闭合、车 辆顶灯灯箱统一为梯形白色灯箱,车体尾部统 一喷涂反光放大号牌、车门上贴企业信息,统 一安装安全语音提示器,统一配备GPS行驶记 录仪。
消纳许可证实例图
准运证实例图
“六统一”运输车辆示意图
|
标准化 达标工地 |
绿色安全 工地 |
绿色安全 样板工地 |
|
★ |
★★ |
★★★ |
|
★ |
★★ |
★★★ |
|
★ |
★★ |
★★★ |
|
序号 |
项目 分类 |
安全生产标准建设内容 |
实例图/示意图 |
标准化 达标工地 |
绿色安全 工地 |
绿色安全 样板工地 |
|
九 |
施 工 现 场 公 示 标 牌 |
施工现场大门口外侧明显位置处设以下公示标牌:
公示牌制作说明:
|
XXXX ■ KKI πn nu nuuXUtIXUIXlXIann XIKlUUXl UXIXI XLILU-I Uxl UXIZIXl XIXLUXUljiIa BtuXlXlXl KlXlXl KrInnnnnXIXlXIXlXlXKnnianUnUUlClxlXl 二 Ifnn_ DUunIm IUttMUiu MXl £1X1UXLUJCKnKtsIUxIXIXIUXlXl XU ui>-i UU WU XiAI XlXlXUlXian ttiaxxuXlXIXIXB KnnEtnuuuxutixuixuiannmKiuuxixizixi IUaMUiUIUiUXIMXUuUKnKtUKlxIXlXIUXiXl Innnnn Emxnuxuuunnnnnnuuuxui UΛ Oia SUU AUU XlxIXIJ(UUlttKtnXλuχ∣UXι >C∣χιxι 180CImm 皿 L= ≡OOmm —JI 1 公示标牌示意图 |
★ |
★★ |
★★★ |
|
序号 |
项目 分类 |
安全生产标准建设内容 |
实例图/示意图 |
标准化 达标工地 |
绿色安全 工地 |
绿色安全 样板工地 |
|
十 |
施 工 现 场 管 理 公 示 标 牌 |
施工现场大门内侧明显位置处设以下公示标牌:
10施工现场重大危险源公示栏;
公示牌制作说明:
63mm,高 2000mm;
|
I 120Om ZOOomnl ■ mt∞M∣mMMTO⅛>Mimιιmnmπrπwmnmmu ] -I- 90OnllTl 公示标牌示意图 |
★ |
★★ |
★★★ |
|
序号 |
项目 分类 |
安全生产标准建设内容 |
实例图/示意图 |
标准化 达标工地 |
绿色安 全工地 |
绿色安全 样板工地 |
|
十一 |
排 水 设 施 |
施工现场各区域应合理设置排水系统,作业 区、材料堆放区和场区道路可设置排水明沟,排 水明沟宽度,不小于400mm,深度不小于300mm, 基坑、沟、槽周边排水沟(井)应有防渗漏措施。 |
_____排水明沟实例图_____ |
★ |
★★ | |
|
设置排水收集井。 |
_____收集井实例图_____ |
★ |
★★ |
★★★ | ||
|
排水沟用铁蓖罩面。不小于400mm,深度不 小于300mm。 |
_____铁蓖罩面实例图_____ |
★★ |
★★★ |
|
序号 |
项目 分类 |
安全生产标准建设内容 |
实例图/示意图 |
标准化 达标工地 |
绿色安全 工地 |
绿色安全 样板工地 |
|
十二 |
施 工 现 场 降 尘 设 备 |
施工现场配备洒水车,设专人定时洒水。 |
_____洒水车示意图______ |
★ |
★★ |
★★★ |
|
一 AZ &丄 洒水车示意图 | ||||||
|
施工现场配备移动喷雾车辆,设专人定时洒 水。 |
羣, 喷雾洒水车示意图 |
★★★ |
|
序号 |
项目 分类 |
安全生产标准建设内容 |
实例图/示意图 |
标准化 达标工地 |
绿色安全 工地 |
绿色安全 样板工地 |
|
十二 (续) |
施 工 现 场 降 尘 设 备 (续) |
|
JBVl _____喷雾炮实例图_____ |
★★ |
★★★ | |
|
-------- ———E J≡fll _____喷淋系统示意图_____ |
|
序号 |
项目 分类 |
安全生产标准建设内容 |
实例图/示意图 |
标准化 达标工地 |
绿色安全 工地 |
绿色安全 样板工地 | ||
|
1.建筑物、构筑物内建筑垃圾的清运,应采 | ||||||||
|
用容器或管道运输,严禁凌空抛掷。 2.吊运容器用于吊运钢筋加工制品或零散 |
★ |
★★ |
★★★ | |||||
|
垃 圾 清 |
物料,吊运物不得超出箱体沿口。 |
吊运容器示意图 | ||||||
|
吊运容器制作说明: 1.框架采用不小于L50×5角钢;吊环采用 | ||||||||
|
运 及 | ||||||||
|
十三 |
零 |
Φ16圆钢,与边框焊接的有效长度不小于 | ||||||
|
散 |
200mm,圆钢应连续且兜底设置,龙骨采用 |
k L 1 | ||||||
|
物 料 吊 |
Φ 14@200钢筋焊制,底面间距不大于150mm,内 铺不小于1.2mm厚的钢板; |
★★★ | ||||||
|
运 |
2.吊运容器底面尺寸:长1000mm宽800mm, |
I | ||||||
|
顶面尺寸:长1200mm宽1000mm;高度750mm; | ||||||||
|
3.吊运容器应根据验算结果,标明限重标 | ||||||||
|
识,箱体外侧喷刷红白相间警示色。 |
垃圾管道运输实例图 | |||||||
序号
项目
分类
安全生产标准建设内容
实例图/示意图
十四
建 筑 垃 圾
站
1. 施工现场应设置密闭式垃圾 站,建筑垃圾和生活垃圾应分开存放 及时清运,建筑垃圾宜进行资源化利 用。
2. 垃圾站外应设置负责人标识 牌。
垃圾站尺寸图
密闭式垃圾站示意图
|
标准化 达标工地 |
绿色安全 工地 |
绿色安全 样板工地 |
|
★ |
★ ★ |
★★★ |
|
序号 |
项目 分类 |
安全生产标准建设内容 |
实例图/示意图 |
标准化 达标工地 |
绿色安全 工地 |
绿色安全 样板工地 | ||
|
十五 |
建筑材料 |
|
隹f |厂*三一 预拌砂浆罐及防护棚实例图 |
★ |
★★ |
★★★ | ||
|
现场各种材料、机械设备、配电设施、消防器 材等应按照施工现场总平面图统一布置,标识清 楚。 |
现场材料分类分区域码放实例图 |
★ |
★★ |
★★★ | ||||
安全生产标准建设内容
实例图/示意图
标准化 达标工地
绿色安全
工地
绿色安全
样板工地
安装远程视频监控系统(施工现场运输车辆 出入口须安装车牌抓拍设备)。
监控设备实例图
★ ★★ ★★★
视频监控
监测系统及检测器示意图
安装扬尘在线监测设备。
监测系统及检测器示意图
★★ ★★★
安全生产标准建设内容
实例图/示意图
噪声控制 油烟净化
施工过程中优先使用低噪音、低振动的 施工机具。施工场地的强噪声设备宜设置在 远离居民区的一侧,强噪声设备应采取全封 闭等降噪措施。
砼输送泵降噪棚实例图
施工现场应根据现行标准要求控制噪 声排放,制定降噪措施,并对施工现场场界 噪声进行检测和记录。
噪声监测仪实例图监测点实例图
1. 施工现场食堂应配备排风设施。
2. 食堂应使用清洁能源,安装油烟净化 设施。
3. 食堂应设专人负责,做好日常保洁、 维护、监督等工作。
油烟净化装置实例图
标准化 绿色安全绿色安全
|
达标工地 |
工地 |
样板工地 |
|
★ |
★★ |
★★★ |
|
★ |
★★ |
★★★ |
|
★ |
★★ |
★★★ |
序号
项目
分类
安全生产标准建设内容
实例图/示意图
标准化 达标工地
绿色安全绿色安全
工地 样板工地
节水措
施工现场应充分利用中水及雨水回收 再利用等节水措施。
雨水收集系统实例图
★ ★★ ★★★
生活用水使用节水型器具,并设置明显 标识。
节水龙头与标识示意图
★★ ★★★
二十
1.施工现场应合理设置临时(移动)厕 其 所,设专人负责清扫,并定期消毒。
它 2.高层建筑施工超过8层,宜每隔4层
设置一处移动厕所。
移动式厕所示意图
★★ ★★★
|
序号 |
项目 分类 |
安全生产标准建设内容 |
实例图/示意图 |
标准化 达标工地 |
绿色安全 工地 |
绿色安全 样板工地 |
|
二十一 |
焊 烟 除 尘 净 化 器 |
用于电弧焊、二氧化碳保护焊、MAG焊 接、碳弧气刨焊、气熔割、特殊焊接等产生 烟气的作业场所。 |
A 焊烟除尘净化器单管示意图 |
★ |
★★ |
★★★ |
|
、¥ 焊烟除尘净化器双管示意图 |
第四章脚手架安全管理
|
序号 |
项目 分类 |
安全生产标准建设内容 |
实例图/示意图 |
标准化 达标工地 |
绿色安全 工地 |
绿色安全 样板工地 |
|
一 |
脚手架材质 |
扣件式钢管脚手架钢管应选用外径 48. 3mm( ±0. 5mm),壁厚 3. 6mm( ±0. 36mm), 无严重锈蚀、弯曲、压扁或裂纹的钢管,且钢 管应涂刷防锈漆。 |
钢管实例图 |
★ |
★★ |
★★★ |
|
脚手架扣件采用可锻铸铁或铸钢制作,构 配件齐全有效,其质量和性能应符合现行国家 标准规定。 |
w⅜ _______扣件示意图_______ |
★ |
★★ |
★★★ | ||
|
木脚手板厚度不小于50mm,宽度不小于 200mm,两端各设置直径不小于4mm的镀锌钢 丝箍两道。 |
_____木脚手板实例图_____ |
★ |
★★ |
★★★ | ||
|
冲压钢脚手板的材质应符合现行国家标 准规定。并应有产品质量合格证、涂防锈漆, 不得有裂纹、开焊与硬弯。 |
____冲压钢脚手板实例图____ |
★ |
★★ |
★★★ |
安全生产标准建设内容
实例图/示意图
标准化 达标工地
绿色安全绿色安全
工地 样板工地
脚手架基础
落地式脚手架搭设场地应平整、坚实, 基础应根据脚手架所受荷载、搭设高度、搭 设场地土质情况进行硬化。并设有防、排水 措施,排水沟尺寸:300mm(宽)×200mm(深)。
1. 落地式脚手架搭设场地平整、坚实并 设有防、排水措施。
2. 排水沟尺寸不小于300mm(宽)×200mm (深)。
基础地面硬化示意图
排水沟实例图
★ ★★ ★★★
★ ★★ ★★★
搭设在楼面等建筑结构上的脚手架,必 须对支撑架体的建筑结构进行承载力验算, 当不能满足承载力要求时应对建筑结构进行 回顶等加固措施。
基础回顶示意图
★★ ★★★
|
序号 |
项目 分类 |
安全生产标准建设内容 |
实例图/示意图 |
标准化 达标工地 |
绿色安全 工地 |
绿色安全 样板工地 |
|
(续) |
脚 手 架 基 础 (续) |
落地式脚手架立杆基础必须铺设垫板或 底座,其底面标高宜高于自然地坪 50mm-100mm,垫板厚度不小于50mm,单块垫 板上应设不少于2根立杆。 |
政 _____立杆垫板实例图_____ |
★ |
★★ |
★★★ |
|
* _____立杆底座实例图______ |
|
序号 |
项目 分类 |
安全生产标准建设内容 |
实例图/示意图 |
标准化 达标工地 |
绿色安全 工地 |
绿色安全 样板工地 |
|
脚手架剪刀撑及斜撑 |
脚手架外立面应设置连续剪刀撑,剪刀 撑刷红白警示色。 |
______剪刀撑实例图______ |
★ |
★★ |
★★★ | |
|
横向斜撑应在同一节间,由低至顶呈之 字型连续布置;
|
封闭型脚手架 开口型脚手架 横向斜撑实例图 横向斜撑实例图 |
★ |
★★ |
★★★ |
|
序号 |
项目 分类 |
安全生产标准建设内容 |
实例图/示意图 |
标准化 达标工地 |
绿色安 全工地 |
绿色安全 样板工地 |
|
(续) |
脚 手 架 连 墙 件 及 抛 撑 (续) |
|
d ______临时抛撑实例图______ |
★ |
★★ |
★★★ |
|
I W⅛tτ⅛ % ≡ "I B, ‰∖ B≡ — 连墙件示意图 |
★ |
★★ |
★★★ |
安全生产标准建设内容
实例图/示意图
标准化绿色安全绿色安全
达标工地 工地 样板工地
脚手架作业层防护
作业层脚手板应铺满、铺稳、铺实。
脚手板铺设实例图
★ ★★ ★★★
作业层外侧设置高度不小于180mm挡脚 板。
★ ★★ ★★★
安全生产标准建设内容
实例图/示意图
标准化 达标工地
绿色安全
工地
绿色安全
样板工地
) 四续
脚手架作业层防护续
作业层下方净空距离3m内,必须设置 一道水平安全网,第一道水平网下方每隔 10m应设置一道水平安全网。
挂设水平安全网实例图
★ ★★ ★★★
作业层里侧边缘与墙面间距大于200mm 的,挂设水平安全网或铺设脚手板。
空隙挂网实例图
★★
★★★
安全生产标准建设内容
实例图/示意图
标准化 达标工地
绿色安全 工地
绿色安全
样板工地
脚手架外立面防护网 脚手架荷载
落地式脚手架采用密目式安全网沿外 立杆内侧进行封闭,密目式安全立网之间必 须连接牢固,封闭严密,并用专用绑绳与架 体固定。
1. 附着式、悬挑式脚手架的外立面采用 可装拆式钢板网封闭,且牢固平整、美观。
2. 落地式钢管脚手架(搭设高度超过24 米)外立面采用可装拆式钢板网。
3. 钢板网的设置应考虑风载、特殊部位 的加固。
4. 钢板网的连接件应经检测和试验。
搭设高度超过35m的落地式双排脚手架 应在架体约2/3高度处、架体转角及开口等 部位采用钢丝绳进行卸荷。
密目安全网封闭实例图
咼大脚手架卸荷示意图
★ ★★
★★ ★★★
★★
★★★
序号
项目
分类
安全生产标准建设内容
实例图/示意图
标准化 达标工地
绿色安全 工地
绿色安全
样板工地
悬挑梁应采用双轴对称且截面高度不 小于160mm的型钢,用直径不小于16mm的U 型钢筋拉环或螺栓锚固。
U型螺栓锚固示意图
★★
★★★
悬挑式脚手架
型钢悬挑梁外端设置钢丝绳与上一层 建筑结构斜拉接。
钢丝绳斜拉接示意图
★ ★★ ★★★
悬挑架架体底层采取封闭措施。
★★
★★★
架体底层封闭示意图
安全生产标准建设内容
实例图/示意图
标准化 达标工地
绿色安全
工地
绿色安全
样板工地
组装式附着升降脚手架示意图
★ ★ ★★★
附着式升降脚手架
1. 附着式升降脚手架的搭设、组装、升 降、监管执行《建筑施工工具式脚手架安全 技术规范》(JGJ 202)。
2. 附着式升降脚手架的防倾覆和防坠 装置以及滑轨连墙件必须符合规范要求。
附着升降脚手架防护实例图
集成式附着升降脚手架实例图
★ ★ ★★★
★★
★★★
安全生产标准建设内容
实例图/示意图
标准化 达标工地
绿色安全
工地
绿色安全 样板工地
移动式操作平台架
1. 平台防护栏杆可采用Φ48. 3mm×3.6 mm钢管,应采用扣接或承插方式与平台连 接牢固。台面应满铺5mm厚钢质或50mm厚 木质的脚手板,并固定牢固。
2. 平台作业面四周应设置不低于1. 2m 高防护栏杆,并采用密目式安全网封闭,同 时底部设置高度不低于180mm挡脚板。
3. 作业人员进入平台作业面后,平台出 入口应采用硬质材料进行刚性封闭。
4. 移动式操作平台面积不应超过10 m∖高度不宜超过5m,高宽比不应大于 2:1,总施工荷载不应超过1.5kN /rfo
移动式操作平台尺寸示意图
移动式操作平台示意图
★★
★★★
移动式操作平台示意图
|
序号 |
项目 分类 |
安全生产标准建设内容 |
实例图/示意图 |
标准化 达标工地 |
绿色安全 工地 |
绿色安全 样板工地 |
|
九 (续) |
移 动 式 操 作 平 台 架 (续) |
施工升降平台应由具备相关资质的厂 家生产,并具备产品合格证及检测报告。使 用过程中严格遵守产品说明书相关规定,作 业人员操作前必须经过厂家培训并取证。 剪叉式升降平台超过高度时应有防倾 覆措施。 |
S 剪叉式升降平台示意图 |
★ |
★★ |
★★★ |
|
曲臂式升降平台示意图 |
★ |
★★ |
★★★ |
安全生产标准建设内容
实例图/示意图
标准化 达标工地
绿色安全 工地
绿色安全
样板工地
) 九续
/ 、
) 落地式操作平台架续
1. 平台作业面临边应设置不低于1. 5m 高的防护栏杆,栏杆内侧使用15mm厚木板 或1. 5mm厚钢板等硬质材料封闭严密。
2. 平台上码放的料具严禁超过设计限 重,严禁超过平台的防护栏高度,不得将物 料放置在防护栏杆上或挤靠防护栏杆。
3. 落地式操作平台高度不应超过15m, 高宽比不应大于3:1,总施工荷载不应大于 2. QkN/rfo
落地式操作平台尺寸示意图
★ ★★
落地式操作平台实例图
卸料平
安全生产标准建设内容
-1.落地式卸料平台高度不应大于15m, 高宽比不应大于3:1。
2. 落地式卸料平台应从底层第一步水 平杆起逐层设置连墙件,连墙件间隔不应大 于4m,不得与脚手架连接;并应设置水平 剪刀撑,同时在外立面设置剪刀撑或斜撑; 一次搭设高度不应超过相邻连墙件以上两 步。
3. 落地式卸料平台经检查验收合格后 方可使用;遇6级以上大风、雷雨、大雪等 恶劣天气及停用超过1个月,恢复使用前, 应进行检查。
实例图/示意图
落地式卸料平台示意图
标准化 达标工地
绿色安全 工地
绿色安全
样板工地
★ ★★ ★★★
1. 悬挑式型钢操作平台防护栏立杆宜 采用钢管与平台主梁焊接方式固定,焊缝质 量应满足二级焊缝要求;或在主梁上焊接 DN25钢管,采取防护栏立杆与定位钢管承 插的方式予以固定,定位钢管设置高度不得 低于150mm,与主梁的焊缝质量应满足二级 焊缝要求。
2. 悬挑式卸料钢平台的制作、安装应符 合规范及设计要求。
悬挑式钢板卸料钢平台实例图
★ ★ ★★★
序号
项目
分类
安全生产标准建设内容
实例图/示意图
十一
施 工 人 行 马
道
钢管搭设的扣件式施工人行马道执行 标准应符合《建筑施工扣件式钢管脚手架安 全技术规范》(JGJ130)的相关要求。
钢管扣件式施工人行马道示意图
钢管搭设的扣件式施工人行马道内部 构造执行标准应符合《建筑施工扣件式钢管 脚手架安全技术规范》(JGJ130)的相关要 求。
工具式施工人行马道:
1. 编制专项方案及计算书;
2. 标准节整体焊接,标准节之间采用螺 栓组装或采用定型构配件承插连接;
3. 市政、路桥、基坑、地下暗挖、竖井 工程等上下人员通道必须制作工具式专用 马道。
钢管扣件式施工人行马道示意图
工具式施工人行马道示意图
标准化绿色安全绿色安全
|
达标工地 |
工地 |
样板工地 |
|
★ |
★★ |
★★★ |
|
★ |
★★ |
★★★ |
|
★★ |
★★★ |
序号
项目
分类
安全生产标准建设内容
实例图/示意图
标准化 绿色安全绿色安全
达标工地 工地 样板工地
工具式电动吊篮架
高处作业的吊篮架安装、拆除作业应 编制专项施工方案并审批,悬挂吊篮的支 撑结构承载力应经过验算。
悬挂机构前支架严禁支撑在女儿墙 上、女儿墙外或建筑物外挑檐边缘上;悬 挂机构前梁外伸长度应符合产品说明书规 定。
吊篮应安装防坠安全锁,吊篮应设置 作业人员专用的挂设安全带的安全绳和安 全锁扣,安全绳应固定在建筑物主体结构 等可靠位置上。
电动吊篮架构造示意图
电动吊篮架悬挂机构示意图
电动吊篮架防坠装置示意图
★ ★★ ★★★
★ ★★ ★★★
★ ★★ ★★★
第五章模板支撑体系安全管理
|
序号 |
项目 分类 |
安全生产标准建设内容 |
实例图/示意图 |
标准化 达标工地 |
绿色安全 工地 |
绿色安全 样板工地 |
|
一 |
模板支架构配件及类型 |
模板支架可调底座及可调托撑丝杆与 螺母捏合长度不得少于4-5扣,丝杆直径不 小于36mm。使用碗扣式钢管做支撑体系时, 丝杆外径应不小于38mm。 |
τ ■ UIMH A e*>7-MtaMn- •* .、 βCttMttι⅛tMy)M*,f∙IV , *: F Imhii- ______可调底座示意图_____ |
★ |
★★ |
★★★ |
|
1 _____可调托撑实例图______ | ||||||
|
境善罢 罕gψq懸関⅛ OrIS 扣件式模板支架实例图 |
★ |
★★ |
★★★ |
序号
安全生产标准建设内容
实例图/示意图
标准化 达标工地
绿色安全绿色安全
工地 样板工地
(续)
模板支架构配件及类型续
碗扣式钢管模板支架,其搭设要求应符 合JGJ166规范要求。
承插型盘扣式钢管模板支架,其搭设要 求应符合JGJ231规范要求。
铝合金式模板支架,立杆应保持竖直。
碗扣式模板支架实例图
承插型盘扣式模板支架实例图
铝合金式模板实例图
★ ★★ ★★★
★ ★★ ★★★
★★ ★★★
|
序号 |
项目 分类 |
安全生产标准建设内容 |
实例图/示意图 |
标准化 达标工地 |
绿色安全 工地 |
绿色安全 样板工地 |
|
二 |
模板支架基础 |
模板支架地基应坚实、平整,有防、排 水措施。 |
______地基实例图_______ |
★ |
★★ |
★★★ |
|
模板支架立杆底部应设置可调底座和 垫板。 |
可调底托实例图底部垫板示意图 |
★ |
★★ |
★★★ | ||
|
架体搭设前应清除场地障碍物,对承载 力不足的地基土或楼板应进行加固处理。 |
,⅝⅜w> *≡≡⅛ ( ⅛ Pl ] J∏J _____楼板回顶示意图_____ |
★ |
★★ |
★★★ | ||
|
碇硬化 石垫房 层夯实 _____地基土硬化示意图_____ |
★ |
★★ |
★★★ |
|
序号 |
项目 分类 |
安全生产标准建设内容 |
实例图/示意图 |
标准化 达标工地 |
绿色安全 工地 |
绿色安全 样板工地 |
|
三 |
模板支架构造 |
模板支架应在纵、横向分别布置竖向剪 刀撑,剪刀撑布置宜均匀对称。竖向剪刀撑 间隔不应大于6跨,每组剪刀撑的跨数不应 超过6跨,剪刀撑倾斜角度宜在45° -60° 之间,模板支架外围应设置连续封闭的剪刀 撑。 |
____纵横向剪刀撑示意图____ |
★ |
★★ |
★★★ |
|
搭设高度5米以上的模板支架顶层及扫 地杆层应设置水平剪刀撑,采用旋转扣件固 定在与之相交的立杆或水平杆上,并且间隔 层数不应大于6步。 |
饌 _____水平剪刀撑示意图_____ |
★ |
★★ |
★★★ |
|
序号 |
项目 分类 |
安全生产标准建设内容 |
实例图/示意图 |
标准化 达标工地 |
绿色安全 工地 |
绿色安全 样板工地 |
|
模 板 支 架 构 造 (续) |
模板支架顶层水平杆中心线至可调托 撑托板顶面的距离不应大于650mm;可调托 撑螺杆伸出长度不应大于300mm,插入立杆 内的长度不应小于150mm;可调托撑螺杆外 径与立杆钢管内径的间隙不宜大于3mm,安 装时上下应同轴;可调托撑上的主龙骨(支 撑梁)应居中。 |
IrKJ I IJ HS 可调托撑示意图支架顶部实例图 |
★ |
★★ |
★★★ | |
|
三 | ||||||
|
(续) |
扣件式模板支架纵、横向扫地杆高度 不应大于200mm。 |
■ — ■ |
★ |
★★ |
★★★ | |
|
扣件式支架扫地杆高度示意图 |
|
序号 |
项目 分类 |
安全生产标准建设内容 |
实例图/示意图 |
标准化 达标工地 |
绿色安全 工地 |
绿色安全 样板工地 |
|
(续) |
模 板 支 架 构 造 (续) |
碗扣式模板支架纵、横向扫地杆高度不 应大于350mm。 |
碗扣式支架扫地杆实例图 |
★ |
★★ |
★★★ |
|
承插型盘扣式模板支架纵、横向扫地杆 高度不应大于550mm。 |
承插型盘扣式支架扫地杆示意图 |
★ |
★★ |
★★★ |
|
序号 |
项目 分类 |
安全生产标准建设内容 |
实例图/示意图 |
标准化 达标工地 |
绿色安全 工地 |
绿色安全 样板工地 |
|
四 |
模板支架稳定性 |
遇有既有结构时,模板支架应采用拉或 顶的方式与既有结构进行可靠连接;竖向连 接间隔不宜超过2步,水平连接间隔不宜超 过8m,并优先布置在水平剪刀设置层处。 |
______拉接示意图______ |
★ |
★★ |
★★★ |
|
后浇带模板支架应独立设置,高宽比大 于3:1时应有防倾覆措施。 |
后浇带模板支架示意图 |
★ |
★★ |
★★★ |
安全生产标准建设内容
实例图/示意图
标准化 达标工地
绿色安全
工地
绿色安全 样板工地
模板支架防护
作业面临边部位应单独设置高度不低 于1. 2m高的防护栏杆,并挂设密目安全网、 设置挡脚板。
防护栏杆实例图
★ ★★
★ ★★
作业面下方应挂设水平安全网。
水平安全网实例图
★★ ★★★
序号
项目
分类
安全生产标准建设内容
实例图/示意图
标准化绿色安全绿色安全
达标工地 工地 样板工地
大模板存放场地必须平整、坚实或硬 化,并设有排水措施。四周应设置高度不 低于1200mm的围栏并封闭管理,出入口设 置显著标识、负责人及警示标志。
大模板存放场地示意图
★ ★★ ★★★
大模板安装前应按配模设计平面图规 定位置将操作平台、护栏、爬梯及工具箱 等安装齐全并连接牢固。
大模板存放示意图
★ ★★ ★★★
有支撑架的大模板存放时必须满足自 稳角70° -80°要求,并采取两块大模板 板面对板面相对放置的方法,且应在模板 中间留置不小于600mm的操作间距。
大模板存放示意图
★ ★★ ★★★
|
序号 |
项目 分类 |
安全生产标准建设内容 |
实例图/示意图 |
标准化 达标工地 |
绿色安全 工地 |
绿色安全 样板工地 |
|
六 (续) |
大 模 板 (续) |
无支腿大模板和角模模板必须放入专 门设计的模板插放架内,插放架应使用钢 管搭设,设置行走马道和防护栏杆,架体 高度不得低于大模板高度的80%。 |
无支腿模板插放架实例图 |
★ |
★★ |
★★★ |
的通知》(京建发〔2010) 281号)。 |
占/"K吊輝 占忤酬~⅛ . Tn⅞fr 带 ∏ f『纟h h矿負 I,, * I I∙I * !.參參.纟 HllM M 夕彳彳項,彳,,多1 - ξ & ∙ Z ≡ 如修,5 "号J U S • H ∙ Ii r H Iβ i Γ1 Il ,U iβ I m ; JmJɪjɪujɪj 木质大模板吊环制作示意图 |
* |
★★ |
★★★ |
|
序号 |
项目 分类 |
安全生产标准建设内容 |
实例图/示意图 |
标准化 达标工地 |
绿色安全 工地 |
绿色安全 样板工地 |
|
七 |
装配式混凝土墙板构件存放 |
|
预制墙板扣件式钢管插放架示意图 1-钢管;2-脚手板;3-预制构件 |
★ |
★ ★ |
★★★ |
|
预制墙板插放架示意图 1-木方;2-预制墙板;3-专用插放架 |
|
序号 |
项目 分类 |
安全生产标准建设内容 |
实例图/示意图 |
标准化 达标工地 |
绿色安全 工地 |
绿色安全 样板工地 |
|
A |
装 配 式 混 凝 土 叠 合 板 、 梁 构 件 吊 装 |
|
A 预制叠合梁吊装示意图 1-主钢丝绳;2-模数化吊装梁; 3-构件钢丝绳;4-吊环;5-预制构件 |
★ |
★ ★ |
★★★ |
|
预制叠合板吊装示意图 1-主钢丝绳;2-模数化吊装梁; 3-构件钢丝绳;4-预制构件;5-吊环 |
|
序号 |
项目 分类 |
安全生产标准建设内容 |
实例图/示意图 |
标准化 达标工地 |
绿色安全 工地 |
绿色安全 样板工地 |
|
九 |
电梯井操作平台 |
电梯井操作平台(落地式钢管脚手架) 参照《建筑施工扣件式钢管脚手架安全技 术规范》相关规定搭设。 |
[ES 落地式电梯井操作平台示意图 |
★ |
★★ |
★★★ |
|
电梯井操作平台(插杠式): 电梯井操作平台应牢固可靠,固定支 撑插杠应使用不小于14#的工字钢。操作 平台放置在插杠上,工字钢插杠插入墙内 侧长度不少于300mm,插杠插孔应满足设 计要求。 |
■ A 插杠式电梯井操作平台示意图 |
★ |
★★ |
★★★ | ||
|
电梯井操作平台(自卡式): 1、 电梯井自卡式操作平台应编制专项 方案,禁止施工现场自行加工。 2、 平台斜支撑槽钢及下支角槽钢应不 低于8#。 |
4項 I 自卡式电梯井操作平台示意图 |
★ |
★★ |
★★★ |
第六章安全防护
序号
安全生产标准建设内容
实例图/示意图
标准化绿色安全绿色安全
达标工地 工地 样板工地
基坑、沟、槽临边防护
1. 深度超过2m的基坑、沟、槽周边应设置不 低于1. 2m的临边防护栏杆,并设置夜间警示灯。
2. 采用钢管搭设时,应设置两道防护栏杆(下 道栏杆离地600mm,上道栏杆离地1. 2m),立杆 间距应不超过2m,防护栏杆内侧满挂密目安全网, 防护外侧设置180mm挡脚板。
钢管式防护栏杆示意图
夜间警示灯实例图
★★
★★ ★★★
基坑降排水
1. 采用格栅式工具护栏时,立柱选用截面长、 宽不小于40mm,厚度不小于2. 5mm的方形钢管。
2. 采用网片式工具护栏时,立柱选用截面长、 宽不小于40mm,厚度不小于2. 5mm的方形钢管。
工具式防护栏杆示意图
★★ ★★★
1. 基坑边沿周围地面应设防渗漏排水沟或挡 水台。
2. 排水沟宽度300mm,高400mm。
3. 挡水台高150mm。
挡水台实例图
★★
★★★
|
安全生产标准建设内容 |
实例图/示意图 |
标准化 达标工地 |
绿色安全 工地 |
绿色安全 样板工地 |
|
施工现场楼层临边作业区域,应按标准设置防 护设施。 |
I |
★ |
★★ | |
|
--- | ||||
|
w∖x∖xvvvvig∣3 钢管式防护栏实例图 | ||||
|
工具式防护栏实例图’ |
★★ |
★★★ | ||
|
施工现场楼梯口和梯段边,应搭设高度不低于 1.2m的防护栏杆,喷刷双色相间安全警示色。 |
钢管式楼梯防护栏杆实例图 |
★ |
★★ | |
|
组装式楼梯防护栏杆示意图 |
★★ |
★★★ |
临边防护
安全生产标准建设内容
实例图/示意图
标准化 达标工地
绿色安全 工地
绿色安全 样板工地
洞口防护
边长1.5m以下水平洞口,应设置钢筋网片,并
采用坚实的盖板封闭,有防止挪动、位移的措施,
盖板加警示标识。
【洞口制作说明】
1、
2、
3、
胶合木板或脚手板;
Φ 8mm铁丝;
钢筋网片。
边长1. 5m以上水平洞口四周搭设不低于1. 2m
的防护栏,洞口上侧支搭水平安全网封闭。
洞口防护尺寸图
1500mm以下洞口防护实例图
★★
★★★
1.5m以上洞口防护实例图
★★
★★★
序号
项目
分类
安全生产标准建设内容
实例图/示意图
四
(续)
(续)
伸缩缝、后浇带处,应加固定盖板防护,并加 设警示标识。
1. 电梯井口应设置固定式防护门,其高度不应 低于1. 5m,底部安装高度不低于180mm挡脚板,竖 向栏杆净距不大于120mm。
2. 防护栏四角采用膨胀螺栓与结构墙体固定, 外侧设安全警示标志。
1. 电梯井道首层应设置双层水平安全网,首层 以上和有地下室的电梯井道内,每隔两层且不大于 10m增设一道水平安全网。
2. 应使用钩头螺栓安装,钩头螺栓用 HPB300-Φ16以上圆钢冷弯加工,电梯井内每根钢 管两端对称分别设置不少于2个钩头螺栓固定。
后浇带防护示意图
电梯井防护门实例图
电梯井道水平网防护示意图
标准化 绿色安全绿色安全
|
达标工地 |
工地 |
样板工地 |
|
★ |
★★ |
★★★ |
|
★ |
★★ |
★★★ |
|
★ |
★★ |
★★★ |
安全生产标准建设内容
实例图/示意图
标准化 达标工地
绿色安全
工地
绿色安全 样板工地
施工现场安全通道
1. 建筑物主要出入口应搭设安全通道防护棚, 高度大于或等于3. 5m,宽于洞口两边各不小于1m, 多层建筑防护棚长度不小于3m,高层建筑防护棚长 度不小于6m。
2. 安全通道上方铺设双层50mm脚手板,通道 入口处挂安全警示标志。
钢管式防护棚示意图
★ ★★
工具式防护棚示意图
★ ★★
悬挑式水平
1. 在建工程外侧除使用落地式脚手架和高处 作业吊篮外,应搭设水平安全网防护。
2. 多层建筑首层四周必须搭设3m宽的水平安 全网,网底距接触面不得小于3m;高层建筑首层四 周应搭设6m宽的双层水平安全网,网底距接触面 不得小于5m。多层和高层建筑应每隔四层且不大于 10m设置一道3m宽的水平安全网。
悬挑式水平安全网实例图
★★ ★★★
|
序号 |
项目 分类 |
安全生产标准建设内容 |
实例图/示意图 |
标准化 达标工地 |
绿色安全 工地 |
绿色安全 样板工地 | ||
|
垂 |
施工现场或现场外,处于立体交叉作业或起重 设备的起重机臂回转范围之内的通道,应搭设双层 安全通道,通道上方铺设双层50mm脚手板。 |
钢管式安全防护通道实例图 |
★ |
★★ | ||||
|
七 |
直交叉作业防护措 |
工具式安全防护通道示意图 |
★★★ | |||||
|
施 |
施工现场立体交叉作业时,应编制支搭中间硬 质防护隔层的专项施工方案。方案应包含工字钢规 格、悬挑长度、间距、钢丝绳卸荷以及计算等技术 要求。 施工现场立体交叉作业时,搭设硬质防护隔 层。隔层工字钢规格、悬挑长度、间距等技术要求, 应按专项方案实施。_______________ |
★ |
★★ |
★★★ | ||||
|
序号 |
项目 分类 |
安全生产标准建设内容 |
实例图/示意图 |
标准化 达标工地 |
绿色安全 工地 |
绿色安全 样板工地 |
|
A |
有限空间设备和防护措施 |
配备气体检测设备,对作业场所中危 害气体进行持续或定时检测。 |
■ )J* I 气体检测仪器示意图 |
★ |
★★ |
★★★ |
通风管道尺寸。______________ |
<l,⅛i 通风设备实例图 通风管道实例图 |
★ |
★★ |
★★★ | ||
|
有限空间作业安全告知牌式样 3严禁无关人员 回归 进入有限空间 > 「會£囂嘴編Blm Sft 「化.:L手;:分的通风换芝; ■, ■ ® 0@ Λ. 报警电活:XXX (当地派出所电活) 急救电活:XXX (附近医院电活) 注,告知牌仅供参考.各鱼位可结合有限空冋作业场部实乐情况元行业規范 有关要求,自行设置警示内容。 作业标识示意图 电缆敷设示意图 |
★ |
★★ |
★★★ |
|
序号 |
项目 分类 |
安全生产标准建设内容 |
实例图/示意图 |
标准化 达标工地 |
绿色安全 工地 |
绿色安全 样板工地 |
|
九 |
钢 结 构 施 工 抱 箍 式 双 道 安 全 绳 |
抱箍在钢柱或构件吊装前安装到位,在 柱间梁安装后即装设安全绳。 |
抱箍式安全绳示意图 |
★ |
★★ |
★★★ |
|
I •…、 ∣N∣≥ 抱箍式安全绳示意图 |
|
序号 |
项目 分类 |
安全生产标准建设内容 |
实例图/示意图 |
标准化 达标工地 |
绿色安全 工地 |
绿色安全 样板工地 |
|
十 |
钢结构施工立杆式双道安全绳 |
立杆式双安全绳安装在钢梁或其它构件部 位时,应在钢梁或构件起吊前安装到位。 |
V ¾M⅝∣⅝ Mg I W 立杆式双道安全绳示意图 |
★ |
★★ |
★★★ |
|
ʌθ-ɪ /W性 I ', 立杆式双道安全绳示意图 |
|
序号 |
项目 分类 |
安全生产标准建设内容 |
实例图/示意图 |
标准化 达标工地 |
绿色安全 工地 |
绿色安全 样板工地 |
|
十一 |
钢 结 构 施 工 垂 直 登 咼 挂 梯 |
垂直登高挂梯安装、使用应符合下列要求:
|
«>> I sμ⅞ ⅜⅜⅜ Wsh ■12 WE I 垂直登高挂梯示意图 κ⅛⅝⅛⅜ ”日■ :H 垂直登高挂梯示意图 |
★ |
★★ |
★★★ |
祚g钢结构施工操作挂篮
安全生产标准建设内容
施工人员在挂篮内作业时,将双大钩安全 带挂在安全绳上,同时挂篮防坠绳挂在安全绳 上。
实例图/示意图
操作挂篮意图
标准化 达标工地
绿色安全 工地
绿色安全
样板工地
★ ★★ ★★★
钢结构施工固定式操作平台
固定式操作平台设置应符合下列要求:
1. 操作平台底部可随柱、梁等结构的不同 进行针对性的制作,其他部位可不作调整。
2. 操作平台应在内侧四角设置吊点,确保 该部位作业前安装到位,该部位作业全部完成 后方可拆除。
固定式操作平台示意图
封闭式固定操作平台示意图
★★ ★★★
|
序号 |
项目 分类 |
安全生产标准建设内容 |
实例图/示意图 |
标准化 达标工地 |
绿色安全 工地 |
绿色安全 样板工地 |
|
十四 |
钢结构施工下挂式水平网 |
下挂式水平安全网的设置应符合下列规定:
|
1--------------------------------------1 ɪ/ / ¾ 下挂式水平安全网示意图 |
★ |
★★ |
★★★ |
|
十五 |
钢结构施工上挂式水平网 |
上挂式水平安全网的设置应符合下列规定:
|
2 i 上挂式安全网立面图 上挂式安全网俯视图 |
★ |
★★ |
★★★ |
|
序号 |
项目 分类 |
安全生产标准建设内容 |
实例图/示意图 |
标准化 达标工地 |
绿色安全 工地 |
绿色安全 样板工地 |
|
十六 |
钢 结 构 施 工 钢 制 组 装 通 道 |
钢制组装通道制作、使用应符合下列要 求:
|
W Al ■嘛 ---- ⅜50X3,5¾¾⅞/ 底座大样示意图_____ 钢制组装通道示意图 |
★ |
★★ |
★★★ |
第七章临时用电
序号
项分
目类
安全生产标准建设内容
实例图/示意图
临时用电安全技术管理
1. 施工现场临时用电设备在5台 及以上或设备总容量在50kW及以上 者,应编制用电施工组织设计。
2. 临时用电施工组织设计由电气 工程技术人员组织编制,经企业技术 负责人批准后实施。
用电组织设计审批示意图
用电组织设计会审示意图
临时用电工程必须经编制、审核、 批准部门和使用单位共同验收,合格 后方可投入使用。
用电工程验收示意图
|
标准化 达标工地 |
绿色安全 工地 |
绿色安全 样板工地 |
|
★ |
★★ |
★★★ |
|
★ |
★★ |
★★★ |
|
★ |
★★ |
★★★ |
序号
项目
分类
安全生产标准建设内容
实例图/示意图
标准化绿色安全绿色安全
达标工地 工地 样板工地
在建工程的塔吊回转半径内,如有外 电架空线路,且达不到安全距离时,须搭 设木制防护架等绝缘隔离防护措施。
防护架示意图
★ ★★ ★★★
1.施工现场配电线路可使用架空或 桥架敷设,且架设固定牢固。
2.所有电源电缆不可沿地面明敷设。
★★
★★★
埋地电缆在穿越建筑物、构筑物、道 路、易受机械损伤、介质腐蚀场所及引出 地面从2m高到地下200mm处,必须加设 防护套管,防护套管内径不应小于电缆外 径的1.5倍。
埋地电缆防护示意图
★★
★★★
序号
项目
分类
安全生产标准建设内容
实例图/示意图
标准化 达标工地
绿色安全绿色安全
工地 样板工地
配电线路必须采用绝缘导线 或电缆。
★★ ★★★
电缆敷设示意图 电缆敷设实例图
配电线路防护
室内配线采用瓷瓶、绝缘槽、 穿管或钢索敷设。
地面电缆槽敷设示意图架空电缆钢索敷设实例图
★★ ★★★
潮湿场所或埋地非电缆配线 必须穿管敷设,管口管接头应密 封;当采用金属管敷设时,金属 管必须做等电位连接.必须与PE 线相连接。
室内电缆架空实例图 作业面电缆架空实例图
★ ★★ ★★★
|
序号 |
项目 分类 |
安全生产标准建设内容 |
实例图/示意图 |
标准化 达标工地 |
绿色安全 工地 |
绿色安全 样板工地 | ||
|
四 |
接地与接零保护系统 |
施工现场临时用电必须使用TN-S三 相五线制接零保护系统,做到三级配电、 逐级漏电保护。 |
IlZ∑5zEj.- -------: :%骐迪4* TN-S接零保护系统示意图 |
★ |
★★ |
★★★ | ||
|
配电箱内N线、PE线规格、型号、连 接符合规范要求。 |
N线、PE线 |
:端子板实例图 |
★ |
★★ |
★★★ | |||
|
~1.当施工现场与外电线路共用同一供 电系统时,电气设备的接地、接零保护应 与原系统保持一致。 2.配电系统的首端处、中间处和末端 处必须做重复接地。 |
,1 二 IoL I------L PE线连接平面图 PE线连接实物图 |
★ |
★★ |
★★★ | ||||
序号
项目
分类
安全生产标准建设内容
实例图/示意图
标准化绿色安全绿色安全
达标工地 工地 样板工地
1. 配电室应靠近电源,并应设 在灰尘少、潮气少、振动小、无腐 蚀介质、无易燃易爆物及道路畅通 的地方。
2. 配电室和控制室应能自然 通风,并应采取防止雨雪侵入和动 物侵入的措施。
3. 配电室门向外开,并配锁。
1. 配电室的建筑物和构筑物 的耐火等级不低于3级,室内配备 砂箱和可用于扑灭电气火灾的灭 火器。
2. 配电室的照明分别设置正 常照明和事故照明应急灯。
1. 成列的配电柜和控制柜两 端应与重复接地线及保护零线做 电气连接。
2. 配电柜应设电源隔离开关 及短路、过载、漏电保护电器。电 源隔离开关分断时应有明显可见 分断点。
配电室示意图
★ ★★ ★★★
配电室内布置示意图
★ ★★ ★★★
配电柜内布局实例图
★ ★★ ★★★
序号
项目
分类
安全生产标准建设内容
实例图/示意图
分 配 电 箱
1. 配电箱防护棚可釆用方管加工制 作,并做好保护接零。
2. 顶部釆用硬质防护,并设不小于5% 坡度的排水坡,上层满铺不小于50mm厚的 脚手板。
3. 防雨防砸层四周外立面设宽出防护 棚200mm的防雨檐,高度不小于300mm。防 护棚防栏涂红白相间警士色。正面设置电 安全警示标志牌。
1. 分配电箱内配置、安装及使用符合 规范要求。
2. 固定式分配电箱、开关箱距地高度 1.4m〜1.6m,移动式分配电箱、开关箱距 地高度0. 8m〜1.6m。
分配电箱内控制回路满足使用需求。
分配电箱防护棚示意图
分配电箱外观设置示意图
分配电箱内置设置示意图
|
标准化 达标工地 |
绿色安全 工地 |
绿色安全 样板工地 |
|
★ |
★★ |
★★★ |
★ ★★ ★★★
★ ★★ ★★★
|
序号 |
项目 分类 |
安全生产标准建设内容 |
实例图/示意图 |
标准化 达标工地 |
绿色安全 工地 |
绿色安全 样板工地 |
|
七 |
开关箱 |
|
mJ W 固定开关箱及内部布置示意图 |
★ |
★★ |
★★★ |
|
■ B 流动开关箱及内部布置示意图 |
★ |
★★ |
★★★ | |||
|
¾EI I 1 T F 专用开关箱及内部布置示意图 |
★ |
★★ |
★★★ |
序号
项目
分类
安全生产标准建设内容
实例图/示意图
低 压 照 明
低压变压器安装、使用及专用箱符合规范 要求。
隧道、人防工程、高温、有导电灰尘、潮 湿或灯具离地面高度低于2. 5m等场所的照明, 电源电压不应大于36V。
潮湿和易触及带电体场所的照明,电源电 压不得大于24V;特别潮湿场所、导电良好的地 面、锅炉或金属容器内的照明,电源电压不得 大于12V。
低压变压器示意图
低压照明灯示意图
低压手把灯示意图
|
标准化 达标工地 |
绿色安全 工地 |
绿色安全 样板工地 |
|
★ |
★★ |
★★★ |
|
★ |
★★ |
★★★ |
|
★ |
★★ |
★★★ |
|
序号 |
项目 分类 |
安全生产标准建设内容 |
实例图/示意图 |
标准化 达标工地 |
绿色安全 工地 |
绿色安全 样板工地 |
|
九 |
室 外 照 明 装 置 |
施工现场室外照明电源电压和照明灯具安 装、使用应符合规范要求。 |
施工照明探照灯示意图 |
★ |
★★ | |
|
⅛ 特殊部位防爆照明灯示意图 |
★ |
★★ |
★★★ | |||
|
移动式照明灯示意图 |
★ |
★★ |
★★★ |
|
序号 |
项目 分类 |
安全生产标准建设内容 |
实例图/示意图 |
标准化 达标工地 |
绿色安全 工地 |
绿色安全 样板工地 |
|
十 |
LED 照 明 装 置 |
施工现场、办公区、生活区宜安装使用LED 照明灯具。 |
Q⅝ 施工现场投光照明灯示意图 |
★ |
★★ |
★★★ |
|
施工现场局部照明灯示意图 |
★ |
★★ |
★★★ | |||
|
q 狭小空间手把式移动照明灯示意图 |
★ |
★★ |
★★★ |
|
序号 |
项目 分类 |
安全生产标准建设内容 |
实例图/示意图 |
标准化 达标工地 |
绿色安全 工地 |
绿色安全 样板工地 |
|
十一 |
施工用电安全检测设备 |
临时用电绝缘电阻测试记录仪。 |
b r ___绝缘电阻测试记录仪示意图___ |
★ |
★★ |
★★★ |
|
临时用电接地电阻测试记录仪。 |
接地电阻测试记录仪示意图 |
★ |
★★ |
★★★ | ||
|
临时用电漏电保护器运行检测记录仪。 |
漏电保护器运行检测记录仪示意图 |
★ |
★★ |
★★★ |
第八章塔式起重机、起重吊装安全管理
|
序号 |
项1 分类 |
安全生产标准建设内容 |
实例图/示意图 |
标准化 达标工地 |
绿色安全 工地 |
绿色安全 样板工地 |
|
一 |
塔式起重机基础 |
塔式起重机基础承载力应符合 使用说明书和设计图纸的要求;安装 前应对基础进行验收,合格后方可安 装。 |
TJT 预埋式塔吊基础示意图 |
★ |
★★ |
★★★ |
|
塔式起重机基础周围设置排水 设施。 |
塔吊基础排水设施示意图 |
★ |
★★ |
★★★ | ||
|
塔式起重机预埋式基础周边设 置围栏。 |
预埋式塔吊基础周边围栏示意图 |
★ |
★★ |
★★★ |
安全生产标准建设内容
实例图/示意图
塔式起重机用电 安全保护装置
1. 塔式起重机设置专用开关 箱。
2. 塔式起重机的金属结构设 置独立接地装置。
塔式起重机的使用高度超过 30m时,配置障碍灯;起重臂根部 皎点高度超过50m时配备风速仪。
塔式起重机专用开关箱示意图
塔式起重机接地装置示意图
风速仪示意图
障碍灯示意图
|
标准化 达标工地 |
绿色安全 工地 |
绿色安全 样板工地 |
|
★ |
★★ |
★★★ |
|
★ |
★★ |
★★★ |
塔式起重机附着、锚固、吊装作业装置规定
安全生产标准建设内容
塔式起重机附着、锚固装 置的设置应符合说明书的规 定;禁止擅自在建筑起重机械 上安装非原制造厂制造的附着 装置。
塔式起重机吊装作业严格 执行“十不吊”操作规定。
实例图/示意图
墙板式塔吊附着示意图 钢结构式塔吊附着示意图
框架式塔吊附着示意图
内爬式塔吊附着示意图
塔吊作业十不吊示意图
标准化 达标工地
绿色安
全工地
★★
绿色安全
样板工地
★★★
|
序号 |
项1 分类 |
安全生产标准建设内容 |
实例图/示意图 |
标准化 达标工地 |
绿色安全 工地 |
绿色安全 样板工地 |
|
五 |
移动式汽车、轮胎式起重机 |
移动式起重机吊装作业区四周应 设置明显标志,严禁非操作人员入内。 夜间施工必须有足够的照明。作业前, 应检查起重吊装所使用的起重机滑轮、 吊索、卡环和地锚等,应确保其完好, 符合安全要求。 |
移动式起重机吊装示意图 |
★ |
★★ |
★★★ |
|
移动式汽车、轮胎式起重机支设场 地应平整坚实,支腿应采用合适厚度和 尺寸的钢板或枕木垫平。 |
EI 移动式起重机支腿示意图 |
★ |
★★ |
★★★ | ||
|
I 移动式起重机支腿示意图 |
第九章机械安全
|
序号 |
项目 分类 |
安全生产标准建设内容 |
实例图/示意图 |
标准化 达标工地 |
绿色安全 工地 |
绿色安全 样板工地 |
|
一 |
施 工 升 降 机 基 础 、 附 着 |
施工升降机地基、基础应满足使用 要求,并设置排水措施, |
4. 升降机基础示意图 |
★ |
★★ |
★★★ |
|
附墙架应采用配套标准产品,附着 间距、自由高度符合使用说明书要求, 与构筑物连接牢固可靠。 |
ι⅛ 升降机附着示意图 |
★ |
★★ |
★★★ | ||
|
二 |
施工升降机防护围栏 |
施工升降机周围应安装稳固的防护 围栏,防护围栏的安装高度、强度应符 合规范要求,围栏门应安装机电连锁装 置并灵敏可靠。 |
ωJL ^Li 升降机防护围栏示意图 |
★★ |
★★★ |
施工升降机防护设施
安全生产标准建设内容
1. 施工升降机出入口搭设安全通 道防护棚,高度N3500mm,洞口两边宽 度不小于1000mm,多层建筑防护棚长 度不小于3m,高层建筑防护棚长度不 小于6m。
2. 安全通道防护棚上方铺设双层 厚度为50mm的脚手板,挂安全警示标 志。
实例图/示意图
升降机工具式防护棚示意图
1. 施工电梯平台出口外边沿处安 装1800mm高的对开式防护门,防护门 采用钢管和钢网焊接而成,门的下沿距 平台不应超过100mm。
2. 防护门外侧面设置门闩或安装 自动锁扣。
施工升降机防护门示意图
|
标准化 达标工地 |
绿色安全 工地 |
绿色安全 样板工地 |
|
★ |
★★ |
★★★ |
|
★ |
★★ |
★★★ |
序号
项目
分类
安全生产标准建设内容
实例图/示意图
标准化 达标工地
绿色安全 工地
绿色安全
样板工地
楼 层 呼 叫 装 置
施工升降机的每层平台出入口设置
楼层呼叫装置。
★★
★★★
指纹、人脸识别系统
施工现场施工升降机设置司机指纹 识别设备。
施工现场施工升降机设置司机人脸 识别设备。
升降机楼层呼叫装置示意图
升降机司机指纹识别示意图
★★ ★★★
升降机司机人脸识别示意图
★★ ★★★
物料提升机地基、附着
安全生产标准建设内容
-物料提升机地基、基础满足使用 要求,并符合下列规定:
1. 基础土层的层承载力不应小于 80kPa。
2. 混凝土强度不低于C20,厚度 不小于300mm。
3. 基础表面应平整,水平度不应 大于10mm。
4. 基础设置排水设施。
1. 导轨架附墙间距、导轨架自由 高度符合使用要求,与构筑物连接应 牢固可靠。
2. 附墙架的材质与导轨架相一 致,附墙架与导轨架及建筑结构采用 刚性连接,不得与脚手架连接。
实例图/示意图
物料提升机基础示意图
物料提升机连墙件实例图
|
标准化 达标工地 |
绿色安 全工地 |
绿色安全 样板工地 |
|
★ |
★★ | |
|
★ |
★★ |
序号
项目
分类
安全生产标准建设内容
实例图/示意图
地面进料口安装防护围栏和防护棚, 防护围栏、防护棚的安装高度和强度符合 规范要求。
1. 吊笼停靠楼层平台两侧设置牢固 的防护栏杆、挡脚板、密目网,平台脚手 板铺设符合规定。
2. 物料提升机吊笼停靠平台安装符 合规范要求的防护门,门闩在门内侧。吊 笼停靠时必须有可靠的防下滑和断绳保 险装置。
防护棚与平台门示意图
进出料平台及防护门示意图
|
标准化 达标工地 |
绿色安全 工地 |
绿色安全 样板工地 |
|
★ | ||
|
★ |
序号
项目
分类
安全生产标准建设内容
实例图/示意图
标准化 达标工地
绿色安全绿色安全
工地 样板工地
中小型机械防护棚
中小型机械设置防雨防砸操作
棚,并有防止倾覆措施。
钢管式防护棚实例图
★★
1. 在塔吊起重臂旋转半径范围以 内必须采取双层防护,满铺不小于 50mm厚的木脚手板,斜面铺设彩钢瓦 等防雨材料。装、拆采用螺栓连接。
2. 防护棚各杆件及立杆基础必须 按设计方案施工,必须有防止倾覆措 施。
工具式防护棚示意图
工具式防护棚尺寸示意图
★★
★★★
|
序号 |
项目 分类 |
安全生产标准建设内容 |
实例图/示意图 |
标准化 达标工地 |
绿色安全 工地 |
绿色安全 样板工地 |
|
A (续) |
中 小 型 机 械 防 护 棚 (续) |
|
站台式防护棚示意图 |
★★ |
★★★ | |
|
PJIBI 小型机械加工防护棚示意图 |
★★ |
★★★ |
木工加工防护棚
安全生产标准建设内容
1. 木工加工防护棚应独立设置,除 顶部防砸层外,应采用燃烧性能等级为 A级的材料搭建,设门窗和防爆灯具, 地面硬化,应列为重点防火部位,在塔 吊作业范围内的防护棚,应设防雨防砸 层,防砸层满铺500mm厚的脚手板,棚 顶立面喷涂安全标识。
2. 防护棚内宜增设防尘降噪措施, 门外应配备灭火器材。
圆盘锯应设置锯盘防护罩、分料器 和可透视安全挡板等安全装置。
实例图/示意图
木工加工棚示意图
圆盘锯防护实例图
|
标准化 达标工地 |
绿色安全 工地 |
绿色安全 样板工地 |
|
★ |
★★ |
★★★ |
|
★ |
★★ |
★★★ |
|
序号 |
项目 分类 |
安全生产标准建设内容 |
实例图/示意图 |
标准化 达标工地 |
绿色安全 工地 |
绿色安全 样板工地 |
|
十 |
无齿锯砂轮机防护罩 |
必须装设不小于180°的防火防护罩, 框架采用30*30*3mm角钢,护板采用2mm厚 钢板与框架焊接。 |
小型机具防护罩示意图 |
★ |
★★ |
★★★ |
|
小型机具防护罩骨架示意图 | ||||||
|
小型机具防护罩蒙皮示意图 |
第十章消防保卫
序号
安全生产标准建设内容
实例图/示意图
标准化 达标工地
绿色安全 工地
绿色安全
样板工地
施工现场保卫
施工现场出入口应设置大 门,实施封闭式管理,出入大 门口设置门卫值班室,设专职 门卫。
门口卫实例图
门禁系统示意图
★★
★★★
施工现场设置群众来访接 待室。
群众来访接待室实例图
★★
★★★
|
序号 |
项目 分类 |
安全生产标准建设内容 |
实例图/示意图 |
标准化 达标工地 |
绿色安全 工地 |
绿色安全 样板工地 | ||
|
二 |
库房管理 |
施工现场料场、库房、重要材 料、设备及工具设置专用库房。 |
________库房示意图________ |
★ |
★★ |
★★★ | ||
|
三 |
要 害 部 门 管 理 |
施工现场财务室应安装防盗 门和防盗栏,设置报警器,按规定 配置和使用保险柜。 |
T⅞ ≥nτ? E n IEZT H QS NI IIIIl IMW Ire^ L J1ΓTΓTT 嘲二■<. I fl ;霄 9^⅛⅛ I 财务室示意图 |
★ |
★★ |
★★★ | ||
|
四 |
塔 吊 防 爬 |
施工现场塔吊应设置防攀爬 措施。 |
Ig |
,⅛Γ > Jluf JHr 亍:戶余I ■防攀爬 |
,■ nhγl I Bl 措施示意图______ |
★ |
★★ |
★★★ |
序号
项目
分类
安全生产标准建设内容
实例图/示意图
标准化绿色安全绿色安全
达标工地 工地 样板工地
视频监控
施工现场安装视频监控系统、 设置监控室。
监控室实例图
监控设备实例图
★ ★★ ★★★
临时疏散通道
临时疏散通道应设置明显的疏 散指示标识、照明设施。作业层的 醒目位置应设置安全疏散示意图。
临时疏散通道实例图
临时疏散通道示意图
★ ★★ ★★★
易 燃
、
易 爆 品
施工现场易燃易爆物品设置专 用库房。
危险品库房实例图
危险品存放示意图
★ ★★ ★★★
序号
项目
分类
安全生产标准建设内容
实例图/示意图
标准化 达标工地
绿色安全绿色安全
工地 样板工地
临时用房建筑面积之和大于 1000m2或在建工程单体体积大于 10000m3时,应设置临时室外消防给 水系统。消防泵房应使用不燃材料
★ ★★ ★★★
消防泵系统示意图
建造,设专人管理。 消防泵房示意图
消给水防系统
现场临时消防给水系统应有防 冻保护措施。
电伴热实例图
泵房保温实例图
★ ★★ ★★★
建筑高度超过100m的在建工 程,应在适当楼层增设临时中转水 池及加压水泵。
中转水池示意图
中转水箱实例图
★★
★★★
|
序号 |
项目 分类 |
安全生产标准建设内容 |
实例图/示意图 |
标准化 达标工地 |
绿色安全 工地 |
绿色安全 样板工地 |
|
九 |
消防给水系统 |
在建工程应设置临时室外消防 给水系统,消火栓处昼夜要有明显 标志。 |
-■■■ ~ .............. _______室外消火栓实例图_______ |
★ |
★★ |
★★★ |
|
消防竖管须独立设置,其数量 不应少于2根,当结构封顶时,应 将消防竖管设置成环状。 每层设置一个消防水接口,并 配备两条水龙带和一个水枪。 |
Mll |
★ |
★★ |
★★★ | ||
|
■夢 | ||||||
|
■ Ir _______室内消防栓实例图_______ | ||||||
|
消防给水系统应设置消防水泵 接合器。 |
______消防水泵接合器示意图______ |
★ |
★★ |
★★★ |
|
序号 |
项目 分类 |
安全生产标准建设内容 |
实例图/示意图 |
标准化 达标工地 |
绿色安全 工地 |
绿色安全 样板工地 |
|
十 |
消防设施与器材及管理 |
施工现场应设置消防水源, 配备有效开启工具和足够的水龙 带,周围3m内不得堆放物品。 |
消防栓实例图 |
★ |
★★ |
★★★ |
|
施工现场消防器材配备符合 规范要求。 |
W & < W ∖ B ________消防器材实例图________ |
★ |
★★ |
★★★ | ||
|
办公区、生活区室内装设火灾 烟感报警装置。 |
•y - ______烟感报警装置实例图_______ |
★★ |
★★★ |
安全生产标准建设内容
实例图/示意图
标准化 达标工地
绿色安全
工地
绿色安全
样板工地
消防设施与器材及管理
施工现场生活区、宿舍两层及 以上临时建筑,每层的建筑面积大 于300 m,时,应至少设两个疏散楼 梯,宜设置逃生杆。
双疏散楼梯示意图
逃生杆上端实例图
逃生杆下端实例图
★ ★★ ★★★
★★★
施工现场设置微型消防站,并 按要求配备消防设施设备。
微型消防站外观示意图
微型消防站全套
微型消防站配备示意图
★★★
安全生产标准建设内容
实例图/示意图
标准化 达标工地
绿色安全
工地
绿色安全
样板工地
义务消防组织
施工现场建立义务消防队。
义务消防队实例图
★ ★★ ★★★
休息、饮水处
休息、饮水处内置示意图
施工现场设置休息、饮水处。
休息、饮水处外观示意图
★★
★★★
第十一章安全智慧化
序号
项目
分类
安全生产标准建设内容
实例图/示意图
标准化 达标工地
绿色安全 绿色安全
工地 样板工地
安全体验区示意图
☆ ☆☆
1. 有条件的施工现场宜建立体验 式培训设施。
2. 施工现场设置的安全体验区的 体验项目应执行《北京市住房和城乡 建设委员会关于推广体验式安全培训 教育的通知》(京建法〔2018) 4号)。
安全体验设施示意图
☆ ☆☆
安全体验设施示意图
☆ ☆☆
安全生产标准建设内容
实例图/示意图
标准化 达标工地
绿色安全 工地
绿色安全 样板工地
VR 式 安 全 教 育 培 训 系 统
1. “互联网+VR”智能安全体 验馆,体验者通过VR眼镜,可以直 观地体验典型安全事故,通过虚拟 现实环境,“亲历”安全事件,评 估潜在安全风险,并寻求正确的预 防措施,从而起到警示教育,提高 安全防范意识。
2. 通过VR技术,为建筑工地劳 务人员提供各种模拟场景,包含物
体打击、高空坠落、触电、坍塌、 机械伤害、安全帽、安全带、灭火 器灭火VR体验等课程。
VR式安全培训系统视觉示意图
VR式多人安全培训系统示意图
VR式单人安全培训系统示意图
☆ ☆☆
☆☆☆
☆☆☆
安全生产标准建设内容
实例图/示意图
标准化绿色安全 绿色安全
达标工地 工地 样板工地
施工现场出入口人员识别系统
1. 施工现场大门应设置为封闭 式,立柱不得低于2800mm,门和门柱 应喷刷企业标识。
2. 门扇可根据现场情况制作成推 拉扇或平开扇,大门的尺寸可参考企 业相关规范。
3. 施工现场大门门扇不设小门, 门柱一侧另设小门,并安装人员实名 制识别系统,可采用刷卡、人脸、指 纹等识别系统。
实名制管理通道示意图
人脸识别闸机示意图
身份证识别仪示意图
☆ ☆☆
☆ ☆☆
☆ ☆☆
安全生产标准建设内容
实例图/示意图
标准化 绿色安全 绿色安全
达标工地 工地 样板工地
红外安全语音提示设备
1. 在施工现场主要通道口、出 入口、配电箱、易燃易爆物资库房 以及存在危险源的区域临近部位 安装人体感应语音提示器,还可设 置语音提示设备。
2. 对经过人员起到提示、教育 的作用,尤其对安全行为的纠正方 面具有良好的辅助管理作用。
☆☆☆
红外语音呼叫器实例图
☆☆☆
红外语音呼叫器安装实例图
|
序号 |
项目 分类 |
安全生产标准建设内容 |
实例图/示意图 |
标准化 绿色安全 绿色安全 达标工地I工地 样板工地 |
|
五 |
智能安全帽识别系统 |
|
安全帽识别哨兵 智能安全帽识别管理系统图示意图 |
☆☆☆ |
|
3 α□D0H*κs⅞a ∙ asαa. KaI 瑚 L 智能安全帽识别管理系统图示意图 |
☆☆☆ | |||
|
I I I I I I I ,1, I I ɪ 1 IllllJ I I 1 505«/ ' * 骊 IW 渤Mr…:; Mm: ⅛: f叫 贓技健, •映触 LE晌 智能安全帽识别管理系统图示意图 |
☆☆☆ |
安全生产标准建设内容
实例图/示意图
标准化 达标工地
绿色安全 工地
绿色安全
样板工地
塔式起重机安全监控管理系统
1. 施工现场可安装塔式起重机 安全管控系统,功能应包括:设备 安全监测、设备信息库、设备相关 操作管理、设备操作影像留痕、特 种作业人员管理、隐患预警、数据 统计。
2. 在塔式起重机工作中,通过 信号数据传输可将塔吊的大臂平面 位置,以每隔10秒的位移显示在监 控室的电脑屏幕上。实现了对塔吊
限位器在线监测实例图
☆☆☆
☆☆☆
自身运行状态的实时监测、自动预 警和风险控制,减小了塔吊碰撞的 概率;并让安全管理人员即使不在 现场的情况下,也能够直观地监测 塔吊的使用情况。
3.塔式起重机安全管控系统由 产权单位进行安装。
塔机安全运行监测平台实例图
APP终端示意图
☆☆☆
序号
项目
分类
安全生产标准建设内容
实例图/示意图
标准化 达标工地
绿色安全
工地
绿色安全
样板工地
1. 专项施工方案实施前,编制人员或者 项目技术负责人应当向施工现场管理人员 进行方案交底。
2. 施工现场管理人员应当向作业人员 进行安全技术交底,并由双方和项目专职安 全生产管理人员共同签字确认。
☆☆☆
安全技术交底二维码示意图
二维码安全管理系统
在施工现场显著位置公告安全操作规 程。
安全操作规程二维码示意图
☆☆☆
向从业人员如实告知作业场所和工作 岗位存在的危险因素、防范措施以及事故应 急措施。
☆☆☆
安全管理措施二维码示意图
BIM 安 全 管 理 平
安全生产标准建设内容
1. 企业建立BIM安全管理平 台系统。
2. 通过BIM技术,可三维展 示现场施工环境,便于项目管理 人员对现场施工环境信息的全面 掌握。合理规划施工场地,可以 避免因施工过程中机械之间冲 突、机械给作业工人带来的碰撞 伤害、机械材料停放位置不合理 导致基坑边坡塌方等安全事故。
3.自动筛选不同施工阶段、 不同部位的坠落安全隐患。运用 移动终端对施工现场的数据进行 采集并关联到BIM模型,从而实 现安全问题的可视化,促进安全 协同管理。
实例图/示意图
标准化 达标工地
绿色安全 工地
绿色安全 样板工地
场地布置示意图
虚拟场景模式示意图
层临边维护总平面图安全管理应用实例图
☆ ☆☆
☆ ☆☆
☆☆☆
安全生产标准建设内容
实例图/示意图
标准化 绿色安全 绿色安全
达标工地 工地 样板工地
安全隐患排查系统
企业建立安全隐患排查系 统。
☆☆☆
安全隐患排查系统移动端实例图
安全隐患排查系统PC端实例图
☆☆☆
安全隐患排查系统示意图
☆☆☆
安全生产标准建设内容
实例图/示意图
标准化 达标工地
绿色安全 工地
绿色安全
样板工地
塔式起重机吊钩可视系统
1. 塔吊吊钩安装摄像头, 在办公室电脑、驾驶室显示屏, 手机上都可看到吊钩下的任何 景象。
2. 方便了塔吊的操作,使 塔司对吊钩下的危险景象有所 了解,能够根据不用情况采取 不同措施,提高了安全系数。
3. 管理人员加强了对塔吊 吊装的监管,对违章操作具有 震慑作用。
塔吊吊钩视频监控实例图
☆ ☆☆
塔吊吊钩可视系统实例图
☆ ☆☆
|
序号 |
项目 分类 |
安全生产标准建设内容 |
实例图/示意图 |
标准化 绿色安全 绿色安全 达标工地I工地 样板工地 |
|
十一 |
无 人 机 航 测 建 、 模 勘 察 |
|
______无人机巡查示意图______ |
☆☆☆ |
|
WBPL-. . q⅛ΛB ______无人机巡查示意图______ |
☆☆☆ | |||
|
______无人机巡查示意图______ |
☆☆☆ |
140