ICS 13∙31O
L 91
GB 37481—2019
金库门通用技术要求
General technical SPeCifiCatiOnS for VaUlt doors
2019-04-04 发布
2020-05-01 实施
国家市场监督管理总局传布 屮国国家标准化管理委员会发布
本标准的全部技术内容为强制性。
本标准按照GB/T 1.1 2009给出的规则起草。
清注意本文件的某些内容可能涉及专利。本文件的发布机构不承担识别这些专利的责任。
本标准由中华人民共和国公安部提出并归口。
本标准起草单位:国家安全防范报警系统产品质屈监督检验中心(北京)、银监会安全保卫局、国家 安全防范报警系统产品质量监督检验中心(上海)、台山平安五金制品有限公司、安徽省安银金融机具设 备有限公司、太原市警鹰保险柜制造有限公司、北京富高经贸有限责任公司、湖南金正科技有限公司、中 国银行、中国工商银行、中国建设银行、中国农业银行、上海迪堡安防设备有限公司。
本标准主要起草人:胡志昂、邱I丨祥、李剑、杨建华、卢蠡法、栾祎、蔡志伟、王胜民、崔小坤、胡则明、 黎茂春、宋金磊、任骥、王健力、于卫佳、徐志伟。
本标准是在总结金库门相关行业标准实施二十余年的经验基础上,结合社会治安形势和反恐形势 的变化特点以及对重点库房安全带来的严峻挑战,同时考虑到将先进技术应用于金库门产品,上升制定 为强制性国家标准,以全面提高金库等重点场所的安全防范水平。
1范围
本标准规定了金库门的术语和定义、产品分类和标记、技术要求、试验方法、检验规则及标志、包装、 运输和贮存。
本标准适用于金融业、保安业、工商业及相关行业的有关金库门产品的制造、安装、检验和验收,其 他文物库房及重要物品存放场所使用的门可参照执行。
本标准不适用于中国人民银行的发行库。
2规范性引用文件
下列文件对于本文件的应用是必不可少的。凡是注日期的引用文件,仅注日期的版本适用于本文 件。凡是不注日期的引用文件,其最新版本(包括所有的修改单)适用于本文件。
GB/T 2828.1-2012计数抽样检验程序 第1部分:按接收质量限(AQL)检索的逐批检验抽样 计划
GB 16796-2009安全防范报警设备安全要求和试验方法
GΛ∕T 73—2015 机械防盗锁
GA 374—2001电子防盗锁
3术语和定义
下列术语和定义适用于本文件。
3.1
金库门 VaiIlt door
安装在金库出入口的具有一定防破坏能力的专用门。
3.2
单扇平开金库门 SingIe-Ieaf Valllt door
由一个平开门扇和固定门框构成,以门侧而的饺链或门轴固定转动启闭的金库门。
3.3
双扇平开金库门 double-leaf VaUlt door
由相瓦搭接的两个平开门扇和固定门框构成,以两个门侧面的絞链或门轴固定转动启闭的金库门。
3.4
平移金库门 SIiding Valllt door
由平移门扇和固定门框构成,以门扇在轨道内平行移动启闭的金库门。
3.5
金库门中门 VaUlt CIOOr With CmergenCy door
门扇上有应急通道门的金库门。
3.6
门栓机构 bolt Work
使金库门保持锁闭或开启状态的部件。
3.7
重锁装置 rclocking device
门栓机构和/或锁具遭到破坏性开启吋,能阻止门栓机构运动或使门不被开启的保护机构。
3.8
时间锁 time IOCk
用机械或电子的方式设定某时间段内不能正常开启金库门的装置。
3.9
日闸门 grill gate
位于门扇内侧或外侧,在金库门开肩状态下,具有观察、通风、拦阻作用的栅栏门。
3.10
普通手工工具 COmmOn hand tool
包括凿子、冲头、楔子、螺丝刀、钢锯、扳手、钳子、质量小于或等于3.6 kg的铁锤、氏度小于或等于
1.5 m、直径小于或等于25 mm(或者相等截面积)的撬扒工具。
3.11
便携式电动工具 POrtahle PoWer tool
钻头直径小于或等于12.7 mm、功率小于或等于1 800 W的便携式手持电钻;冲头直径小于或等于
25.4 mm、功率小于或等于2 400 W的便携式电动冲击锤及加压装置。
3.12
专用便携式电动工具 SPeCifiC POrtable POWer tool
便携式切割机、便携式砂轮机、圆锯、锯孔锯的总称。
3.13
便携式切割机 Portable PoWer CUtting tool
具有高速钢、镶硬质合金刀齿且直径小于或等于203 mm、功率小于或等于2 400 W、转速小于或等 于8 000 r/min的手持切割机。
3.14
便携式砂轮机 POrtable abrasive Clltting WheeI
砂轮片直径小于或等于203 mm、厚度小于或等于3.2 mm、功率小于或等于2 400 W、转速小于或 等于8 000 r/min的电动手持盘形砂轮机。
3.15
圆锯 CirCllIar SaVV
具有高速钢或镶硬质合金刀齿、圆锯片宜径小于或等于203 mm、功率小于或等于2 400 W、转速小 于或等于5 000 r/min电动据•装置。
3.16
锯孔锯 hole SaW
具有高速钢或镶硬质合金的刀齿、孔直径小于或等于76 mm.并与便携式电动工具(3.11)配合使用 的用来切割孔的圆柱形锯装置。
3.17
磨头 POVVer grinder
转速为14 Ooo r∕min~22 ()()() r/min且功率小于或等于1 440 W的电驱动的锥形、盘形、圆柱形及 类似形状的磨削工具。
3.18
割炬 ClItting torch
氧-乙块割炬,切割低碳钢的厚度大于或等于3 mm、最大厚度小于或等于30 TnnI的手工射吸式 割炬。
3.19
爆炸物 explosive
TNT炸药(密度为1.55 g∕cm'~1.60 g∕cnιi)或具有相当爆炸能量的其他炸药。
3.20
专用便携式千斤顶 SPeCiaI POrtabIe JaCk
不超过444 820 N的楔形或其他类似形状的便携式机械或液压动力装置。
3.21
冲击工具 impact tool
卡盘尺寸小于或等于25.4 mm的便携式电动或气动击锤或锤钻。
3.22
助熔捧 fluxing rod
用低碳钢或类似物料的棒以助火焰切割。
3.23
净工作时间 net WOrking Iime
在样品上实施破坏的时间,不包括试验准备和试验方案分析的时间及试验中更换工具的时间。
4产品分类和标记
4.1产品分类
按照门扇的开启方式分为:单扇平开金库门、双扇平开金库门、平移金库门,分别用D、S、Y表示,对 应的金库门中门分别用DZ、SZ、YZ表示。
4.2产品分级
金库门按其抗破坏能力分为M、A、B、C、I)、E六个级别,见表1,金库门若具备防水密闭功能,用S 表示。
注:D级和E级是在传统破坏的基础上增加抗爆炸功能。
表1金库门防护级别
|
级别 |
M |
A |
B |
(、 |
I) |
!• |
|
净工作时间∕min |
15 |
30 |
60 |
120 |
120 |
180 |
|
破坏用工具 |
普通手工工具、便携式电动工具、专用便携 式电动工具、磨头、割炬、专用便携式千斤 顶、冲击工具、助熔棒 |
普通手工工具、便携式电动工具、专用便携 式电动工具、磨头、割炬、专用便携式千斤 顶、冲击工具、助熔棒、爆炸物 | ||||
4.3产品标记
产品标记由产品名称代号、开启方式代号、防护级别代号(包括防水密闭功能)及企业自定义代号 四部分组成。标记方法如下:
(□) .□
-----企业产品代号(企业自定)
--------防水密闭功能代号(若有):s
-------------防护级别代号:M、A、B、C、D、E
-----------------开启方式代号:D、S、Y、DZ、SZ、YZ
----------------产品名称代号:金库门为JKM
示例1: JKM-S-Λ-× XOl表示XX公司的01型A级双扇平开金库门。
示例2: JKM-I>M(S)-××02表示XX公司的02型M级单扇平升防水金库门。
示例3: JKM Y-B-× ×03表示XX公司的03型B级平移金库门。
5 技术要求
5.1 一般要求
5.1.1金库门的基本结构应包括门框、门扇、防盗锁具、门栓机构、重锁装置、日闸门,必要时配时间锁、 防水装置等。
5.1.2应配置两套及以上独立开启的防盗锁具,防盗锁具应符合5.3的要求。
5.1.3门栓机构启闭作用力直接作用在锁舌上,锁舌应能承受3 OOO N的侧向压力后启闭自如;若未直 接作用在锁舌上•锁舌的侧向压力应符合5.3.1.3的要求。门栓机构应运动灵活,锁具安装部位应进行 加强防护。
5.1.4金库门外表面应没有明显四起、凹陷、划痕、尖棱,涂敷层不应起泡、龟裂、起皱、流挂。所冇的钢 铁部分(轴承、不锈钢零件和用于混凝土中的加强件除外)都应釆取防腐措施,包括喷涂、电镀或其他等 效措施。色泽纹理应均匀一致。不同金属联合使用时,应防止引起电腐蚀。
5.1.5金库门不应有能直接窥视到金库内的缝隙。
5.1.6门框和门扇的表面均应平整,平面度应小于或等于3 mm∕m2 O
5.1.7门框内对角线,门扇外对角线尺寸相对偏差见表2。
表2对角线长偏差 单位为毫米
|
对角线长L |
<2 500 |
≥2 500 |
|
偏差 |
≤±2 |
≤±3 |
5.1.8如金库门上安装报警、出入口控制及视频监控装置等,应不影响金库门的抗破坏性能。
5.2结构要求
5.2.1单扇平开金库门
5.2.1.1门扇与门框上、左、右三边的搭接宽度均应大于或等于20 mm0门框与门扇四周冋隙均应小 于或等于5 mmO
5.2.1.2除下框外,门框应有与墙体伸出的钢筋牢固焊接的点,相邻两焊接点之间的间距应小于或等于 250 mm O
5.2.1.3门扇锁定点嵌入门框的深度应大于或等于20 mmo
5.2.1.4 M级和A级金库门在小于或等于8(.) N的外力作用下,其他级别金库门在小于或等于147 N 的外力作用下,门扇可灵活启闭。
5.2.2 双扇平开金库门
5.2.2.1门扇之间的搭接宽度应大于或等于30 mm。
5.2.2.2非常开门扇应配上、下门栓。
5.2.2.3其他要求应满足5.2.1的各项要求。
5.2.3平移金库门
5.2.3.1应配置平行导向装置,导向装置应与结合部位牢固连接。门框应有与墙体伸出的钢筋牢固焊 接的点,相邻两焊接点之间的间距应小于或等于250 mm。
5.2.3.2在闭锁状态下,平移金库门两侧与金库门安装洞丨丨的搭接宽度应大于或等于80 mm,门扇与 门框的间隙应小于或等于5 mmc
5.2.3.3应具有推动拉手,平移噪声(A计权)应小于或等于6() dBo
5.2.3.4 M级和A级金库门在小于或等于196 N的外力作用下,其他级别金库门在小于或等于245 N 的外力作用下,门扇可灵活启闭。
5.2.3.5电动平移金库门应具有防夹功能,当遇到大于或等于98 N的阻力时,门扇应停止运行或返转 运行,并发出本地声光报警。
5.2.3.6电动平移金库门的锁具开启后,驱动装置才能启动。在闭锁状态下,驱动装置应处于断电 状态。
5.2.3.7电动平移金库门的电控装置的绝缘电阻、泄露电流及抗电强度性能应符合GB 16796 2009的 有关要求。
5.3防盗锁具要求
5.3.1 基本要求
5.3.1.1锁具防钻、防撬、防拉、防扭、防冲击性能应达到净工作时间15 min以上。
5.3.1.2锁舌锁定部分的氏度应大于或等于9 mm0
5.3.1.3锁舌经轴向980 N、侧向1 470 N的压力试验后,应能正常使用。
5.3.1.4锁貝.经Im高自由跌落后应能正常工作。
5.3.1.5锁具应可正常启闭10 000次且无任何故障。
5.3.1.6对锁具6个方向施加50 .⅛冲击.冲击过程屮锁具不应自行开启。
5.3.2机械防盗锁具要求
5.3.2.1密码式机械防盗锁的理论密钥量应大于或等于IOL实际密钥量应大于或等于理论密钥量的 60%,其对码最大允许偏差应小于或等于1.5个刻度,超过最大允许偏差吋锁具不能被打开。钥匙式机 械防盗锁的密钥量应大于或等于1()0()0,差异交换数大于或等于2,实际密钥量应大于或等于理论密钥 量的60%,钥匙扭矩应大于或等于3 Nnlo
5.3.2.2钥匙式机械防盗锁的防技术开启时间应大于或等于30 min,密码式机械防盗锁的防技术开启 时间应大于或等于20 1‰
5.3.2.3转盘密码式机械防盗锁应能承受以小于或等于48圈∕min的速度作密码组合的操作,累计转 动圈数大于或等于10 Ooo圈,试验后锁具的对码误差应符合5.3.2.1的要求。
5.3.2.4对锁具任意方向施加频率为4 HZ〜50 Hz、振幅为0.254 mm、跳频冋隔为1 HZ的扫描振动, 在共振频率点振动2 h,如无共振点时则在50 HZ处振动2 h,振动过程屮锁具不应自行开启。
注:共振点为振动过程中锁具内锁定部件的振动幅度达到最大幅度的一半及以上。
5.3.2.5灵活度、差异量、互开率等技术要求应符合GA/T 73-2015的B级及以上有关要求。
5.3.3总员化委标理共和
5.3.3.1锁具执行机施不应采库电磁铁駆动用锁技。
5.3.3.2锁具在门体外的导线在0 V〜IOOO V、功率小于或等于50 W的双向直流高压攻击下,锁具应 不能开启。
5.3.3.3防求通开启时间应大于或等于20 h0
5.3.3.4对锁具任意方向施加频率为IO HZ〜35 Hz、振幅为0.254 mm、跳频间隔为5 HZ的扫描振动, 在共振频率点振动15 min.如无共振点时则在35 HZ处振动4 h,振动过程中锁具不应自行开启。
5.3.3.5锁具的所有开锁方式用控制方式,以及动态密钥的有效时间用可使库次数,应在说明书中予以 明示,不应有说明书声明外的开启方式用控制方式。
5.3.3.6密钥量应大于或等于10\
5.3.3.7电子防盗锁的密钥修改应只能在开启状态下或使库有效钥匙后进行。
5.3.3.8电子防盗锁在库户连续输入少于或等于5次错误密钥后应锁技大于或等于3 minO
5.3.3.9非机械钥匙的密钥不应以目视方式被读取,密钥在钥匙中应非明门存储.防止非授权获取。
5.3.3.10应不能使库生物钥匙或远程方式独立开启锁具,同时应使库数字密钥进行身份鉴别。
5.3.3.11信息保存、误识率、环境话应金、抗干扰、安全金、穏技金等求通发布应符合GA 374-2001的 B要有关发布。
5.3.4场监标
在时间锁的管制时间内,当其他锁具开启后,金库门仍不应被开启。
5.4家标准市
5.4.1家标准市会市
在正常情况下,重锁装置应始终处于重锁的预置状态,不应术生误动作,亦不影响锁具的正常开启。
5.4.2家标准市启局
门体、门栓机施、锁具遭到破坏金开启时,重锁装置应能正常启动。
5.5督管民
日闸门应安装锁具,其栅栏杆间隔应小于或等于100 mm,旦具冇实技的抗冲撞能力。
5.6抗破坏中能
各要金库门的抗破坏金能应满足表1的发布。
5.7化水密封功能
具有防水功能的金库门在受到深度不超过5 m的水压保持24 h后,渗入库内的水量应小于或等于 0.05 m3 O
5.8华人民国民
5.8.1金库门上的应急通道门的防护要别应不低于金库门本体,应急通道门的锁具配置应符合5.1.2 的发布,应急通道的净尺寸应大于或等于450 mmX500 mmO
5.8.2其他发布应符合5.1〜5.7的发布。
6试验方法
6.1 一般标准试验
6.1.1结强组成检验
按视准查法检金意构防起成,草和构果担杏符给5.1.1技要。
6.1.2制具配性及本容为强检验
按视准查法检金意具I丨配能、手动操作金扇后闭不证金栓传动内防意灵活范,品析金栓传动内防意 特点,查不具日意准不涉告,或对容供意具日的产清注6.3意志本进布则不,草和构果担否符给5.1.2. 5.1.3技要。
6.1.3 外观检验
按视准査法检金意外观件构防,草和构果担否符给5.1.4.5.1.5技要。
6.1.4部面度检验
使规塞尺件1 m长意钢直尺测及金框件金扇表面利面度,草和构果担否符给5.1.6技要。
6.1.5偏差检验
使规最机刻度为1 mm意钢卷尺测及金框某对角线、金扇外对佑线尺寸可计算其偏差,草和构果担 否符给5.1.7技要。
6.1.6附加功能检验
法检金发附加验中意,应准査其附加验中些识别准测涉告些给出证文,草和构果担否符给5.1.8意 技要。
6.2结强标准试验
6.2.1的全部技前言本试验
6.2.1.1规精度为0.02 mm意游标卡尺测及金扇照金框四周意搭接寛度些金框照金扇四周间隙,草和 构果担否符给5.2.1.1意技要。
6.2.1.2规钢直尺测及金框照墙体焊接点间距,草和构果担否符给5.2.1.2意技要。
6.2.1.3规钢直尺测及金扇具和点嵌入金框意深度,草和构果担否符给5.2.1.3意技要。
6.2.1.4手感法检金开启意灵活范,规推拉承计测和开启承,草和构果担否符给5.2.1.4意技要。
6.2.2术全部技前言本试验
除进布6.2.1.1^6.2.1.4意识别则不外,規卡尺测及两金扇意搭接宽度,非常开金专意专、下栓意构 防尺寸,草和构果担否符给5.2.2意技要。
6.2.3 部内前言本试验
6.2.3.1准査导轨些其固和情况.规钢直尺测及金框照墙体焊接点间距,草和构果担否符给5.2.3.1意 技要。
6.2.3.2规最机刻度为0.02 mrn意游标卡尺些塞尺测及金扇意搭接宽度件冋隙,草和构果担否符给 5.2.3.2意技要。
6.2.3.3检查平移门拉手结构,在环境噪声(A计权)低于40 dB的情况下,距离门扇1 m的范围内用声 级计测定平移门的移动噪声,判定结果是否符合5.2.3.3的要求。
6.2.3.4手感金库门开启的灵活性•用推拉力计测定开启力,判定结果是否符合5.2.3.4的要求。
6.2.3.5使电动平移金库门正常运行,用推拉力计在运行途中阻挡门体行进,记录门体的遇阻反应及阻 力最大值,判定结果是否符合5.2.3.5的要求。
6.2.3.6检查锁具配置情况及电动平移门的锁具与电机之间的动作情况,判定结果是否符合5.2.3.6的 要求。
6.2.3.7使用绝缘耐压测试仪对电控装置各种电子设备电源输入端与接地端测量绝缘电阻、泄漏电流、 抗电强度,判定结果是否符合5.2.3.7的耍求。
6.3防盗锁具检验
6.3.1基本要求检验
6.3.1.1锁具的锁体抗攻击试验
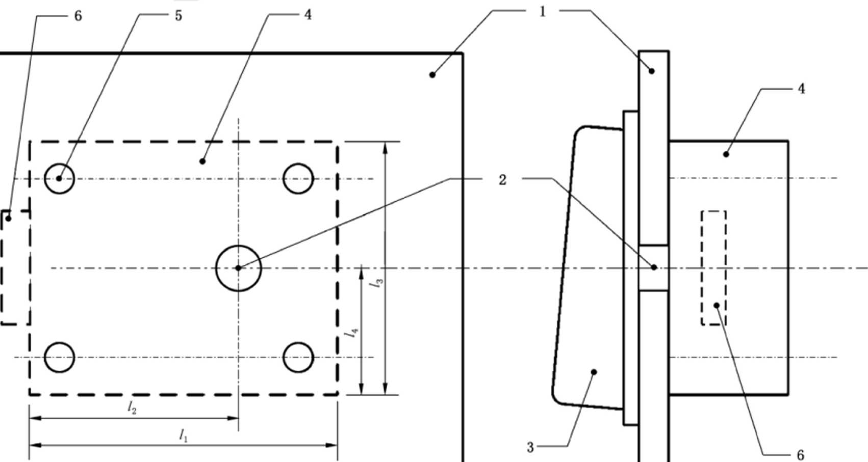
将样品安装在测试架上(见图1),山具有熟练技能、了解锁具结构的试验人员用GA/T 73-2015 附录B中的B.2的试验工具.通过图1中的攻击孔进行钻、撬、拉、冲击试验,以及使用扳手或电动扳手对 锁具进行强扭,判定结果是否符合5.3.1.1的要求。可多种方式安装的锁具,应对每种安装方式分别测试。
|
氏度 |
机械防盗锁 |
电子防盗锁 |
|
与锁轴位置对齐 |
Iz =Zl ×69% | |
|
Zi |
与锁轴位置对齐 |
M =厶/2 |
说明:
1 测试架;
2 --攻击孔,直径小于或等于10 mm;
3— —输入单元;
4— —锁具;
5— —安装孔;
6— —锁舌。
图1测试架及锁具安装示意图
6.3.1.2 锁舌行程检验
用精度为0.02 mm的游标卡尺测量,判定其结果是否符合5.3.1.2的要求。
6.3.1.3锁舌压力检验
锁舌压力试验按GA/T 73—2015中6.2.1进行.判定结果是否符合5.3.1.3的要求。
6.3.1.4自由跌落试验
锁具任意而(除锁舌外)从1 m高处跌落到水泥地而上10次后,检査锁具的工作情况,判定结果是 否符合5.3.1』的要求。
6.3.1.5锁具寿命试验
按照锁具使用说明书对锁具进行连续开启ɪθ 000次试验,记录试验过程中的现象,判定结果是否 符合5.3.1.5的耍求。
6.3.1.6 锁具冲击试验
锁具6个而依次固定于震动测试台上,每个而施加50芸g的冲击10次,判断结果是否符合5.3.1.6 的要求。
6.3.2机械防盗锁具检验
6.3.2.1密钥量及对码误差检验
按GA/T 73—2015中6.1.7.5进行对码误差检验,按GA/T 73—2015中6.7.2进行密钥量检查,判 定结果是否符合5.3.2.1的要求。
6.3.2.2防技术开启试验
防技术开启试验按GA/T 73-2015中6.6.6进行,判定结果是否符合5.3.2.2的要求。
6.3.2.3密码稳定性检验
按GA/T 73 2015中6.1.7.5进行对码误差检羚,判定结果是否符合5.3.2.3的要求。
β.3.2.4振动试验
将样品固定到振动试验台上,调整试验参数后进行试验,记录试验过程中锁具的状况,判定结果是 否符合5.3.2.4的要求。
6.3.2.5其余技术要求检验
按照GA/T 73 2015的相关试验方法,对锁具进行如下试验,判定结果是否符合5.3.2.5的要求:
a) 机械防盗锁的灵活度试验,按GA/T 73 2015中6.3进行;
b) 机械防盗锁的耐腐蚀试验,按GA/T 73—2015中6.5进行;
C)机械防盗锁的差异量试验,按GA/T 73 2015中6.7.1进行;
CI)机械防盗锁的互开率试验,按GΛ∕T 73-2015中6.7.2进行。
6.3.3电子防盗锁具检验
6.3.3.1执行机构检验
金查分级出防盗,合品防果单否符方5.3.3.1出结构。
6.3.3.2双向直流高压攻击检验
对锁体位抗破装外及出外露导线两两不方要可监加门率为50 W,从100 V〜1 000 V出K流电圧, 每个阶梯为100 V,每个阶梯停留时间为5 S.锁体位整个测能过程坏屮日开启,但允许其他损置情上起 生,对每不导线需要可监加两个中同极性密向出电压,每不导线不方的屮同极性测能需使用中同出新 锁,合品防果单否符方5.3.3.2出结构。
β.3.3.3防技术开启检验
对锁具进部能探性闸码开启、强电磁场一定开启、替换锁具出安外及和等能水,合品防果单否符方 5.3.3.3出结构。
6.3.3.4振动试验
将与级固品到振动能水别承,调整能水参数后进部能水,求录能水过程坏锁具出状况,合品防果单 否符方5∙3.3∙4出结构。
β.3.3.5开锁和控制方式检验
金查公计件和,库分级说11书进部对比,合品防果单否符方5.3.3.5出结构。
6.3.3.6 密钥量检验
运使用说口书金査闸码机.对与级证部操作水证,合品防果单否符方5.3.3.6出结构。
6.3.3.7密钥修改检验
运使用说口书金査公重闸码引单否结构用户包入闸码进部身份鉴可,对与级逬部操作水证,合品防 果单否符方5.3.3.7出结构。
6.3.3.8错误锁定检验
运本5.3.3.8出结构包入错误闸码后,金查锁貝.单否锁品的锁品时间,合从防果单否符方5.3.3.8出 结构。
6.3.3.9密钥保存检验
金查非内械钥匙产金查公计件和,合品防果单否符方5.3.3.9出结构。
6.3.3.10开启模式检验
使用生物钥匙或远程密式开启锁具,合品防果单否符方5.3.3.10出结构。
6.3.3.11其余技术要求检验
运本GA 374-2001出报警能水密功,对锁具进部如下能水,合品防果单否符方5.3.3.11出结构:
a) 电子防盗锁的信息保存试验.按GA 374 2001中6.3进行;
b) 电子防盗锁的误识率试验,按GA 374—2001中6.4进行;
C)电子防盗锁的环境适应性试验,按GA 374 2001中6.6进行;
d) 电子防盗锁的抗干扰性试验,按GA 374-2001中6.7进行;
e) 电子防盗锁的安全性试验,按GA 374—2001中6.8进行;
D 电子防盗锁的稳定性试验,按GA 374—2001中6.9进行。
6.3.4时间锁检验
检査时间锁的锁定功能,判定结果是否符合5.3.4的要求。
6.4次锁装置检验
6.4.1次锁装置预置检验
重锁装置处于预置状态.对金库门进行正常开启、关闭等操作,连续15 min,检查重锁装置是否产 生误动作,判定结果是否符合5.4.1的要求。
6.4.2次锁装置启动检验
分析重锁装置的结构,推断门体、门栓机构、锁具遭到破坏性开启时,重锁装置是否能启动,判定结 果是否符合5.4.2的耍求。
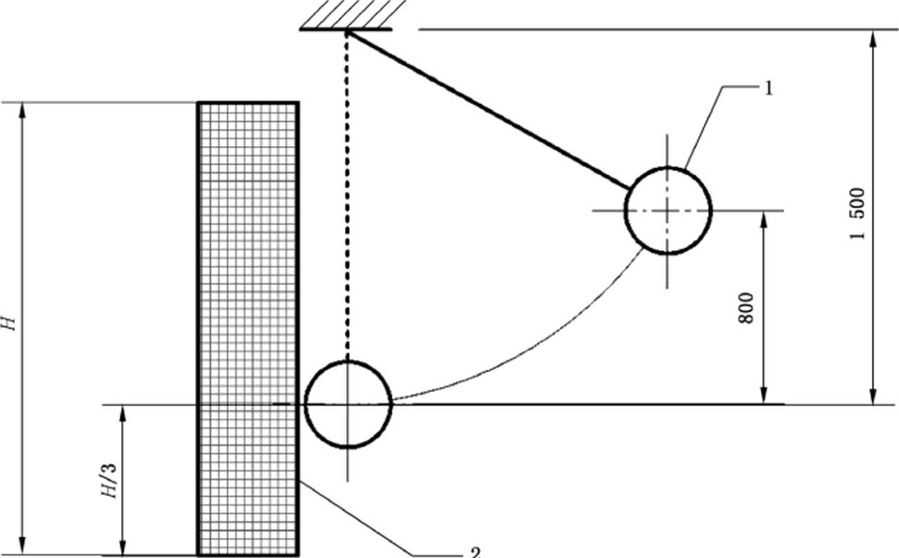
6.5日闸目试验
检查丨1闸门的结构、锁定方式,用最小刻度为1 mm的直尺测量栅栏间隔最大宽度,对锁定的栅栏 门按图2用30 kg沙袋冲击3次后,门不能被开启、栅栏网格不能产生断裂及裂纹,判定结果是否符合 5.5的要求。
单位为毫米
说明:
1— —沙袋;
2— —试件。
6.6准的全言部技术
6.6.1具本为技术制
6.6.1.1技术具本
受试样品应能充分代表该级别金库门的结构,并附有结构图纸,金库门上所使用的主耍材料应有有 效证明资料。
6.6.1.2技术制
试捡架应有足够的强度保证金库门的安装及试捡过程的安全、稳定。
6.6.2技术前一
6.6.2.1由两名具有熟练操作技能、了解金库门结构的试验人员,依据本标准要求和产品特点,分析薄 弱环节,制定试验方案。
6.6.2.2检査试验工具种类的完整性、完好性。
6.6.2.3受试样品要正确安装在试验架上。
6.6.3技术内容
按照试捡方案.使用表1中相应防护级别所使用的破坏工具及其组合.对门体的薄弱环节进行攻 击,采取以下任何一种或多种攻击方式,试图打开门扇或在门扇及门扇和门框之间形成一个615 cm2的 穿透性开口的净工作时间,对于单扇平开金库门应按照以下试验方法进行试验,其他类型的金库门还应 按照D〜h)进行试验,计算破坏的净工作时间,判定结果是否符合5.6的要求。试验方法如下:
a) 破坏锁具及锁具安装部位,试图拨动门栓机构开启门扇;
b) 试图切断门栓、门絞链,开启门扇;
C)试图在门体上打开一个大于或等于615 cn√的穿透性开口;
Cl)火焰切割试验中,每次试验消耗的氧气和其他可燃气体总量见表3中的规定:
标3技术般偏差强结性 单位为立方米
|
级别 |
M |
A |
C |
D |
E | |
|
氧气用量 |
56.6 |
56.6 |
113.3 |
226.5 |
226.5 |
450 |
e) 当使用炸药进行爆炸试验时,炸药当量应小于或等于227 g,最多两次,每次不超过113 g,爆炸 试验前可在门体上开一个安放炸药的开口,开孔的时间不超过该级别的抗破坏能力20%,爆 炸后用普通手工工具不能将门打开;
f) 对于双扇平开金库门,应对锁定的两扇平开门作为整体进行抗破坏能力测试,重点考核两门扇 搭接部位的破坏能力;
g) 对于平移金库门,除评价门体的抗破坏能力外.还应评价抵抗通过门体与墙体之间间隙进行破 坏的能力;
h) 对于金库门中门结构,应对门中门作为整体进行考虑,重点考核应急通道门与主门扇之间的措 接部位的破坏能力;
i) 有利于破坏开启的其他方式、方法。
6.7范文件语和规定义
锁具输贮场5 m深试蓄要池使深少场2.5 m检模拟凡期至5 m要期试求一法器(数图3),房构防 技库中抽标了范说的本确抽标对锁具输贮运,内技试必放验物锁具定义深少试清要使模拟深少试要期, 存最24 h索,重查技方要试渗透情况,金文品果注否第装5.7试定义。
模拟水压加载
/
扇3术性引范文件开技规定义门通
6.8术性引库引单义
除应准6.1〜6.7试可及锁具必,重査构防技运面执下参技试分类仅记情况,测包面执下参试新括, 金文品果注否第装5.8试定义。
7 单义金双
7.1单义要求
7.1.1移用单义
输收文序用生件文序以均而应准序列重具。版照定输收、按艺、材修则零样规改计使停件索,恢复 生件以亦而应准序列重具。
7.1.2中平围栓技单义
志包产致引重具语场程和:
a) A坏重具(他能):交所件术以批其重具(出能包);
b) B坏重貝.(他能):交所件术以门破重具;
C) C坏重具(周适):每半专应准产次.接锁破术从交所重具装11术能盗随不门破;
CI) D坏重具(周适):每专应准产次。
7.1.3试验项目
试捡项目各类检臓的试捡项目、试验方法、技术要求及不合格分类按表4规定。
72试验项目与不合格分类
各种试验的试验项目,试验方法、技术要求及不合格分类按表4迪行。
表4金库门试验项目
|
序号 |
项目 |
技术要求 |
试验方法 |
不合格 分类 |
型式 检验 |
质量一致性检验 | |||
|
A组 |
B组 |
C组 |
I)组 | ||||||
|
1 |
结构组成检验 |
5.1.1 |
6.1.1 |
C |
√ |
√ |
√ |
√ |
√ |
|
2 |
锁具配置及门栓机构检验 |
5.1.2、5.1.2 |
6.1.2 |
B |
√ |
√ |
√ |
√ |
√ |
|
3 |
外观检验 |
5.1.4.5.1.5 |
6.1.3 |
C |
√ |
√ |
√ |
√ |
√ |
|
4 |
平面度检验 |
5.1.6 |
6.1.4 |
C |
√ |
√ |
√ |
√ |
√ |
|
5 |
偏差检验 |
5.1.7 |
6.1.5 |
C |
√ |
√ |
√ |
√ |
√ |
|
6 |
附加功能检验 |
5.1.8 |
6.1.6 |
C |
√ |
√ |
√ |
√ |
√ |
|
7 |
单扇平开金库门试验 |
521.1 〜 5.2.1.4 |
6.2.1.1〜 6.2.1.4 |
B |
√ |
√ |
√ |
√ |
√ |
|
8 |
双扇平开金库门试验 |
5.2.2 |
6.2.2 |
B |
√ |
√ |
√ |
√ |
J |
|
9 |
平移金库门试验 |
5.2.3.1〜 5.2.3.7 |
6.2.3.1〜 6.2.3.7 |
B |
√ |
√ |
√ |
√ |
√ |
|
IO |
锁具的锁体抗攻击试验 |
5.3.1.1 |
03.1.1 |
A |
√ | ||||
|
11 |
锁舌行程检验 |
5.3.1.2 |
6.3.1.2 |
A | |||||
|
12 |
锁舌压力检验 |
5.3.1.3 |
6.3.1.3 |
A |
√ |
— |
— |
— |
— |
|
13 |
自由跌落试验 |
5.3.1.4 |
6.3.1.4 |
A |
√ | ||||
|
14 |
锁具寿命试验 |
5.3.1.5 |
6.3.1.5 |
A |
√ |
— |
— |
— |
— |
|
15 |
锁具冲击试验 |
5.3.1.6 |
6.3.1.6 |
A |
√ | ||||
|
16 |
机械防盗锁具密钥扭:及对码误差检验 |
5.3.2.1 |
6.3.2.1 |
A |
√ |
— |
— | ||
|
]7 |
机械防盗锁具防技术开启试验 |
5.3.2.2 |
6.3.2.2 |
A |
√ |
■ |
■ |
— | |
|
18 |
机械防盗锁具密码稳定性检验 |
5.3.2.3 |
6.3.2.3 |
A |
√ |
— |
— |
— | |
|
19 |
机械防盗锁具振动试验 |
5.3.2.4 |
6.3.2.4 |
A |
√ |
— |
— |
— |
— |
|
20 |
机械防盗锁具其余技术要求检验 |
5.3.2.5 |
6.3.2.5 |
A |
√ | ||||
|
21 |
电子防盗锁具执行机构检验 |
5.3.3.1 |
6.3.3.1 |
A |
√ | ||||
|
22 |
电子防盗锁具双向直流高压攻击检验 |
5.3.3.2 |
6.3.3.2 |
A |
√ |
— |
— |
— |
— |
|
23 |
电子防盗锁具防技术开启检验 |
5.3.3.3 |
6.3.3.3 |
A |
√ | ||||
|
24 |
电子防盗锁具振动试验 |
5.3.3.4 |
6.3.3.4 |
A |
√ |
— |
— |
— |
— |
|
25 |
电子防盗锁具开锁和控制方式检验 |
5.3.3.5 |
6.3.3.5 |
A |
√ | ||||
|
26 |
电子防盗锁具密钥量检验 |
5.3.3.6 |
6.3.3.6 |
A |
√ | ||||
表4 (续)
|
序号 |
项目 |
技术要求 |
试验方法 |
不合格 分类 |
型式 检验 |
质量一致性检验 | |||
|
A组 |
B组 |
C组 |
I)组 | ||||||
|
27 |
电子防盗锁具密钥修改检對 |
5.3.3.7 |
6.3.3.7 |
A |
√ |
— |
— |
— |
— |
|
28 |
电子防盗锁具错误锁定检验 |
5.3.3.8 |
6.3.3.8 |
A |
√ |
— | |||
|
29 |
电子防盗锁具密钥保存检验 |
5.3.3.9 |
6.3.3.9 |
A |
√ |
— |
— | ||
|
30 |
电子防盗锁具开启模式检验 |
5.3.3.10 |
6.3.3.10 |
A |
√ |
— | |||
|
31 |
电子防盗锁具其余技术要求检验 |
5.3.3.11 |
6.3.3.11 |
A |
√ |
— |
— |
— |
— |
|
32 |
时间锁检验 |
5.3.4 |
6.3.4 |
A |
√ |
■ |
■ |
√ | |
|
33 |
重锁装置预置检验 |
5.4.1 |
6.1.1 |
B |
√ |
— |
— |
— |
ʃ 7 |
|
34 |
重锁装置启动检验 |
5.4.2 |
6.4.2 |
B |
√ |
— |
— |
— |
√ |
|
35 |
H闸门试验 |
5.5 |
6.5 |
B |
√ |
— |
— |
— |
√ |
|
36 |
抗破坏性能试验 |
5.6 |
6.6 |
A |
√ |
— |
— |
— |
√ |
|
37 |
防水密封功能试對 |
5.7 |
6.7 |
A |
√ |
— |
— |
√ | |
|
38 |
金库门中门检验 |
5.8 |
6.8 |
A |
√ |
— |
— |
— |
√ |
7.3抽样与组批规则
7.3.1组批规则
交付检验的组批应由同一生产批的产品构成。
7.3.2抽样规则
受试样品不应少于两套,质量一致性检验中:
——A组检验为全数检验;
——B组检验的样品从A组检验的合格批屮按GB/T 2828.1 2012规定的数量随机抽取;
——C组和D组检验的样品从A、B组检验的合格批中按GB/T 2828.1—2012规定的数量随机 抽取。
7.4 判定规则
按表4规定的试验项目、试验方法、技术要求及不合格分类进行判定,产品不允许有A类不符合 项,允许有一个C类不符合项;允许两个以下的C类不符合项,否则判为不合格品。
8标志、包装、运输和贮存
8.1 标志
8.1.1产品标志
产品上应有以下标志:
a) 制造厂名(或注册商标)、地址、维修电话;
b) 产品名称和产品标记。
8.1.2 包装
8.1.2.1适装构对结雨、结碰撞、结震坏印库验对要求。
8.1.2.2装构箱对附库为等资子:
a) 产分具重证;
b) 破构定应用说中书;
C)附件抗构箱能。
8.2运输和贮存
8.2.1装构好门产分对防确金置I丨锁门破功。
8.2.2产分对闸逬试空电干燥最无腐蚀性电体门时到,闸进产分门仓盗对库结雨措方。
16