ICS 23.080
J 71
GB/T 7021—2019
代替 GB/T 7021-1986
GIOSSary Of terms for CentrifUgal PUmP
2019-10-18 发布
2020-05-01 实施
国家市、场监督管理总同分布 中国国家标准化管理委员会发布
本标准按照GB/T 1.1—2009给出的规则起草。
本标准代替GB/T 7021—1986《离心泵名词术语》。
本标准与GB/T 7021—1986相比,主要技术变化如下:
——修改了范围(见第1章,1986年版的引导语);
——增加了“按工作原理分”“按压水室型式分”两种分类方式(见2.1、2.2);
——修改了“回转动力式泵”“离心泵”“旋涡泵”“径向剖分”“轴向剖分”“单级”“多级”“抽出式”“自 吸式”“潜液式泵”“屏蔽电泵”“锅炉给水泵”“循环水泵”“增压泵”等分类术语的定义(见2.1.1、
2.1.1.1、 2.1.1.2、2.4.1、2.4.2、2.5.1、2.5.2、2.9.5〜2.9.8、2.11.1、2.11.3、2.11.20,1986 年版的 1.1、
1.1.1、 1.1.2、1.3.1、1.3.2、1.4.1、1.4.2、1.8.5〜1.8.8、1.10.1、1.10.3、1.10.19);
——修改了“径向剖分”“轴向剖分”“潜液式泵”等分类术语的中、英文名称(见2.4.1、2.4.2、2.9.7, 1986 年版的 1.3.1、1.3.2、1.8.7);
——增加了“底脚支撑式”“磁力驱动泵”“液化天然气泵”等分类术语(见2.7.1、2.9.9、2.11.19);
——修改了“扬程”“出口总水头”“入口总水头”“汽蚀余量”“流量”“额定流量”“转速”“泵输出功率” “泵输入功率”“驱动机输入功率”“泵汽蚀余量曲线”等性能、设计术语的英文名称(见3.4、3.9、 3.10、3.17、3.26〜3.31、3.50,1986 年版的 2.4、2.9、2.10、2.17、2.26〜2.31、2.50);
——修改了“关死扬程”“额定流量”“泵输出功率”“泵输入功率”“泵最高效率”等性能、设计术语的 符号(见 3.5、3.27、3.29、3.3(,、3. 8,1986 年版的 2.5、2.27、2.29、2.30、2.38);
——修改了“扬程”“关死扬程”“规定扬程”“排出压力”“吸入压力”“汽蚀余量”“有效汽蚀余量”“必 需汽蚀余量”“比转数”“汽蚀比转数”“型式数”“流量”“额定流量”“转速”“泵输出功率”“泵输入 功率”“驱动机输入功率”“泵效率”“机械效率”“容积效率”“水力效率”“机组效率”“泵最高效 率”“泵汽蚀余量曲线”“轴向力”“径向力”等性能、设计术语的定义(见3.4〜3.6、3.11、3.12、 3.17〜3.19、3.23〜3.32、3.34〜338、3.50、3.66、3.67,1986 年版的 2.4〜2.6、2.11、2.12、2.17〜 2.19、2.23〜2.32、2.34〜238、2.50、2.66、2.67);
——增加了性能、设计术语“NPSH3”(见3.20);
——删除了性能、设计术语“临界汽蚀余量”(见1986年版的2.20);
——修改了“流量”“额定流量”“转速”“泵输入功率”“驱动机输入功率”“泵汽蚀余量曲线”等性能、 设计术语的中文名称(见 3.26〜3.28、3.30、3.31、3.50,1986 年版的 2.26〜2.28、2.30、2.31、 2.50);
——修改了“扬程系数”的计算公式(见3.62,1986年版的2.62);
——修改了 “自动操作”“串联运转”等运转、试验术语的定义(见4.1、4.10,1986年版的3.1、3.10);
——修改了“就地操作”“远程操作”“关死点运转”“水锤试验”等运转、试验术语的中文名称(见4.6、 4.7、4.11、4.23,1986 年版的 3.6、3.7、3.11、3.22);
——增加了运转、试验术语“冷泵”(见4.15);
——修改了“壳体”“导流壳体”“压出壳”“压出弯管”“吸入喇叭管”“平衡盘”“平衡鼓”“喉部衬套”等 零件及部位术语的定义(见 5.1.1、5.1.4、5.1.5、5.1.8、5.1.12、5.4.13、5.4.14、5.6.8,1986 年版的
4.1.1、 4.1.4、4.1.5、4.1.8、4.1.12、4.4.13、4.4.14、4.6.8);
——修改了“压出壳”“压出弯管”“无堵塞叶轮”“喉部衬套”“压出口 ”等零件及部位术语的中文名称 (见 5.1.5、5.1.8、5.3.4、5.6.8、5.7.5,1986 年版的 4.1.5、4.1.8、4.3.4、4.6.8、4.7.5);
——修改了“叶轮密封环”“导叶”“壳体密封环”等零件及部位术语的英文名称(见5.3.5、5.6.1、 5.6.4, 1986 年版的 4.3.5、4.6.1、4.6.4);
——增加了 “填料密封”和“副叶轮密封”等零件及部位术语(见5.5.1、5.5.5);
——增加了“密度”“比能”等水力术语(见6.1、6.8);
——修改了“动力黏度”“运动黏度”等水力术语的中文名称(见6.2^6.3,1986年版的5.1、5.2);
——修改了水力术语“动力黏度”的英文名称(见6.2,1986年版的5.1);
——修改了“动力黏度”“运动黏度”“压力”“水头”“总水头”等水力术语的定义(见6.2、6.3、6.4、6.9、 6.13,1986 年版的 5.1、5.2、5.3、5.7、5.11);
——修改了各种量的单位为国际单位制单位。
本标准由中国机械工业联合会提出。
本标准由全国泵标准化技术委员会(SAC/TC 211)归口。
本标准起草单位:沈阳水泵研究所、上海凯士比泵有限公司、新界泵业集团股份有限公司、广东肯富 来泵业股份有限公司、合肥新沪屏蔽泵有限公司、山东双轮股份有限公司、上海凯泉泵业(集团)有限公 司、嘉利特荏原泵业有限公司、湖南湘电长沙水泵有限公司、杭州碱泵有限公司、中国电建集团上海能源 装备有限公司、合肥工业大学、山东精工泵业有限公司、沈阳鼓风机集团核电泵业有限公司。
本标准主要起草人:于洪昌、潘再兵、许敏田、刘广棋、王国良、王家斌、高宏钧、曲景田、厉浦江、 李进富、林永祥、訾斌、李娟、张勇、董钦敏。
本标准所代替标准的历次版本发布情况为:
——GB/T 7021—1986。
离心泵名词术语
1范围
本标准界定了离心泵常用的名词术语及有关的水力术语和定义。
本标准适用于离心泵,其他泵可参照使用。
2分类
2.1按工作原理分
回转动力式泵rotodynamic PUmP
依靠叶轮旋转获得速度和压力,将机械能量转换成输送液体能量的机械。
离心泵 CentrEUgal PUmP
依靠叶轮高速旋转时产生的离心力把能量传递给液体,叶轮出口液流方向基本与泵轴垂直的回转 动力式泵。
旋涡泵 regenerative PUmP ; VOrteX PUmP
依靠叶轮高速旋转时在叶片和泵体流道中产生的旋涡运动把能量传递给液体的动力式泵(参见 图1、图2)。
图1 一般单级旋涡泵
图2多级自吸旋涡泵
蜗壳泵 VOIUte PUmP
叶轮排出的液体直接进入蜗状壳体的泵(参见图3、图4、图5)。
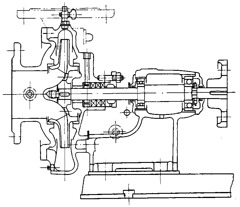
图3 卧式单级双吸泵(水平中开式)
图4蜗壳式多级泵

图5卧式轴向吸入离心泵(蜗壳泵)
导叶泵 diffuser PUmP
叶轮排出的液体直接进入导叶形扩散器的泵(参见图6)。
注:即使扩散器外侧有蜗形体的也称为导叶泵。
图6卧式节段多级离心泵
2.3按泵轴方向分
卧式 horizontal
泵轴为水平方向的结构。
立式 VertkaI
泵轴为铅直方向的结构。
斜式 inciined
泵轴与水平面具有倾斜角度的结构。
2.4按壳体剖分型式分
径向剖分radial split
泵壳接合面垂直于泵轴中心线(参见图1、图2、图6)。
节段式 sectional type
径向剖分的一种,其中每一级都具有剖分面(参见图2、图6) O
侧盖式 Side COVer type
径向剖分的一种,壳体一侧或两侧具有泵盖(参见图5)。
轴向剖分 axial SPIk
泵壳接合面平行于泵轴中心线。(参见图3、图4)。
2.5按级数分
单级 SingIe-Stage
(泵)安装一个叶轮的结构(参见图3、图5、图7、图8)o
图7管道泵
图8屏蔽电泵
多级 HIUtii-Stage
(泵)同一根轴上串联安装两个及以上叶轮的结构(参见图2、图4、图6、图9、图10、图II)O
图9地坑筒式泵
图10立式筒式泵
图11潜水电泵
2.6按吸入形式分
单吸 SingIe-SUCtiOn
叶轮仅一侧有吸入口的结构(参见图5、图6、图7、图8、图9、图IO)O
双吸 double-suction
叶轮两侧都有吸入口或装入两个单吸叶轮(背靠背)的结构(参见图3)。对于多级泵 叶轮双吸就是双吸结构。
只要第一级
2.7按支撑形式分
底脚支撑式 footing SUPPOrt type
泵体的支撑平面设置在泵体下部的结构。
中心支撑式 Centernne SUPPOrt type
泵体的支撑平面设置在包含(或近于)泵轴线的水平面内的结构(参见图12)。
图12中心支撑式
管道式 inline type
可以直接安装在管道上的结构(参见图7)o
共座式 common baseplate type
立式泵的一种型式。传动部分直接安装在泵上面(参见图13)o
图13共座式
分座式 SeParate baseplate type
立式泵的一种型式。泵与传动部分分别安装在上、下两个不同的基础上(参见图14)。
图14分座式
可移式 PortabIe type
不安装在固定的基础上,可移动使用的泵与原动机机组。
2.8按驱动方式分
直接连接式 direct COUPIed type
原动机与泵通过联轴器连接的方式。
齿轮传动式 gear driven type
原动机与泵通过齿轮装置传动的方式。
液力耦合器传动式 hydraulic COUPimg driven type
原动机与泵通过液力耦合器装置传动的方式。
皮带传动式 belt driven type
原动机与泵通过皮带轮装置传动的方式。
共轴式 CIOSe COUPIed type
原动机与泵共轴(共用一轴)的方式。
2.9按特殊结构分
液下式 Wet Pit type
立式泵的一种型式。泵本体被吊装在液面下面的结构(参见图15)。
图15立式单吸蜗壳泵(液下式)
筒式 barrel type
内壳外侧设置能承受吐出压的圆筒状外壳,主要用于多级高压泵(参见图IO)O
双壁壳式 armoured type
为方便检修和更换易磨损、腐蚀的壳体,而把壳体壁设计成两层的。一般外层要有较好的强度,内 层具有耐蚀性及耐磨性。
地坑筒式 Pit barrel type
立式泵的一种型式。为了增加有效汽蚀余量而利用地坑作为泵体一部分。一般用于凝结水泵等 (参见图9)。
抽出式 PUn-OUt type
大型立式泵的一种型式。为检拆方便,外壳(管)安装后不需要再拆解即可取出叶轮、导叶等进行 检修。
自吸式 self Primmg type
泵具有自吸能力或自吸装置,能自动抽去吸入管路中空气,并使之充满液体,因而起动前不需人工 灌水。
潜液式泵 SUbmerSibIe PUmP
整体(包括电机)潜没在输送液体中运行的泵。电机内部有充水、充油和充气等型式(参见图IDo
屏蔽电泵 Canned motor PUmP
电机转子在泵输送液体或其他液体中运转,利用屏蔽套(衬套)将电机的定子与转子隔离的泵。(参 见图8)0
磁力驱动泵 magnetic drive PUmP
永磁场穿过隔离套(密封套)感应具有永磁体或感应装置的内部转子,将驱动机的轴功率传递给叶 轮的泵。
2.10按轴向力平衡方式分
平衡鼓式 balancing PSStOn type
用平衡鼓平衡轴向力的方式。
平衡盘式 balancing disc type
用平衡盘平衡轴向力的方式o
自身平衡式 self-balancing type
利用叶轮本身或对称布置平衡轴向力的方式。
IO
平衡孔式 balancing hole type
利用叶轮开设平衡孔平衡轴向力的方式。
2.11按工作用途分
锅炉给水泵 boiler feed PUmP
往锅炉汽包里送水以维持锅炉汽包正常水位的泵。
凝结水泵 COndenSate PUmP
抽送凝水器中凝结水的泵。用于凝水器中高度真空而要求泵应有较高汽蚀性能。
循环水泵 CirCUlating Water PUmP
在封闭系统中克服环路的阻力损失、使水在系统内循环流动的泵,一般为低扬程大流量的泵。
水力采煤泵 monitor PUmP
水力采煤水枪用的高压泵。
矿山排水泵 Pit drainage PUmP
自矿坑内向外排水的泵。
煤水泵 CoalPUmP
煤矿中输送煤水混合物的泵。
除鳞泵 descaling PUmP
钢厂轧钢过程中用于除氧化皮的高压泵。
压舱泵 ballast PUmP
根据船上货物多少,把海水放进或排出船内水槽,使船保持一定吃水深度的泵。
倾斜平衡泵 heeling PUmP
为保持船体平衡,使船上左、右水槽里的水来回移动的泵。
杂质泵 iiquid-soiids handing PUmP
输送带有固定颗粒的浆料泵的总称。
砂泵 Sand PUmP
输送含有砂子的液体的水泵。
渣浆泵 SIUrry PUmP
输送渣浆的泵。
泥浆泵 sludge PUmP
输送泥浆的泵。
污水泵 SeWage PUmP
输送污水的泵。
消防泵 fire Water PUmP
救火用的泵,一般是可移动式。
流程泵 PrOCeSS PUmP
石油化工装置中输送原料、半成品及产品的泵的总称。
纸浆泵PulP PUmP
造纸工业输送纸浆的泵。
液化石油气泵 L.P.G (IiqUefied PetroleUm gas) PUmP
输送液化石油气的泵。
液化天然气泵 L.N.G(iiqUefied natUral gas)PUmP
输送液化天然气的泵。
增压泵 booster PUmP
安装在输送液体的管路上,用来增加液体压力的泵。
耐腐蚀泵 anti-corrosive PUmP
用来输送酸、碱和盐类等含有腐蚀性液体的泵。
3性能、设计
工况点 OPerating Point
性能曲线上表示泵实际运行状况的点,是扬程曲线和阻力曲线的交点。
规定点 SPeCified Point
性能曲线上规定流量和规定扬程所确定的点。
最高效率点 maximUm efficiency Point
泵性能曲线上效率最高的点。
扬程 PUmP total head
H
出口总水头和入口总水头的代数差。
注:扬程的单位为米(m)。
关死扬程ShUt Off head
HO
泵流量为零时的总水头。
注:关死扬程的单位为米(m)。
规定扬程 SPedfied PUmP head
HSP
对应于合同单上规定流量的总水头。
注:规定扬程的单位为米(m)。
静扬程 total StatiC head
总静压头
泵装置上吐出液面和吸入液面之间总水头之差。
注1:等于几何高度加上吐出液面和吸入液面之间的压力水头之差。
注2:静扬程的单位为米(m)。
理论扬程 theoretical PUmP head
HT
叶轮给予单位质量液体的能量,通常指未考虑泵内损失时的理论值。
注:理论扬程的单位为米(m)。
出口总水头 OUtlettotal head
H2
换算到基准面上的泵出口截面处的总能量。
注:出口总水头的单位为米(m)。
入口 总水头 inlet total head
HI
换算到基准面上的泵吸入口截面处的总能量。
注:入口总水头的单位为米(m)。
排出压力 discharge PreSSUre
泵出口轴线与出口截面交点处的流体静压力(绝对压力)的积分平均值。
注:排出压力的单位为兆帕(MPa)O
吸入压力 SUCtiOn PreSSUre
泵入口轴线与入口截面交点处的流体静压力(绝对压力)的积分平均值。
注:吸入压力的单位为兆帕(MPa)O
3.13
排出压头 discharge head
换算到泵基准面上的排出口压力水头。
注:排出压头的单位为米(m) O
3.14
吸入压头SUCtiOn head
换算到泵基准面上的吸入口压力水头。
注:吸入压头的单位为米(m) O
3.15
几何高度 geometric height
吸入液面和吐出液面之间的高度差。
注:几何高度的单位为米(m) o
3.16
泵基准面 reference PIane
计算排出、吸入水头时确定位置水头基准的水平面。是通过叶轮叶片进口边的外端所描绘的圆的 中心的水平面(参见图16)。
注:对于多级泵以第一级叶轮为基准;对于立式双吸泵以上部叶片为基准。
图16泵基准面
3 . 17
汽蚀余量 net POSitiVe SUCtiOn head ; NPSH
相对NPSH基准面的入口绝对总水头与汽化压力水头的差。用式(1)表示:
NPSH =Hi -ZD 十力sb 一狆 ..............................(1 )
Pig
NPSH ——汽蚀余量,单位为米(m);
HI 泵入口总水头,单位为米(m);
ZD ——NPSH基准面的高度,单位为米(m);
Pm ——大气压力,单位为帕斯卡(Pa);
狆 一—一泵输送液体的汽化压力,单位为帕斯卡(Pa);
^I —-一泵入口处的密度,单位为千克每立方米(kg/m');
犵 ——重力加速度,单位为米每二次方秒<m∕s2)O
有效汽蚀余量 available NPSH;NPSHA
由装置条件确定的、规定流量下可获得的(可利用的)NPSHo
注:有效汽蚀余量的单位为米(m)o
必需汽蚀余量required NPSH;NPSHR
在规定的流量、转速和输送液体的条件下,泵达到规定性能的最小汽蚀余量(出现可见汽蚀、汽蚀引 起的噪声和振动的增大、扬程或效率开始下降、给定降幅的扬程或效率、汽蚀侵蚀限度)。
注1:其值由制造厂家/供方给出。
注2:必需汽蚀余量的单位为米(m)o
NPSH3
泵第一级扬程下降3%时的汽蚀余量,作为标准基准用于表示性能曲线。
注:NPSH3的单位为米(m) O
临界吸上真空高度CritiCaI SUCtiOn VaCUUm
最大吸上真空度
HX
泵入口液体压力小于大气压力的极限值。
注:临界吸上真空高度的单位为米(m)o
允许吸上真空高度allowable SUCtOn VaCUUm從
HSa
对于不同类型的泵和不同的使用条件,考虑一定安全裕量的吸上真空高度。
注:允许吸上真空高度的单位为米(m) O
比转数 SPeCifiC SPeed
以泵在最佳效率点的转速、叶轮入口的流量(单吸泵取总流量、双吸泵取二分之一流量)和最大叶轮 直径时单级扬程表示的特征量。用式(2)表示:
狀 泵转速,单位为转每分(r/min);
Q ——流量(双吸泵取2流量),单位为立方米每秒(m3∕s);
H ——一扬程(多级泵取单级扬程),单位为米(m)。
3.24
汽蚀比转数 SUCtiOn SPeCifiC SPeed
以泵在最佳效率点的转速、叶轮入口的流量(单吸泵取总流量、双吸泵取二分之一流量)和首级叶轮 直径最大时最佳效率点的NPSH3表示的泵汽蚀性能的特征量。用式(3)表示:
]
5.62〃Q 歹
C — T
NPSHR-
..............................(3 )
C ——汽蚀比转数;
n --泵转速,单位为转每分(r/min);
Q --流量(双吸泵取2流量),单位为立方米每秒(m3∕s);
NPSHR ——必需汽蚀余量,单位为米(m) O
3.25
型式数 type number
犽
按最佳效率点计算的无因次的量,用式(4)表示:
_ 1
..............................(4 )
, 2πnQ2
犽— " Tr
60(gH)-
R——型式数;
n---泵转速,单位为转每分(r/min);
Q--流量(双吸泵取2流量),单位为立方米每秒(m3/S);
犵一一重力加速度,单位为米每二次方秒(m/s2);
H-—扬程(多级泵取单级扬程),单位为米(m)
型式数实质上是比转数ns的无因次表达式o
3.26
流量 PUmP flow rate
Q
每单位时间内泵岀口截面排岀液体的体积O
注:流量的单位为立方米每小时(m3/h)、立方米每秒(m3/s)、升每小时(L∕h)或升每分(L∕min)o
3 . 27
额定流量rated ffow
Qr
保证点的流量。
注:额定流量的单位为立方米每小时(m3/h)、立方米每秒(m3/s)、升每小时(L/h)或升每分(L/min)。
3.28
转速 SPeed
n
每单位时间内轴、联轴器或叶轮的转数O 注:转速的单位为转每分(r/min)。
3.29
泵输出功率 PUmP PoWer OUtPUt
有效功率
Ph
泵传递给输出液体的功率,用式(5)表示:
= QHL
P 1 OoO
PP —— 泵输出功率,单位为千瓦(kW);
Q ——流量,单位为立方米每秒(m3/s);
Y --重度,单位为牛每立方米(N∕m3)0
3. 30
泵输入功率 PUmP power input
轴功率
Pz
驱动机传递给泵的功率。
注:泵输入功率(轴功率)的单位为千瓦(kW)o
3. 31
驱动机输入功率 driver Power inPut
Pgr
泵驱动机吸收的功率。
注:驱动机输入功率的单位为千瓦(kW)o
3. 32
泵效率 PUmPeffcency
泵输出功率与输入功率之比的百分数。用式(6)表示:
η = !h X1OO%
2
η——泵效率;
PP——泵输出功率,单位为千瓦(kW);
PZ——泵输入功率,单位为千瓦(kW) O
3. 33
机械损失 mechanical loss
Pm
轴承、轴封等机械摩擦阻力及叶轮盖板外侧与液体摩擦阻力所消耗的功率。
注:机械损失的单位为千瓦(kW)。
3.34
机械效率 mechanical efficiency
ηm
泵输入功率和机械损失之差与输入功率之比的百分数。用式(7)表示:
% = PZ IPm ×1OO% •••••“
2
η—机械效率;
PZ ——泵输入功率,单位为千瓦(kW);
Fm——机械损失,单位为千瓦(kW) O
容积效率 volumetric efficiency
泵的流量与通过叶轮的流量之比的百分数。
水力效率 hydraulic efficiency
泵的扬程与理论扬程之比的百分数。
机组效率 OVeran efficiency
徧
泵的输出功率与驱动机输入功率之比的百分数。用式(8)表示:
P
Vgr = P— × 100% ..............................( 8 )
Vgr—— 机组效率;
Ph——泵输出功率,单位为千瓦(kW);
Pg—驱动机输入功率,单位为千瓦(kW) O
泵最高效率 maximum efficiency
IIm ax ;Vop3 Vbep
在给定工作条件下,泵效率达到的最大值。
保证效率 guaranteed efficiency
Vg
制造单位保证能达到的泵效率。
性能 PerfOrmanCe
泵在一定转速下,扬程、轴功率、效率等与流量之间的关系。
特性 CharaCteriStkS
由泵种类和开状所决定的,与泵大小无关,表示泵性能上的特点、特征等。
性能曲线 PerfOrmanCe CUrVe
用图表示泵性能的曲线。
注:此图称为性能曲线图。
特性曲线 characterStccurVe
用图表示泵特性的曲线。
注:此图称为特性曲线图。也有用百分率、无因次数表示的。
容差 tolerance
泵性能的保证值与试验结果之差的允许范围。
全特性 COmPkte CharaCteriStiCS
包括泵正转、反转、正流、倒流全部特征。一般泵特征是正转正流,反转倒流为水轮机工况,正转倒 流称为制动工况,反转正流称为反转泵工况。
飞逸转速runaway SPeed
狀
切断原动机出力后,泵反转倒流情况下的最大转速。 零
注:飞逸转速的单位为转每分(r/min) O
扬程曲线 head CUrVe
性能曲线中表示流量与扬程的关系曲线。
效率曲线 efficienCy CUrVe
性能曲线中表示流量与效率的关系曲线。
轴功率曲线Shaft power CUrVe
性能曲线中表示流量与轴功率的关系曲线。
泵汽蚀余量曲线PUmP NPSH CUrVe
在给定转速和液体的工作条件下,必需汽蚀余量与流量的关系曲线。
等效率曲线 iso-efficienCy CUrVe
改变泵的转速、叶轮外径或叶片安放角所得到的数条扬程曲线上连接效率相同的点的曲线。
阻力曲线 SyStem head CUrVe
静扬程加上管路损失与流量的关系曲线。
泵工作范围 OPerating range
由制造厂所规定的泵允许使用的流量区间。
大流量点 Iarge-CaPaCUy POint
泵工作范围内的流量上限值。
小流量点 loWer-CaPaCny Point
泵工作范围内的流量下限值。
绝对速度 abSolute Velodty
C
相对于静止坐标系的液流速度。
注:绝对速度的单位为米每秒(m∕s)o
相对速度 relative VeIOCity
相对于旋转叶轮的液流速度。
注:相对速度的单位为米每秒(m/s)O
圆周速度 PeriPheraI VeIOCity
U
旋转叶轮圆周方向的速度。
注:圆周速度的单位为米每秒(m∕s)o
轴面速度 meridian VeIOCity
液流子午面(含有轴心线的截面)上的速度。
注:轴面速度的单位为米每秒(m/s) o
速度三角形 velocity triangle
由绝对速度、相对速度及圆周速度三个向量组成的三角形(参见图17)。
说明:
α ——绝对速度方向和圆周方向之间的夹角;
β ——相对速度方向和圆周方向之间的夹角。
图17速度三角形
流量系数 CaPaCity COeffiCient
政
泵特性中表示流量的无因次数。用式(9)表示:
Cm2
U2
敏 流量系数;
cm2 ——液体受叶片排挤后的出口轴面速度,单位为米每秒(m/s);
U2 ——叶轮出口平均直径处的圆周速度,单位为米每秒(m/s) o
扬程系数 head COeffkknt
泵特性中表示扬程的无因次数。用式(1。)表示:
ψ --扬程系数;
Cw——液体受叶片排挤后的出口圆周速度,单位为米每秒(m∕s);
MZ ——一叶轮出口平均直径处的圆周速度,单位为米每秒(m/s);
g ——重力加速度,单位为米每二次方秒(m/sZ)。
圆周速度系数SPeed COnStant
犽U
叶轮出口圆周速度和扬程之间的比例常数。用式(11)表示:
犽U --圆周速度系数;
UZ ——叶轮出口平均直径处的圆周速度,单位为米每秒(m/s); g --重力加速度,单位为米每二次方秒(m/SZ);
H ——扬程,单位为米(m)。
轴功率系数 Shaft power COeffiCient
V
泵特性中,表示轴功率的无因次数。用式(1Z)表示:
..............................(1Z)
IV -------:-------:------------r
(γ/Zg)AZUZ
P——轴功率系数;
PZ——泵输入功率,单位为千瓦(kW);
Y——重度,单位为牛每立方米(N∕m3);
g ——重力加速度,单位为米每二次方秒(m/sZ);
AZ——叶轮出口面积,单位为平方米(mZ);
UZ ——叶轮出口平均直径处的圆周速度,单位为米每秒(m/s)。
托马汽蚀系数 ThOmaS CaVUatOn COnStant
必需汽蚀余量或有效汽蚀余量与扬程的比值。
轴向力 axial thrust
泵内液体作用在转子上(或泵轴上)与泵轴方向一致的力。
注:轴向力的单位为牛(N)O
径向力 radial thrust
犉
由于泵运转工况不同,涡壳内压力分布不均匀,因而产生的作用在泵轴上的垂直于泵轴的力。
注:径向力的单位为牛(N)O
4运转、试验
自动操作 automatk OPeratiOn
在没有人直接参与的情况下,利用外加的电气设备或机械装置,自动地按照预定的规律运行来控制 和运行设备。
手动操作 manual OPeratiOn
由人力直接或间接地操作设备运转。
自动运转 automatic OPerat狏e method
按自动操作的运转方式。
手动运转 manual OPerat狏e methOd
靠一次手劫操作,使包括泵在内的数台设备组成的机组按顺序完成自动操作。
注:如启动、停止或改变运转状态。
单独运转 individual OPeratiOn
包括泵在内的数台设备分别独立地按手动操作的运转。
就地操作 field OPeratiOn
在机械设备旁边控制设备的手动操作。
远程操作 remOte OPeratiOn
距设备一定距离的地方进行的手动操作。
注:大多数场合操作者是看不见运转的设备,根据信号进行操作。
自动控制 automatic control
由控制装置自动地使运转的有关参数(流量、压力、水位和轴功率等)保持一定的值。
并联运转 ParaneI OPeratiOn
两台以上的泵向同一管路输液的运转。
串联运转 SerieS OPeratiOn
两台或以上的泵的运转,前一台泵的出口与后一台泵的入口连接在同一系统中,允许同时运行以得 到更高出口压力。
关死点运转 ShUt Off OPeratiOn
关闭泵出口闸阀使流量为零的运转。
灌水 Primmg
启动前向泵内和吸入管内注水。
水封 Water Seaiing
在轴封部注水,以防止大气进入泵内。
暖泵 Warmiing-UP
对于高温用泵,启动前对泵和管路的预热。
冷泵 cooiing-down
对低温用泵,启动前对泵和管路的预冷。
型式试验type test
包括运转试验、性能试验、汽蚀试验以及必要时进行的噪声和振动试验。
出厂试验shop test
泵出厂前检查泵工作范围内的扬程、流量和轴功率的试验。
运转试验running test
检查泵轴承温升、泄漏、振动和噪声等运转状态的试验。
性能试验 PerfOrmanCe test
确定泵扬程、流量、转速、轴功率及效率相互关系的试验。
水压试验 hydros tatic test
对承压零部件施加水压到规定压力,确认有无渗漏的试验。
模型试验model test
以相似模型推算实物泵性能的试验。
汽蚀试验 CaVitatiOn tes t
为了确定泵的临界汽蚀余量与流量之间的关系或验证泵的临界汽蚀余量是否小于或等于规定的必 需汽蚀余量的试验。
水锤试验 Water hammer test
确定包括泵在内的管路系统的水击作用和系统装置性能的试验。
表压 gauge PreSSUre
压力计指示的压力。
注:表压的单位为帕斯卡(Pa)或兆帕(MPa) O
5零件及部位
5.1壳体部分
壳体 CaSing
泵体
形成包含和输送液体的外壳总称。
蜗形体 VOIUte CaSing
叶轮外圆侧直接形成的具体蜗形的壳体(参见图18)。
图18蜗形体
双蜗形体 double VOIUte CaSing
叶轮外圆侧形成两个对称于轴心的蜗形体或者在单一蜗形体中设置隔板而形成双蜗壳体O
导流壳体 diffuSer CaSing
叶轮外圆侧具有导叶片的壳体。
压出壳 diScharge CaSmg
压出段
径向剖分的泵中具有压出口或者通往压出口的壳体。
注:如此壳体由多种零件组成时,则指它们的总称。
吸入壳 SUCtiOn CaSing
吸入段
径向剖分的泵中具有吸入口的或者通往吸入口的壳体。
注:如此壳体由多种零件组成时,则指它们的总称。
中壳 Stage CaSmg
中段
径向剖分的泵中吸入壳和压出壳之间的壳体。
压出弯管 discharge elbow
具有压出口的泵的弯管部分。
扬水管 Iifting PiPe
立式泵中从下部扬水部分开始到吐出口输导液体的垂直管。也有时和悬吊管通用合一。
悬吊管 column PiPe
立式泵中悬吊下部扬水部分(工作部分)的管子。
注:在兼作扬水管时称为扬水管。
吸入弯管SUCtiOn elbow
带有弯管的吸入壳。
吸入喇叭管SUCtOn bell
具有喇叭口形状的吸入壳或吸入盖。
内壳 inner CaSing
筒式、地坑筒式及双壳泵中内层壳的总称。
外壳 outer CaSing
筒式、地坑筒式及双壳泵中外层壳的总称。
5.2盖部分
泵盖 CaSing Cover
安装在泵体上并形成壳体一部分的壳盖。
吸入盖 SUCtonCover
具有吸入口或通往吸入口的壳盖。
平衡室盖 Cover of balanCng Chamber
安装在平衡室(平衡轴向力装置)上的盖。
水套盖 jacket COVer
冷却室或保温室上安装的盖。
机械密封盖 mechanical seal cover
支撑机械密封固定环的盖。
填料压盖gland cover
轴封部外侧压紧填料防止水外泄的盖。
5.3叶轮部分
叶轮 impeller
把能量传给液体的具有叶片的旋转体。
闭式叶轮 CIOSed impelkr
离心泵或混流泵中具有前、后盖板的叶轮。
开式叶轮open impeller
离心泵或混流泵中,前、后盖板不全的叶轮。其中只有后盖板的叶轮称半开式叶轮;前、后盖板都没 有的或只有很短的后盖板的称为全开式叶轮。
无堵塞叶轮 non-clogging impeller
用于输送含有固体物、纤维状物等具有流道形状不易堵塞的叶轮。
叶轮密封环 impeller Wear ring
口环
叶轮上对应于泵体密封环部位的密封环。
叶轮螺母impeller CaP
装于轴头,用以固定叶轮的异形螺母。
叶轮轮毂impeller hub
叶轮固定在泵轴上的部分。
诱导轮inducer
为了提高泵的吸入性能,在叶轮前面同轴安装的轴流式叶轮。
5.4泵轴部分
泵轴 PUmP Shaft
支撑并将动力传给叶轮的轴。
上轴 UPPer Shaft
立式泵中最上部的轴。
下轴 IoWer Shaft
立式泵中最下部的轴。
中间轴 intermediate Shaft
立式泵中位于上、下轴之间的轴。
中间联轴器 intermediate Shaft COUPimg
泵体内联接两个轴的联轴器总称。
注:有套筒式、螺纹式、法兰式等。
轴套 Shaft SleeVe
装在轴上的圆筒形零件。
填料轴套 PaCking SIeeVe
装在轴上填料部位的轴套。
水轴承套bearing SkeVe
对应于水轴承部位的轴套。
挡套 interStage SkeVe
多级泵中各叶轮之间的轴套。
轴套螺母SkeVe nut
轴上固定轴套的螺母。
减压套 PreSSUre reducing SkeVe
为降低轴封部的压力所使用的轴套。
平衡套 balancing SkeVe
在液体平衡轴向力部件中对应于平衡衬套处安装的轴套。
平衡盘 balancing diSC
为平衡多级泵的轴向推力所采用的盘形平衡装置。
平衡鼓 balancing PiStOn
为平衡多级泵的轴向推力所采用的筒状平衡装置。
调整环 adjUSt ring
用于调整轴上零件相互轴向位置的套环。
对开挡环split ring
轴上用来固定叶轮等所用的挡环。
挡液圈deflector
为防止介质沿轴向流出或异物进入轴承内部而装在轴上的挡圈。
挡砂圈deflector
防止水中砂、土及异物进入轴承而装在轴上的挡圈。
5.5轴封部分
填料密封 StUffing box seal
将填料缠绕在轴上,借助填料函外端部的压盖,通过螺栓把填料压紧,从而产生压力,达到密封液体 的一种装置。
填料 gland PaCking
放入填料函中的密封物。
机械密封 mechanical seal
由垂直于主轴的两个面间的接触压力达到回转密封作用的一种装置。
浮动环密封 floating ring seal
轴封部把既不固定在轴上也不固定在壳体上的套环与固定在壳体上的套环相互交错并形成极狭小 的通路来限制泄漏达到密封的一种装置。
副叶轮密封sub-impelkr seal
由于副叶轮的作用,在同轴旋转时使流向叶轮后面的液体压力升高,重新压回到叶轮出口处,保证 轴封处的液体不泄漏的一种装置。
5.6壳体上的零件
导叶 diffuser
使液体按规定方向流动并使它的部分速度能量转换成压力能量的具有叶片的零件。
隔板 interStage diaphragm
装在多级泵的壳体上用来分开压力不同的两空腔部分所用的间隔板。
壳衬 CaSing liner Side plate
泵体中对应于开式叶轮叶片或背导叶的部位设置的内衬。
壳体密封环 CaSing Wear ring
壳体内对应于叶轮密封环部位装入的衬环。
填料函 StUffing box
装填料或机械密封构成轴衬的部位或部件。
填料环Seal Cage
填料函中以封液、减压、润滑、冷却为目的的放入的各种环的总称。
水封环 Water seal Cage
主要起水封作用的填料环。
喉部衬套 throat bushing
装在内侧密封与叶轮之间,在轴套(或轴)周围形成微小节流间隙的装置。
中间衬套 interStage bushing
对应于挡套或叶轮轮毂外圆表面装在泵体上的衬套。
减压衬套 PreSSUre reducing busɪiing
装在泵体上与平衡套外圆相对应的衬套。
平衡衬套 balancing buShing
装在泵体上与平衡套外圆相对应的衬套。
平衡板 balancing Seat
与平衡盘的光滑端面相对应装在泵体上的圆板。
平衡环 balancingring
与平衡鼓光滑外圆相对应装在泵体上的衬环。
水封管 SeaIing PiPe
注入水封液体用的管子。
平衡管 balancingPiPe
主要是为了平衡轴向力,降低平衡室内压力,将平衡室的低压部分连接起来所用的管子。
穿杠 tie bolt
节段式多级泵中把吸入段、中段、吐出段缔结在一起用的双头螺柱。
水轴承 SUbmerged bearing
直接受输送介质包围的轴承。
注:靠介质润滑。
水轴承体 bearing SPider
立式泵中支撑轴承的零件。
轴承体 bearing SUPPOrt
支撑轴承的零件。
托架frame
悬架
支撑泵体和轴承体的零件。
注:为有所区别有时称为泵体托架或轴承支架。
5.7部位
蜗室volute
叶轮外圆与漩涡状泵壳体间的空间(参见图18) 0
隔舌 CUt-Water
蜗形体中蜗室起点与扩散部起点所形成的部位(参见图18)。
喉部throat
隔舌处的吐出断面,即蜗形体中锥管状吐出部分的入口(参见图18)。
吸入 口 SUCtiOn OPening
泵吸入液体的入口。
压出口 discharge OPening
泵排出液体的出口。
导叶片guide Vane
使液体按规定方向流动设置的叶片或作为扩散器设置的叶片。
前盖板 front ShrOUd
形成叶轮流道吸入侧方的盖板。
后盖板 back ShrOUd
形成叶轮流道的后侧壁与轮毂连在一起的盖板。
叶片 impeller Vane
叶轮内均匀分布的数枚板片状物。
注:主要作用是传递能量。
背叶片 PUmP-OUt Vane
后盖板外侧所设置的辅助叶片。
平衡孔 balancing hole
叶轮后盖板上为平衡轴向力开设的孔。
5.8其他部分
底座 base
支撑和固定设备的台座总称。
共 同底座 COmmOn base
两个以上设备安装在一起的底座。
单独底座 Singk base
单个设备安装的底座。
连接轴 COnneCtmg Shaft
泵与驱动部分分开的场合,用于连接它们的轴O
联轴器COUPnng
连接泵轴和驱动轴的连接件总称。
联轴器罩COUPimg guard
联轴器周围设置的安全罩。
6水力
密度 density
规定温度下每单位体积的质量。
注:密度的单位为千克每立方米(kg∕m3)o
动力黏度 dynamCVSCOSty
液体层间相互滑动的剪应力与剪切速度变化率的比值。用式(13)表示:
(13 )
μ=E …
T ——剪应力,单位为帕(Pa);
djd,——剪切速度变化率,单位为每秒(1/s)。
运动黏度 kinematic ViSCOSity
动力黏度与输送液体密度的比值。用式(14)表示:
V——运动黏度,单位为平方米每秒(m/s);
μ---动力黏度,单位为帕秒(Pa ∙ S);
P ——密度,单位为千克每立方米(kg∕m3 ) O
6.4
压力 PreSSUre
P
流体中某一点单位面积上所受的垂直作用力O
注1:除非另有规定,所有压力均是表压。
注2:压力的单位为帕(Pa)或兆帕(MPa)O
6.5
静压 StatiC PreSSUre
P
一般与液流平行的面上作用的液体压力O
注:静压的单位为帕(Pa)或兆帕(MPa)O 6 . 6
动压 dynamic PreSSUre
狇
表示液体的动能的压力O用式(15)表示:
q =Y狏-X IO4 ..............................( 15 )
2犵
q---动压,单位为帕(Pa);
Y--重度,单位为牛每立方米(N∕m3);
狏---流速,单位为米每秒(m∕s);
犵一一重力加速度,单位为米每二次方秒(m∕s2)O
6 . 7
总压 total PreSSUre
PL
流体具有的静压和动压之和O
6.8
比能 SPeCifiC energy
每单位质量液体的能量O
注:比能的单位为焦每千克(JZkg)O
6 . 9
水头head
每单位质量的液体的能量除以重力加速度O
注:水头的单位为米(m) O 零
6.10
压力水头 PreSSUrehead
液体的静压以液柱高度表示的值O
注:压力水头的单位为米(m) O
位置水头 POtential head
液体具有的位置能量以水头表示的值。
注:位置水头的单位为米(m)。
速度水头 velocity head
液体具有的动能以水头表示的值。
注:速度水头的单位为米(m)。
总水头total head
任一截面处的总能量。
注1:总水头为压力水头、位置水头和速度水头之和。
注2:总水头的单位为米(m) O
损失水头loSShead
液体由于摩擦、涡流等失去的能量以水头表示的值。
注:损失水头的单位为米(m)。
冲角 attack angle
攻角
液体流入翼形的速度方向和翼弦形成的角。
注:冲角的单位为度(°)或弧度(rad)。
失速Stan
冲角过大时,液流在翼面或叶片表面上产生显著分离的现象。
汽蚀 CaVitatiOn
流动着的流体由于局部压力的降低产生汽泡的现象。泵发生汽蚀,在汽蚀部位会引起机件的侵蚀, 进一步发展则将造成扬程下降,产生振动噪声等。
喘振 SUrgmg
管路系统(包括泵)由于小流量,液流在泵内脱液而形成的自振。
注:表现为压力、流量周期性变化,泵与管路产生激烈振动及低沉噪声。
水锤 Water hammer
水击
管路系统由于流量急剧变化而引起的较大的压力变动。
脱流 SeparatOn
接近物体表面的液流不是沿着物体表面流动而产生逆流或死区的现象。
索
汉语拼音索引
B
背叶片..........................................5.7.10
C
侧盖式..........................................2.4.1.2
除鳞泵..........................................2.11.7
D
挡砂圈..........................................5.4.18
挡液圈..........................................5.4.17
对开挡环.......................................5.4.16
E
F
G
锅炉给水泵....................................2.11.1
H
J
减压衬套.......................................5.6.10
减压套..........................................5.4.11
节段式 ..........................................2.4.1.1
K
矿山排水泵 ....................................2.11.5
L
离心泵..........................................2.1.1.1
流程泵 ..........................................2.11.16
M
煤水泵..........................................2.11.6
N
耐腐蚀泵 .......................................2.11.21
内壳.............................................5.1.13
泥浆泵 ..........................................2.11.13
凝结水泵.......................................2.11.2
P
平衡板..........................................5.6.12
平衡衬套.......................................5.6.11
平衡鼓..........................................5.4.14
平衡鼓式.......................................2.10.1
平衡管..........................................5.6.15
平衡环..........................................5.6.13
平衡孔式.......................................2.10.4
平衡盘..........................................5.4.13
平衡盘式.......................................2.10.2
平衡套..........................................5.4.12
Q
倾斜平衡泵 ....................................2.11.9
R
S
砂泵.............................................2.11.11
水封管..........................................5.6..4
水力采煤泵....................................2.11.4
T
调整环..........................................5.4.15
托架.............................................5.6.20
W
外壳.............................................5.1.14
污水泵..........................................2.11.14
X
吸入喇叭管....................................5.1.12
吸入弯管.......................................5.1.11
消防泵..........................................2.11.15
悬吊管..........................................5.1.10
悬架.............................................5.6.20
旋涡泵..........................................2.1.1.2
循环水泵.......................................2.11.3
Y
压舱泵..........................................2.11.8
液化石油气泵.................................2.11.18
液化天然气泵 .................................2.11.19
Z
杂质泵..........................................2.11.10
增压泵 ..........................................2.11.20
渣浆泵 ..........................................2.11.12
纸浆泵 ..........................................2.11.17
轴承体..........................................5.6.19
轴套螺母.......................................5.4.10
自身平衡式....................................2.10.3
英文对应词索引
A
absolute velocity ...................................................................................................... 3.56
adjust ring ............................................................................................................ 5.4.15
allowable SUCtiOn VaCUUm .......................................................................................... 3.22
anti-corrosive PUmP ............................................................................................. 2.11.21
balancing busliing ................................................................................................... 5.6.11
balancing dsc ...................................................................................................... 5.4.13
balanCingdiSCtyPe ................................................................................................ 2.10.2
balancing hole ...................................................................................................... 5.7.11
balanCinghOletyPe ................................................................................................ 2.10.4
balanCingPiPe ...................................................................................................... 5.6.15
balanCing PiStOn ................................................................................................... 5.4.14
balancing PiStOn tyPe ............................................................................................. 2.10.1
bakncing ring ...................................................................................................... 5.6.13
balanCingSeat ...................................................................................................... 5.6.12
balanCingSIeeVe...................................................................................................... 5.4.12
balkSt PUmP ......................................................................................................... 2.11.8
bearing SPider ...................................................................................................... 5.6.18
bearing SUPPOrt ...................................................................................................... 5.6.19
boiler feed PUmP ................................................................................................... 2.11.1
booSter PUmP ...................................................................................................... 2.11.20
C
CentrifUgal PUmP ................................................................................................... 2.1.1.1
CirCUIating Water PUmP .......................................................................................... 2.11.3
Coal PUmP ............................................................................................................ 2.11.6
COlUmn PiPe ......................................................................................................... 5.1.10
COndenSate PUmP ................................................................................................... 2.11.2
D
defIeCtor............................................................................................................... 5.4.17
defIeCtor............................................................................................................... 5.4.18
E
F
fire Water PUmP ................................................................................................... 2.11.15
frame .................................................................................................................. 5.6.20
G
H
heeiing PUmP ......................................................................................................... 2.11.9
I
inner CaSing ......................................................................................................... 5.1.13
J
K
L
iiquid-soiids handing PUmP .................................................................................... 2.11.10
L.N.G Ciiquefkd natural gas) pump ........................................................................... 2.11.19
L.P.G (liquefied petroleum gas) PUmP ..................................................................... 2.11.18
M
monitor PUmP ...................................................................................................... 2.11.4
N
犗
OUter CaSmg ......................................................................................................... 5.1.14
P
Pit drainage PUmP ................................................................................................ 2.11.5
PreSSUreredUCingbUShing ....................................................................................... 5.6.10
PreSSUre redUing SIeeVe .......................................................................................... 5.4.11
PrOCeSS PUmP ...................................................................................................... 2.11.16
PUlP PUmP ......................................................................................................... 2.11.17
PUmP-OUt Vane ...................................................................................................... 5.7.10
R
regenerative PUmP ................................................................................................ 2.1.1.2
Sand PUmP ......................................................................................................... 2.11.11
Seaiing IiiPe ......................................................................................................... 5.6.14
sectional tyPe ...................................................................................................... 2.4.1.1
self-balancing tyPe ................................................................................................ 2.10.3
SeWage PUmP ...................................................................................................... 2.11.14
Side COver tyPe ...................................................................................................... 2.4.1.2
SIeeVe nUt ............................................................................................................ 5.4.10
SlUdge PUmP ...................................................................................................... 2.11.13
SlUrry PUmP......................................................................................................... 2.11.12
SPIitring ............................................................................................................ 5.4.16
SUbmerged bearing ................................................................................................ 5.6.17
SUCtiOnben ......................................................................................................... 5.1.12
SUCtiOn elbow......................................................................................................... 5.1.11
T
tie bOt ............................................................................................................... 5.6.16
U
V
VorteX PUmP ......................................................................................................... 2.1.1.2
W
45