ICS 83.120
Q 23
GB/T 7190.3—2019
MeChaniCal draft COOIing towers— Part 3: Closed CirCUit cooiing towers
2019-08-30 发布
2020-07-01 实施
国家市场监督管理总局发布 中国国家标准化管理委员会发布
GB/T 7190«机械通风冷却塔》分为三个部分:
——第1部分:中小型开式冷却塔;
——第2部分:大型开式冷却塔;
——第3部分:闭式冷却塔。
本部分为GB/T 7190的第3部分。
本部分按照GB/T 1.1—2009给出的规则起草。
本部分由中国建筑材料联合会提出。
本部分由全国纤维增强塑料标准化技术委员会(SAC/TC 39)归口 O
本部分起草单位:北京玻璃钢研究设计院有限公司、中国水利水•电科学研究院、上海理工大学、华中 科技大学、中国电力工程顾问集团华北电力设计院有限公司、信息产业电子第十一设计研究院科技工程 股份有限公司、广州地铁集团有限公司、江苏海鸥冷却塔股份有限公司、广州览讯科技开发有限公司、中 化工程沧州冷却技术有限公司、上海金日冷却设备有限公司、浙江万享科技股份有限公司、湖南元亨科 技股份有限公司、大连斯频德环境设备有限公司、益冷和众科技(北京)有限公司、新菱空调(佛冈)有限 公司、浙江金菱制冷工程有限公司、浙江东杰冷却塔有限公司、山东天一冷暖科技股份有限公司。
本部分主要起草人:尹证、赵顺安、章立新、陈良才、冯璟、温晓军、张立晨、吴疆。
机械通风冷却塔
第3部分:闭式冷却塔
1范围
GB/T 7190的本部分规定了闭式冷却塔的产品分类和标记、要求、试验方法、检验规则、标志、包 装、运输和贮存及其他。
本部分适用于单塔循环冷却水量不大于500 m3∕h的闭式冷却塔(以下简称闭式塔)。
2规范性引用文件
下列文件对于本文件的应用是必不可少的。凡是注日期的引用文件,仅注日期的版本适用于本文 件。凡是不注日期的引用文件,其最新版本(包括所有的修改单)适用于本文件。
GB/T 151热交换器
GB/T 1449纤维增强塑料弯曲性能试验方法
GB/T 2518连续热镀锌钢板及钢带
GB/T 7190.1机械通风冷却塔 第1部分:中小型开式冷却塔
GB/T 8924纤维增强塑料燃烧性能试验方法氧指数法
GB/T 13912金属覆盖层钢铁制件热浸镀锌层技术要求及试验方法
GB/T 31539 — 2015结构用纤维增强复合材料拉挤型材
HJ 706环境噪声监测技术规范噪声测量值修正
JB/T 7658.5氨制冷装置用辅助设备 第5部分:蒸发式冷凝器
3术语和定义
GB/T 7190.1界定的以及下列术语和定义适用于本文件。
3. 1
闭式冷却塔 closed CirCUit COOling tower
循环冷却水不与空气直接接触,通过间壁式换热器将热量传给喷淋水,由喷淋水的蒸发和空气的显 热传递,降低循环冷却水温度的装置。
3. 2
换热模块 heat exchange module
由盘管或板片间壁式换热器、淋水填料(部分含有)等换热元件构成的换热单元。
3. 3
喷淋水 SPray Water
通过配水装置喷淋至换热模块并只在塔内自循环的水。
3.4
循环冷却水 CirCUiting cooling Water
间壁式换热器内被冷却的工艺循环水。
3.5
工作压力 OPerating PreSSUre
正常工作时,间壁式换热器承受的循环冷却水的压力。
3.6
设计压力 design PreSSUre
间壁式换热器所能够承受的循环冷却水的最大工作压力。
3 . 7
循环冷却水压力损失 PreSSUre Oss OfCirCUIating cooiing Water
循环S-却水在间壁式换热器内因流动的沿程阻力和局部阻力产生的压力损失。
3.8
能耗比 power COnSUmPtiOn ratio
风机、喷淋水泵电动机实际消耗的电功率和循环冷却水克服管程流动阻力所消耗的理论功率之和 与循环冷却水流量的比值。
4产品分类和标记 4.1产品分类
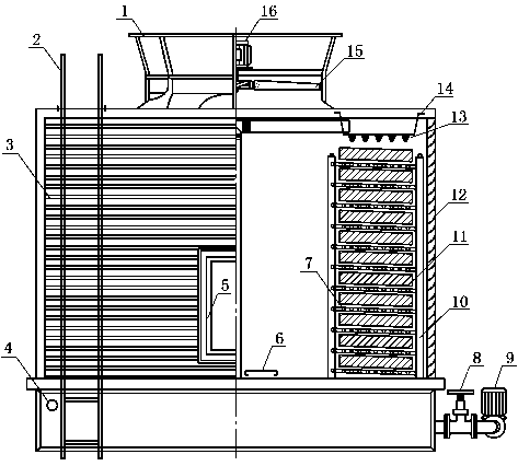
闭式塔的典型结构形式有逆流、横流和复合流三种。逆流闭式塔示意图如图1所示;横流闭式塔示 意图如图2所示;复合流闭式塔示意图如图3所示。
说明:
1 ---风筒;
2 爬梯;
3 ---侧板;
4——循环冷却水进、出口 ;
5 进风窗;
6 --淋喷水补水管;
7 喷淋水泵;
8 ——阀门;
9 ——一间壁式换热器;
10 填料层(也可无填料);
11——喷淋管网及喷嘴;
12 收水器;
13 风机;
14 --电动机和减速机。
图1逆流闭式塔示意图
说明:
1---风筒;
Z—爬梯;
3 ---侧板;
4 --喷淋水补水管;
5 --检修门;
6 --检修走道;
说明:
1—风筒;
2 ---爬梯;
3 ---侧板;
4 喷淋水补水管;
5 --检修门;
7 间壁式换热器;
8 阀门;
9 喷淋水泵;
10——循环冷却水进水集管;
11 填料(也可无填料);
12 进风窗;
13 喷淋水喷头;
14——喷淋水配水槽;
15 风机;
16 --电动机和减速机。
图2横流闭式塔示意图
4
6 --检修走道;
7 ---阀门;
8 喷淋水泵;
9 进风窗;
10 填料;
11——一间壁式换热器;
12 喷淋水喷头;
13 风机;
14 电动机和减速机。
图3 复合流闭式塔示意图
4.2产品标记
闭式塔按结构形式、名义冷却水流量、噪声等级、能效等级和本部分编号进行标记。
B □ - □ -□ -□ GB/T 7190.3—2019
I-------能效等级
-------噪声等级
-----------名义冷却水流量,m3 /h
--------------N :逆流式;H :横流式;F :复合流式
B :闭式
示例:名义冷却水流量100 m3∕h、噪声等级为U级,能效等级为1级的机械通风逆流闭式冷却塔标记为: BN-IOO-U 1 GB/T 7190.3—2019
5要求
5.1冷却性能
5.1.1标准工况
闭式塔的标准工况见表1。按其他工况进行设计时,应换算到标准工况,并在样本或产品说明书中 按标准工况标记冷却水流量。
表1标准工况
|
设计参数 |
标准工况 |
|
大气压力/kPa |
99.4 |
|
干球温度/C |
31.5 |
|
湿球温度/C |
28.0 |
|
进水温度/C |
37.0 |
|
出水温度/C |
32.0 |
5.1.2冷却能力
冷却能力应不小于95.0% O 強
5.2噪声
产品噪声分为I级、U级。标准工况下,噪声标准测点的声压级噪声指标应不超过表2的规定值O
表2标准测点的噪声指标
|
名义冷却水流量/(m3∕h) |
噪声指标/dB(Λ) | |
|
I级 |
U级 | |
|
8 |
59.0 |
64.0 |
|
15 |
61.0 |
66.0 |
|
30 |
63.5 |
68.5 |
|
名义冷却水流量/(m3∕h) |
噪声指标∕dB(Λ) | |
|
I级 |
口级 | |
|
60 |
65.0 |
70.0 |
|
80 |
65.5 |
70.5 |
|
100 |
66.0 |
71.0 |
|
150 |
66.5 |
71.5 |
|
200 |
67.0 |
72.0 |
|
300 |
68.0 |
73.0 |
|
400 |
69.0 |
74.0 |
|
500 |
70.0 |
75.0 |
|
注:介于两流量时,噪声指标按线性插值法确定。 | ||
5.3能效
能效分为1级、2级、3级、4级、5级,各级能效的能耗比应符合表3的规定。
表3能耗比指标 单位为千瓦时每立方米
|
能效等级 |
能效 | ||||
|
1级 |
2级 |
3级 |
4级 |
5级 | |
|
能耗比 |
≤0.11 |
≤0.13 |
≤0.15 |
≤0.20 |
≤0.25 |
5.4飘水率
闭式塔的飘水率应不大于O.OO5% O
5.5塔体材料
5.5.1复合材料件
5.5.1.1 外观
厚度均匀、边缘整齐,表面光洁平整、色泽均匀,应无裂纹、分层、气泡、毛刺、纤维裸露、纤维浸润不 良等缺陷,切割加工断面应加封树脂。
5.5.1.2 氧指数
有阻燃要求时,应不小于28% O
5.5.1.3力学性能
手糊成型制品和SMC模压制品弯曲强度应不小于147 MPa;拉挤型材制品由制造商进行结构设 计并确定材料等级和壁厚,非结构用拉挤型材应不低于GB/T 31539-2O15中的“M17级”;结构用拉挤 型材应不低于GB/T 31539—2015中的“M23级”。
5.5.2金属件
5.5.2.1 外观
平整,涂层均匀无漏涂、无损伤。
5.5.2.2浸锌层厚度
金属件(包括连接件)表面应作防锈、防腐处理或采用防锈、防腐材料。连续热镀锌钢板及钢带浸锌 层厚度应符合GB/T 2518的要求;碳钢加工件热浸镀锌层厚度应符合GB/T 13912的要求。
6试验方法
6.1冷却能力
冷却能力试验按附录A的规定,计算示例参见附录BO
6.2噪声
噪声试验按附录C的规定。
6.3能效
根据能耗比确定能效,能耗比试验按附录D的规定。
6.4飘水率
飘水率试验按附录E的规定。
6.5塔体材料
6.5.1复合材料件
6.5.1.1试样从产品上取样或随炉试样o
6.5.1.2外观采用目测方法o
6.5.1.3氧指数试验按GB/T 8924的规定。
6.5.1.4弯曲强度试验按GB/T 1449的规定,拉挤型材力学性能试验按GB/T 31539—2015的规定。
6 . 5 . 2 金属件
6.5.2.1外观采用目测方法o
6.5.2.2 连续热镀锌钢板及钢带浸锌层厚度按GB/T 2518的规定;碳钢加工件热浸镀锌层厚度按 GB/T 13912 的规定 o
7检验规则
7.1检验分类
产品检验分为出厂检验和型式检验O
7.2出厂检验
7.2.1检验项目
外观、复合材料件力学性能和金属件浸锌层厚度。
7.2.2检验方案
7.2.2.1外观应逐台进行检查。
7.2.2.2复合材料件力学性能、金属件浸锌层厚度按表4抽样。
表4抽样方案
|
批量范围/(件) |
取样数/件 |
判定数组 | |
|
AC |
Re | ||
|
2〜15 |
2 |
0 |
1 |
|
16 〜25 |
3 |
0 |
1 |
|
26 〜90 |
5 |
0 |
1 |
|
91〜15。 |
8 |
1 |
2 |
|
151〜280 |
13 |
1 |
2 |
|
281〜500 |
13 |
1 |
2 |
|
注:AC--接收数。 Re——拒收数。 | |||
7.2.3判定规则
7.2.3.1外观符合5.5.1.1、5.5.2.1规定,判该项合格。如不符合,允许修补一次;如修补后符合规定,判 该项合格,否则为不合格。
7.2.3.2复合材料件力学性能符合5.5.1.3的规定,判相应项为合格,否则为不合格。
7.2.3.3浸锌层厚度符合5.5.2.2的规定,判相应项为合格,否则为不合格。
7.2.3.4以上各项全部符合要求,判冷却塔出厂检验合格;否则为不合格。
7.3型式检验
7. 3. 1 检验项目
第5章的全部项目。
7.3.2检验条件
有下列情况之一时,应对冷却塔进行型式检验:
b) 主要原材料或工艺方法有较大改变时;
C)正常生产每满三年时;
d) 停产一年以上,恢复生产时;
e) 出厂检验结果与上次型式检验有较大差异时。
7.3.3判定规则
7.3.3.1冷却能力、噪声、能效、飘水率分别符合相应要求时为合格。如其中任何一项未符合要求,在不 更换零部件的前提下,允许调整一次,重做试验(冷却能力、噪声、能效、飘水率同时进行),若该项已符合 要求且另三项仍符合要求,则判该项合格,否则判该项不合格。
7.3.3.2复合材料件符合5.5.1、金属件符合5.5.2要求为合格,否则判该项不合格。
7.3.3.3以上每项指标均符合要求,判该塔合格。
8标志、包装、运输和贮存
8.1标志
在塔体适当部位安装铭牌,内容至少包括:
b) 制造厂名、生产日期及出厂编号等;
C)主要设计参数,包括塔体几何尺寸、湿球温度、进塔循环冷却水温、出塔水温、循环冷却水流量、 设计压力、风机和喷淋水泵电动机额定功率等。
8 . 2 包装
包装应牢固可靠,有安全起吊标志。间壁式换热器进出口应临时封闭,需要时用氮气充压保护。
8 . 3 运输
齿轮减速器不应倒放,塔体、风机叶片、间壁式换热器及填料等上面不应堆放重物。
8.4贮存
8.4.1齿轮减速器不应倒放,应室内存放。
8.4.2间壁换热器及风机应妥善保管,采取防止变形和防腐蚀措施。
8.4.3复合材料件、间壁式换热器和填料防止暴晒,其上不应堆压重物,存放处应干燥、防水、防火,无 腐蚀性介质。
8.5随机文件
随同产品应提供以下文件:
a) 样本或产品说明书:内容包括设计干球温度,湿球温度,大气压,进出塔水温,冷却水流量,风 量,风机和喷淋水泵电动机额定功率,压力损失,设计压力,标准点噪声,主要安装尺寸,基本尺 寸,基础载荷,安装,使用及维修说明;样本或产品说明书应提供根据热力测试资料计算的热力 性能曲线或数据,以供用户在非标准工况时确定闭式塔的有关参数;
b) 出厂合格证;
C)产品易损件明细表;
9其他
9.1原材料
所用的材料及部件应符合国家相关标准的技术要求,并经检验合格后方可使用。
9.2风机
9.2.1任何材质的风机叶片要求强度可靠,表面光洁,各截面过渡均匀、无裂纹、缺口、毛刺等缺陷。复 合材料风机叶片的表面,其可见气泡直径不大于3 mm,展向每IOO mm区域内气泡数不超过3个。
9.2.2风机应作静平衡试验,叶片平衡后应定位、编号。
9.3电动机
电动机防护等级不低于IP55。
9.4配水装置
配水装置要求喷洒均匀、不易堵塞,拆卸方便,配水池应加盖。
9.5淋水填料
淋水填料安装时应间隙均匀、顶面平整,无塌落和叠片现象。
9.6换热模块
9.6.1间壁式换热器内外表面应做清洁处理,确保干燥、清洁。
9.6.2弯管的圆度公差应满足JB/T 7658.5的相关要求。
9.6.3管子弯曲处的壁厚减薄量应满足JB/T 7658.5的相关要求,弯曲处不应有折皱、压痕等缺陷。
9.6.4碳钢换热管(片)及碳钢加工件应进行热浸锌处理,并符合GB/T 13912的要求。
9.6.5间壁式换热器应进行1.25倍设计压力的压力试验,未作特殊说明时,设计压力一般为O.98 MPa, 试验方法按GB/T 151的规定。
9.7结构设计
结构设计应保证闭式塔的运行安全,对有抗震要求的闭式塔,结构设计时应根据地震设防烈度进行 抗震计算。
9.8使用环境条件
闭式塔的选用和安装需要考虑周围构筑物通风和水质对散热效果的影响,噪声和羽雾对周围环境 的影响。
附录A
(规范性附录) 冷却能力试验方法
A.1范围
本方法适用于单台循环冷却水流量不大于500 m3∕h闭式塔的冷却能力测试及计算。
A.2原理
在实测条件下,闭式塔的循环冷却水流量与该塔运行曲线簇或数据表中获得的对应实测工况条件 下的设计循环冷却水流量之比,用百分比来表示。
A.3试验条件
A.3.1新闭式塔或运行一年以内。
A.3.2空气湿球温度应在10.0 °C〜31.0 °C,最好在夏季测试。
A.3.3应在环境风速小于4 m/s、阵风小于7 m/s、无雨的条件下测试。
A.3.4进闭式塔循环冷却水流量应为设计水流量的90%〜110% O
A.3.5进闭式塔循环冷却水温应为35.0 C〜39.0 C O
A.3.6喷淋水质总溶解固体不超过5 000 mg∕L,油、焦油或其他油脂性物质不超过10 mg/L,不含有 直径大于5 mm的固态杂质。
A.3.7风机的轴功率与设计值偏差在10%以内o
A.4仪器
A.4.1通风干湿球温度计,最小分度值不大于0.2 C,精度不低于0.5级o
A.4.2空盒气压表或其他气压计。
A.4.3毕托管、超声波流量计或其他流量测试仪器,精度不低于1.5% o
A.4.4棒式水银温度计或热电偶、铂电阻温度计,最小分度值不大于0.1 C,精度不低于0.2级o
A.4.5三相功率表和互感器,精度不低于1.5% o
A.4.6旋桨式风速仪、低速风表,精度不低于1.5% o
A.5试验步骤
A.5.1仪器安装布置应符合以下要求:
a) 干湿球温度计安装在距进风口外2m〜5m、距地面1.5 m处。温度计应避开阳光直射,所在 空间通风良好。
b) 大气压力计的测点布置同A.5.1a),但只设一个测点o也可选用附近气象站的相应参数o
C)进闭式塔循环冷却水流量的测点布置在进塔水管上,测点前后均需有5〜7倍管径的平直段。
d)进水温度的测点应靠近闭式塔的压力管内,在管道上应事先焊上装温度计的铜管,并内装少许
导热油,使传热均匀。
e) 出水温度的测点布置在出水管。
f) 喷淋水温度的测点布置在水泵入口处或管道上,横流塔也可布置在配水槽内;流量测点布置在 管道上。
g) 补充水水温测点布置在喷淋水补水管出口。
A.5.2系统稳定运行,每组测试数据间的允差范围应符合如下要求:
a) 进闭式塔空气湿球温度:+1.0 °C ;
b) 进闭式塔循环冷却水温:+1.0 C ;
C)进闭式塔循环冷却水流量:士5% ;
d) 进出闭式塔循环冷却水温降:士5% ;
e) 大气压:士8 kPa0
A.5.3在A.5.2允差范围内采集数据,数据采集时长不小于30 mm,记录的有效测试数据不少于5组O 主要试验参数及相应读数频率不低于声A.1要求o
表A.1主要试验参数及相应读数频率
|
序号 |
参数 |
读数频率/(次∕h) |
每次间隔∕mim |
|
1 |
进闭式塔空气干湿球温度及大气压 |
12 |
5 |
|
2 |
进闭式塔、出闭式塔循环冷却水温度 |
12 |
5 |
|
3 |
循环冷却水流量 |
12 |
5 |
|
4 |
喷淋水流量 |
12 |
5 |
|
5 |
喷淋水温度 |
12 |
5 |
|
6 |
补充水温度 |
12 |
5 |
A.6结果及计算
A.6.1测试数据的处理
取每组工况各参数有效测试数据的算术平均值作为该组工况的有效数据。
A.6.2冷却能力的计算
冷却能力按式(A.1)计算:
η =犽犙 × 100% ..............................( A.1 )
犽2犙d
η——冷却能力;
犽1——功率修正系数;
QI——实测循环冷却水流量,单位为立方米每小时(m3∕h);
犽2 ——大气压力修正系数;
Qd—— 根据实测气象参数、进闭式塔水温和进出闭式塔水温差,从制造商提供的运行曲线或数据 表中,查得或通过线性插值方式获得的设计循环冷却水流量,单位为立方米每小 时(m3∕h) O
A.6.3参数的计算
若实测的风机功率、大气压力和设计参数有偏差时,功率修正系数们按式(A.2)进行计算,大气压 力修正系数犽2按式(A.3)进行计算:
E 丄
们=(W;V ..............................(Z)
们——功率修正系数;
Wd —— 设计风机功率,单位为千瓦(kW);
WI —— 实测风机功率,单位为千瓦(kW) O
犽2 = 1 + 0.002 3狆S-Pl) ..............................( A.3 )
犽2 ——大气压力修正系数;
PS ——标准工况大气压力,单位为千帕(kPa);
Pi ——实测大气压力,单位为千帕(kPa) o
A.7试验报告
A.7.1闭式塔的冷却能力、噪声、能效、飘水率等指标相互关联,不宜就其中某项指标做单独测试并出 具测试报告。
A.7.2试验报告内容至少包括以下a)、b)及C)〜g)中的部分或全部:
b) 闭式塔关键参数,至少包括实测外形尺寸、名义循环冷却水流量、电动机额定功率及极数、风机 直径及叶片数量、喷淋水泵功率等;
C)试验任务、目的;
d) 闭式塔设计、运行的概况及有关示意图;
e) 方法、仪器及测点布置;
f) 试验记录整理、数据汇总;
g) 负责与参加试验的单位、人员、试验日期。
附录B
(资料性附录) 冷却能力计算示例
B.1闭式塔冷却能力计算流程图
闭式塔冷却能力的计算流程如图B.1所示O
图B.1闭式塔冷却能力计算流程图
B.2闭式塔冷却能力计算示例
B.2.1工况参数和制造商提供的设计数据表
某机械通风横流闭式塔标准设计工况及实测工况参数如表B.1所示,制造商提供的设计数据如表
B.2所示。
表B.1某横流闭式塔设计及实测工况参数
|
项目 |
设计工况 |
实测工况 |
|
大气压力∕kPa |
99.4 |
100.8 |
|
进塔空气干球温度∕C |
31.5 |
33.17 |
|
进塔空气湿球温度∕C |
28.0 |
25.5 |
|
进塔循环冷却水流量/(m3∕h) |
175.0 |
175.7 |
|
进塔循环冷却水温度/C |
37.0 |
36.87 |
|
出塔循环冷却水温度∕C |
32.0 |
30.62 |
|
风机功率∕kW |
15.0 |
14.61 |
表B.2制造商提供的设计数据
|
进闭式塔空气湿球温度∕C |
进出闭式塔水温差∕C |
进闭式塔水温对应的设计循环冷却水流量∕1m3∕h) | |
|
36 C |
37 C | ||
|
25 |
6 |
164.79 |
189.25 |
|
7 |
132.47 |
153.94 | |
|
26 |
6 |
171.27 |
196.98 |
|
7 |
137.35 |
159.72 | |
B.2.2计算对应测试工况下设计循环冷却水量
B.2.2.1从表B.1中获得实测进塔空气湿球温度为25.5 °C、进塔循环冷却水温度为36.87 °C和进出塔 循环冷却水温度差为6.25 C O
B.2.2.2用线性插值法,从表B.2中计算得到该塔对应B.2.2.1实测参数条件下的设计循环冷却水量 Qd = 180.9 m3∕h0
B.2.3计算风机功率修正系数
按式(A.2)计算犽 1 = (I ɪʒ ) 3 =1.01
∖14.61∕
B.2.4计算大气压力修正系数
按式(A.3)计算犽2 = 1 + 0.002 3X(99.4-100.8)=0.997
B.2.5计算冷却能力
按式(A.1)计算 η= (1.01X175.7)/(0.997X180.9) X100⅞ = 98.4⅞
即:该闭式塔的冷却能力η=98.4% O
附录C
(规范性附录)
噪声测定方法
C.1范围
本方法适用于单台循环冷却水流量不大于500 m3∕h闭式塔的噪声测定。
C.2试验条件 零
C.2.1噪声测定应与冷却能力、风机和喷淋水泵电动机输入有功功率测试同步进行。
C.2.2噪声测量值与背景噪声的差值修约到个位数后,其值大于或等于3 dB(A)小于10 dB(A)时,按 表C.1进行修正;其值小于3 dB(A)时,按HJ 706的规定处理。
C.2.3按表C.1进行修正后得到的噪声值应修约至个位数。
表C.1噪声修正值表 单位为分贝
|
噪声差值 |
3 |
4〜5 |
6〜9 |
≥10 |
|
修正值 |
-3 |
-2 |
-1 |
0 |
C.3仪器
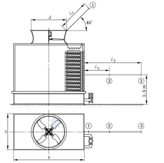
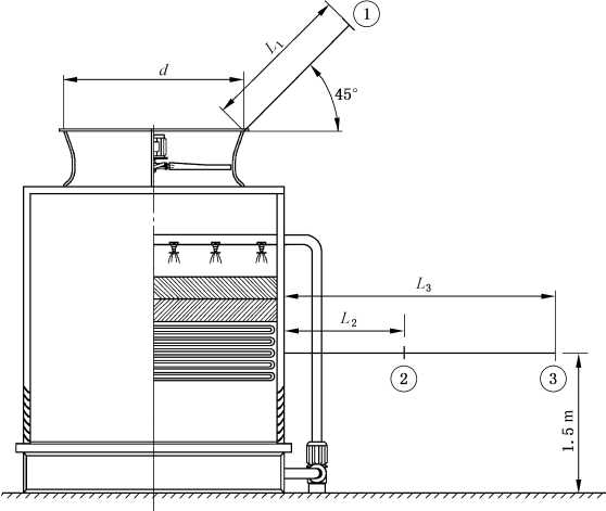
C.4测点布置
C.4.1逆流式闭式塔的测点布置如图C.1所示;横流式闭式塔的测点布置如图C.2所示;复合流式闭 式塔测点布置如图C.3所示。
C.4.2风机噪声测点①在出风口 45°方向,Li为出风口直径d,当出风口直径大于5 m时,犔取5 m。
C.4.3噪声标准测点②在塔进风口方向,距塔体底部基础面高1.5 m,边长为犪犫的矩形塔犔2 = 1.13槡犪犫,当犔2小于1.5 m时,取1.5 m。
C.4.4参考测点③在塔进风口方向,距塔体底部基础面高1.5 m,L3为16 m。
说明:
① 风机噪声测点;
② --噪声标准测点;
③ ——参考位置测点;
Ll 风机噪声测点距离;
L 2--噪声标准测点距离;
L3 参考位置测点距离。
图C.1逆流式闭式塔噪声测点布置图
说明:
① --风机噪声测点;
② ——噪声标准测点;
③ --参考位置测点;
Ll--风机噪声测点距离;
犔2 噪声标准测点距离;
L3--参考位置测点距离。
图C.2横流闭式塔噪声测点布置图
说明:
① ——风机噪声测点;
② ——噪声标准测点;
③ --参考位置测点;
Li 风机噪声测点距离;
L2 噪声标准测点距离;
犔3--参考位置测点距离。
图C.3复合流闭式塔噪声测点布置图
C.5结果及计算
C.5.1至少测两个方向,结果取其最大值。
C.5.2确定声级标准以噪声标准测点②的A声级为准。①、③两点作为对比用。
C.6试验报告
C.6.1闭式塔的冷却能力、噪声、能效、飘水率等指标相互关联,不宜就其中某项指标做单独测试并出 具测试报告。
C.6.2 试验报告内容至少包括以下a)、b)及C)〜g)项中的部分或全部:
b) 闭式塔关键参数,至少包括实测外形尺寸、名义循环冷却水流量、电动机额定功率及极数、风机
直径及叶片数量等; S
C)试验任务、目的;
d) 冷却塔设计、运行的概况及有关示意图;
e) 仪器及测点布置;
f) 试验记录整理、数据汇总;
g) 负责与参加试验的单位、人员、试验日期。
D.1范围
附录D
(规范性附录) 能耗比测试方法
本方法适用于单台循环冷却水流量不大于500 m3∕h闭式塔的能耗比测定O
D.2试验条件
D.2.1能耗比测试应与冷却能力测试同步进行。
D.2.2电动机工作电流不应大于其额定电流。
D.3仪器
D.3.1三相功率表和互感器,精度不低于1.5% O
D.3.2压差计或U形管,精度不低于0.5级。
D.4试验参数
D . 4 . 1
D . 4 . 2
D . 4 . 3
D . 4 . 4
按A.4.3的相应仪器测定循环冷却水流量o 风机电动机工作电流及输入有功功率。
喷淋水泵电动机电流及输入有功功率。
间壁式换热器进出口压力差。
D.5结果计算
D.5.1能耗比按式(D.1)计算:
狆1 +狆2 +狆3 α =----------
α --能耗比,单位为千瓦时每立方米(kW∙h∕m3);
P1 ——一风机电动机输入有功功率,单位为千瓦(kW);
狆2 ——一喷淋泵电动机输入有功功率,单位为千瓦(kW);
P3 ——间壁式换热器阻力损耗功率,单位为千瓦(kW);
——冷却能力,同式(A.1);
——标准工况名义流量,单位为立方米每小时(m3/h)。
间壁式换热器阻力损耗功率按式(D.2)计算:
PgQIX X 106
狆3 — 5^C
3.6
狆一—一间壁式换热器阻力损耗功率,单位为千瓦(kW);
P——循环冷却水密度,单位为千克每立方米(kg∕m3);
犵——重力加速度,取值9∙81m∕s2;
QI——实测循环冷却水流量,单位为立方米每小时(m∕h);
X ——进出管压差,单位为米水柱CmH2O) O
D.6试验报告
D.6.1闭式塔的冷却能力、噪声、能效、飘水率等指标相互关联,不宜就其中某项指标做单独测试并出 具测试报告。
D.6.2试验报告内容至少包括以下a)、b)及C)〜g)中的部分或全部:
a) 能耗比试验结果、能效等级;
b) 闭式塔关键参数,至少包括实测外形尺寸、名义循环冷却水流量、电动机额定功率及极数、风机 直径及叶片数量、填料片距等;
C)试验任务、目的;
d) 闭式塔设计、运行的概况及有关示意图;
e) 仪器及测点布置;
f) 试验记录整理、数据汇总;
g) 负责与参加试验的单位、人员、试验日期。
附录E (规范性附录)
飘水率测试方法
E.1范围
本方法适用于单台循环冷却水流量不大于500 m3∕h闭式塔的飘水率测试。
E.2试验条件仪表及设施
进闭式塔空气流量与进塔水流量应与热力性能试验时相近,差值在士5%之内。为了减少热力蒸发 量的影响,有条件时,最好让进闭式塔循环冷却水温尽量地低,可以不与冷却能力试验同步进行。
E.3仪器
E.3.1计量秒表。
E.3.2分析天平,感量0.001g。
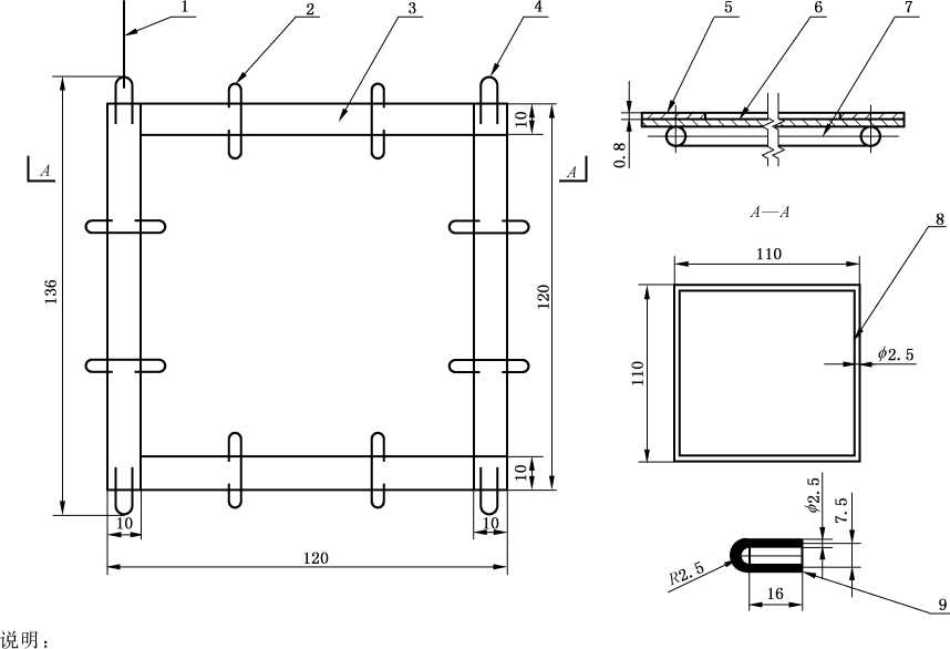
E.3.3干燥设备、塑料袋、120 mmX120 mm普通滤纸及将滤纸放到闭式塔风筒出口定点位置的固定 辅助设备,见图E.1。
单位为毫米
1 ---绳索;
2 曲别针,后卡上;
3 --侧板框;
7——钢丝框;
8 钢丝框示意图;
9——骑马钉(钢)。
4 ---骑马钉,敢2.5 mm,与侧板框焊;
5 --侧板框;
6 ---滤纸;
图E.1固定滤纸辅助设施示意图
E.4试验步骤
根据出风筒直径的大小,将闭式塔出风口顶划分成3〜5个等面积环,每个环中对称布置2个。将 滤纸干燥之后放入塑料袋,用天平称量,取出滤纸,用辅助设施将滤纸水平放到各测点,计时;视飘水情 况放置1 min〜5 min,快速取出,计时;放入原塑料袋中,用天平称量;得出先后两次称量的差值,精确 到 0.01 go
E.5试验结果
由滤纸的总增量、总面积、出风口面积,滤纸的放置时间计算出飘水总量Qn,再与进闭式塔水流量 比较,求出飘水率,按式(E.1)计算:
Pi =呉 × 100% ..............................( E.1 )
Qt
Pf 飘水率;
Qn——闭式塔出风口飘水量(质量流量),单位为千克每小时(kg∕h);
Qt--标准循环冷却水流量(质量流量),单位为千克每小时(kg∕h)。
E.6试验报告
E.6.1闭式塔的冷却能力、噪声、能效、飘水率等指标相互关联,不宜就其中某项指标做单独测试并出 具测试报告。
E.6.2试验报告内容至少包括以下a)、b)及C)^g)中的部分或全部:
b) 闭式塔关键参数,至少包括实测外形尺寸、名义循环冷却水流量、电动机额定功率及极数、风机 直径及叶片数量、填料片距等;
C)试验任务、目的;
d) 冷却塔设计、运行的概况及有关示意图;
e) 仪器及测点布置;
f) 试验记录整理、数据汇总;
g) 负责与参加试验的单位、人员、试验日期。