ICS 43.080.10
T 43
备案号:
JT/T 1178.1—2018
Safeiy SPeCifiCaiiOn for COmmerdaI Vehide for CargOS trakisportadon—∙∙ Part 1: GOOdS Vehide
2018-02-26 发布
2018-05-01 实施
.
附录C(规范性附录)驾驶室结构强度试验方法和生存空间检验用人体模型要求
JT/T 1178《营运货车安全技术条件》分为两部分:
—一第1部分:载货汽车;
——第2部分:牵引车辆与挂车。
本部分为JT/T 1178的第1部分。
本部分按照GB/T 1. 1—2009给出的规则起草。
本部分由交通运输部运输服务司提出。
本部分由全国道路运输标准化技术委员会(SAC/TC 521)归口。
本部分主要起草单位:交通运输部公路科学研究院、国家机动车质量监督检验中心(重庆)、北京中 公高远汽车试验有限公司、重庆车辆检测研究院有限公司、国家汽车质量监督检验中心(襄阳)、长春汽 车检测中心、济南汽车检测中心有限公司、陕西汽车集团有限责任公司、庆铃汽车股份有限公司、东风商 用车技术中心、一汽解放汽车有限公司、安徽江淮汽车集团股份有限公司、上汽依维柯红岩商用车有限 公司、四川现代汽车有限公司、中国重型汽车集团有限公司、北汽福田汽车股份有限公司、北京福田戴姆 勒汽车有限公司、泰斯福德(北京)科技发展有限公司、蒂龙科技发展(北京)有限公司。
本部分主要起草人:董金松、张浩、张红卫、宗成强、张学礼、区传金、李强、龙军、晋杰、郭松、王晓友、 刘洋、王建业、许金峰、孙建苍、孟国平、高玉广、张有彬、周维林、周光明、徐伟刚、徐伟、姚新艳、齐英杰、 刘善龙、黄超智、张长禄、王国杰、屈怀琨、万科、杨浩、牛超、高鹏、鲍伟东、张明、韩容、汪波、李超、何进、 宋元磊。
1范围
JT/T 1178的本部分规定了载货汽车的整车、制动系统、安全防护、载荷布置标识与系固点、报警与 提示等安全技术要求和试验方法。
本部分适用于Nl类、呢类和N3类的载货汽车,不适用于牵引货车和半挂牵引车。
2规范性引用文件
下列文件对于本文件的应用是必不可少的。凡是注日期的引用文件,仅注日期的版本适用于本文
件。凡是不注日期的引用文件,其最新版本(包括所有的修改单)适用于本文件。
GB/T 3730.1 汽车和挂车类型的术语和定义
GB/T 5922 汽车和挂车气压制动装置压力测试连接器技术要求
GB/T 6323-2014汽车操纵稳定性试验方法
GB 7258
GB/T 8170
GB 11551
GB 11567
GB/T 12534
GB 12676
GB/T 13594
GB/T 14172
CB/T 15089
CB/T 17619
GB/T 18655
GB 19239
GB/T 22309
GB/T 22311
GB 26511
GB 26512—2011
GB 28373—2012
GB 29753
GB/T 33577
JT/T 230
JT/T 719—2016
JT/T 794
JT/T 882—2014
机动车运行安全技术条件
数值修约规则与极限数值的表示和判定
汽车正面碰撞的乘员保护
汽车及挂车侧面和后下部防护要求
汽车道路试验方法通则
商用车辆和挂车制动系统技术要求及试验方法
机动车和挂车防抱制动性能和试验方法
汽车静侧翻稳定性台架试验方法
机动车辆及挂车分类
机动车电子电器组件的电磁辐射抗扰性限值和测量方法
车辆、船和内燃机无线电骚扰特性用于保护车载接收机的限值和测量 方法
燃气汽车专用装置的安装要求
道路车辆制动衬片盘式制动块总成和鼓式制动蹄总成剪切强度试验方法
道路车辆制动衬片压缩应变试验方法
商用车前下部防护要求
商用车驾驶室乘员保护
N类和O类罐式车辆侧倾稳定性
道路运输食品与生物制品冷藏车安全要求及试验方法
智能运输系统 车辆前向碰撞预警系统 性能要求和测试规程
汽车导静电橡胶拖地带
营运货车燃料消耗量限值及测量方法
道路运输车辆卫星定位系统车载终端技术要求
道路甩挂运输货物装载与栓固技术要求
JT/T 883 营运车辆行驶危险预警系统技术要求和试验方法
JT/T 884 营运车辆抗侧翻稳定性试验方法 稳态圆周试验
JT/T 1046 道路运输车辆油箱及液体燃料运输罐体阻隔防爆安全技术要求
JT/T
1094—2016
营运客车安全技术条件
QC/T 480 汽车操纵稳定性指标限值与评价方法
3术语和定义
GB/T 3730.1∖GB∕T 6323、GB/T 15089和GB 26512界定的以及下列术语和定义适用于本文件。
3.1
营运货车 CoKnnIerCiaI vehicle for Car^O^tli⅛Wspbrta⅜io∏ 用于营业性货物运输的汽车、耳潔牽割*、卒团鮮和2‰.
注:改写JT/T 719-2016,定义3火斎 靜麥Eɪ馈¾
4.1载货汽车(电动车嫉处箱勺比功于或等于6.0kW∕to ⅝ ¾
4.2载货汽车(罐式汽章除紗按照GlO4172规定的试验方法进行前倾 定角应符合以下要求:f f
f∙ , ♦、•.・:
4整车
性台架试验,其侧倾稳
应大星
——在满载、静态善件^f向左侧和斜的侧倾稳定角均应大于疇嚙 装载情况下處GB ∣8373-201Oe章规定进行模拟计算。 "
4.3载货汽车按照G⅜T ∣23-2014卷琪莓蝦 大于或等于0。/(蛆獻±— 4.4载货汽车按照GB空6酔3-2014第5章的规定进發 峰值应小于QC/T 480为施标桩间距和基准车速的下限嶙 4.5载货汽车按照.JT/T懲4鼬的方法进行满载嚙 速度达到0∙4g时车辆不应盪琵喊臍侧滑。 蠣
4.6总质最大于或等于12(蒲格映園汽车,应安装道路将貓车宰 输车辆卫星定位系统车载终端时噸成麴皿•畋规農 危 4.7总质豈大于或等于12 OOOkg 车叢美爭旷、L-.........
(ESC)O ESC的性能应符合JT/T 1094习脸嶼盛鏗應了电磁兼容性应符合GB/T 18655第3级及 GB/T 17619 的规定。
4.8总质量大于或等干12 OOokg且最高车速大于90kπ√h的非双转向轴载货汽车,所有转向轮应安装 爆胎应急安全装置,并在驾驶室易见位置标示。爆胎应急安全装置的性能要求和试验方法应符合附录 A的规定。
4.9载货汽车在空载状态下按照附录B规定的试验方法进行试验,转弯通道最大宽度应小于或等于
5. OmO
4.10冷藏车应安装温度监控装置,车辆及其温度监控装置、制冷设备的性能应符合GB 29753及相关 标准要求。
在空载、静态爹件遗向左侧和苟观姬
35。;
;3。,也可在企业规定的
V-
,不足转向度应
《式验,其平均横摆角速度
陶新侧翻嵌愕駄验,车辆质心处的向心加
轟定位系统车载终端。道路运
km/h舅输汽车,应安装电子稳定性控制系统
5制动系统
5.1载货汽车的气压制动系统应安装具备保持压缩空气干燥、油水分离功能的装置。
5.2载货汽车所有的行车制动器应具备制动间隙自动调整功能。
5.3载货汽车制动系统的储气筒和制动气室应安装气压制动装置压力测试连接器C压力测试连接器 的性能应符合GB/T 5922的规定。
5.4载货汽车应安装防抱死制动装置,并配备防抱制动装置失效时用于报警的信号装置。防抱制动 装置的性能应符合GB/T 13594规定,电磁兼容性应符合GB/T )8655第3级及GB/T 17619的规定。
5.5载货汽车按照GB 12676规定的方法进行试验,气压制动系统响应时间应小于或等于0.6SO
5.6 .载货汽车满载,在附着系数小于或等于0.5,车道中心线半径150m、宽3.7m的平坦圆弧车道上, 以50krn∕h的初始车速进行全力制动的过程中,车辆应保持在车道内。
5.7载货汽车鼓式制动蹄总成或盘式制动块总成的制动衬片性能应符合以下要求:
a)按GB/T 22309进行试验,鼓式制动蹄总成和盘式制动块总成的最小剪切强度大于或等于
2. 5MPa;
按GB/T 22311进行试验,鼓式制动蹄,誕常温压缩量小于或等于2% ,2(M)CC时的压缩量小于 或等于4% ; 療萨
按GB/T 22311进行试验須戒制爵觀殮二T'達二二丁 —二二二二:7 等于 5%。 璀LWtpe*β∙3¾fch ɪ
5.8总质量大于或等于12城0締货汽车采用气压制动时铀[动鞭储气筒的额定工作气压应大 于或等于IOOOkPa。/夕 ¾ \
5.9总质量大于或等于為卷J二姦…
器。盘式制动器的衬片虐要產换时,熾
GB 12676的规定。
5.10总质量大于或修
(AEBS)O
i报警,报警装置应符合
OOOkg 且
的载货汽
5.11总质量大于18 6安全防护
6.1 N2类和N3类载货囈车廬安装侧面防护和后下部陽缨置,防搪 规定。 ɪ ‰
6.2总质量大于7 50Okg塚嘗羸车应安装前下就掰防装置, 规定。
6.3安装起重尾板的载货汽卷
性能应符合GB 11567的
%盘的性能应符合GB 26511的
车辆后侧。
6.4 ;
持连接,允许固定驾驶室的部件产生变形和损坏;用附录C规定的人体模型检测生存空间符合以下要求:
当座椅处于中间位置时,人体模型不应与车辆邵氏硬度大于或等于50度的非弹性部件发生 接触;
—一不借助于任何工具,用一个小于IoON的力即可将非弹性部件与人体模型分开。
6.5总质量大于或等于12 00Okga最高车速大于90k∏√h的载货汽车,使用单胎的车轮应安装轮胎气 压监测系统。
6.6燃气汽车的气瓶安装位置与强度应符合GB 19239等相关标准的规定。载货汽车燃料系统的安 全防护应符合GB 7258的规定。
6.7汽油载货汽车油箱应采用阻隔防爆技术,阻隔防爆技术应符合JT/T 1046的规定。
6.8燃气汽车应安装汽车导静电橡胶拖地带,汽车导静电橡胶拖地带的性能应符合JT/T 230的规定。
7载荷布置标识与系固点
7.1载货汽车(罐式车、自卸车除外)应在车辆易见位置设置能永久保持的载荷布置标识,载荷布置标 识曲线参照附录D绘制,标识尺寸不应小于16Omm Xloomm。
7. 2载荷布置标识应以车辆简图(不含上装结构)为背景,载荷分布曲线以货物质心位置为横坐标、以 最大允许装载质量为纵坐标,且应满足以下列约束条件:
a) 不超出前轴最大允许轴荷限值;
b) 不超出后轴(组)最大允许轴荷限值;
C)不超出车辆最大设计总质量;
d) 转向轴的最小载荷满足车辆设计要求;
e) 驱动轴(组)的最小载荷满足车辆设计要求。
7.3 &类和吨类载货汽车(罐式车、自卸车除外)货箱系固点的数量、安装位置与强度应分别符合附 录E和JT/T 882—2014附录C的规定。
8报警与提示
8.1总质量大于18 OOOkg且最高车速大于90km∕h的载货汽车,应具备车道偏离报警功能和车辆前向 碰撞预警功能,车道偏离报警功能应符合JT/T 883的规定,车辆前向碰撞预警功能应符合GB/T 33577 的规定。
8.2燃气汽车应安装气体泄漏报警装置,所有管路接头处均不应岀现漏气现象。
9标准实施的过渡期
9.1 4. 8、5. 8、6.7和7.3的规定自本标准实施之日起第13个月开始对新生产车型实施。
9.2 6.4、6.5和8.1的规定自本标准实施之日起第25个月开始对新生产车型实施。
9.3 4.7和5.10的规定自本标准实施之日起第37个月开始对新生产车型实施。
附录A
(规范性附录)
汽车爆胎应急安全装置性能要求和试验方法
A.1性能要求
A.1.1爆胎后转向性能
车辆爆胎后转向性能应符合以下规定:
a) 按A.2.2. 1的试验方法,车辆直线行驶过程中转向轴一侧轮胎发生爆胎时,汽车应能通过操 纵转向盘维持在爆胎前的预定轨迹上行驶,行驶过程中作用于转向盘外沿上的切向力增量不 大于50N;
b) 按A.2.2.2的试验方法,车辆弯道行驶过程中转向轴一侧轮胎发生爆胎时,汽车应能通过操 纵转向盘维持在爆胎前的预定轨迹行驶,行驶过程中作用于转向盘外沿上的切向力增量不 大于50N;
C)按A.2.2.3的试验方法,爆胎后车辆以规定的速度行驶,能够有效规避前方障碍物,且转向操 纵力不大于245N。
A.1.2爆胎后制动性能
按A.2.3的试验方法,车辆转向轴一侧轮胎发牛爆胎后,其制动距离及制动稳定性应符合表A. 1 的规定。
表A. 1制动距离及制动稳定性要求
|
制动项 |
制动初速度 (km/h) |
发动机接合的0型制动 试验制动距离要求(m) |
制动稳定性要求 |
|
直线制动 |
60 --— ■ ■ ■ ■ ■ ■ ■ ■ M ■ ∙ ∙≡WM0 |
≤40 |
车辆不超出3.7m宽度的试验通道边缘线 |
|
弯道制动 |
50 |
≤30 |
车辆不超岀3.7m宽度的试验通道边缘线 |
A.1.3爆胎后汽车续行距离
车辆转向轴一侧轮胎发生爆胎后,汽车爆胎应急安全装置应能维持车辆可控行驶不小TLokmO
A.2试验方法
A. 2.1试验条件和试验车辆的准备
装有爆胎应急安全装置的载货汽车,其试验条件和试验车辆的准备工作应符合GB/T 12534的 规定。
A.2.2转向性能试验
A.2.2.1试验车辆沿直线以60kn√h的车速匀速行驶,模拟转向轴一侧轮胎发生爆胎,保持试验车辆 继续维持直线行驶,用转向盘测力计测量车辆爆胎前后维持直线行驶过程中施加于转向盘外缘的最大 切向力值,并计算爆胎后最大切向力的增量。
A.2.2.2试验车辆沿半径为15Om的弯道以50kn√h的车速等速行驶,模拟转向轴一侧轮胎发生爆 胎,用转向盘测力计测量车辆爆胎前后维持弯道行驶过程中施加于转向盘外缘的最大切向力值,并计算 爆胎后最大切向力的增量。
A.2.2.3爆胎后驾驶试验车辆以50km∕h的车速绕桩行驶,测量行驶过程中施加于转向盘外缘的切向 力,并计算转向盘转向力峰值的平均值。试验过程中车辆不得碰倒标桩,标桩按图A.1布置,标桩间距 应符合表A. 2的要求。
汽车行驶轨迹
A.2.3制动性能
备以60km∕l飆J始车速(偏差应在规定值的声2%寥:内),按GB 12676的试验 tθ型制动萩董,测量并记录车速、制动距离制车礴停止后与试验通道边缘线
A.2.3.1试验车彌 方法进行一次发动祿 的距离等参数。I I 廨嗪,
A.2.3.2试验车囑啼以沿半径身窗务物彎道理醵n/h的车尊匀囂行驶(偏差应在规定值的 士2%之内),在此车逸f临一次发动机接合的。型制麒验,测量*记*车速、制动距离和车辆停止 后与试验通道边缘线頑草离'蘿参数。
C ⅜
A.2.4爆胎后续行能力瞥、/
A.2.4.1装有爆胎应急安举裝置南诚驗车辆,按照A. &樹 A多富的方法进行试验,测量并记录试验 车辆自轮胎发生爆胎后的正常彳飄!程/秋
A. 2.4.2行驶里程内可开展其他金、.写;八二二二犹二二二o
附录B
(规范性附录) 车辆直角弯道通过性试验方法
B.1试验道路
试验路面应为平坦、干燥、整洁的铺装路面。试验规定的路线由三部分组成:直线驶入路段、半径为 12.5m的90。圆弧路段,以及直线驶岀路段。两直线路段分别在与圆弧路段的交点处与圆弧相切,如图 B. 1所示。
B.2试验方法
B.2.1车辆空载、以直线顫爾F试验路面上。沿车辆最位向地 定路线中直线驶入路段。黑¾
B.2.2车辆起步,以不超过
B.2.3转弯结束后,试验车辆毒沿
做尊影,该投影线为试验规
?车速由直线行驶甄證到图B. 1>⅛ 險&段继续行驶一段距离,软¾B 最大宽度。 ¾ J
B.2.4在驶入、转弯和驶出过程中/^^$毓殉瓏晰帝上询褻点与规定路线一致,轨迹偏差不 应超过 50mm O
B.2.5记录车辆内侧在地面投影的运动轨迹。
角弯道
B.2.6车辆应按上述过程,沿顺肘针和逆时针行驶方向各进行一次试验。
B.3试验结果
测量车辆在试验过程中的转弯通道最大宽度,试验结果取顺时针和逆时针两次测试结果的平均值, 按GB/T 8170修约到小数点后一位,单位为米(m)。
附录C
(规范性附录) 驾驶室结构强度试验方法和生存空间检验用人体模型要求
C. 1试验荽求
C.1.1驾驶室结构强度试验方法包括驾驶室正面撞击试验(试验A)、驾驶室双A柱撞击试验(试验 B)、驾驶室顶部强度试验(试验C)和驾驶室后围强度试验(试验D),可选择1个~4个驾驶室进行 试验。
C.1.2 Nl类和最大设计总质量不超过7 500kg的N2类车辆应进行试验A、试验C和试验Do
C.1.3 N3类和最大设计总质量超过7 50Okg的N2类车辆应进行试验A、试验B、试验C和试验DO 0.1.4试验A仅适用于平头车。
C.1.5试验C仅适用于驾驶室和车辆底盘通过机构连接且驾驶室与货箱相互独立的车辆。
C.1.6驾驶室内每个座位均应进行生存空间的检验。
C.1.7当车型符合GB 11551的规定时,视为通过试验A。
C.1.8试验后进行驾驶室生存空间检査时,可使用以下人体模型或替代品:
a) C.4所规定的人体模型;
b) 解体C.4所规定的人体模型,调整座椅位置,放入驾驶室后再组装人体模型,并使其H点与座 椅&点重合,最后将座椅前移至中间位置以评定生存空间;
C) 50%Hybrid II 或者 50%Hybrid III 假人。
C.2试验方法
C.2.1试验准备
C.2.1.1试验前,驾驶室的车门应关闭但不锁止。
C.2.1.2对于试验A,车辆应安装发动机或安装质量、尺寸和安装装置与发动机相当的模型。
C.2.1.3驾驶室应安装转向机构、转向盘、仪表板以及驾驶员和乘员座椅。转向盘和座椅位置应调整 到制造厂所规定的中间位置。
C.2.1.4车辆或车架应按照C.3所述的方式进行固定,驾驶室固定按以下要求进行:
a) 试验A,驾驶室应安装在车辆上;
b) 试验B、试验C和试验D,制造厂可以选择驾驶室安装在车辆上或者安装在独立车架上。
C.2.2正面撞击试验(试验A)
C.2.2.1撞击器应为钢制且质量均匀分布。撞击器质量大于或等于1500kg;撞击器的撞击面应为平 整的矩形,棱边的圆角半径为(10 ±5)mnι,如图C. 1所示。
C. 2.2.2撞击器总成应为刚性结构,撞击器刚性地固定在两根自由悬吊的摆臂上。
C. 2.2.3撞击器悬吊的位置应使其在垂直位置时满足下列要求:
a) 撞击器的撞击面与车辆的最前部相接触;
b) 撞击器质心(G)应低于驾驶员座椅R点50°"mm,且应位于车辆纵向中心平面上,如图C. 1 所示;
C)撞击器质心应位于车辆纵向中心平面上。
|
符 号 - -一 一 —-一 一 —— ----——一一 一- _ _ — _ |
尺 寸 ____ _______ __■ • - —一 - ■ --- . M .一,.”∙ -∙* |
|
/a |
Nl 000 |
|
如 |
2 500 |
|
800 | |
|
LA |
N3 500 |
|
C, |
5Oo+5 |
单位为毫米
说明:
H点一通常为臀部点或臀部较接点;
R点一制造厂设定的设计H点位置,特别指定为R点;
Λ——摆臂间距;
bλ——矩形撞击器长度;
IiA—矩形撞击器高度;
La——悬吊轴到撞击器的几何中心;
CA一 一撞击器质心与驾驶员座椅&点的距离。
图C. 1正面撞击试验(试验A)(调整左右撞击器的水平高度)
C.2.2.4撞击器应沿平行于车辆的纵向中心平面,水平撞击驾驶室前部C撞击能量要求如下:
a) Nl类和最大设计总质量不大于7 50Okg的N?类车辆,撞击能量为29.4kJ;
b) N3类和最大设计总质量大于7 500kg的N2类车辆,撞击能量为55kJo
C.2.3双A柱撞击试验(试验B)
C.2.3.1撞击器应为钢制且质量均匀分布的圆柱体。撞击器质量不小于1 OOOkg,棱边的圆角半径不 小于1.5mm,撞击器如图C. 2所示。
单位为毫米

摆臀间距
悬吊轴到撞击器的丿E
撞击器
rVi-ς⅛v¾'⅛ζi->k⅛
L MmC・2正面A柱膏鼻验B"i' /
撞击器总成应为矗结羸击器刚性地固定在警摆臂上,如图C. 2所示。
魏呻薛面;
撞击器悬吊的位置应舰症童囊繼尊时满就或 撞击器的撞击面与车辆的都相⅛F*κ 撞击器纵向中心线应水平 f
M3 500
600 ±50
C.2.3.2
C.2.3.3
a)
b)
C)撞击器质心应位于驾驶室前风窗上、下框架中间,且位于车辆纵向中心平面上;
d)撞击器长度应在车辆宽度范围内均匀分布,且完全覆盖两个A柱。
C.2.3.4撞击器应以从前向后的方向撞击驾驶室,撞击方向应为水平方向且平行于车辆的纵向中心
平面。撞击能量为29.4kJ°
C.2.4顶部强度试验(试验C)
C.2.4.1不同类型车辆应按照下列要求试验:
a) 最大设计总质量大于7 500kg的N2类车辆和所有的N3类车辆,应进行动态预加载试验(撞 击器位置如图C. 3的PI)和顶部静压试验(撞击器位置如图C.3的P2),且应用同一个驾 驶室完成;
b) 最大设计总质量不大于7 50Okg的虬类车辆和所有的Nl类车辆,只进行顶部静压试验。
C.2.4.2应按照下列要求进笏动都加载试验: T
蕙击器质量不小于1 50Ok
Z足够大(一般为2 500mι⅛ 2 :
a) ɪɔ)
C)
Inrn:
撞击器应为钢制且贋量
撞击器的撞击面
于撞击位置时,
两根自由悬吊6≡≡ι,摆臂间IW 几何中心)不小凱3
鍋撞击器涯
mm),以确保撞击器位
畧撞击器
成,摆臂的长奪(魇)(从悬吊轴到摆锤的
隸乍暧?摆锤应刚性地固定在
d)
撞击时刻,撞击黯位盗应满足下
1)
2)
撞击器的瘻击薩与驾驶室纵両帀心平面的夹角(QC)为20。;養 撞击器撞理寸,縄驶室可倾才 驶室不能¾⅛Mlo° ,驾驶室孫瘧
雌器照壞击面倾斜20駕如茉撞击器为摆锤,则驾
撞击器的撞崽面厲匯盖驾驶室侧顶部全部边f
撞击器纵向∙⅛、魄水平且与驾驶室纵行;/ k
击方向垂直于撞击电謳盛纵向中心线。在满足撞
3)
4)
撞击器撞击驾驶室
击位置要求的情况下嗑T移細击器或者驾驶室来完成 试鱒撞击能量为17.6kJ°
加载压板应为钢制且质量 身癱痢禰羸巨形平面,加载时应确保驾驶室
与加载压板边缘不发生接触;
加载设备与其支撑结构之间应具有W线専胃骚,加载过程中允许驾驶室顶部向非撞击侧的
C.2.4.3顶部静压试验应符合设 a)
b)
横向移动;
C)加载时,加载压板位置应满足以下要求:
1) 加载压板平行于车架X-Y平面(图C.3);
2) 加载压板运动方向平行于车架垂直轴线;
3) 加载压板覆盖整个驾驶室车顶部;
4) 加载力为车辆前部的一个轴或多个轴的最大轴荷的静载荷,最大为98kNo
C.2.5后围强度试验(试验D)
通过置于车架上的不小于整个后围的刚性壁障,施加在车架以上部分的驾驶室后围上。刚性壁障 应垂直于车辆的纵向中心轴线,且平行于中心轴线移动,如图C. 4所示。加载力为车辆最大允许装载 质量每1 OOokg施加1.96kN的静载荷。
图C.4后围强度试验(试验D)
C.3车辆在试验台上的固定
C.3.1正面撞击试验(试验A)
驾驶室应安装在车辆上,并按下述方法将车辆固定(图C∙5):
a) 固定用链条或钢丝绳应为钢制,并且至少能承受IOOOOkg的拉力;
b) 车架的纵梁应安放在横跨车架全宽的枕木垫架上,枕木垫架的长度不小于150Inmo枕木垫架 的前边缘不应位于驾驶室最后点的前面,也不应位于轴距中点的后面。车架应处于车辆满载 时的状态;
C)车架纵向固定,应将链条或钢丝绳(以下统称钢丝绳)A系固在车架前端,以限制车架后移。 系固点应对称于车架纵向中心线,两个系固点的距离不小于60OmmO钢丝绳A张紧后向下与 水平线的夹角不应大于25。,在水平面上的投影与车辆的纵向轴线的夹角不大于10%钢丝绳 可互相交叉;
d) 车架横向固定,应用钢丝绳B对称地拴系在车架纵向中心线的两侧,以限制车架横向移动。 军架上的拴系点距车辆前端不小于3m,且不大于5m。钢丝绳B张紧后向下与水平线的夹角 不大于20。,在水平面上的投影与车辆的纵向轴线的夹角不大于45。,且不小于25。;
e) 钢丝绳的张紧力和后部固定应满足以下要求:
1) 首先将钢丝绳C用1 OoON的力张紧,然后所有钢丝绳A和钢丝绳B张紧,使钢丝绳C的 张紧力不小于10 000N;
2) 钢丝绳C与水平线的夹角不大于15°;
3) 在车架与地面之间于D点施加不小于500N的垂直拉力;
f) 根据制造厂的要求,可以将驾驶室安装在专用台架上进行试验,但应证明这种安装方式和在 车辆上的安装方式是等效的。
|
符号 |
____含 义 |
尺寸 |
|
车架纵向固定时,链条或钢丝绳A张紧后在水平面上的投影与车辆的纵向轴线的 |
≤10 | |
|
θ2 |
夹角(。) |
≤10 |
|
务 |
车架横向固定时,链条或钢丝绳B张紧后在水平面上的投影与车辆的纵向轴线的 夹角(。)____________________________________________ |
25≤∣93≤45 |
|
y |
车架后部固定时,链条或钢丝绳C与水平线的夹角(。)______ |
≤15 |
|
___β__ |
车架横向固定时,链条或钢丝绳B 野后向下与水平线的夹角(。) |
≤20 |
|
a |
车架纵向固定时,链条或钢丝绳A张紧后向下与水平线的夹角(。) |
W 25 |
|
n |
枕木垫架的长度(mm) |
N150 |
|
两个系固点的距离(mm)_____________________________ |
≥600 |
说明:
A~ 一一钢丝绳或链条;
E——枕木。
图C.5正面撞击试验(驾驶室安装在车辆上)
C.3.2双A柱撞击试验(试验B)
C.3.2.1驾驶室安装在车辆上(图C.5)
应挂挡拉驻车制动器,并用楔块楔住前轮,确保在试验中车辆无明显的移动。
C.3.2.2驾驶室安装在车架上
应保证在试验中车架无明显的移动。
C.3.3顶部强度试验(试验C)
C.3.3.1驾驶室安装在车辆上
应挂挡拉驻车制动器,并用楔块楔住前轮,确保在试验中车辆无明显的移动。悬架相关(弹簧、轮 胎等)各部件的变形通过应用刚体构件的方式予以消除。
C.3.3.2驾驶室安装在车架上
应保证在试验中车架无明显的移动。
C.3.4后围强度试验(试验D)
C.3.4.1驾驶室安装在车辆上
应挂挡拉驻车制动器,并用楔块楔住前轮,确保在试验中车辆无明显的移动。
C.3.4.2驾驶室安装在车架上
应保证在试验中车架无明显的移动。
C.4用于检验生存空间用人体模型以萨

图C∙6检验生存空间用人体模型
符号
AA
头宽(mm)
AB
头和颈的总髙(mm
M
表C. 1人体模型各部位尺寸
头顶至肩关节的距离(mm)
下腿侧面宽度(mm)
C∙5 H点确定
尺厂]
符号
尺寸
153
244
359
髄骨宽(mm)
172
胸宽(mm)
305
头顶至颌的高度(Imn)
221
94
106
前臂厚度(mm)
d
臀至肩顶的距离(
620
肘靠高度(mm)
210
膝高(mm)
膝关节至地面髙度(mm)
胸厚(mm)
大腿宽(mm)
臀背至膝的距离(
490
266
呢驚节至地面高度(mm)
殮211
关维表面高度(坐时的)(mm)
H点的距离(mm)' 癌类节奎膝关节的距离(mm)
禳部例而倾角(。)
g
h k∙<⅞
546
肘至指尖的距
m
躯干垂直中心线至头 后部的距离(mm) 肩关节至肘关节的距离(mm)
冃適直关乘坐位置'魄
足长(嬢)
臀至头顶磨
102
283
505
165
565
819
426
89
20
45
应按照GB 265"20版附录B的:
C.6三维坐标系
¾ 应按照GB 26512 11廠录E的规定确定三
C.7
应按照 GB 26512—2011 Pf
附录D (资料性附录) 载荷布置标识曲线绘制
D.1载荷布置标识曲线构成
D.1.1载荷布置标识曲线是以货物质心位置为变量(横坐标)计算最大允许装载质量(纵坐标)的 曲线。
D.1.2载荷布置标识曲线可由3条~5条线段构成。
D.1.3载荷布置标识曲线下方区域即为实际装载质量与货物总质心位置应坐落的区域。
D.2曲线计算
D.2.1力与物理符号
本附录中计算曲线所用到的符号及对应的物理量和单位见表D. 1,相关标识如图D. 1所示。 注:示例中的车辆货箱有效货物装载长度为7.25m,最大允许装载质匿为9 000kg。
表D.1参数定义
|
符号 |
含 义 |
单位 |
|
车辆整备质量 |
kg | |
|
以我 |
车辆装载状态下,前轴轴荷 |
kg |
|
Hq |
车辆空载状态下,后轴(组)轴荷 |
kg |
|
g |
车辆装载状态下,后轴(组)轴荷 |
kg |
|
R |
前后轴间距离 |
m |
|
為 |
车辆空载时,车辆质心位置 |
m |
|
5 |
车辆前轴到货箱前壁内侧的距离 |
m |
|
S侦 |
为保证操纵稳定性,转向轴最低载荷 |
% |
|
ST |
.为保证牵引力,驱动轴最低载荷 |
% |
|
X |
变量,货物质心位置,以货箱前壁内侧为起始零点 |
m |
|
在丸位置,最大允许装载质量 |
kg | |
|
f |
在曲线“a”中式位置,最大允许装载质量 |
kg |
|
Znlm |
在曲线“b”中霧位置,最大允许装载质量 |
kg |
|
mLxA |
在曲线“d”中%位置,最大允许装载质量 |
kg |
|
ZnLfe |
在曲线“e”中%位置,最大允许装载质量 |
kg |
D∙2.2空载状态下车•辆质心位置
图D. 1中空载状态下的车辆质心位置(根据式(D.1)计算:
HA 空∙ R
(D.1)
ZnF
图。.1车辆相关参数
D.2.3前轴最大承载限值曲线“a”
图D.2中的前轴最大承载限值曲线“a”根据式(D.2)计算:
载荷质心到货箱前壁内侧距髙(m)
(D.2)
图D.2前轴最大承载限值曲线'W示意图
D.2.4后轴(组)最大承载限值曲线“成
图D.3中的后轴(组)最大承载限值曲线%”根据式(D. 3)计算:
(D.3)
薮荷质心到货箱前壁内侧距离(m)
图D∙3后轴(组)最大承载限值曲线“b”示意图
D∙2∙5最大允许装载质量限值曲线“武
'与曲线"b”的直线,其纵坐标值为车辆
最大允许装载质量。
I
D.2.6 转向轴最小七 图D.5中的转向电相曲线“d”根据式
X・
(D.4)
载荷质心到货箱前壁内
图玖5转向轴最小载荷曲线“d”示意图
D.2.7驱动轴最小载荷曲线%”
驱动轴最小载荷曲线“e”根据式(D∙5)计算,示例车型的载荷布置标识如图D∙ 6所示。
/nF ∙ (S7∙R -")
S +/ - ST ∙ R -
(D.5)
载荷质心到货箱前壁内侧距离(m)
10987654321
7
6
5
4
3
2
D6某车型的载荷布置标识示意图
附录E
(规范性附录)
车辆系固点的数量、安装位置和强度要求
E.1系固点的数量与安装位置要求
E.1.1 车辆水平承载面上的系固点
E.1.1.1系固点的数量应为偶数,且左右对称,应为以下计算结果的最大值:
a) 有效货物装载长度要求(E.1.1.2);
b) 系固点之间的最大距离要求(E. 1.1.3);
C)系固点承载力要求(E.1.1.4)o
E.1.1.2有效货物装载长度不超过2 20Omm的车辆,应至少有4个系固点,每侧至少2个;有效货物 装载长度超过2 2(X)mm的车辆,应至少有6个系固点,每侧至少3个。
E.1.1.3系固点的布置应满足以下要求:
a) 除了车辆后轴(组)上方的区域外,单侧两个相邻系固点之间的距离不大于1 200mm。车辆后 轴(组)上方区域,两个相邻系固点之间的距离宜在1 20Omm左右,但不大于1 500mm;
b) 系固点与车辆前墙或后墙的距离不大于500mm;
C)系固点与车厢内侧或轮罩内侧的距离均不大于250mm,且尽可能小。
E.1.1.4系固点承载力要求的计算方式为:
a)最大设计总质量大于3 50Okg旦小于或等于7 5()Okg的车辆,系固点的数量N根据式(E. I) 计算:
b)最大设计总质量大于7 500kg且小于或等于12 OOOkg的车辆,系固点的数量N根据式(E. 2) 计算:
(E.2)
式中『一满载时货物产生的最大惯性力,单位为牛(N),见式(E.3); N―-系固点数量,若N存在小数,则应向上取整。
(E.3)
P - mg
式中:m——最大允许装载质量,单位为千克(kg);
g——加速度,单位为米每二次方秒(mA?),通常取10m∕s2o
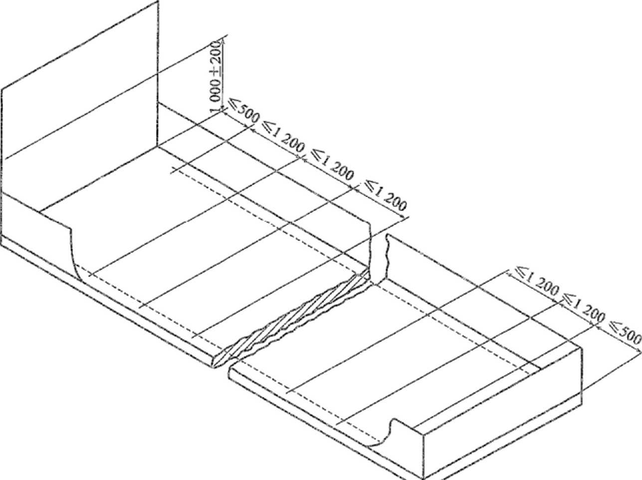
E.1.2前墙上的系固点
货箱前墙应至少安装2个系固点,系固点以车辆纵向对称平面对称分布,系固点的位置(图E. 1)应 满足以下要求:
a) 系固点距离承载面的垂直距离为1 OOOmm ±200mm;
b) 系固点到侧墙的距离不超过25Omm,且尽可能小。
图E.1系固点布置要求(尺寸单位:mni)
E.2系固点的强度要求
E.2.1承载面上系固点应能将受力传递至车身,且系固点的最低允许拉力应满足表E. 1的要求。
表E.1车辆最大设计总质量与系固点最低允许拉力对应关系
|
车辆最大设计总质星m (kg) |
系固点的最低允许拉力 __________________(kN)___________________ |
|
3 500<∕n≤7 500 |
8 |
|
7 500<πz-≤l2 000 |
LO |
E.2.2前墙上系固点的最低允许拉力应为IOkN。
、»•.L∙x~ ¥•»H>£.蓉乏十 W
∞ocmilo∂zllj√j%
中华人民共和国
交通运输行业标准 营运货车安全技术条件 第1部分:载货汽车 JT/T 1178.1—2018
*
人民交通岀版社股份有限公司出版发行 (IOOOll北京市朝阳区安定门外外馆斜街3号) 各地新华书店经销
北京市密东印刷有限公司印刷
*
开本:880 X 1230 1/16 印张:1.5字数:39千 2018年3月第1版
2018年3月第1次印刷
*
统一书号:15114 • 2821定价:20.00元
版权专有侵权必究
举报电话:010-85285150