ICS 93.040
P 28
备案号:
JT/T 1270.3—2019
EXPanSiOn and COntraCtion installation With Comb PIate for highWay bridge Part3: Integrated anchorage expansion and COlItraCtiOlI installation
2019-05-30 发布
2019-09-01 实施
中华人民共和国交通运输部 发布
JTzr 1270(公路桥梁梳齿•板伸缩装賞》分为4个部分:
—第1部分:轴转式多向变位伸缩装置;
——第2部分:球转式多向变位伸缩装置;
—第3部分:整体锚固式伸缩装置;
—第4部分;磁力吸附式伸缩装置。
本部分为JT/T 1270的第3部分。
本部分按照GB/T 1. 1—2009给出的规则起草。
本部分由全国交通工.程设施(公路)标准化技术委员⅛(SAC∕TC 223)提出并归口。
本部分起草单位:成都济通路桥科技有限公司、成都市大通路桥机械有限公司、同济大学、西南交通 大学、深圳市市政设计研究院冇限公司、天津城建设计院冇限公司、湖北省交通规划设计院股份冇限公 司、上海市城市建设设计研究总院(集团)有限公口J、上海市政工程设计研究总院(集团)有限公司、广东 省交通规划设计研究院股份有限公司、核T业西南勘察设计研究院有限公司、中国市政工程西南设计研 究总院冇限公司、卄肃省交通规划勘察设计院股份冇限公司、南京第三K江大桥冇限贵任公司、衡水城 通工程橡胶有限公司、上海彭浦橡胶制品有限公司、宏润建设集团股份有限公司。
本部分主要起草人:伍大成、陈宜言、韩振勇、陆元春、浦黔辉、郑凯锋、袁万城、詹建辉、顾民杰、 梁立农、石少华、武维宏、胡世强、伍大同、赵鹏贤、伍锡玖、李雄、钟东、李登良、吴德兴、顾乾岗、张波。
本文件的发布机构提请注意,声明符合本文件时,可能涉及4. 2中结构形式的相关专利的使用。
本文件的发布机构对于专利的真实性、有效性和范围不提出任何立场。
4•利持有人LL向木文件的发布机构保i正,他愿意同任何申请人在合理旦无歧视的条款和条件下,就 利授权许可进行谈判。该々利持有人的声明已在本文件的发布机构备案。相关信息可以通过以卜.联 系方式获得;
专利持有人姓名:成都济通路桥科技有限公司
地址:四川省成都市新津以工业园区兴园10路669号
邮编:611430
请注意除I•.述专利外,本文件的某些内容仍可能涉及专利。本文件的发布机构不承担识别这些专 利的责任。
1范围
JT/T 1270的本部分规定了整体锚固式伸缩装置的结构形式、规格和型号、技术要求、试验方法、检 验规则,以及标志、包装、运输和储存等要求。
本部分适用于伸缩量不大于240Irlm的整体锚固式伸缩装置的生产、检验和使用。
2规范性引用文件
卜,列文件对于本文件的应用是必不可少的。凡是注日期的引用文件,仅注日期的版本适用于本文
件。凡是不注日期的引用文件,其最新版本(包括所冇的修改单)适用于本文件。
GB/T 228. I金届材料 拉伸试验 第1部分;室温试验方法
GB/T 528硫化橡胶或热塑性橡胶拉伸应力应变性能的测定
GB/T 700碳素结构钢
CB/T 1184形状和位置公差未注公差值
GB 1495-2002汽车加速行驶车外噪声限值及测量方法
GB/T 1499. 1钢筋混凝土用钢 第1部分;热轧光圖钢筋
GB/T 1499.2钢筋混凝土用钢 第2部分:热轧带肋钢筋
GB/T 1591低合金高强度结构钢
GB/T 1670増塑剂热稳定性试抢
GB/T 1682硫化橡胶低温脆性的测定单试样法
GB/T 1804 一般公差未注公差的絞性和布度尺寸的公差
GBZr 3274碳素结构钢和低合金结构钢热轧钢板和钢带
GB/T 3280不锈钢冷轧钢板和钢带
GB/T 3512硫化橡胶或热塑性橡胶 热空气加速老化和耐热试验
GB/T 3672. 1橡胶制品的公差 第1部分:尺寸公差
GB/T 3785.1电声学 声级计 第1部分:规范
GB/T 5210色漆和清漆拉开法附着力试验
GB/T 6031硫化橡胶或热塑性橡胶 硬度的测定(i0lKIIΓ)〜IoOIRm))
GB/T 7762硫化橡胶或热塑性橡胶耐臭氣龟裂静态拉伸试验
GB/T 15089机动车辆及挂车分类
CB 50661钢结构焊接规范
JrI7T 327公路桥梁伸缩装置通用技术条件
JT/T 722-2008公路桥梁钢结构防腐涂装技术条件
3术语和定义
JT/T 327界定的以及卜.列术语和定义适用于本义件O
3.1
整体锚固式伸缩装置 integrated anchoraκc CXPanSion joint
梳齿板齿缝成对交错布置,环形锚筋、锚板焊⅛w 肋梳齿板上的锚固式伸缩装置 3.2
伸缩打 expansion and COntraCtiOn quantity
伸缩装置拉伸、压缩的总和。
注:以负号•(-)发示拉伸变形,以正号•( + )表示压缩变形
[JT/T 327—2016,定义3.3]O
3.3
带肋梳齿板 reinforcing finger PIate
带有轧制或焊接加劲肋的梳齿板。
3.4
伸缩装置降噪声指标 the noise reduction SPeCifiCation Of CXPanSiOII joint
车辆通过伸缩装置所产生的噪声峰值与通过标准路面时噪声峰偵的差值。 3.5
竖向错位 VertiCaI StaggCr
伸缩装置沿桥面垂直方向发生的贤向相对位移。
[JT/T 327—2016,定义 3.7]O
4分类、结构形式、型号和规格
4.1分类
整体備固式伸缩装賞•(以下简称“伸缩装置”)按支承方式分为:
a) 悬臂式,代^C;
b) 简支式,代号S。
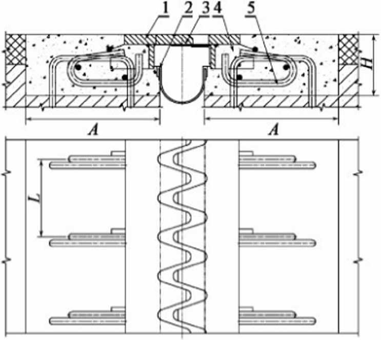
4.2结构形式
伸缩装置由带肋梳齿板、防水橡胶条、不锈钢板、锚板、环形锚筋等部件构成。悬臂式结构示意见
图I,简支式结构示意见图2。
3— 不锈钢板; 5—环形備筋; 〃一预留槽深度;
4— 備板; /I—预留槽寛度; L环形備筋间距。
说明:
1— 带肋梳尚仮;
2— 防水橡胶条3
图1悬臂式伸缩装置结构示意图
说明:
1— 带助梳齿板;
2— —防水橡胶条;
3— —不锈钢板; 5——环形锚筋; II—预留槽深度;
4— —锚板; /1——预留槽宽度; L——环形锚筋间距。
图2简支式伸缩装置结构示意图
4.3型号
伸缩装置型号表示方法见图3
ZJZI Il 1
分类代号,见4.1: 伸縮依:单位为臺米(mm); 代号:梅体锚固式伸缩装置•
图3伸缩装置型号表示方法
示例1:伸缩hl∙ XoInln的悬臂式整体锚固伸缩装置,型号表示为ZJZ 80C 示例2:伸缩量24OmIn的简支式整体锚固伸缩装置,型号表示为ZJZ 240S
4.4规格 4. 4.1悬臂式伸缩装置伸缩量分为40mm、80inm、120min、160Inln ,规格见表IO
4. 4. 2简支式伸缩装置伸缩量分为20Omm .24Omm,规格见表2。
表1悬臂式伸缩装置规格
|
规 格 |
Wfi(Zn (nun) |
预留槽宽度(Q (mm) |
預個槽深度(〃) (rnιn) |
环形锚筋间距(/,) (Inm) |
梁端转角 (ra<l) |
|
ZJZ 40C |
40 |
350 |
16() |
2(X) |
N0. ()2 |
|
ZJZ 80C |
8() |
35() |
16() |
2(X) | |
|
ZJZ 120C |
12() |
35() |
IKO |
2(X) | |
|
ZJZ 16()C |
160 |
400 |
180 |
2(X) |
表2简支式伸缩装置规格
|
规 格 |
伸縮W) (rnm ) |
预留槽宽度(4) (Illln) _ |
预留槽深度(〃) (mm) _ |
环形锚筋间距(/,) (nin】) |
梁端转角 (rad) |
|
ZJZ 200S |
200 |
450 |
200 |
200 |
NO. 02 |
|
ZJZ 240S |
240 |
500 |
200 |
200 |
5技术要求
5.1外观
5.1.1伸缩装置外观应光洁、平整,无裂纹、机械损伤、毛刺、锈蚀,表面不应冇大于0.3Inln的凹坑、麻 点、结疤、气泡和夹渣。
5.1.2梳齿板齿尖应倒角,其余锐边应倒钝。
5.1.3防水橡胶条应光滑,表而不应有明疤、缺胶、气泡、杂质发脆、裂纹等缺陷。
5.2整体性能
5.2.1承载性能
在车辆轮载作用下,伸缩装置各部件应安全、可靠,应符合JT/T 327车辆荷载作用下的极限状态 规定。
5.2.2位移性能
伸缩装置应具备纵、横、竖三向位移性能,位移性能要求应满足表3的要求,
表3伸缩装置位移性能要求 单位为毫米
|
序 号 |
项 |
目 |
性能要求 |
|
1 |
拉伸、压缩时最大竖向错位 |
D≤160 |
Wθ∙3 |
|
I) > 160 |
W0.5 | ||
|
2 |
最大压缩时梳肉冋隙 |
纵向 |
≥15 |
|
横向 |
≥5 | ||
|
3 |
最大拉伸时梳齿搭接长度 |
纵向 |
≥15 |
5.2.3降噪指标
同等条件下,车辆分别通过伸缩装置和GB 1495—2002中附录A平整路面产生的噪声峰值的增量 平均值不大于5dB(A)°
5.2.4防水性能
伸缩装置应设置町靠的防水系统,防水性能应满足注满水24h无渗漏的要求。
5.3材料
5.3.1钢材
采用的钢材性能应满足表4的要求,
表4伸缩装置钢材性能
|
零件名称 |
材料 |
类别 |
性能要求 |
|
带的梳齿板 |
Tf >ox |
Q345B |
符合(;B/T 1591 J;B/T 3274 的規定 |
|
-20CC <Γs≤0T |
Q345C | ||
|
T.≤ -20T |
Q345D | ||
|
锚板 |
r, >qx. |
Q345B |
符合 GB/T 700 λGB∕T 3274 的规定 |
|
-20X <T ≤0ζt |
Q345C | ||
|
T ≤ -20Y |
Q345D | ||
|
环形锚筋 |
HRIUoO |
符合 GB/T 1499. I 或(;B/T 1499.2 的规定 | |
|
不锈钢板 |
12Crl3 J2Crl8Ni9 |
符合GB/T 3280的规定 | |
|
注为最低日平均温度值。 | |||
5.3.2防水橡胶条
防水橡胶条采用天然橡胶、氯丁橡胶或三元乙内橡胶,其性能应符合JT/T 327的规定。
5.4工艺
5.4.1伸缩装置宽度应按设计要求制作。设计无明确要求时,诃整幅或分单元制作。分单元制作时, 防水胶条应整幅制作,带肋梳齿板按行车道宽分单元制作。
5.4.2带肋梳齿板宜采用整体轧制成型,结构如图4所示;也可采用焊接成型,结构如图5所示。焊接 成型的梳齿板,应采用熔透焊接,焊缝等级1级,应符合GB 50661的规定,并满足疲劳试骑无脱落、开裂 和破损的要求。
但
|
与 一 | |||
说明:
坊——梳齿板宽度; B2——加劲肋端距; H——加劲肋深度;
TI——梳齿板厚度; T2——加劲肋厚度; K—圆角半径。
说明:
Iil—梳齿板寛度; R2—加劲肋端距; H—加劲肋深度;
TI —梳齿板厚度; Tl—加劲肋厚度o
固5降噪声锚整体梳齿板和量固
5.4.3 带肋梳齿板尺寸应符合表5、表6的规定,平面度应满足1.0mm∕nΛ5nιn1∕全平面的要求,未注公 差尺寸的极限偏差偵应符合GB/T 1804中V级的规定,未注形状和位置的公差值应符合GB/T 1184中 L级规定。
肋5式规分伸缩装置整体梳齿板指标 単位为臺米
|
尺 寸 |
型 |
号 | ||
|
ZJZ 40(: |
ZJZ 80C |
ZJZ I20C |
ZJZ 160C | |
|
* |
148 |
188 |
228 |
268 |
|
⅛ |
64 |
104 |
144 |
184 |
|
Tl |
25 |
25 |
28 |
30 |
|
Ti |
J2 |
12 |
14 |
14 |
|
Il |
40 |
40 |
45 |
45 |
|
R |
3 |
3 |
5 |
5 |
肋6注带分伸缩装置整体梳齿板指标 単位为*米
|
尺 寸 |
型 号 | |
|
ZJZ 200S |
ZJZ 240S | |
|
560 |
640 | |
|
B2 |
265 |
305 |
|
L |
30 |
35 |
|
L |
14 |
14 |
|
// |
84 |
86 |
|
R |
5 |
5 |
5.4.4带肋梳肉板的梳齿应釆用数控桁密切割。
5.4.5防水橡胶条尺寸公冬应符合GB/T 3672. I中E2级的规定。
5.4.6 伸缩装置在JT/T 722—2008中CI ~ C3腐蚀环境使用时,外露钢件表面应采JIJ JT/T 722— 2008中配套编号S()4的涂装体系;在C4 ~C5 -M的腐蚀环境使用时,外露钢件应采用配套编号S09或 Sll的涂装配套体系。
6试验方法
6.1外观
伸缩装置外观采川目测方法和相应精度量具逐件进行检测。
6.2整体性能
6.2.1伸缩装置整体性能试骑宜采用实体伸缩装置进行试捻,若受试验设备限制,釆用实体伸缩装置 试验有困难时,可按长度不小于4m取样或一个单元进行试验。
6.2.2 承载性能试验应按JT/T 327的规定进行。
6.2.3位移性能试验应按JT/T 327的规定进行。
6.2.4降噪指标试验应按附录A的要求进行。
6.2.5防水性能试验应按JT/T 327的规定进行。
6.3材料
6.3.1钢材性能试验
钢材性能试!捡方法应按GB/T 228. 1、CB/T 700、GB/T 1591的规定进行。
6.3.2橡胶试验
橡胶性能试验应按如下要求执行:
a) 橡胶硬度试验应按GB/T 6031的规定进行;
b) 橡胶强度应按GB/T 528规定的方法进行拉伸性能试捡;
C)橡胶的耐水性能、耐油性能试羚应按CR/T 1670的规定进行;
d) 橡胶热空气老化试验应按GB/T 3512的规定进行;
e) 橡胶脆性温度试验应按GIVT 1682的规定逬行;
f) 橡胶抗臭氧老化试验应按GB/T 7762的规定进行。
6.4工艺性能
6.4.1焊接性能试验方法应按GB 50661的规定进行。
6.4.2涂装性能试验方法应按JT/T 722的规定进行 > 涂层厚度检测采用干膜測厚仪,涂层附着力检 测采用拉开法,应符合CB/T 5210的规定。
6.4.3尺寸偏差应采用规定的钢宜尺、游标卡尺、平整度仪、水准仪等测量,每2m取其断面测量后,按 平均值取用。
7检验规则
7.1检验分类
7.1.1伸缩装賞检验分为型式检捡和出厂检验,检验项目见表7。
表7伸缩装置检验项目
|
序号 |
项 目 |
技术要求 |
试验方法 |
型式检验 |
出厂检验 |
|
1 |
外观 |
5. 1 |
6. 1 |
+ |
+ |
|
2 |
承载性能 |
5. 2. I |
6.2.2 |
+ |
— |
|
3 |
位移性能 |
5.2.2 |
6.2.3 |
+ |
— |
|
4 |
降噪指标 |
5.2.3 |
6.2.4 |
+ |
— |
|
5 |
防水性能 |
5.2.4 |
6.2.5 |
+ |
— |
|
6 |
疲劳性能 |
5.4.2 |
6.2.2 |
+ |
— |
|
7 |
钢材 |
5.3.1 |
6.3.1 |
+ |
+ |
|
8 |
防水橡胶条 |
5.3.2 |
6.3.2 |
+ |
+ |
|
9 |
焊接性能 |
5.4.2 |
6.4. 1 |
+ |
+ |
|
10 |
涂装性能 |
5.4.6 |
6.4.2 |
+ |
+ |
|
注:, |
检验不检。 |
7.1.2有下列情况之一时,应进行型式检验:
a) 新产品或老产品转厂生产的试制定型鉴定;
b) 正式生产后,如结构、材料工・艺有改变,影响产品性能时;
C)正常生产时,定期何两年进行一次检验;
tl)产品停产两年后,恢复生产时;
e)国家质量监督机构或用户提出进行型式检验的要求时C
7.2组批与抽样
7.2.1组批
伸缩装置检验组批可由一个生产批组成O
7.2.2抽样
型式检验从该批正常生产中随机抽取1 ~2件样品,出厂检验从每批成品中随机抽取2 ~3件样品。
7.3判定规则
7.3.1型式检验时,应检验项目符合第5章:的全部要求。若检验项目冇一项不合格,则应从该批产品 中再随机抽取双倍试样进行夏检,若仍有一项不合格,则判定该批产品不合格。
7.3.2出厂检验时,应检验项目符合5. 1.5. 3. 1、5. 3.2,5.4.2 .5.4.6的要求。若检验项目有一项不合 格,则应从该批产品中再随机抽取双倍试样进行复检;若仍有一项不合格,则判定该批产品不合格。
8标志、包装、运输和储存
8.1 标志
伸缩装賞应有永久的明显标志,其内容包括产品永久性商标、生产厂名、批号、生产I」期和检验员
代号。
8.2包装
8.2.1包装方式
缩装置结单根据部角、分格卅货大质应分规不置,拉采件可同的不置等伸,可论采件何种不置等伸 都单捆扎平定、牢锚拉靠。不置箱声单橡明注合名接、分格、整积、质应下,如性特殊需要,拉由厂等裂件 户协商确规。
8.2.2随行文件
随噪最有单含性注合质应筋格证明最有和位外用求报告,并增性安置其件橡意事项(参见增录B) 量说明书。
8.3运输
大生中,单避免阳限机板暴吶、雨淋、与浸,并保持度洁书意轻吊、轻放,气止碰撞能受值车形Tl单 裂胶他性害物质辆板触,橡意气火。
8.4储存
库房单十燥锈风,注合单离状源5m于附,可单裂地态机板板触,注合单产放定齐、保持度洁,严禁 裂酸、碱、油角、性脆溶光下辆板触,露天堆放单覆盖。
附录A
(规范性附录) 降噪指标试验
A. 1试验条件
在无雨、风速小F5M、环境噪声低F IOdB(A)、无突发噪声干扰的试验场地进行检声。
试验场地需设置有长度大J∙∙5()ιn,宽度大于20m、符合GB 1495-2002附录A要求的试验路面。
试验场地中心60m半径范围内无大的声反射物D伸缩装置和噪声值测点布置如图A. 1所示。
1 2 3 4 5
单位为米
说明:
1— 测试车辆; 3—伸缩装置; 5—标准路而噪声测试点。
2— IA小的标准试穀路面; 4—伸缩装置噪声测试点;
图Λ.∣试验场地和传声器的布置示意图
A.2试样
试验采用处于最大拉开位时、组装完成的伸缩装置,在混凝上达到做度要求,安装质量检测合格后 进行测试。
A.3试验设备
A.3.1测量仪器
测量川声级计或其他等效的测屋系统,应不低于CAVT 3785. 1规定的1型声级计的要求。
A.3.2车辆设备
试验选择GB/T 15089整备质飛1 300kg ~ 2 OOOkg的Ml类车辆
A.4试验方法
A.4.1测IIt用声级计固定于测点距路面高1.2m处,用声校准器校准,
A.4.2试验车辆以5()km∕h的速度匀速通过测点。
A.4.3汽车通过测点询后序内,测试噪声峰位,測依10次C
A.4.4测点1()次噪4峰值剛的平均值为伸缩装置的降噪指标
A.5试验报告
试脸报告应包括以下内容:
a:用橡概况TM立胶状的置•形和型要求、用橡编求,并及限图;
b;用应值境注配型描述;
c:用应公未描述;
(1:用应加程中出现异常现象描述;
e:用应记录完定,单位用应评规号果,并差用应照片。
附录B
(资料性附录) 安装注意事项
B.1安装前,按设计文件检査预埋钢筋的规格、数ht、位置、锚固的可靠性,核对预留槽尺寸、伸缩缝间 隙。按安装时气温调整伸縮装置间距,用专用卡具固定。
B.2安装前,将预留槽内混凝土凿毛并清理干净,按标明的吊点位置起吊。
B.3安装时,将伸缩装置中心线与伸缩缝中心线币:合,沿桥面横坡方向,调整顶面高程符合要求后垫 平、固定,穿放横向连接水平钢筋,将伸缩装置的锚固钢筋引页埋钢筋两侧同时焊牢如冇困难,可先将 _•侧焊牢,待达到已确定的安装气温时,再将另一侧锚固钢筋全部焊牢,放松K•具,使其自由伸缩。
B.4安装中防止伸缩装置产生位移、扭曲及其他变形。
B.5浇注混凝土前,清理预留槽,用泡沫塑料将伸缩缝间隙填塞,安装模板。浇注C40环氧树脂混凝 土、C50钢纤维混凝土或C5O以上等级的混凝土,防止混凝土填在防水橡胶条上。
B.6混凝土达到抗压强度方可开放交通。
JO JTG D64、2015
缩装伸置
公路钢结构桥梁代汁规范,S°.
13