UDC
中华人民共和国国家标准
GB 50322-2011
粮食钢板筒仓设计规范
Code for design of grain steel silos
2011-07-26 发布 2012-06-01 实施
中华人民共和国住房和城乡建设部 联合发布 中华人民共和国国家质量监督检验检疫总局 联合发布
中华人民共和国国家标准
粮食钢板筒仓设计规范
Code for design of grain steel silos
GB 50322-2011
主编部门:国 家 粮 食 局
批准部门:中华人民共和国住房和城乡建设部 实施日期:2 0 1 2 年 6 月 1 日
中国计划出版社
2011北京
第1097号
关于发布国家标准
《粮食钢板筒仓设计规范》的公告
现批准《粮食钢板筒仓设计规范》为国家标准,编号为GB 50322—2011,自2012 年6月 1 日起施行。其中,第4. 1.1、4. 2.3、5. 1.2、5.5. 3 (3)、6.4.2、8. 1.2、8.6. 1 条(款)为强制性条文,必须严格执行。原行业标准《粮食钢板筒仓设计规范》GB 50322 —2001同时废止。
本规范我部标准定额研究所组织中国计划出版社发行。
中华人民共和国住房和城乡建设部
二O一一年七月二十六日
本规范根据住房和城乡建设部《关于印发<2009年工程建设标准规范制订、修订计划>的 通知》(建标[2009]88)的要求,由由郑州粮油食品工程建筑设计院和郑州市第一建筑工程集团 有限公司会同有关单位在原《粮食钢板筒仓设计规范》GB 50322—2001的基础上修订 而成的。
本规范在编制过程中,编制组经广泛调查研究,认真总结实践经验,参考有关标准,并在 广泛征求意见的基础上,最后经审查定稿。
本规范共分9章和6个附录,主要技术内容包括:总则、术语和符号、基本规定、荷载与 荷载效应组合、结构设计、构造、工艺设计、电气、消防。
本规范修订的主要技术内容是:增加了肋型粮食钢板筒仓、保温粮食钢板筒仓;修订了粮 食载荷与仓壁稳定计算的相关参数,完善了筒仓载荷计算方法的相关规定;增加了新材料、新 结构的规定;修订了仓体工艺电气设备配置要求等内容。
本规范中以黑体字标识的条纹为强制性条纹,必须严格执行。
本规范由住房和城乡建设部负责管理和对强制条纹的解释,由国家粮食局负责日常管理, 由郑州粮油食品工程建筑设计院负责具体技术内容的解释。本条文在执行过程中如有意见和建 议,请寄送州粮油食品工程建筑设计院(地址:郑州高新技术产业开发区莲花街,邮政编码: 450001)。
本规范主编单位、参编单位、主要起草人和主要审查人:
主编单位:郑州粮油食品工程建筑设计院
郑州市第一建筑工程集团有限公司
参编单位:河南工业大学
国贸工程设计院
中煤国际工程集团北京华宇工程有限公司
中冶长天国际工程有限公司
江苏正昌粮机股份有限公司
江苏牧羊集团有限公司
哈尔滨北仓粮食仓储工程设备有限公司
主要起草人:袁海龙郭呈周雷 霆李 遐侯业茂马志强李江华梁彩虹刘海燕 郭金勇吴 强肖玉银汪红卫郝卫红陈华定郑 建光迪和郝 波 刘廷瑜高晓青朱贤平钱杭松何 宇
主要审查人:崔元瑞张振镕赵锡强朱同顺刘继辉朱文宇张义才徐玉斌刘勇献 丁保华
8. 5 Grain detection and CGntrGI SyStem
8. 6 Lightening PrGteCtiGn and grGunding
APPendiX A SettIement GbSerYatiGn Gf Steel SilG and Per-IGaded With grain teSt
APPendiX B StreSS CalCulation Gf WeIding grain Steel SilG wall GPening
APPendiX C Main grain granular PhySiCaI CharaCteriStiCS
APPendiX E Film internal forCe Gf rotator Shell in SymmetriCaI IGading
APPendiX F ReCGmmended illuminanCe YaIUeS
EXPIanatiGn Gf WGrding in thiS CGde
Addition: EXPIanatiGn Gf PrGYiSiGnS
1. 0. 1为总结我国粮食钢板筒仓建设经验,使粮食钢板筒仓设计做到安全可靠、技术先进、经 济合理,制定本规范。
1.0.2本规范适用于平面形状为圆形,中心装、卸粮的粮食钢板筒仓的设计。
1. 0. 3粮食钢板筒仓的设计使用年限不应少于25年。
1.0.4粮食钢板筒仓结构的安全等级为二级,抗震设防类别应为丙类,耐火等级可按二级。
1. 0. 5粮食钢板筒仓应由具有相关设计资质的单位进行设计。
1.0.6粮食钢板筒仓设计,除应符合本规范外,尚应符合国家现行的有关标准的规定。
2. 1. 1 粮食钢板筒仓 grain steel silo
储存粮食散料的钢结构直立容器,平面以圆形为主。主要形式有焊接钢板、螺旋卷边钢板、 螺栓装配肋型钢板、螺栓装配肋型双壁及装配钢结构框架式等。
2. 1. 2 粮食散料 grain granular material
小麦、玉米、稻谷、豆类以及物理特性参数与之相近的谷物散料。
2. 1. 3 仓体 bulk solids
钢板筒仓容纳粮食散料的部分。
2. 1. 4 仓顶 top of silo
封闭仓体顶面的结构。
2. 1. 5 仓上建筑 building above top of silo
按工艺要求建在仓顶上的建筑。
2. 1. 6 仓壁 wall of silo
与粮食散料直接接触且承受粮食散料侧压力的仓体竖壁。
2. 1. 7 筒壁 SUPPOrting wall
支承仓体的竖壁。
2. 1. 8 仓下支承结构 SUPPOrting StrUCtUre of silo bottom
基础以上,仓体以下的支承结构,包括筒壁、柱、扶壁柱等。
2. 1. 9 漏斗 hopper
筒仓下部卸出粮食散料的结构容器。
2. 1. 10 深仓 deep bin
储粮计算高度hn与仓内径dn比值大于或等于1. 5的筒仓。
2. 1. 11 浅仓 shallow bin
储粮计算高度hn与仓内径dn比值小于1.5的筒仓。
2. 1. 12 单仓 SingIe silo
不与其他建(构)筑物联成整体的单体筒仓。
2. 1. 13 仓群 group silos
多个且成组布置的筒仓群。
2. 1. 14 填料 filler
仓底构成卸料填坡的填充材料。
2. 1. 15整体流动 mass flow
卸粮过程中,仓内粮食散料的水平截面呈平面状态向下的流动。
2. 1. 16 管状流动 funnel flow
卸粮过程中,仓内粮食散料的表面呈漏斗状向下的流动。
2. 1. 17 中心卸粮 COnCentriC discharge
卸粮过程中,仓内粮食散料沿仓体几何中心对称向下的流动。
2. 1. 18 偏心卸粮 eccentric discharge
卸粮过程中,仓内粮食散料沿仓体几何中心不对称向下的流动。
2. 1. 19 工作塔 work tower
进行粮食输送、计量、清理等工作的场所。
2. 1. 20 地道 UnderPaSS
连接筒仓与筒仓、筒仓与工作塔之间的地下通道。
2. 2. 1几何参数
h—地面至仓壁顶的高度;
hn—储粮的计算高度;
hh—漏斗顶面至计算截面的高度;
S——计算深度,由仓顶或储粮锥体重心至计算截面的距离;
dn—筒仓内径;
R--筒仓半径;
t——筒仓仓壁厚度或仓壁计算厚度,钢板厚度;
e——自然对数的底;
α —漏斗壁对水平面的夹角。
2. 2. 2计算系数
k——储粮侧压力系数;
kp—仓壁竖向受压稳定系数;
P —筒仓水平净截面水力半径;
Ch——仓储粮动态水平压力修正系数;
CV——深仓储粮动态竖向压力修正系数;
Cf——深仓储粮动态摩擦力修正系数。
2. 2.3粮食散料的物理特性参数
Y——重力密度
P o——粮食的质量密度;
μ——储粮对仓壁的摩擦系数
Φ——储粮的内摩擦角
2. 2.4钢材性能及抗力
E——钢材的弹性模量
f——钢材抗拉、抗压强度设计值
fwt——对接焊缝抗拉强度设计值
fwc——对接焊缝抗压强度设计值
fwf——角焊缝抗拉、抗压和抗剪强度设计值
σ Cr 受压构件临界应力
2. 2. 5作用和作用效应
Phk——储粮作用于仓壁单位面积上的水平压力标准值
PVk——储粮作用于单位水平面上的竖向压力标准值
Pfk——储粮作用于仓壁单位面积上的竖向摩擦力标准值
Pnk—储粮作用于漏斗斜面单位面积上的法向压力标准值
Ptk—储粮作用于漏斗斜面单位面积上的切向压力标准值
M—弯矩设计值,有下标者,见应用处说明
N——轴向力设计值,有下标者,见应用处说明
拉应力或压应力,有下标者,见应用处说明
3. 1. 1粮食钢板筒仓的平面及竖向布置应根据工艺、地形、工程地质及施工条件等, 经技术经济比较后确定。
3. 1.2仓群宜选用单排或多排行列式平面布置(图3.1.2)。
<»}单行排列
Ihj两有四列
圏3丄2仕群平面布置示意图 I-T作塔思一簿仓
筒仓净间距应按以下原则确定:
1 不应小于500mm;
2当采用独立基础时,还应满足基础设计要求;
3落地式平底仓,应根据清仓设备所需距离确定。
3.1.3筒仓与筒仓、筒仓与工作塔之间的地道应设置沉降缝。
3.1.4筒仓与筒仓、筒仓与工作塔之间的栈桥,应考虑相邻构筑物由于地基变形引起的相对位 移。当满足本规范第5.5.3条要求时,相对水平位移值可按下式确定:
h
Δμ≥------- (3.1.4)
400
式中:Δ μ——相对水平位移
h——室外地面至仓顶的高度。
3.1.5粮食钢板筒仓施工图设计文件中,应对首次装卸粮、沉降观测、水平基准点 及沉降观测点设置要求等予以说明,并应符合本规范附录A的规定。
3. 2. 1粮食钢板筒仓结构(图3.2.1)可分为仓上建筑、仓顶、仓壁、仓底、仓下支 承结构及基础六个基本部分。

图⅛tΞrl钢板简会结构组成示童图
1一仓上建⅛ftf2-⅛顶挡一仓壁M一食底苗-友承粘梅部基础
3. 2.2仓上设置的工艺输送设备通道及操作检修平台宜采用敞开式钢结构。当有特 殊使用要求时,也可采用封闭式。
3. 2.3粮食钢板筒仓仓顶宜采用带上、下环梁的正截锥仓顶,其结构型式应根据设 计确定。
3. 2.4粮食钢板筒仓仓壁为波纹板、螺旋卷边板、肋型钢板时,应采用热镀锌或合 金钢板。
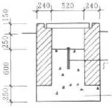
3. 2.5粮食钢板筒仓可采用钢或钢筋混凝土仓底及仓下支承结构。直径12m以下时, 宜采用由柱或筒壁支承的架空式仓下支承结构及漏斗仓底;直径15m及以上时,宜采 用落地式平底仓,地道式出料通道(图3.2.5)。
(K)锥斗仓底 (b)落地云平底仓
L
图33. 5钢板简仓仓底示意图
4. 1. 1粮食钢板筒仓的结构设计,应计算以下荷载:
1永久荷载:结构自重、固定设备重、仓内吊挂电缆重等;
2可变荷载:仓顶及仓上建筑活荷载、雪荷载、风荷载等;
3储粮载荷:储粮对仓筒的作用,储粮对仓内吊挂电缆的作用等;
4地震作用。
4. 1.2各种荷载的取值,除本规范规定者外,均应按现行国家标准《建筑结构荷载 规范(2006版)》GB50009的有关规定执行。
4. 1.3储粮的物理特性参数,应由工艺专业通过试验分析确定。当无试验资料时, 可参考本规范附录C所列数据。
4. 1.4计算储粮荷载时,应采用对结构产生最不利作用的储粮品种的参数。计算储 粮对波纹钢板仓壁的摩擦作用时,应取储粮的内摩擦角。计算储粮对肋型钢板仓壁 的摩擦作用时,可分段取储粮的内摩擦角和储粮对钢板的外摩擦角。
4. 1.5储粮计算高度hn与水平净截面水力半径P,应按下列规定确定:
1水力半径P按下式计算:
"'一 4 (4.1.5)
式中:hn—储粮计算高度;
P——筒仓净截面水力半径;
dn—筒仓内径。
2储粮计算高度hn按下列规定确定:
1) 上端:储粮顶面为水平时,取至储粮顶面;储粮顶面为斜面时,取至储粮锥 体的重心;
2) 下端:仓底为锥形漏斗时,取至漏斗顶面;仓底为平底时,取至仓底顶面; 仓底为填料填成漏斗时,取至填料表面与仓壁内表面交线的最低点。
4. 1. 6粮食钢板筒仓的风载体型系数可按下列规定取值:
1仓壁稳定计算:取1.0;
2筒仓整体计算:对单独筒仓,取0.8;对仓群,取1.3。
4.2.1计算粮食对筒仓的作用时,应包括以下四种力:
1作用于筒仓仓壁的水平压力;
2作用于筒仓仓壁的竖向摩擦力;
3作用于筒仓仓底的竖向压力;
4作用于筒仓仓顶的吊挂电缆拉力。
4.2.2深仓储粮静态压力的标准值,应按下列公式计算(图4.2.2):
图43. Z琛仓储粮荷裁示意图
1计算深度S处,储粮作用于仓壁单位面积上的水平压力标准值Phk按下式计算:
琮井LI-Lr
(4.2. 2-1)
2计算深度S处,储粮作用于单位水平面上的竖向压力标准值PVk按下式计算:
F =^-(I 广'宀:
M (4.2.2-2)
3计算深度S处,储粮作用于仓壁单位面积上的竖向摩擦力标准值Pfk按下式计算:
% = (4.2.2-3)
4计算深度S处,储粮作用于仓壁单位周长上的总竖向摩擦力标准值Qfk按下式计算:
(4.2. 2-4)
式中:Phk——储粮作用于仓壁单位面积上的水平压力标准值;
Y——储粮的重力密度;
P ——筒仓水平净截面的水力半径;
μ——储粮对仓壁的摩擦系数;
e——自然对数的底;
k——储粮侧压力系数,按本规范附录D表D.1取值;
S—储粮顶面或储粮锥体重心至所计算截面的距离;
PVk——储粮作用于单位水平面上的竖向压力标准值;
Pfk——储粮作用于仓壁单位面积上的竖向摩擦力标准值;
Qfk——储粮作用于仓壁单位周长上的总竖向摩擦力标准值。
4. 2.3在深仓卸粮过程中,储粮作用于筒仓仓壁的动态压力标准值,应以其静态压 力标准值乘以动态压力修正系数。深仓储粮动态压力修正系数,应按表4.2.3取值。
表4.2. 3深仓储粮动态压力修正系数
|
____深仓部位____ |
系数名称 |
________动态压力修正系数值________ | |
|
仓壁 |
水平压力修正系数Ch |
_________S≤hn∕3_________ |
__________1+3S∕hn_________ |
|
S>hn∕3 一 |
2.0 一 | ||
|
摩擦压力修正系数Cf |
- |
n | |
|
仓底 |
竖向压力修正系数CV |
钢漏斗 |
1.3 一 |
|
混凝土漏斗 |
1.0 一 | ||
|
平板 |
1.0 一 | ||
注:hn∕dn≥3时,表中Ch值应乘以1.1。
4.2.4
浅仓储粮压力(图4.2.4)的标准值应按下列公式计算:
储料顶为平面I储料驴为斜面
储料锥体重心
___J -C
计算蘇面
图4. 2. 4浅仓储檀荷載示意图
计算深度S处,作用于仓壁单位面积上的水平压力标准值按Phk下式(4.2. 4-1) 当储粮计算高度hn大于或等于15m,且仓筒内径dn大于或等于10m时,储粮作
1
计算,
用于仓壁的水平压力除按上式计算外,尚应按式(4.2. 2-1)计算,二者计算去大值。
Phk=k Y S
(4.2.4-1)
2计算深度S处,作用于单位水平面积上的竖向压力标准值PVk按下式计算:
PVk= Y S (4. 2.4-2)
3计算深度S处,储粮作用于仓壁单位面积上的竖向摩擦力标准值Pfk按下式计
Pfk= μ k γ S (4. 2.4-3)
4计算深度S处,储粮作用于仓壁单位周长上的总竖向摩擦力标准值qfk按下式 计算:
qfk=1∕2 kμYS2
4. 2. 5作用于圆形漏斗壁上的储粮压力标准值按下列公式计算:
1漏斗壁单位面积上的法向压力标准值Plm为:
深仓: Pkn=CVPVk(cos2 α +ksin2 α ) (4. 2.5-1)
浅仓: Pkn=PVk(cos2 α +ksin2 α ) (4.2.5-2)
2漏斗壁单位面积上的切向压力标准值Ptk为:
深仓: Ptk=CVPVK(1-k) SinaCOSa (4.2.5-3)
浅仓: Ptk=PVk (1-k) SinaCOSa (4.2.5-4)
式中PVk—储粮作用于单位水平面积上的竖向压力标准值。深仓可取漏斗顶面值,
浅仓可取漏斗顶面与底面的平均值;
α—漏斗壁与水平面的夹角。
4. 2.6作用于筒仓仓顶的吊挂电缆拉力,包括电缆自重、储粮对电缆的摩擦力及电 缆突出物对储粮阻滞而产生的拉力。当电缆为圆截面,且直径无变化,表面无突出 物时,储粮对电缆的摩擦力标准值,应按下列公式计算:
深仓 一τ.=卜项 U —F, i (4.2.6-1)
浅仓 Nk= π /2 kd d μ o k Y hd2 (4. 2.6-2)
式中:Nk——储粮对电缆的摩擦力标准值;
kd——计算系数1.5〜2.0;浅仓取小值,深仓取大值;
d——电缆直径;
hd——电缆在储粮中的长度;
μ 0——储粮对电缆表面的摩擦系数;
PVk——电缆最下端处,储粮作用于单位水平面积上的竖向压力标准值。
4. 3. 1粮食钢板筒仓可按单仓计算地震作用,并应符合下列规定:
1可不考虑粮食对于仓壁的局部作用;
2落地式平底钢板筒仓可不考虑竖向地震作用。
4. 3. 2在计算粮食钢板筒仓的水平地震作用时,重力荷载代表值取储粮总重的80%, 重心应取储粮总重的重心。
4. 3.3粮食钢板筒仓的水平水平地震作用,可采用底部剪力法或振型分解反应谱法 进行计算。
4. 3.4柱子支承的粮食钢板筒仓,使用底部剪力法计算水平地震作用时可采用单质
点体系模型,并符合下列规定:
1单质点位置可设于柱顶;
2仓下支撑结构的自重按30%采用;
3水平地震作用的作用点,位于仓体和储料的质心处;
4仓上建筑的水平地震作用,可按刚性地面上的单质点或多质点体系模型计算, 计算结果应乘以增大系数3,但增大的地震作用效应不应向下部结构传递。
4.3.5落地式平底粮食钢板筒仓的水平地震作用,可采用振型分解反应法,也可采
用下述简化方法进行计算:
1筒仓底部的水平地震作用标准值可按下式计算:
FEk=αmax(Gsk+Gmk) (4.3.5-1)
2水平地震作用对筒仓底部产生的弯矩标准值可按下式计算:
MEk= α max (GSkhS +Gmkhm) ( 4. 3. 5-2)
3沿筒仓高度第i质点分配的水平地震作用标准值可按下式计算:
y 6∖λ∙.
H ■■ ' (4. 3. 5-3)
式中:FEk——筒仓底部的水平地震作用标准值;
αmax—水平地震影响系数最大值,按现行国家标准《建筑抗震设计规范》
GB5011的有关规定进行取值;
G Sk—筒仓自重(包括仓上建筑)的重力荷载代表值;
Gmk——储粮的重力荷载代表值;
MEk——水平地震作用对筒仓底部产生的弯矩标准值;
hs—筒仓自重(包括仓上建筑)的重心高度;
hm——储粮总重的重心高度;
Fik——沿筒仓高度第i质点分配的水平地震作用标准值;
Gik——集中于第i质点的重力荷载代表值;
hi——第i质点的重心高度;
4. 3.6抗震设计烈度为8度和9度时,仓下漏斗与仓壁的连接焊缝或螺栓,应进行竖 向地震作用计算,竖向地震作用系数可分别采用0.1和0.2。
4. 3.7螺栓钢板筒仓仓体可不进行抗震验算,但应采取抗震结构措施。
4. 3.8抗震烈度为7度及以下时,仓下支撑结构与仓上建筑,可不进行抗震验算,但 应满足抗震结构措施要求。
4. 4. 1粮食钢板筒仓结构设计应根据使用过程中在结构上可能出现的荷载,按承载 能力极限状态和正常使用极限状态分别进行荷载效应组合,并取各自的最不利组合 进计设计。
4. 4. 2粮食钢板筒仓按承载能力极限状态设计时,应采用荷载效应的基本组合,荷 载分项系数应按下列规定取值:
1永久荷载分项系数:对结构不利时,取1.2;对结构有利时,一般取1.0;筒 仓抗倾覆计算,取0.9。
2储粮荷载分项系数,取1.3;
3地震作用,取1.3;
4其他可变荷载分项系数,取1.4。
4. 4. 3粮食钢板筒仓按正常使用极限状态设计时,应采用荷载效应短期组合,荷载 分项系数均取1.0。
4.4.4 粮食钢板筒仓按承载能力极限状态设计时,荷载组合系数应按下列规定取用:
1无风荷载参与组合时,取1.0。
2有风荷载参与组合时:
1) 储粮荷载,取1.0;
2) 风荷载,取1.0;
3) 其他可变荷载,取0.6;
4) 地震作用不计。
3 有地震作用参与组合时:
1) 储粮荷载,取0.9;
2) 地震作用,取1.0;
3) 雪荷载,取0.5;
4) 风荷载不计;
5)其它可变荷载:按实际情况考虑时,取1.0;按等效均布荷载时,取0.6。
5. 1. 1粮食钢板筒仓结构应分别按承载能力极限状态和正常使用极限状态进行设 计。
5. 1.2粮食钢板筒仓结构按承载能力极限状态进行设计时,计算内容包括:
1所有结构构件及连接的强度、稳定性计算;
2筒仓整体抗倾覆计算;
3筒仓与基础的锚固计算。
5. 1.3粮食钢板筒仓结构按正常使用极限状态进行设计时,应根据使用要求对结构 构件进行变形验算。
5. 1.4粮食钢板筒仓结构及连接材料的选用及设计指标,应按现行国家标准《钢结 构设计规范》GB50017和《冷弯薄壁型钢结构技术规范》GB50018有关规定执行。
5. 2.1正截锥壳钢板仓顶,可按薄壁结构进行强度及稳定计算。
5. 2.2由斜梁,上、下环梁及钢板组成的正截锥壳仓顶(图5.2.2),不计钢板的 蒙皮作用,应设置支撑或采取其他措施,保证仓顶结构的空间稳定性。仓顶构件内 力可按空间杆系计算。在对称竖向荷载作用下,仓顶构件内力可按下述简化方法计 算:
1斜梁按简支计算,其支座反力分别由上、下环梁承担,上,下环梁按第5.2.3 条计算;
2作用于上环梁的竖向荷载由斜梁平均承担;
3作用于斜梁的测温电缆吊挂荷载,由直接吊挂电缆的斜梁承担。
1—上环素您 下环釁司…斜梁一支撑构件
5.2.3正截锥壳仓顶的上,下环梁可按以下规定计算:
1上环梁应按压、弯、扭构件进行强度和稳定计算。在径向水平推力作用下, 上环梁稳定计算可按本规范第5. 4.4条第1款规定执行;
2下环梁应按拉、弯、扭构件进行强度计算;
3下环梁计算可不考虑与其相连的仓壁共同工作。
5. 2.4斜梁传给下环梁的竖向力,由下环梁均匀传给下部结构。
5. 3. 1深仓仓壁按承载能力极限状态设计时,应计算以下荷载组合:
1作用于仓壁单位面积上的水平压力的基本组合(设计值):
Ph=1. 3Ch Phk (5. 3.1-1)
2作用于仓壁单位周长的竖向压力的基本组合(设计值):
无风荷载参与组合时:
Qv= 1.2qgk+1.3CfQfk+1.4∑ΨiqQik (5. 3.1-2)
有风荷载参与组合时:
qv=1. 2qgk+1. 3 Cfqfk+1.4 × 0.6 ∑ (qwk+qβik) (5.3.1-3)
有地震作用参与组合时:
Qv=1. 2Qgk+1. 3×0.8 Cfqfk+1.3qEk+1.4∑ΨiQQik (5. 3. 1-4)
式中:Ph—作用于仓壁单位面积上的水平压力的基本组合(设计值);
Qv——作用于仓壁单位周长的竖向压力的基本组合(设计值);
Qgk——仓顶及仓上建筑永久荷载作用于仓壁单位周长上的竖向压力标准
值;
Qfk——储粮作用于仓壁单位周长上的总竖向摩擦力标准值;
Qwk——风荷载作用于仓壁单位周长上的竖向压力标准值;
QEk——地震作用于仓壁单位周长上的竖向压力标准值;
QQik——仓顶及仓上建筑可变荷载作用于仓壁单位周长上的竖向压力标准 值;
Ψi——可变荷载的组合系数,按本规范第4. 4.4条规定取值。
5. 3. 2浅仓仓壁按承载能力极限状态设计时,荷载组合可参照本规范第5.3. 1条规定 执行,Cf取1.0。
5.3.3粮食钢板筒仓仓壁无加劲肋时,可按薄膜理论计算其内力,旋转壳体在对称 荷载下的薄膜内力参见附录E;有加劲肋时,可选择下述方法之一进行计算:
1按带肋壳壁结构,采用有限元方法进行计算;
2加劲肋间距不大于1.2m时,采用折算厚度按薄膜理论进行计算;
3按本规范第5.3.5条规定的简化方法进行计算。
5. 3.4焊接粮食钢板筒仓、螺旋卷边粮食钢板筒仓与肋型双壁粮食钢板筒仓,不设 加劲肋时,仓壁可按以下规定进行强度计算:
1在储粮水平压力作用下,按轴心受拉构件进行计算:
σ ʌ ■■■■■: f
上 ■ (5. 3.4-1)
2在竖向压力作用下,按轴心受压构件进行计算
' t (5. 3.4-2)
式中:J——仓壁环向拉应力设计值;
σc——仓壁竖向压应力设计值;
t——被连接钢板的较小厚度;
f——钢材抗拉或抗压强度设计值。
3在水平压力及竖向压力共同作用下,按下式进行折算应力计算:
J =顷 ∣α =C ' (5. 3.4-3)
式中:σ zs ——仓壁折算应力设计值。
σ C与σt取拉应力为正值,压应力为负值。
4仓壁钢板采用对接焊缝拼接时,对接焊缝应按下式进行计算:
(T- * ■■■■■■ E C
(5.3. 4-3)
式中:N——垂直于焊缝长度方向的拉力或压力设计值;
LW——对接焊缝的计算长度;
t——被连接仓壁的较小厚度;
六——对接焊缝抗拉强度设计值;
广C——对接焊缝抗压强度设计值。
5. 3.5粮食钢板筒仓设置加劲肋时,可按下述简化方法进行强度计算:
1仓壁或钢结构框架筒仓的钢带水平方向抗拉强度按本规范(5. 3. 4-1)式计算。
2仓壁为波纹钢板、肋型钢板和钢结构框架式筒仓的保温壁板时,不计算仓壁 承担的竖向压力,全部竖向压力由加劲肋或T型立柱承担;仓壁为焊接平钢板或螺旋 卷边钢板时,取宽为2be的仓壁与加劲肋构成组合构件(图5.3.5),承担竖向压力。
图R3.5组合杓件襪而示意图
注.⅛⅛15r ∏≤t∕2
3加劲肋或加劲肋与仓壁构成的组合构件,按下列公式进行截面强度计算:
N=Qvb
(5.3. 5-1)
(5.3.5-2)
Cr =——二——S f
• L. F
式中:N——加劲肋或组合构件承担的竖向压力设计值;
qv——作用于仓壁单位周长的竖向压力的基本组合(设计值); b—加劲肋中距(弧长);
σ——加劲肋或组合构件截面拉、压应力设计值;
An—加劲肋或组合构件净截面折算面积;
M——竖向压力N对加劲肋或组合构件截面形心的弯矩设计值;
Wn——加劲肋或组合构件折算弹性抵抗矩;
/——钢材抗拉、抗压强度计算值。
5. 3.6加劲肋与仓壁的连接,应按以下规定进行强度计算:
1单位高度仓壁传给加劲肋的竖向力设计值按下式计算:
V=[1. 2Pgk+1. 3CfPfk+(1. 2qgk+1.4 ∑ q<iik)∕hi]b (5. 3. 6-1)
式中:V——单位高度仓壁传给加劲肋的竖向力设计值;
Pgk——仓壁单位面积重力标准值;
qgk——仓顶与仓上建筑永久荷载作用于仓壁单位周长上的竖向压力标准值; qQik—仓顶与仓上建筑可变荷载作用于仓壁单位周长上的竖向压力标准值; hi——计算截面以上仓壁高度。
2当采用角焊缝连接时,按下式计算:
'(5.3.6-2)
式中:Tf—按焊缝有效截面计算,沿焊缝长度方向的平均剪应力;
he——角焊缝有效厚度;
LW——仓壁单位高度内,角焊缝的计算长度;
F —一角焊缝抗拉、抗压或抗剪强度设计值。
3当采用普通螺栓或高强螺栓连接时,按现行国家标准《钢结构设计规范》 GB50017的有关规定进行计算。
5. 3.7粮食钢板筒仓和肋型双壁筒仓在竖向荷载作用下,仓壁或大波纹内壁应按薄 壳弹性稳定理论或下述方法进行稳定计算:
1在竖向轴压力作用下,按下式计算:
σ ⅛ σ = Ii ”
(5.3. 7-1)
_ 1 IOOr....,
(5.3.7-2)
式中:σ c( σ)——仓壁压应力设计值;
σ Cr—受压仓壁的临界应力;
2
E——钢材的弹性模量,取2. 06 × 105N/mm ;
t—仓壁的计算厚度,有加劲肋且间距不大于1.2m时,可取仓壁的折算厚度, 其他情况取仓壁厚度;
R--筒仓半径;
kp——竖向压力下仓壁的稳定系数。
2在竖向压力及储粮水平压力共同作用下,按下式计算:
El
S (5.3. 7-3)
" " ,‘ \ " (5.3. 7-4)
式中:k,P—有内压时仓壁的稳定系数,当k P大于0.5时,取k,p=0.5。
3仓壁局部承受竖向集中力时,应在集中力作用处设置加劲肋,集中力的扩散 角可取30° (图5.3.7)。并按下式验算仓壁的局部稳定:
'"'*=''f (5.3.7-5)
式中:。。一局部压应力;
kp——竖向压力下仓壁的稳定系数。
图S'3.7仓塗集中力承意图
I—仓 St; 2—⅛13ll⅛J
5.3.8无加劲肋的仓壁或仓壁区段(图5.3.8),在水平风荷载的作用下,可按下列 公式验算空仓仓壁的稳定性:
";七 0.S6S7λ(-j- -—
(5.3. 8-1)
(5. 3.8-2)
式中:P w1
P w2 hw一 t一 值;
Pcr
E-η-
所验算仓壁或仓壁区段内的最大风压设计值;
所验算仓壁或仓壁区段内的最小风压设计值;
-所验算仓壁或仓壁区段高度;
仓壁厚度,当所验算仓壁或仓壁区段范围内仓壁厚度变化时,应取最小 一筒仓临界压力值;
钢材的弹性模量; -计算系数。
图丄丄8风我下食壁疏定计算示蠢图 注:t1-t4为所验算仓壁或仓壁区段内仓壁厚度;h1-h4为所验算仓壁或仓壁区段内仓壁高度。
5. 3. 9无加劲肋的螺旋卷边粮食钢板筒仓,仓壁弯卷处(图5. 3.9)可按下式进行抗 弯强度计算:
σ =6a (QW-Qg) /t≤f (5.3.9)
式中:Q W——水平风荷载作用于仓壁单位周长上的竖向拉力设计值;
Qg——永久荷载作用于仓壁单位周长上的竖向压力设计值,分项系数取1. 0; a——卷边的外伸长度;
t—仓壁厚度。
图5.3 9咬口弯卷示就图
5. 3. 10仓壁洞口应进行强度计算,洞口应力可采用有限元法计算,或按下述方法简化计算。
1焊接粮食钢板筒仓仓壁洞口在拉、压力作用下,正方形、矩形洞口应力可参考附录B给 出的数据;
2装配式粮食钢板筒仓仓壁洞口加强框在拉、压力作用下,可简化成闭合框架进行内力分 析。
5. 3. 11焊接粮食钢板筒仓仓壁洞口除应计算洞口边缘的应力外,还必须验算矩形洞口角点的集 中应力,无特殊载荷时,集中应力可近似取洞口边缘应力的3倍-4倍。
5.4.1圆锥漏斗仓底可按以下规定进行强度计算(图5.4.1):
图S.4.1區推漏斗内力计算示意圈
1计算截面I-I处,漏斗壁单位周长的经向拉力设计值:
.V L正W車
心m-∙.∙ M,.W L 詩:" (5. 4. 1-1)
式中:PVk——计算截面处储粮竖向压力标准值;
Wmk—计算截面以下漏斗内储粮重力标准值;
Wgk—计算截面以下漏斗壁重力标准值;
d。一计算截面处漏斗的水平直径;
α—漏斗壁与水平面的夹角;
CV——深仓储粮动态竖向压力修正系数;
Nm——漏斗壁径向拉力设计值。
2计算截面I-I处,漏斗壁单位宽度内的环向拉力设计值应按下式进行计算。
V _
丄in" (5. 4. 1-2)
式中:Pnk—储粮作用于漏斗壁单位面积上的法向压力标准值;
Nt——漏斗壁环向拉力计算值。
3漏斗壁应按下列公式进行强度计算:
1) 单向抗拉强度:
经向: ■ , L (5.4.1-3)
V
f7j = ' ' ■:?; <
环向: (5.4.1-4)
2) 折算应力:
■ (5.4. 1-5)
式中:σzs——折算应力
σ t--漏斗壁环向拉应力;
σm—漏斗壁经向拉应力;
t —漏斗壁钢板厚度。
5.4.2圆锥漏斗仓底与仓壁相交处,应设置环梁(图5.4.2)。环梁与仓壁及漏斗壁 的连接应符合下列规定。
1可采用焊接或螺栓连接;
图5.4.2 IK斗环梁示意图
1—仓壁;£ 一环擊;3—斗壁泌-加劲ft⅛
2当环梁与仓壁及漏斗壁采用螺栓连接时,环梁计算不考虑与之相连的仓壁及 漏斗壁参与工作。
3当环梁与仓壁及漏斗壁采用焊接连接时,环梁计算可考虑与之相连的部分壁 板参与工作,共同工作的壁板范围按下列规定取值。
1) 共同工作的仓壁范围,取0.53:,.•,但不大于15tc;
2) 共同工作的漏斗壁范围,取0.5,∙*∙∙,但不大于15th;
其中:tc、YC——分别为仓壁与环梁相连处的厚度和曲率半径;
th、Yh—分别为漏斗壁与环梁相连处的厚度和曲率半径。
5.4.3环梁上的荷载(图5.4.3),可按下列规定确定:
1由仓壁传来的竖向压力QV及其偏心产生的扭矩Qv6v;
2由漏斗壁传来的经向拉力Nm及其偏心产生的扭矩Nmem(Nm按本规范第5. 4. 1条 确定)。Nm可分解为水平分量NmCQSa及垂直分量NmSina (图5. 4. 3b);
3在环梁高度范围内作用的储粮水平压力Ph可忽略不计。
图5.4一 3环梁荷载及简化图
5. 4.4环梁按承载能力极限状态设计时,应按以下规定进行计算:
1在水平荷载NmCQSa作用下环梁的稳定计算:
Nm CQS α ≤Ncr (5.4. 4-1)
NCr=Q.6
EIy r3
(5. 4. 4-2)
式中:Iy—环梁截面惯性矩;
r—环梁的半径;
NCr——单位长度环梁的临界经向压力值;
Nm——漏斗壁径向拉力设计值;
α—漏斗壁倾角;
E——钢材的弹性模量。
2环梁截面的抗弯、抗扭及抗剪强度计算。
3环梁与仓壁及漏斗壁的连接强度计算。
5.5.1仓下支承结构为钢柱时,柱与环梁应按空间框架进行分析。
5.5.2仓壁必须锚固在下部构件上。采用锚栓锚固时,间距可取1〜2m,锚栓的拉力 应按下式计算:
I M√ ɪ
-EJ - (5.5.2)
式中:T——每个锚栓的拉力设计值;
M——风荷载或地震荷载作用于下部构件顶面的弯矩设计值;
W——筒仓竖向永久荷载设计值,分项系数0.9; d——筒仓直径;
n—锚栓总数,不应少于6。
5. 5. 3筒仓基础计算应符合下列规定:
1仓群下的鳖体基础,应确定空仓、满仓的最不利组合;
2基础边缘处的地基应力不应出现拉应力;
3基础倾斜率不应大于0. 002,平均沉降量不应大于200mm。
6. 1.2仓上建筑的支点宜在仓壁处,不得在斜梁上。若荷载对称,支点也可在仓顶 圆锥台上。较重的仓上建筑或重型设备,宜采用落地支架。
6. 1.2仓顶坡度宜为1 : 5〜1 : 2,不应小于1 : 10;仓顶四周应设围栏,设备廊道、 操作平台栏杆高度不应小于1200mm。
6. 1.3测温电缆应吊挂于钢梁上,不得直接吊挂于仓顶板上。仓顶吊挂设施宜对称 布置。
6. 1. 4仓顶出檐不得小于100mm,且应设垂直滴水,其高度不应小于50mm。仓檐处应 设密封条。有台风影响地区,应采取措施防止雨水倒灌。仓顶板与檩条不得采用外 露螺栓连接。
6. 2.1仓壁为波纹钢板、肋型钢板、焊接钢板时,相邻上下两层壁板的竖向接缝应 错开布置。焊接钢板错开距离不应小于250mm。
6. 2.2波纹钢板和肋型钢板仓壁的搭接缝及连接螺栓孔,均应设密封条、密封圈。
6. 2.3筒仓仓壁设计除满足结构计算要求外,尚应考虑外部环境对钢板的腐蚀及储 粮对仓壁的磨损,并采取相应措施。
6. 2.4竖向加劲肋接头应采用等强度连接。相邻两加劲肋的接头不宜在同一水平高 度上。通至仓顶的加劲肋数量不应少于总数的25%。
6.2.5竖向加劲肋与仓壁的连接应符合下列规定:
1波纹钢板筒仓和肋型钢板筒仓宜采用镀锌螺栓连接;
2螺旋卷边筒仓宜采用高频焊接螺栓连接;
3螺栓直径与数量应经计算确定,直径不宜小于8mm,间距不宜大于200mm;
4焊接连接时,焊缝高度取被焊仓壁较薄钢板的厚度;螺旋卷边仓咬口上下焊 缝长度均不应小于50mm。施焊仓壁外表面的焊痕必须进行防腐处理。
6. 2.6螺旋卷边仓壁的竖向加劲肋应放在仓壁内侧。其它仓壁的竖向加劲肋宜放在 仓壁外侧。加劲肋下部与仓底预埋件应可靠连接。
6. 2.7仓壁内不应设水平支撑、爬梯等附壁装置。
6. 2. 8仓壁下部开设人孔(图6.2. 8)宜设在同一块壁板上,洞口尺寸不宜小于600mm。 人孔门应设内外两层,分别向仓内、外开启。门框应做成整体式,截面应计算确定。 门框与仓壁、门扇的连接,均应采取密封措施。
6. 2.9仓壁下部与仓底(或基础)应可靠锚固,锚固点之间的距离不宜大于2m。
图6.2.8人孔构造示意
1-内门;2-内门框;3-仓壁加劲肋;4-竖向加劲肋;5-外门框;6外门
6. 3.1圆锥漏斗仓底(图6.3. 1)由环梁和斗壁组成。

1 一仓壁*一篇壁t訐~斗壁H-⅛]⅛⅛⅛ f
5一环梁书一靈板仃一斗口支承柱
6. 3.2斗壁可由径向划分的梯形板块组成,每块板在漏斗上口处的长度宜为1.0m。
6. 3.3斗口宜设计为焊接整体结构,其上口直径不宜大于2.0m;下口尺寸应满足工 艺要求。
6. 3.4仓底在装配后内表面应光滑,不得滞留储粮。
6.3.5当采用流化仓底出粮或选用平底仓时,其仓底应按工艺要求设计。
6. 4.1仓下钢支柱截面及间距应由计算确定。支柱与筒壁宜采用缀板连接(图 6.3.1);缀板间距不宜大于1.0m。
6. 4.2钢支柱应设柱间支撑,每个筒仓下不应少于三道且应均匀间隔布置。当柱间 支撑上下两段设置时,应设柱间水平系杆。
6. 4.3仓壁与基础顶面接触处应设泛水板或泛水坡,防止雨水进入仓内。
图6. 4.3泛水示意图
1-仓壁钢板;2-自攻螺钉;3-防水胶垫;4-泛水板;
5-膨胀螺栓;6-竖向加劲肋;7-砂浆抹坡
6. 5. 1当粮食钢板筒仓处于抗震设防地区时,柱间支撑的钢柱脚,应设置抗剪钢板。
6. 5. 2地脚螺栓宜采用有刚性锚板或锚梁的双帽螺栓,受拉、受剪螺栓锚固长度应 满足现行国家标准《混凝土结构设计规范》GB50010的有关规定。
7. 1. 1工艺设计方案应根据储存粮食的特性、使用功能、作业要求、粮食钢板筒仓 总仓容量等条件,经技术经济比较后确定。
7. 1.2粮食钢板筒仓工艺设计内容应包括粮食接收与发放、安全储粮、环境保护与 安全生产。
7. 1.3粮食钢板筒仓数量较多且作业复杂时应设置工作塔,粮食钢板筒仓数量少且 作业简单时,可不设置工作塔,采用提升机塔架。
7. 1.4工艺设备应具备安全适用、高效低耗、操作方便、密封、低破碎、对粮食无 污染等性能。
7. 1. 5工艺设备布置应满足设备安装、操作及维修空间要求。
7. 1.6粮食钢板筒仓底部或仓壁宜开进人孔。
7. 1. 7粮食钢板筒仓单仓容量按下式进行计算:
G=VP o (7.1.7)
式中:G——粮食钢板筒仓单仓容量;
V——单仓有效装粮体积;
P o——粮食的质量密度,应按本规范附录C进行取值。
7. 2. 1粮食接收与发放工艺宜包括以下内容:
1粮食接收包括接卸、输送、磁选、初清、取样、计量、入仓等。
2粮食发放包括出仓、取样、计量、输送等。
7. 2.2主要设备应根据作业要求选择配置输送设备、防分级和降破碎设备、清仓设 备、密封设备、出仓流量控制设备等。
7. 2. 3粮食钢板筒仓进出设备的生产能力应根据作业量、作业时间等因素计算确定。
7. 2.4设备选用宜符合额定生产能力模数,额定模数由50、100、200、300、400、 600、800、1000、1200、1600、2000t∕h等组成(按粮食密度0.75t∕m3计)。
选择的设备应具备安全可靠、高效低耗、操作方便、体积小、噪音低、密闭性能好、 对粮食无污染、破碎率低等性能。
7. 2. 5溜管设计应满足下列要求:
1溜管材料宜采用3mm〜4mm钢板;
2溜管内壁与物料接触面宜设可拆换的耐磨衬板;
3每节溜管长度不宜超过2m,溜管垂直段长度超过4m时宜设缓冲装置。
4溜管的有效截面尺寸,应根据流量计算确定。常用溜管可按照表7.2.5选用;
7. 2. 5溜管有效截面尺寸选用表
|
流量/(t/h) |
50 |
100 |
200 |
300 |
400 |
600 |
|
截面尺寸(mmX mm) |
200×200 |
250×250 |
350×350 |
400×400 |
450×450 |
500×500 |
|
流量 /(t/h)一 |
800 |
1000 一 |
1200 一 |
1600 一 |
2000 一 | |
|
截面尺寸(mmX mm) |
600× 600 |
700×700 |
800×800 |
900×900 |
1000×1000 |
注:1截面尺寸为溜管内净尺寸;圆截面溜管可按相等截面积参照使用。
2溜管内粮食质量密度按照0.75t∕m3计。
5溜管倾角应符合下列规定:
1小麦、大豆、玉米,不小于36° ;
2稻谷,不小于45° ;
3杂质、灰尘,不小于60°。
7. 2.6仓底出粮口设计应符合下列规定:
1出粮孔尺寸应根据出仓流量等因素计算确定;
2出粮孔采用气动或电动闸阀时,同时设手动闸阀。
7. 2.7平底粮食钢板筒仓应配置清仓设备。进出仓作业频繁时,清仓设备宜为固定式。
7. 2. 8直径12m以下粮食钢板筒仓宜采用自流出粮方式。储粮为小麦、大豆、玉米时, 仓底倾角不宜小于40° ;储粮为稻谷时,仓底倾角不应小于45°。
7. 3. 1根据使用功能,粮食钢板筒仓可设机械通风。
7. 3.2机械通风系统应包括仓顶、仓底通风机、通风口、通风道等构成。
7. 3. 3机械通风系统应满足下列要求:
1仓顶通风机宜选用轴流风机,应配备防雨、防雀、放空气回流装置;
2仓下通风机宜采用移动式通风机;
3通风系统的排风能力不小于进风能力;
4仓内风道应布置合理,空气途径比小于1.3;
5空气分配孔板开孔率宜取25%-35%。孔形状及尺寸应能防止粮食颗粒漏入风
道;
6仓内通风道(空气分配器)等要能承受粮食或机械设备荷载。
7. 3.4通风系统主要技术参数可按下列要求确定:
1单仓通风量可按下式计算:
QZ=VPOq (7.3.4-1)
式中:QZ---单仓通风量(m3/h);
q—每小时每吨粮食的通风体积量简称单位通风量,可取4m3/ht-10m3/ht;
V——粮堆质量体积;
P O——粮堆质量密度:
2风道风速按下式计算:
— QF
(7.3. 4-2)
U F— C
360QFF
式中:UF--风道风速(m∕s);主风道风速宜为7m∕s-15m∕s,支风道风速宜为
4m∕s-9m∕s ;
QF—风道通风量(m3∕s);
FF——风道的横截面积(m2)。
3空气分配器的表观风速按下式计算:
U b:
Qb
3600Fb
(7.3.4-3)
式中:U b--表观风速(m∕s);建议控制在0. 2m∕s-0. 5m∕s范围;
Qb——通过空气分配器的风量(m3∕h);
Fb—空气分配器开孔面的表面积(m2)。
4通风机的风量按下式计算:
QZ
Qt=K1 ——-—— (7. 3. 4-4)
n
式中:QT---通风机通风量(m3∕h);
Ki—通风量系数,取1.10-1.16;
n——单个仓筒内风机数量。
5通风机的阻力按下式计算
Hf=K2 (H1+H2) (4.3. 4-5)
式中:HF——通风系统总阻力;
K2——风量系数,取1.10-1. 20;
Hi——气流穿过粮层时的阻力;
H2——除粮层阻力外,整个通风系统的其他阻力。
7. 3. 5粮食钢板筒仓设置熏蒸系统时应满足下列要求:
1熏蒸系统宜采用环流形式;
2采用磷化氢熏蒸时,熏蒸系统应符合现行行业标准《磷化氢环流熏蒸技术规 程》LS∕T1201的有关要求;
3粮食钢板筒仓仓体、进出粮口、通风口等应采取密封措施;
4仓体气密性满足仓内气压从500Pa将至250Pa使用时间不小于40s。
7. 3.6粮食钢板筒仓需设谷物冷却系统时,应作好保温、隔热、防潮、密封处理。 冷却系统设计应满足现行行业标准《谷物冷却机低温储粮技术规程》LS∕T1204的有 关规定。
7. 4. 1粮食钢板筒仓环境保护设计为粉尘控制、噪声控制、有害气体控制。安全生 产设计为防粉尘爆炸、作业场所安全等内容。
7. 4. 2粉尘控制设计应满足下列要求:
1粉尘控制宜采用集中风网和单点除尘设备结合形式;
2应按照使用功能、作业要求进行风网合理组合,风网应进行详细计算;
3输送机的进料口、抛料口等易扬尘的部位均应设吸风口,需要调节风量及平 衡系统压力的吸风口处应设置蝶阀;
4吸风口风速宜取3m/s-5m/s,风管内风速宜取14m/s-18m/s;
5较长水平风管应分段设置观察孔及清灰孔,末端装补风门,清灰孔的孔盖应 易启闭;
6风管弯头的曲率半径宜为风管直径的1倍-2倍,大管径取小值,小管径取大 值;
7风管宜采用机加工制品,风管连接处应加密封垫,直径大于200mm的风管宜 采用法兰连接;
8风网散风口应设防风雨、防雀装置;
9粉尘控制系统应与相关设备连锁,作业设备启动前,粉尘控制系统提前5min 启动;作业设备停机后,粉尘控制系统延迟10min停机。
10清除地面、设备和管道上的集尘,可设置真空清扫系统。
7. 4. 3震动及噪声较大的设备宜集中布置,并采取减震、隔音、消声措施。
7. 4.4粮食钢板筒仓安全生产设计应符合下列规定:
1粮食接收流程前端应设置磁选设备;
2输送设备宜设置跑偏、堵料、失速等检测报警装置;
3全封闭设备应设置泄压口;
4设备上外露的传动件,应加设安全防护罩;
5粮食钢板筒仓进出粮作业时,仓顶通风口应开启,保证仓内外气压平衡;
6粮食钢板筒仓气密试验应采用仓内正压作业模式;
7作业场所、安全通道的设置,应符合现行行业标准《粮食仓库安全操作规程》 LS1206的规定;
8粮食钢板筒仓设计文件中,应对安全生产、技术管理等相关内容作必要说明。
8. 1. 1粮食钢板筒仓电力负荷宜为三级负荷。对于中转任务繁重的港口和重要的中 转库,可按二级负荷设计。
8. 1.2粮食钢板筒仓粉尘爆炸危险区域划分、电气设备选择、配电线路防护要求均 应符合现行国家标准《爆炸和火灾危险环境电力装置设计规范》GB50058和《粮食 加工、储运系统粉尘防爆安全规程》GB 17440的规定。
8. 1.3电气设备、配电线路宜在非爆炸危险区域或爆炸危险性较小的环境设置和敷 设,且应采取防尘、防鼠害及安全防护等措施。
8. 1.4粮食钢板筒仓设置熏蒸系统时,仓内电气设备应采取防熏蒸腐蚀措施。
8. 2. 1配电线路的选择应符合下列规定:
1配电线路应选用铜芯绝缘导线或铜芯电缆,其额定电压不应低干线路的工作 电压,且导线不应低于0.45∕0.75kV,电缆不应低于0. 6/1kV;
2非粉尘爆炸性危险区域内配电线路最小截面:动力、照明线路不应小于
1. 5mm2;控制线路不应小于1.0mm2;
3粉尘爆炸性危险区域内配电线路的选择应符合现行国家标准《爆炸和火灾危 险环境电力装置设计规范》GB50058的有关规定;
4采用电缆桥架敷设时,宜采用阻燃电缆,移动式电气设备线路应采用YC或YCW 橡胶电缆。
8. 2.2配电线路的保护应符合下列规定:
1应根据具体工程要求装设短路保护、过负荷保护、接地保护、过电压及欠电 压保护,用于切断供电电源或发出报警信号;
2上下级保护电器的动作应具有选择性,各级之间应能协调配合;
3对电动机、电梯等用电设备配电线路的保护,除应符合本章要求外,尚应符 合现行国家标准《通用用电设备配电设计规范》GB50055的规定。
8. 2.3配电线路应采用下列敷设方式:
1 电缆宜采用电缆桥架敷设;
2穿管敷设时,保护管应采用低压流体输送用焊管;
3电气线路在穿越不同防爆活防火分区之间的墙体及楼板时,应采用非可燃性 填料严密堵塞。
8. 3. 1粮食钢板筒仓的照明设计应符合现行国家标准《建筑照明设计标准》GB 50034 的有关规定。照度推荐值应符合规范附录F的规定。
8. 3.2粮食钢板筒仓照明应采用高效、节能光源和高效灯具。粉尘爆炸性危险区域 应采用粉尘防爆照明灯具。
8. 3.3粮食钢板筒仓应急照明的设置应符合现行国家标准《建筑设计防火规范》 GB50016的有关规定。
8. 3.4工作塔各层、仓上、仓下等照明宜分别采用集中控制方式,并按使用条件和 天然采光状况采取分区、分组控制措施。
8. 4. 1粮食钢板筒仓可根据需要设电气控制系统。
8. 4. 2电气控制系统应满足工艺作业要求,根据作业特点确定技术方案及设备选型。
8. 4. 3电气控制系统应具备以下功能:
1对用电设备提供安全保护;
2用电设备及生产作业线的联锁;
3紧急停止操作和故障报警;
4现场手动操作;
5显示工艺流程状况、设备运行状态及运行参数。
8. 4.4粮食钢板筒仓应设料位传感器,工艺设备应设安全检测传感器件。
8. 5. 1粮食钢板筒仓可根据储粮需要设粮情测控系统。粮情测控系统应符合现行行 业标准《粮情测控系统》LS/T1203的有关规定。
8. 5. 2粮情测控系统应符合下列要求:
1测温范围:-40°C〜60°C;测温精度:±1°C;
2测湿范围:10%RH〜99%RH;测湿精度:±3%RH;
3自动巡回检测、手动定仓定点检测、超限报警等,且能自动控制通风及相关 设备;
4具备中文打印、制表功能;
5防水、防尘、仓内装置防磷化氢等腐蚀;
6有效的防雷击措施。
8.5.3测温电缆宜对称布置,测温电缆水平问距不宜大于5.0m;测温点宜垂直方向 等距布置,间距宜为1.5〜3.0m;测温电缆与仓壁间距不宜大于0.3m〜0.5m。
8. 5.4仓内吊装的电缆及吊挂装置应能承受出仓时粮食流动所产生的拉力。
8. 6. 1粮食钢板筒仓防雷设计应符合现行国家标准《建筑物防雷设计规范》GB 50057 中第二类防雷建筑物的防雷要求。
8. 6.2粮食钢板筒仓宜利用仓顶围栏与仓上通廊作接闪器。不在接闪器保护范围内 的仓顶工艺设备应设置避雷针保护,且设备外露金属部分应与仓顶防雷装置电气连 接。
8. 6.3粮食钢板筒仓可采用镀锌圆管或扁钢专设引下线。圆钢直径不应小于8mm。扁 钢截面不应小于48mm2,厚度不应小于4mm。每个筒仓引下线不应少于2根,间距不应 大于18m,且应对称布置。
8. 6.4粮食钢板筒仓宜利用基础钢筋作为接地装置。
8. 6.5所有进入建筑物的外来导电物应在防雷界面处做等电位连接。电气系统和电 子信息系统由室外引来的电缆线路宜设置适配的电涌保护器。
8. 6.6建筑物内电气装置外露可导电部分应分别做保护接地。粉尘爆炸危险区域内 设备、金属构架、管道应做防静电接地。
8. 6.7防直击雷接地宜和防雷感应、防静电、电气设备、信息系统等接地公用接地 装置,其接地电阻应满足其中最小值的要求。
9. 0. 1粮食钢板筒仓仓内、仓上栈桥、仓下地道内不宜设消防灭火设施。
9. 0.2封闭工作塔各层应设室内消火栓,消防给水宜采用临时高压给水系统,室内 消防用水量可按10L∕s计。
9. 0.3粮食钢板筒仓工作塔各层、筒下层应按现行国家标准《建筑灭火器配置设计 规范》GB50140的有关规定配置灭火器。
9. 0.4严寒地区的室内消防给水系统可采用干式系统,系统最高点应设自动排气装 置,并应有快速启动消防设备的措施。
9. 0.5粮食钢板筒仓的消防除应符合本规范的规定外,尚应符合现行国家标准《建 筑设计防火规范》GBJ50016的有关规定。
A. 1. 1粮食钢板筒仓是具有巨大可变荷载的构筑物,在施工及使用过程中,必须进 行沉降观测,严格控制其沉降量。筒仓的沉降观测应按下述要求进行:
1设置水准基点:在筒仓周围20m以外选择地基可靠(不是回填土、不靠近树木 或新建筑物、不受车辆扰动)透视良好的地点,按图A. 1.1所示做水准基点。若库区 内有固定的市政建设测量水准点,可只设一个水推基点,否则应设三个水准基点, 自成体系,以便校核。
Cl5縄霆土
黄慨4
逑头曲T一改警球株
图ʌ. L, !水椎―法
2设置沉降观测点:观测点可用Φ16钢筋头,在勒脚部位焊接于钢柱或筒壁上, 观测点的数量及平面布置,应能够全面反映筒仓的沉降情况。
A. 1.2施工阶段沉降观测:在所有沉降观测点安设牢固后,即应进行第一次沉降观 测并记录,施工完成后进行第二次观测记录。所有沉降观测记录资料必须妥善保存。
A. 2. 1粮食钢板筒仓设计,应根据筒仓装粮高度及地基基础情况,提出合理的试装 粮要求。筒仓的试装粮可参照下列要求进行:
1试装粮顺序:试装粮可分为四或三个阶段进行,每阶段应按均匀对称的原则 各仓依次装粮,参见图A.2.1。各仓全部装载完毕为完成一阶段装粮。
图Λ. 2.1试轶粮厥序示意囲
2试装粮数量:试装粮分四个阶段装满时,各阶段装粮数量宜依次为50%、20%、 20%及10%。试装粮分三个阶段装满时,各阶段装粮数量宜依次为60%、30%及10%。
3装粮静置时间:每阶段装粮完成后,应静置一定时间,前两个阶段装粮后静 置时间不少于1个月,最后一个阶段装粮后静置时间不少于2个月。
4沉降观测:在试装粮前,首先应将各沉降观测点全部观测一次并记录。在每 阶段装粮前,也应将各沉降观测点全部观测一次,装粮完成后,再观测一次。在静 置期间,每5天进行一次沉降观测,当观测结果符合下列要求时,方可进行下一阶段 操作。
1) 最后10天沉降量不大于3mm,否则应延长静置时间至满足要求为止。
2) 沿构筑物长、宽两个方向由于不均匀沉降所产生的倾斜度不应大于2%, 否则应用控制荷载的方法加以纠正。
3) 观察筒库的敏感部位(筒上层、筒下层、门窗洞口、连接节点等)有无出 现不允许的变形等异常情况,应有专人负责观测并记录。
5试装粮装满并满足本条第3和第4款的要求后,可进行出粮卸载,出粮应按与 装粮相反步骤进行。
6试装粮满后,应将全部观测记录资料提交给设计单位,以确认可否正式投产。
A. 3.1筒库正式投产后,原则上应对称、平衡、均匀装卸粮,避免长期单侧满载。 在开始使用两年内,应每隔三至六个月进行一次沉降观测。
A. 3. 2沉降观测记录列表格式可按表A. 3.2进行填写。
表A. 3. 2沉降观测记录表
|
日M |
观测H |
.∣"'1 标高 |
2JJJ |
t√:'"J |
沉降 |
累计 沉降 |
与前期 相距天数 |
袤卸粮 变化i己地 |
观测L 签名 |
B. 0.1焊接粮食钢板筒仓仓壁洞口形式为正方形或矩形,正方形、矩形洞口周边在 拉、压力作用下应力参数(图B.0. 1)应符合表B. 0. 1-1—表 B.0. 1-3的规定。
y
图B.0. 1洞口应力参数示意图
α——作用力P与洞口中心水平轴的夹角;
θ ——洞口周边各点与洞口中心水平轴的夹角;
σ。——与洞口周边法线正交的洞边应力。
表B.0. 1-1当α = π /2时正方形洞口的σ θ/p值
|
______________θ______________ |
_________σ θ∕p________ |
______________θ______________ |
_________σ θ∕p_________ |
|
0 |
1. 616 |
50 |
0.265 |
|
15 |
1. 802 |
60 |
-0. 702 |
|
30 |
1. 932 |
75 |
-0. 901 |
|
40 |
4. 230 |
90 |
-0. 871 |
|
_________45_________ |
5. 763 |
表B.0. 1-2当a∕b=5的矩形洞口条件下σ θ/p值
|
θ |
α =0 |
α =90° |
θ |
α =0 |
α =90° |
|
0 |
--0.768 |
2.420 |
90 |
1.192 |
-0.940 |
|
20 |
-0.152 |
8.050 |
140 |
1.558 |
-0.644 |
|
25 |
2.692 |
7.030 |
150 |
2.812 |
1. 344 |
|
30 |
2.812 |
1. 344 |
160 |
-0. 152 |
8.050 |
|
40 |
1. 558 |
-0.644 |
180 |
-0.768 |
2.420 |
|
表 B.0. 1-3 当 a∕bM3.2 |
的矩形洞口条, |
件下σ θ∕p值 | |||
|
θ |
α =0 |
α =90° |
θ 一 |
α =0 |
α =90° |
|
0 |
--0.770 |
2. 152 |
30 |
2.610 |
5. 512 |
|
10 |
-0.807 |
2. 520 |
35 |
3.181 | |
|
20 |
-0.686 |
4.257 |
40 |
2.892 |
-0.198 |
|
25 |
6.204 |
90 |
1.342 |
-0.980 | |
表B主要粮食散料的物理特性参数
|
散料名称 |
重力密度Y (kN∕m3) |
质量密度P o (kg∕m3) |
内摩擦角Φ (° ) |
_____摩擦系数μ_____ | |
|
对混凝土板 |
对钢板 | ||||
|
稻谷 |
6.0 一 |
550 一 |
35 一 |
0. 50 一 |
0.35 一 |
|
大米 |
8.5 一 |
790 一 |
30 一 |
0.42 一 |
0.30 一 |
|
玉米 |
778 |
730 |
28 |
0^2 |
0^2 |
|
小麦 |
8.0 一 |
750 一 |
25 一 |
0.40 一 |
0.30 一 |
|
大豆 - |
775 |
710 |
25 |
0^0 |
0^0 |
|
面粉 |
6.0 一 |
600 一 |
40 一 |
0.40 一 |
0.30 一 |
|
葵花籽 一 |
5T5 |
- |
30 |
0^0 |
0^0 |
|
大麦 |
6.5 |
- |
27 |
0^0 |
0^0 |
|
麸皮 一 |
4.0 一 |
- |
40 一 |
0. 30 一 |
0.30 一 |
注:质量密度用于仓容计算。
D. 0. 1 储粮荷载计算系数 ξ =cos2 α+ksin2 α , k=tg (45° -φ∕2)和 λ= (1-e-μ KSZP ) 取值表 D.0.1-1—D.0.1-2o
表D. 0.1-1 ξ =cos2 CL +ksin2 CL , k=tan2 (45° - φ /2)值
|
釦 |
25 |
3。 |
35 |
4Q |
45 |
5。 | |
|
_________________站=对皿5』-叫2)的值_______________ | |||||||
|
。一竺 |
。一 4QE |
CX 333 |
⅜λ gɪɪ |
CL 217 |
⅜k LTiZ |
0. 13W | |
|
I 35 40 42 44 45 46 48 50 51 56 58 60 62 64 65 66 68 70 |
0.9 0 8T≡ 0. S32 0 789 0.77S 0.754 0. 745 0.736 0. 719 0 701 0. 6S⅛ 0.666 0.65S 0 649 0. 633 0 617 0. ∞2 0 5M 0 . 581 0 574 0 . 561 0 5.&0 |
0. 893 0. 852 0. SOS 0. 755 0. 734 0.713 0. 703 0. 69B 0. 67Ξ 0. 651 0. 631 0.611 0. 601 0. 592 0. 573 0. 555 0. 537 Q. 520 0. 512 Q. 504 0. 490 0. 476 |
C- SSl 0. S33 0.731 D- 725 0. 701 0. 678 0. &67 0. 655 0. 632 0. 60S 0„5B6 OL 563 0. 552 OL 5⅞Ξ OL 5Ξ0 0. 500 OL 4B0 D- 461 0. 452 D- 443 0. 426 0.412 |
0.869 0. 818 0.760 0. 699 0. 673 0.648 0. 636 0. 6Ξ3 0. 598 Q- 57Ξ 0. 547 0. 523 0.511 0. 499 0. 476 0. 453 0. 431 0. 411 0. 40L 0. 391 0. 373 0. 356 |
0. 350 0. S04 0.. 74Ξ 0. 677 0. 650 0. 622 0. 609 0.595 0. 56S 0. 540 0. 514 0. 4S7 0. 475 0. 462 0. 437 0. 413 0. 3-B9 Q. S67 0. 357 0. 3饕 0. 327 0. 309 |
O- 852 O- 793 0. 727 0. 657 0.629 0.600 0. 5S6 0.. 571 0. 543 0. 513 0. 48€ O- 457 0. 444 O- 430 0. 404 0.378 0. 3S4 O- 3S0 CL 320 O- 308 0.287 O- 265 |
0. B45 0. 7S3 0. 715 0. 642 0. 612 0. 581 0. 566 0. 551 0. 521 0. 491 0. 432 0. 418 0. 404 0. 376 0. 376 0. 349 0. 324 0. 299 0. 287 0. 276 0.254 0. 234 |
表 D.0. 1-2 λ= (1-e-"Eρ )值表
|
而S |
Λ |
*施/ P |
Λ |
心S |
A |
λ | |
|
0.01 |
0.010 |
0. 49 |
0, 3S7 |
0, 97 |
0.621 |
L 90 |
0. SsO |
|
0.02 |
0. 020 |
0. 50 |
0. 393 |
0. 9S |
0.625 |
L 92 |
0. S53 |
|
0.03 |
0, 030 |
O- 51 |
0 . 399 |
0. 99 |
0.62S |
L 94 |
Q. 856 |
|
0.04 |
0. 039 |
0. S2 |
0. 405 |
LOO |
0. 632 |
1. 96 |
0. S59 |
|
0.05 |
CL 049 |
O- 53 |
0.411 |
1.02 |
O- 639 |
Ir 98 |
0, S62 |
|
Oo6 |
0. 053 |
0. 54 |
0. 117 |
1. 04 |
O. G17 |
2.00 |
0. 865 |
|
0,07 |
0.0β3 |
O- 55 |
0; 423 |
IBO6 |
O- 654 |
2.05 |
0, 871 |
|
OiOS |
0. 077 |
0. 56 |
Oa 129 |
LOS |
0. 660 |
2. IO |
0. S78 |
|
0. 09 |
CL 086 |
0. 57 |
0. 432 |
L 10 |
0667 |
2.14 |
0. SS4 |
|
Ok 10 |
CL 095 |
Oa 38 |
OS AIQ |
1. 12 |
0. 674 |
2. 05 |
0.S71 |
|
0.11 |
0.104 |
(K 59 |
0. 446 |
1. 14 |
0. 6S0 |
2. 10 |
0∙ 87δ |
|
0.12 |
(L 113 |
0.60 |
0. 451 |
1. 16 |
0. 687 |
2. 15 |
CksS4 |
|
0.13 |
0.122 |
OB 61 |
0. 457 |
L 18 |
0,693 |
2. 35 |
0. 905 |
|
0,11 |
0,131 |
0.62 |
0.462 |
1,20 |
0.699 |
2,40 |
Ck 909 |
|
0. 15 |
0. 139 |
0. 63 |
0.467 |
1. 22 |
0. 70S |
2. 45 |
0.914 |
|
Oi IG |
0.148 |
0. 61 |
0. 473 |
L 24 |
0.711 |
2. 50 |
O- 918 |
|
0. 17 |
0. 156 |
0. 65 |
0. 478 |
LΞ6 |
0, 716 |
2. 55 |
0. 922 |
|
Or 18 |
OT165 |
O- 65 |
OB 483 |
1.2S |
O- 722 |
2. 60 |
0, 926 |
|
0.19 |
0.173 |
0, 67 |
0.483 |
1.30 |
0, 727 |
2, 65 |
0. 929 |
|
0, 20 |
0. XSl |
OBS |
0. 193 |
0,32 |
0. 733 |
2.70 |
0. 933 |
|
0. 21 |
0.1S9 |
0. 69 |
Oi 193 |
1.34 |
0.753 |
2. 75 |
0, 939 |
|
0.22 |
0.197 |
0. 70 |
0. 593 |
L 36 |
0. 743 |
2. BO |
0. 939 |
|
0.23 |
Ck 205 |
Oa 71 |
0.508 |
1.3S |
OJ 7IS |
N 85 |
0. 942 |
|
0.24 |
0.S13 |
0. 72 |
0. 513 |
1. 40 |
0. 753 |
2.90 |
“ 945 |
|
0.25 |
0.211 |
OB 73 |
0. 518 |
1.42 |
0. 75S |
2.95 |
0. 948 |
|
0.26 0. Ξ7 |
O. 2,Ξ9 0.237 |
0. 74 0. 75 |
0.523 0. 528 |
1. 44 L4S |
0. 763 0. 768 |
3.00 3. 10 |
0. 950 0. 955 |
|
0. Ξ8 |
0.244 |
O- 75 |
0.532 |
1.48 |
0. 772 |
3. 20 |
0. 959 |
|
0. Ξ9 |
0.25Ξ |
0. 77 |
O- 537 |
1. 50 |
0. 777 |
3. 30 |
0. 963 |
|
0.30 |
O. 259 |
0. 78 |
0.542 |
L 52 |
0. 781 |
3.40 |
0. 967 |
|
0.31 |
O.Ξ6I |
0. 79 |
0. 546 |
1.54 |
0. 786 |
3. M |
0. 970 |
|
0. 3Ξ |
0.214 |
0. SO |
0. 551 |
1. æ |
0. 790 |
3. 60 |
0. 973 |
|
0.33 |
O. 281 |
0.81 |
0.555 |
L 58 |
0. 734 |
3. 70 |
0. 975 |
|
0.34 |
O. 2SS |
0. 82 |
0.559 |
1. 60 |
0. 798 |
3. SO |
0. 978 |
|
0.35 |
0.295 |
0. 83 |
0. 561 |
L62 |
0. 802 |
3.90 |
OL 980 |
|
0.36 |
O. 302 |
0. 84 |
0.568 |
1. 64 |
0. 806 |
4.00 |
0. 982 |
|
0.37 |
O. 39⅛ |
0. 85 |
0.573 |
1. 60 |
0. 798 |
3. SO |
0. 978 |
|
0.38 |
O. 316 |
0. 86 |
0.577 |
L 62 |
0. 80S |
3.90 |
0. 980 |
|
0.39 |
O. 3勢 |
0. 87 |
0.581 |
1. 64 |
0. 806 |
4.00 |
0.. 982 |
|
0.40 |
O. 3釦 |
0. 88 |
0.585 |
1. 72 |
0. 821 |
8.00 |
1. 00 |
|
0. 41 |
0. 336 |
0. 89 |
0 . 589 |
1. 74 |
0. 824 | ||
|
0.42 |
0. 343 |
0. 90 |
0.593 |
1.. 76 |
0. 8Ξ8 | ||
|
0.43 |
0. 349 |
0.91 |
0.597 |
1.7B |
0. 831 | ||
|
0.44 |
0. 3.&6 |
0.掩 |
0.601 |
1.B□ |
0. 835 | ||
|
0.45 |
0. 362 |
0. 93 |
0.605 |
0. 82 |
0. 838 | ||
|
0.46 |
0. 369 |
0. 94 |
0 . 699 |
1.84 |
0. 841 | ||
|
0.47 |
0. 375 |
0. 95 |
0.613 |
L關 |
0. 844 | ||
|
0.48 |
OLSSl |
0. 96 |
0. 617 |
1. S8 |
0. 847 |
附录E旋转壳体在对称荷载下的薄膜内力
盘E IS转売停芭对暢荷截下的薄鳳內力
ItlEE
|
荷,类笙 |
姫向力NIJ策拽为正) | |
|
it. |
g/cosactga |
■ ≡⅛(j~7-) |
|
肥料it力 |
削心 |
学",舗f怦 -储]}号Y(苇T)的 |
注:1 Ye为仓壁材料重力密度;ξ为系数,ξ=cos2α+ksin2α; n为系数,n=l1/l2; pvl、pv2分别为储
粮作用与漏斗底部及顶部单位面积上的竖向压力;t为旋转壳的厚度。
2各项荷载均以图示方向为正。
表F照度推荐值
|
场所名称 |
参考平面及其高度 |
照度(lx) |
备注 |
|
封闭式仓上建筑 |
地面 |
30 〜75 | |
|
开敞式仓上建筑 |
地面 |
5〜15 | |
|
筒下层 |
地面 |
30 〜75 | |
|
工作塔 |
地面 |
30 〜75 | |
|
楼梯间 |
地面 |
13 | |
|
控制室 |
0.75m水平面 |
300〜500 | |
|
配电室 |
0.75m水平面 |
200 |
1为便于在执行本规范条文时区别对待,对于要求严格程度不同的用词说明如下:
1) 表示很严格,非这样做不可的用词:
正面词采用“必须”,反面词采用“严禁”;
2) 表示严格,在正常情况下均应这样做的用词:
正面词采用“应”,反面词采用“不应”或“不得”;
3) 表示允许稍有选择,在条件许可时首先应这样做的用词:
正面同采用“宜”,反面同采用“不宜”;
4) 表示有选择,在一定条件下可以这样做的,采用“可”。
2条文中指明应按其他有关标准执行的写法为“应符合……规定”或“应按……执行”。
《建筑结构荷载规范(2006版)》GB50009
《混凝土结构设计规范》GB50010
《建筑抗震设计规范》GB50011
《建筑设计防火规范》GB50016
《钢结构设计规范》GB50017
《冷弯薄壁型钢结构技术规范》GB50018
《建筑照明设计标准》GB50034
《通用用电设备配电设计规范》GB50055
《建筑物防雷设计规范》GB50057
《爆炸和火灾危险环境电力装置设计规范》GB50058
《建筑灭火器配置设计规范》GB50140
《粮食加工、储运系统粉尘防爆安全规程》GB17440
《磷化氢环流熏蒸技术规程》LS/T1201
《谷物冷却机低温储粮技术规程》LS/T1204
《粮食仓库安全操作规程》LS1206
《粮情测控系统》LS/T1203
中华人民共和国国家标准
GB 50322—2001
条文说明
《粮食钢板筒仓设计规范》GB50322-2011,经住房和城乡建设部2011年7月 26日以第1097号公告批准发布。
为便于广大设计、施工、科研、学校等单位有关人员在使用本规范时能正确理 解和执行条文规定,《粮食钢板筒仓设计规范》编制组按章、节、条顺序编制了本规 范的条文说明,对条文规定的目的、依据以及执行中需要注意的有关事项进行了说 明。但是,本条文说明不具备与标准正文同等的法律效力,仅供使用者作为理解和 把握标准规定的参考。
3. 1 布置原则二二二二二二二二二二二二二二二二二二二二二二二二二二二二二二:50
4 荷载与荷载,薮应组合二二二二二二二二二二二二二二二二二二二二二二二二二二 52
4.2 粮食荷载:二二二二二二二二二二二二二二二二二二二二二二二二二二二二二二 52
5. 1 基本规定二:二二二二二二二二二二二二二二二二二二二二二二二二二二二二二 55
5. 3 仓壁二二二二二二二二二二二二二二二二二二二二二二二二二二二二二二二 I 55
5. 4 仓底二二二二二二二二二二二二二二二二二二二二二二二二二二二二二二二 I 58
5. 5 支承结构与'基础二二二二二二二二二二二二二二二二二二二二二二二二二二二 58
6. 2 仓壁:二二二二二二二二二二二二二二二二二二二二二二二二二二二二二二二二 60
6. 3 仓底:二二二二二二二二二二二二二二二二二二二二二二二二二二二二二二二二 60
6.5 抗震结构.............二二二二二二二二二二二二二二二二二二二二二二二二二二二 61
7. 1 一般规定二:二二二二二二二二二二二二二二二二二二二二二二二二二二二二二 62
1.0.1在我国用薄钢板装配或卷制而成的钢板筒仓,是近二十多年引进、发展起来 的新技术。粮食钢板筒仓具有自重轻、建设工期短、便于机械化生产等优点,在粮 食、食品、饲料、轻工等行业已广泛使用。
2000年首次编制了《粮食钢板筒仓设计规范》GB50322-2001,在使用过程中, 发生过钢板筒仓变形、开裂、倒塌等事故。为使粮食钢板筒仓技术健康发展。做到 安全可靠、技术先进、经济合理,在总结十多年粮食钢板筒仓的建设实践和建设经 验,参考国外有关标准、规范和技术资料,在原规范基础上特修订本规范。
1.0.2本条说明本规范的适用范围,适用于平面形状为圆形且中心装、卸料的粮食 钢板筒仓设计,包括粮食钢板筒仓的建筑、结构设计、粮食进出仓工艺、储粮工艺、 电气及粮情测控等相关专业的设计。
粮食钢板筒仓为薄壁结构,径厚比大,稳定性差,在工程实践中已经发生过由 于偏心卸粮,在粮食流动过程中产生偏心荷载,造成仓体失稳倒塌事故。偏心卸料 对筒仓的偏心荷载,目前还没有比较成熟的计算方法。工艺要求必须设置多点进、 出料口时,应特别注意对称、等流量布置,并采取措施防止有的料口畅通,有的料 口堵塞,形成偏心进、出料,致使仓壁偏心受载。
1.0.3影响粮食钢板筒仓使用寿命的因素很多。为了对粮食钢板筒仓的设计、制作 和使用有一个基本质量要求,在项目可研阶段,对粮食钢板筒仓进行评估、经济分 析时有所依据,本条提出的正常维护条件下,粮食钢板筒仓的工作寿命不少于25年。 理由如下:①根据美国金属学会《金属手册》所提供的资料进行计算;②经过对国 内不同地区的99个粮食钢板筒仓的调研;③对国外一些粮食钢板筒仓的调查资料分 析统计后得出的。我国1982年间建造的一批装配式波纹钢板筒仓,从目前的使用状 况分析,其使用寿命不止25年,本条提出的年限是应该达到的。
在现行国家标准《建筑结构可靠度设计统一标准》GB50068中,对普通房屋建筑 和构筑物规定结构的设计工作寿命为50年。目前我国粮食钢板筒仓使用时间最长的 还不到30年,为节省一次性投资,这种薄壁钢板一般未增加防腐蚀和摩擦损耗厚度 (螺旋卷边机可成型的最大钢板厚度为4mm),其工作寿命不能冒然定为50年。粮食 钢板筒仓可局部拆换和补焊,因此提出粮食钢板筒仓工作寿命不应少于25年,符合 现行国家标准《建筑结构可靠度设计统一标准》GB50068中“易于替换的结构构件 的设计工作寿命为25年”的规定。
1.0.4粮食钢板筒仓结构的安全等级、抗震设防类别、耐火等级是根据现行国家标 准《建筑结构可靠度设计统一标准》GB50068、《建筑工程抗震设防分类标准》GB 50223 和《建筑设计防火规范》GBJ50016确定的。
1.0.5粮食钢板筒仓虽然可在工厂制作构件,现场组装,但不同地点建设的粮食钢 板筒仓具有明显个别差异特征,是构筑物,也是建设工程,不是工业产品(各产品 具有统一品质特征)。目前存在一些无相关设计资质的企业既设计又制作、安装的 现象,不符合我国基本建设程序规定,也为粮食钢板筒仓工程留下安全隐患。
3. 1. 2无论哪种方法制作的粮食钢板筒仓,在施工时都需有施工机具及操作必需的 工作面,因此钢板群仓的单仓之间应留有间距,一般为500mm左右,另外钢板群仓的 单仓之间要满足使用过程中维修通道要求,不应小于500mm。
当筒仓采用独立基础时,间距应满足基础宽度要求。如受场地限制,基础设计 也可采取措施,压缩仓间间距。
落地式平底仓,一般由中部地道自流出粮,沿地道出粮口与仓壁间积存粮食, 需要用大型机械清仓设备入仓作业。清仓设备入仓时需要足够的间隙或转弯半径。 地下出粮输送设备产量较大,工艺设计常采用装载机入仓进行清仓作业,此时要求 沿地道方向间距7m。当场地受限制,沿地道方向的两个门不能同时满足设备进仓作 业时,必须保证一个门前有足够的距离。根据使用情况的调查,业主认为装载机不 宜入仓作业,应选用可拆卸的旋转刮板机、绞龙或其他清仓设备。不同的设备入仓 所需的距离不同,仓间净距应满足所采用的清仓设备操作要求。
3. 1.3、3. 1.4粮食钢板筒仓的自重相对较轻,粮食荷载占主导地位。由于粮食的空、 满仓荷载变化将引起地基变形,导致各单体构筑物的相对位移。因此设计各单体构 筑物之间连接栈桥、连廊、输送地道时,应考虑因地基变形引起各单体构筑物之间 的相对位移。输送地道应设置沉降缝;连接单体构筑物的架空栈桥、连廊的支承处, 还应考虑相对水平位移。相对水平位移值Δ μ定为不小于单体构筑物高度的四百分 之一,是与基础倾斜率不大于0.002相协调的。
3.1.5由于粮食荷载自重很大,除建在基岩上的粮食钢板仓外,地基都会因装、卸 粮食产生变形,为避免首次装粮时地基产生过大的压缩变形,在设计文件中应根据 筒仓容量和地基条件提出首次装卸粮的要求,如分次装粮,每次装粮后的允许沉降 量、下次装粮条件等。控制每次地基沉降量,确保使用安全。总结筒仓首次装粮过 程中所发生的事故,往往是在装粮最后阶段出现。这主要因为在最后阶段地基接近 满载时,可能出现较大的变形所致。因此“筒仓沉降观测及试装粮压仓”中强调了 最后阶段装粮应控制在10%;特别是软弱土质地区更应密切观察,以免发生事故。为 了缩短试装粮时间,可根据筒仓装粮高度及地基基础情况,减少装粮次数,这时可 增加第一次装粮数量;但是应当注意,就在这一阶段内装粮,各个筒仓也应按顺序 逐步循环装粮,以免一个仓一次受载过大。
3. 2.2粮食钢板筒仓为薄壁结构,尽可能减少仓上建筑作用于筒仓的各种荷载。仓 上设备及操作检修平台应优先考虑采用敞开的轻钢结构,以减少仓上结构自重及风 荷载。
3. 2.3直径不大于6m的筒仓仓顶,无较大荷载时,可直接采用钢板支承于仓顶的上 下环梁上,形成正截锥壳仓顶。直径大于6m的筒仓仓顶,荷载较大,若采用正截锥 壳仓顶,会使钢板过厚而不经济,故宜设置斜梁支承于仓顶的上下环梁上,形成正 截锥空间杆系仓顶结构。
3. 2.4简仓仓壁为波纹钢板、螺旋卷边钢板、肋型钢板时,涂漆困难,应采用热镀 锌钢板或合金钢板,以保证筒仓的工作寿命。根据目前我国粮食钢板筒仓的实际建 设及钢板生产供应情况,当有可靠技术参数时,也可采用其他类型钢板。
3. 2.5直径12m以下的钢板筒仓,采用架空的平底填坡或锥斗仓底,有利于出粮的机 械化操作;直径15m以上的钢板筒仓,采用落地式平底仓,利用地基承担大部分粮 食自重,更经济合理。12m—15m之间,可按实际情况由设计人员自行比较确定。
4. 1. 1粮食钢板筒仓为特种结构,使用过程中除承受永久荷载、可变荷载、地震作 用等荷载作用外,还要承受储粮对仓筒的作用。储粮对筒仓的作用效果较大,作用 时间长,且随时间变化,是影响筒仓结构安全的主要因素。所以,本条文为强制性 条文,将粮食荷载单列以引起重视。
4. 1.3粮食散料的物理特性参数(重力密度、内摩擦角、与仓壁之间的摩擦系数等) 的取值,对储料荷载的计算结果有很大的影响,然而影响粮食散料物理特性参数的 因素很多,不同的物料状态(颗粒形状、含水量)、含杂粮、装卸条件、外界温度、 储存时间等都会使散料的物理特性参数发生变化,因此设计中选用各种参数时必须 慎重。
粮食散料的物理特性参数一般应通过试验,并综合考虑各种变化因素。附录C 所列粮食散料的物理特性参数,是我国粮食筒仓设计的经验数据,采用时应根据实 际粮食散料的来源、品种等进行选择。
4. 1.4波纹粮食钢板筒仓卸料时,粮食与仓壁间的相对滑移面并不完全是沿波纹钢 板表面,位于钢板外凸波内的粮食与仓内流动区内的粮食之间也发生相对滑移,故 在考虑粮食对仓壁的摩擦作用时,偏于安全取粮食的内摩擦角取代粮食对平钢板的 外摩擦角。
4. 1.5储粮计算高度的取值,对储料压力的计算结果有很大影响。特别是对于大直 径筒仓储料顶面为斜面时,确定其计算高度,应考虑储料斜面可能会超出仓壁高度 形成的上部锥体或储料斜面可能会低于仓壁高度产生的无效仓容,故计算高度上端 算至储料锥体的重心,否则会产生较大误差。筒仓下部为填料时,由于填料有一定 的强度,能够承受储料压力,故应考虑填料的有利影响,将计算高度算至填料的表 面。
4. 1.6在对筒仓仓壁进行风压下的稳定验算时,一般由局部承压稳定起控制作用, 应考虑仓壁局部表面承受的最大风压值,参照现行国家标准《建筑结构荷载规范
(2006版)》GB50009对圆形构筑物风载体型系数的有关规定,按局部计算考虑取值 为1.0。筒仓整体计算时,对单独筒仓,风载体型系数取0.8,对仓间距较小的群仓, 近似按矩形建筑物风载体型系数,取1.3。
4.2.2筒仓储粮对仓壁的压力,国内外已进行了长期和大量的研究,提出有不同的 计算方法,但多数是以杨森(JanSSen)公式作为计算筒仓储粮静态压力的基础。尽 管该公式本身有一定的缺陷,但其计算结果基本能符合粮食静态压力的实际情况, 误差并不大。故本规范仍采用杨森(JanSSen)公式作为计算筒仓储粮静态压力的基 本公式。
4.2.3本条文为强制性条文。深仓卸料时储粮的动态压力涉及因素比较多,对粮食 动态压力的机理、分布及定量分析尚无较一致的认识,属尚未彻底解决的研究课题, 但筒仓内储料处于流动状态时对仓壁压力增大且沿仓壁高度与水平截面圆周呈不均 匀分布的事实,已被大家所公认。目前国外筒仓设计规范对储料动态压力的计算亦 各不相同,有采用单一的修正系数,有按不同储料品种及筒仓的几何尺寸给出不同 的计算参数,也有按卸料时不同的储料流动状态分别计算。
本规范中选用的深仓储料动态压力修正系数主要依据我国多年来的筒仓设计实践, 并参考了国外有关国家(德国、美国、法国、澳大利亚等)的筒仓设计规范。储料 的水平与竖向动态压力修正系数Ch、CV与现行国家标准《钢筋混凝土筒仓设计规范》 GB50077取值相同,另外考虑到钢板筒仓的径厚比较大,稳定性较差,粮食钢板筒仓 工程事故多是由于卸料时仓壁屈曲而引起。参考国外有关国家筒仓设计规范,对储 料作用于仓壁的竖向摩擦力也引入了动力修正系数Cf。
4. 2.4浅仓储粮对仓壁的水平压力,是按库仑理论作为计算的基本公式。但对装粮 高度较大的大直径浅仓,粮食对仓壁也会产生较大摩擦力,所以对hn≥15m且dn≥10m 的浅仓,仍要求按深仓计算储粮对仓壁的水平压力,同时还应考虑储料摩擦荷载, 以保证仓壁的安全可靠。
4. 2.6粮食对电缆的总摩擦力计算公式(4.2.6)是按杨森(JanSSen)理论推导并 考虑了动态压力修正系数,适用于圆截面且直径无变化的电缆等类似吊挂构件。对 于深仓,动态压力修正系数为2,与实测值能较好的吻合;对于浅仓,由于卸料时仓 内粮食多为漏斗状流动,此时在吊挂电缆长度范围内只有部分储粮处于流动状态, 其动态压力修正系数可适当减小,但不应小于1.5。
4. 3.1钢板群仓,由于施工、维修等操作要求,筒与筒之间需留一定间隙,故地震 作用可按单仓来计算。
地震时仓内储粮并非完全作为荷载作用于仓壁,而是在一定程度上也能衰减地 震能量并能对仓壁起一定的支承作用。但储粮与仓壁之间的相互作用机理目前还不 清楚。参照现行国家标准《构筑物抗震设计规范》GB 50191的相关规定,可不考虑 地震时储粮对仓壁的局部作用。
落地式平底钢板筒仓,储粮竖向压力完全由仓内地面承担,不必计算竖向地震 作用。
4. 3.2由于粮食为散粒体,地震时,散体颗粒与颗粒之间的相互运动摩擦会引起地 震能量的衰减,但目前还不能得出定量的分析方法,为设计使用上的方便,参考现 行国家标准《钢筋混凝土筒仓设计规范》GB50077和《构筑物抗震设计规范》GB50191 的有关规定,取满仓粮食总重量的80%作为其计算地震作用时的重力荷载代表值。
4. 3.3落地式平底粮食钢板筒仓,相当于下端固定于地面,沿高度质量基本均匀分 布的悬臂构件。由于粮食钢板筒仓高径比一般不大,故按整体考虑时,具有较大的 抗侧刚度,且筒仓装满粮食后,其实际刚度要比仅考虑筒仓壁计算的刚度大得多。 因此在地震过程中可以把落地式平底钢板筒仓近似看作一刚性柱体,而随地面一起 振动。实际设计时,为简化计算,在采用底部剪力法计算落地式平底粮食钢板筒仓 的水平地震作用时,地震影响系数偏于安全按现行国家标准《建筑抗震设计规范》
GB50011规定的最大值直接取用。
柱子支承或柱与筒壁共同支承的筒仓装满粮食时,仓体部分可以看作为支承于 柱顶(筒壁)的刚性整体。若无仓上建筑或仓上建筑重力荷载很小,则可按单质点 模型分析;若仓上建筑重力荷载较大,则应按多质点模型分析。
仓上建筑的抗侧移刚度远小于下部粮食钢板筒仓的抗侧移刚度,在地震作用下 会产生较大的鞭稍作用,参照现行国家标准《构筑物抗震设计规范》GB50191的有关 规定,取仓上建筑的水平地震作用增大系数为3。
4. 4.2粮食钢板筒仓是以粮食荷载为主的特种结构,粮食荷载同一般的可变荷载相 比,数值较大,但变异系数一般较小,特别是长期储粮时,其荷载性质更接近于永 久荷载,故取其分项系数为1.3。其他可变荷载的分项系数,是按现行国家标准《建 筑结构荷载规范(2006版)》GB50009和《建筑抗震设计规范》GB50011的有关规定 取用。
4. 4.3根据钢材的力学性能特点,钢结构在长期荷载作用下其力学性能并不发生较 大变化,并参照现行国家标准《钢结构设计规范》GB50017及《冷弯薄壁型钢结构技 术规范》GB50018的有关规定,钢结构按正常使用极限状态设计时,可只考虑荷载效 应的短期组合。
4. 4.4粮食钢板筒仓设计进行荷载组合时,若有风荷载参与组合,可认为粮食荷载 是效应最大的一项可变荷载,根据现行国家标准《建筑结构荷载规范(2006版)》 GB50009中荷载组合的要求,取其组合系数为1.0,其他可变荷载,按荷载组合的原 则取组合系数为0.6。
当地震作用参与组合时,考虑筒仓未必满载,故取储料荷载组合系数为0.9。其 他可变荷载组合系数,按现行国家标准《建筑抗震设计规范》GB50011规定取用。
5.1.1、5. 1.2根据现行国家标准《建筑结构可靠度设计统一标准》GB50068的要求, 粮食钢板筒仓结构设计应采用以概率理论为基础的极限状态设计方法。
承载能力极限状态是指结构或构件发挥允许的最大承载能力的状态。结构或构 件由于塑性变形而使其几何形状发生显著改变,虽未达到最大承载能力,但已彻底 不能使用,也属达到承载能力极限状态。
正常使用极限状态可理解为结构或构件达到使用功能上所允许的某个限值的状 态。例如,某些构件必须控制其变形,因变形过大会影响正常使用,也会使人们的 心理上产生不安全的感觉。
5.1.3所有的结构构件及连接都必须按承载能力极限状态进行设计,包括强度、稳 定、倾覆、锚固等计算。本规范中有规定的,按本规范进行计算;本规范中未规定 的,按国家其他相应规范进行计算。
5.2.1由上下环梁及钢板组成的正截锥壳仓顶,按薄壳结构进行分析计算时,考虑 到仓顶一般是用扇形板块在现场拼装而成,不可避免会有较大缺陷,此缺陷会使锥 壳的稳定性较大幅度下降,当缺陷达到超出薄壳厚度时,下降幅度可能会达到50%。 5.2.2由斜梁、上下环梁及钢板组成的正截锥壳仓顶结构,在实际工程中很难保证 斜梁与仓顶钢板(特别是薄钢板)连接的可靠传力,故设计时不考虑仓顶钢板的蒙 皮效应,此时仓顶空间杆系成为一个空间瞬变体系,必须设支撑杆件或采取其他措 施保证仓顶空间稳定性。
当仓顶设有可靠支撑时,本条提出的仓顶空间杆系结构,在竖向对称荷载作用 下的内力简化分析方法,能够满足工程要求。
5.2.3上环梁承受斜梁传来的径向水平压力,若与斜梁偏心连接,径向水平压力会 对上环梁产生扭转作用,故应按压、弯、扭构件进行计算。下环梁承受斜梁传来的 径向水平拉力,若与斜梁偏心连接,径向水平拉力会对下环梁产生扭转作用,故应 按拉、弯、扭构件进行计算。与下环梁相连的仓壁一般较薄,在平面外刚度很小, 故下环梁环截面计算时,不再考虑仓壁与下环梁的共同工作。
5.2.4由于粮食钢板筒仓仓顶多为轻钢结构,故斜梁传给下环梁的竖向荷载较小, 而下环梁在竖向一般具有较大的抗弯刚度,下部又与仓壁整体相连,斜梁传给下环 梁的竖向力,可认为由下环梁均匀传给下部结构。
5.3.1本条分别给出了深仓仓壁在水平及竖直方向上,应考虑的荷载基本组合,设 计中应从中选取相应最不利的组合,进行仓壁的强度、稳定及连接的计算。
5. 3.2浅仓仓壁在水平及竖直方向上,应考虑的荷载基本组合与深仓基本一致,但 组合时不再计取储粮动态压力修正系数。
5. 3.3加劲肋间距不大于1.2m的粮食钢板筒仓,将加劲肋折算成所加强方向的壳壁 截面,可按“等效强度”或“等效刚度”的原则进行,折算后的壳壁厚度按下列规 定取值:
1按抗拉强度相等原则折算时;
折算厚度:
(1)
2按抗弯刚度相等原则折算时;
折算厚度:
t =FlW . 1/3
L S ' 1- ■■ :.-: :.-:7-AJ 二'
(2)
式中:ts——折算厚度;
t —仓壁厚度;
AS—加劲肋的横截面面积;
b —加劲肋间距(弧长);
IS —加劲肋截面对平行于仓壁的本身截面形心轴的惯性矩;
e S —加劲肋截面形心距仓壁中心线的距离。
折算后的壳壁,在加劲肋加强方向上进行壳壁的抗拉、抗压强度计算时,应采 用按抗拉强度相等的原则确定折算厚度;抗弯和稳定验算时,应采用按抗弯刚度相 等的原则确定折算厚度。
5.3.4计算折算应力的公式(5. 3.4-3),是根据能量强度理论,保证钢材在复杂应 力状态下处于弹性状态的条件。由于粮食钢板筒仓属于薄壁结构,在仓壁厚度方向 上应力一般较小,故按双向应力状态进行计算。其余计算公式是根据现行国家标准 《钢结构设计规范》GB50017的有关规定。
5.3.5有加劲肋的粮食钢板筒仓按简化方法进行强度计算时,加劲肋与仓壁的组合 构件,在竖向荷载作用下截面实际受力较为复杂,且卸料时还有动载影响,宜完全 按弹性进行强度计算,不允许截面有塑性开展。加劲肋为薄壁型钢时,其截面尺寸 取值尚应符合我国现行《冷弯薄壁型钢结构技术规范》GBJ50018的有关规定。
5.3.6筒仓仓壁为波纹钢板时,仓壁的竖向荷载将全部经连接传给加劲肋;仓壁为 平钢板或螺旋卷边钢板时,仓壁的竖向荷载仅有部分经连接传给加劲肋。为简化计 算,在设计仓壁与加劲肋的连接时,不分仓壁钢板类型,偏于安全按仓壁的竖向荷 载全部经连接传给加劲肋来考虑。连接强度计算公式是根据现行国家标准《钢结构 设计规范》GB50017的有关规定给出的。
5.3.7筒仓仓壁在竖向荷载作用下的稳定计算,包括空仓时仅竖向荷载作用下、满 仓时竖向荷载与粮食水平压力共同作用下及局部集中荷载作用下仓壁的稳定计算:
1按弹性稳定理论分析,理想中圆筒壳在轴压下的稳定临界应力为
7 =捉H三,但大量的试验证明,实际圆筒壳的临界应力比理想圆筒壳的理论 计算值要少1/2【2/3,失稳破坏时的稳定系数仅为0.15〜0.3,而不是0.605。圆筒
壳的轴压临界应力在很大程度上取决于初始形状缺陷,随着初始形状缺陷的增大, 临界应力明显下降,下降幅度可能会达到50%之多。经过对国内外有关试验资料及分 析结果相比较,同时考虑设计计算的方便,采用了苏联B. T,利律等提出的稳定系数 表达式T.=二二三3/8作为在空仓时验算仓壁的稳定系数。当仓壁半径与厚度之
比R /,在1500以下时,此式计算结果和大量的试验结果能很好地相符合;当R / t在 2000〜2500时,按此式计算结果比试验分析结果略大(约10%左右)。另考虑到粮 食钢板筒仓一般为现场组装,与试验条件会有较大的差异,取初始形状缺陷影响系 数0.5,则得到空仓时验算仓壁的稳定系数计算公式(5.3.7-2)。
筒仓在竖向荷载作用下进行稳定验算时,仓壁的竖向压应力应参照本规范第
5. 3. 1条、5.3.2条规定,按可能出现的最不利荷载组合进行计算。
2钢板筒仓在满仓时,仓壁受到竖向压力及内部水平压力的共同作用,内压的 存在,可以减少筒壳初始缺陷的影响而使稳定临界应力有所提高。衡量内压影响的 大小,参考国外有关资料,采用无量纲参数F =己已-。在内压户作用下,筒壳 稳定,临界力的提高程度与参数户有关。经对美国、苏联等国外有关试验结果及经 验公式的对比计算,采用了苏联B.T.利律等提出的算式,即::: -艾、.孑。
由于筒仓在卸料时,粮食压力可能会不均匀分布,在计算参数户时不考虑粮食压力 动力修正系放,同时因内压P对仓壁整体稳定起有利作用,取其分项系数为1.0,故 取粮食对仓壁的静态水平压力标准值来计算参数户。经整理即为筒仓在满仓时仓壁 的稳定系数计算公式(5.3.7-4)。
3仓上建筑支承于筒仓壁顶端时,仓壁将局部承受竖向集中荷载,为防止仓壁 局部应力过大而导致局部失稳,应在局部竖向集中荷载作用处设置加劲肋。假定竖 向集中荷载经加劲肋向仓壁传递的扩散角为30°,并且考虑到筒仓顶端区段内压较 小,在公式(5.3.7-3)中,仓壁临界应力的计算不再考虑内压的影响,总体来讲是 偏于安全的。
5.3.8风荷载对仓壁表面产生不均匀的径向压力、使仓壁整体弯曲而产生的竖向压 应力、使仓壁整体剪切而产生水平剪应力,都可能引起筒仓仓壁失稳破坏。
风荷载使仓壁整体弯曲而产生的竖向压应力,应与可能同时出现的其他荷载产 生的竖向压应力进行组合,并按第5.3.7条进行竖向荷载下仓壁的稳定验算。在常用 的筒仓高度范围(35m以下),风荷载使仓壁整体剪切而产生水平剪应力,对仓壁隐 定一般不起控制作用。
风荷载对仓壁表面产生不均匀的径向压力,假定在筒仓的整个高度上均匀分布而沿 周向不均匀分布的压力,按有关理论分析研究,中长筒壳(':U H -.77)在筒壁失 稳时的临界荷载相当于轴对称加载时的临界荷载,相应计算公式可写成为
=:二三:員:二式中左为筒壳的初始形状缺陷影响系数,其值随R / t增大而减 h
小。参考前苏联B.T.利律等的试验分析结果,取初始形状缺陷影响系数在0.4,则筒 仓的临界荷载为:?.::= X二::三:員。
t h
实际风载沿筒仓高度是三角形分布,其临界荷载要高于上式计算结果,参考有 关资料引入增大系数η。即公式(5.3.8-1)。
上述分析没有考虑仓内压力影响,故公式(5. 3. 8-1)只作为空仓时仓壁在风载 下的稳定验算公式。
5. 4.1由于在圆锥漏斗仓底与仓壁的连接处设置有环梁,漏斗壁的计算不必再考虑 连接处,由于曲率的变化而引起的附加内力的影响,漏斗壁的径向、环向均按轴向 受力进行强度计算。
5. 4. 2仓底环梁与仓壁及漏斗采用连续焊接连接时,则成为一个整体,可考虑部分 壁板与环梁共同工作。
不同曲率的壳体相连处,曲率剧烈变化,由于壳壁径向力的作用将在壳体相连处产 生附加环向力,能够有效地承受这种附加环向力的壳体宽度范围,按理论分析为
^(r为曲率半径)。而圆筒壳与锥壳相连,当锥壳倾角为30°〜60°时,k=0.6。 所以本条规定与环梁共同工作的壁板有效范围采用0.5∙.二,同时考虑此范围若过 大,会由于壁板中应力的不均匀而使此范围壁板不能充分发挥作用,参照现行国家 标准《钢结构设计规范》GB50017,受压板件宽厚比限值的有关规定,限制此范围亦 不能大于15 t。
5.4.3仓底环梁的荷载,应考虑仓壁传来的竖向力、漏斗壁传来的斜向拉力及荷载 偏心引起的扭矩。在环梁高度范围内的粮食水平压力,由于数据较小且对环梁的径 向受压稳定起有利作用,故偏于安全不计其影响。
5.4.4仓底环梁是分段制作、安装,环梁段在径向压力作用下的稳定计算可按圆弧 拱进行分析,其平面内与平面外的临界荷载的计算均可用公式N = W来表示,且 r
随圆弧角度的增大,平面内、外的稳定系数k值均减小,当圆弧角度为2π时,稳定 系数最小值k=0.6,即公式(5.4.4-1)。
5. 5. 1当仓下采用钢柱支承时,由于围护筒壁较薄且与钢柱多为构造连接,不能保 证可靠传力。故不再考虑钢柱与围护筒壁共同工作。柱与环梁按空间框架进行分析 计算。
5.5.2为防止在水平荷载下筒仓的倾覆,筒仓仓壁与下部构件必须有可靠锚固。在 倾覆力矩M作用下,锚栓张力按梁理论求得为4M∕nd(M为筒仓承受的倾覆力矩,口为 锚栓数量,d为筒仓直径),考虑到锚栓同时受剪及梁理论与实际锚栓群受力的误差, 如栓群转动轴可能不是筒仓中心线。故将按梁理论计算的结果乘以1.5系数予以修 正。由于筒仓竖向永久荷载对抗倾覆起有利作用,其分项系数应为0.9。
5.5.3粮食钢板筒仓仓壁是薄壁结构,直接承受储粮的各种荷载。基础的倾斜变形 过大,使筒仓在粮食荷载下偏心受压,会大大减低筒仓仓壁的稳定性能,同时也会 使仓上建筑发生较大水平位移而影响正常使用。我国以往粮食钢板筒仓设计,多是 参照现行国家标准《钢筋混凝土筒仓设计规范》GB50077的相应规定,基础的倾斜率 控制在0.004以内;基础的平均沉降量控制在400mm内,同时规定了严格的试装粮压 仓程序。考虑到试装粮压仓需要较长的时间,会影响筒仓的及时投入正式使用,不 能满足现在经济建设的要求,故参考法国等国家的有关规范,限制筒仓基础的倾斜 率不超出0. 002,同时对试装粮压仓程序也作了适当简化。
由于试装粮压仓程序简化,每阶段装粮比例增大,间隔时间缩短,可能会在前 一阶段装粮后,地基沉降还未稳定即进入下一阶段装粮。群仓在各仓依次装粮时不 易观察控制基础的倾斜。所以本条第3款作为强制条款要求将基础平均沉降量控制在 200mm以内。同时也防止筒仓下通廊室内地面不会下沉至室外地面以下,保证筒仓的 正常使用。
6. 1. 1最常见的仓上建筑为输送廊道,用于安装输送设备并有操作荷载。本条强调 仓上建筑的支架要支搁在下张力环或上张力环上,使仓顶结构整体承受仓上建筑的 荷载,并应注意防止仓顶结构偏心受力。对于装有清理、计量等设备的仓上建筑, 需用落地支架,独立承担仓上建筑的荷载。
6. 1.2仓顶、廊道和操作平台距地面高度较大,故取其栏杆高度不小于1200mm,给 操作人员足够的安全感。
6. 1.3仓顶板为薄钢板,难以承担吊挂荷载。测温电缆可吊挂在加强的斜梁上,或 做成吊挂支架,支架固定于两相邻的斜梁上。考虑到卸料时粮食对吊挂设施的作用 力对仓顶的影响比较大,因此要求仓顶吊挂设施尽量对称布置。
6. 1.4根据对粮食钢板筒仓使用情况调查,仓顶板与斜梁采用外露螺栓连接时,极 易在连接处出现锈蚀和渗水而影响筒仓安全储粮。
6.2.4、6.2.5卸料时,粮食与仓壁的摩擦产生的竖向压力,使仓壁承受竖向压应 力,此时仓壁与竖向加劲肋共同工作。因此,竖向加劲肋的长度与仓壁的连接对仓 壁稳定、安全使用至关重要。根据对一些发生事故的粮食钢板筒仓的调查分析,有 些焊接连接的加劲肋与仓壁未能焊实或焊缝长度不够;螺栓连接的螺栓脱落或剪断, 致使筒仓破坏。因此这两条提出加劲肋与仓壁的连接必须可靠,保证仓壁与加劲肋 共同受力;加劲肋接长采用等强度连接。除根据计算设置加劲肋外,其接头错开布 置,以保证内力均匀传递。
6. 2.7根据试验表明,卸料流动时,突出筒仓内壁的附壁设施受到的竖向压力会成 倍增长,同时,在一些工程实践中,曾经发生粮食钢板筒仓在卸料时,由于粮食流 动产生的竖向力,将加劲肋间的支撑、系杆或钢爬梯拉断,脱落物堵塞出料口的事 故。因此,强调钢板筒仓内不应设置阻碍粮食流动的构件,保证卸料畅通。
6. 2.9仓壁下部与仓底(或基础)的可靠锚固对粮食钢板筒仓的整体稳定也起着至 关重要的作用,因此,这条给出了锚固点之间的限制距离。
粮食钢板筒仓的仓底可用不同材料制作,有不同的构造形式。为与钢板筒体用 材一致,本节着重规定了圆形钢锥斗和锥斗环梁的构造。其他材料建造的仓底,可 参照相应的规范设计。
仓下支承结构有钢、钢筋混凝上和砌体结构等多种形式。目前常用的有钢、钢 筋混凝土支承结构。本节主要对钢结构仓下支承结构的构造提出要求,其他支承结 构可按相应规范规定处理。
6. 4.2本条为强制条文。钢柱一般断面较小,考虑到仓下支承结构体系的整体稳定, 提出仓下支承钢柱应设柱间支撑。这是常规钢结构除设计计算外保证结构整体稳定 的有效构造措施。
6. 5. 1处于抗震设防地区时,考虑到粮食钢板筒仓的上刚下柔体系在地震荷载作用 下柱底产生的较大剪力,仅仅依靠地脚螺栓来抵抗剪力不够安全;增设抗剪钢板是 成熟有效的措施。
6. 5.2考虑到在风荷载及地震荷载下,钢柱下的地脚螺栓可能会处于既受拉又受压 剪的状态,因此,地脚螺栓的锚固长度应符合现行国家标准《混凝土结构设计规范》 GB50010对地脚螺栓的规定。
7. 1. 1工艺设计是系统设计,在整体工程设计中尤为重要。设计时,应充分了解粮 食的流动特性、质量密度、使用功能、作业要求等条件,进行工艺流程、设备布置、 设备选型等设计;应充分利用粮食自流,减少粮食平运及提升次数,提高工艺灵活 性和设备利用率。
7. 1.3设备较少的粮食钢板筒仓,一般不设工作塔,可设置简易的钢架或罩棚。敞 开式工作塔内的部分设备(如自动秤)应考虑必要的挡雨设施。对仓筒数量较少时, 可采用提升机塔架,利用溜管直接入仓形式。
7. 2.1本条仅列出粮食进出钢板筒仓工艺流程中应具有的必须工序。具体工艺流程 中工序位置的设置应根据作业的接卸方式、功能要求、工艺设备布置等因素确定。
7. 2.2本条文仅列出与粮食钢板筒仓进出仓直接相连接的设备。整个工艺流程过程 中其他设备,可根据工艺作业要求进行配置。
在粮食钢板筒仓进出仓设备选择配备时,根据使用原料特性、使用功能作业要 求等进行具体配置。
7. 2.3系统设备的生产能力是根据系统全年作业量、接收发放设施的集中作业量、 作业时间、仓容量及运输工具等因素确定。
单个粮食钢板筒仓进出仓设备能力还与工艺流程设计相关,一般宜采用与系统 相同的设备能力。如采用多条作业线同时进或出仓时,其多条作业线的综合生产能 力应大于系统的生产能力。
7. 2.4设备的额定生产能力按照粮食的质量密度(0.75t/m3)标准确定,当输送其 它品种粮食时,按其质量密度换算。输送设备的能力宜选用模数系列。非模数设备 应根据条件进行计算确定。
7. 2. 8根据目前国内设计粮食钢板筒仓的使用状况,直径小于12m粮食钢板筒仓采用 锥底技术非常普遍,故将原规范10m修订为12m。
7. 3. 1粮食钢板筒仓多用于粮食中转和粮油饲料加工原粮储存,配备通风系统,可 提高粮食钢板筒仓使用的灵活性。对加工厂车间粮食钢板筒仓可不设机械通风。
7. 3.3通风机采用移动式投资少,工人工作量大。设计时可根据具体项目功能要求、 投资等因素确定。如港口库为保证生产安全,提高作业效率,提高管理水平,减少 人为影响可采用固定式;用于长期储备的内陆库可采用移动风机。
粮食钢板筒仓仓上通风口包括仓顶轴流风机和自然通风口,其排风能力大于仓 底通风进风的能力,可减少通风系统的阻力,排风气流顺畅。
当仓顶通风机用于仓空间通风换气时,其通风量以不小于仓内空间体积的3倍考 虑为宜。
7.3.5根据储备要求,用于储备的粮食钢板筒仓,应配备熏蒸系统。由于我国地域 辽阔,储备条件差异大,各地采用熏蒸措施方法不同。可根据实际情况,配置相应 的通风、熏蒸等设施。
熏蒸用的粮食钢板筒仓应进行密闭处理。熏蒸前,粮食钢板筒仓应进行气密测 试。
根据国内粮食钢板筒仓使用情况,参照现行行业标准《磷化氢环流熏蒸技术规 范》LS/T1201中第5. 3.2条的气密指标,确定熏蒸粮食钢板筒仓气密指标中的时间为 不少于40s。
7. 3.6为保证谷物冷却系统使用效果,防止作业过程中粮食结露,保证储粮安全, 粮食钢板筒仓应进行保温、隔热、密闭处理,并满足谷物冷却系统使用要求。
7. 4. 1粮食钢板筒仓的有害气体控制主要指熏蒸杀虫过程产生的有害气体。其排放 满足现行国家标准《大气污染物综合排放标准》GB16297的要求。
7. 4.2粮食钢板筒仓粉尘控制主要对接卸设施、物料输送过程的连接、作业设备内 部等产生粉尘的位置进行粉尘控制,防止灰尘外溢。
风网应按系统工艺流程路线、除尘系统灰尘处理方式、粉尘控制点布置及作业 管理等相关条件进行组合设计。一般采用集中风网控制,对于独立单点或不宜组合 的风尘控制点宜采用单机除尘控制。
对中转粮食钢板筒仓粉尘控制系统的粉尘,一般采用回流处理。储粮粮食钢板 筒仓一般采用集中收集和回流处理模式。
在系统设计时,应进行系统阻力平衡计算,确定管道直径、除尘设备及除尘通 风机的选择。
7. 4.3系统设计时,震动和噪声较大的通风机应进行减震、降噪处理,管道和风机 的连接宜采用软连,有条件时集中布置。对于空压机采用消声、隔音、减震的综合 措施。空压机房设计符合现行国家标准《压缩空气站设计规范》GB50029的规定。
7. 4.4为保证粮食进出仓顺畅,以及粮食钢板筒仓的安全特规定本条。
本章内容只涉及有关粮食钢板筒仓电气设计中主要内容。对于诸如:负荷计算、 高低压配电系统、变配电所平面布置、通信等本规范没有涉及到的内容,请参照国 家现行有关规范执行。
8. 1. 1粮食钢板筒仓仓群供电负荷等级与其重要性和使用要求有关,一般为三级。 对于中转任务繁重的港口库和重要的中转库和储备库,可按二级负荷设计,以保证 生产、紧急调运,以减少压船、压港时间。
8. 1.2本条为强制条文。按现行国家标准《爆炸和火灾危险环境电力装置设计规范》 GB50058和《粮食加工、储运系统粉尘防爆安全规程》GB17440的要求,除筒仓、料 仓、封闭式设备内部等属20区外,其余均属21和22区或非危险区。配电线路的设计、 电气设备选择,要根据具体情况考虑粉尘防爆要求,并按相应的施工规范施工。
8. 1. 3配电箱、开关等电气设备及线路应尽量在非粉尘爆炸危险区设置和敷设,有 困难时,对设置在粉尘爆炸危险区电气设备及线路应根据所在区域的危险等级来选 型。粮食钢板筒仓属多尘环境,且粮仓易发生鼠害。电气设备及线路应有防尘、防 鼠害的保护措施。
8. 1.4目前粮食仓库主要采用磷化氢气体熏蒸来杀虫,但磷化氢气体对铜有较强的 腐蚀作用,故才内电气设备应采取防磷化氢腐蚀措施。
8. 2.1对粉尘爆炸危险区域的电气线路来说,选用铜芯导线或电缆,在机械强度上 比铝芯高,不宜造成断线,减少产生火花的可能性;在电火花的点燃能力上铜芯线 缆比铝芯材料低。故从安全角度出发,在爆炸性防尘环境内的电气线路采用铜芯导 线或电缆是合适的。另外,从可靠方面来讲,也是必要的。
根据现行国家标准《爆炸和火灾危险环境电力装置设计规范》GB50058、《粮食 加工、储运系统粉尘防爆安全规程》GB17440的规定,室内铜芯导线及电缆的最小截 面可为1.5mm2,但对于粉尘爆炸危险20区,电缆和绝缘导线的截面积不应小于 2. 5mm2。
8. 2.2配电线路采用的上下级保护电器应具有选择性动作。随着我国保护电器的性 能不断提高,实现保护电器的上下级动作配合已具备一定条件。
共给电动机、电梯等用电设备线路,除符合一般要求外,尚有用电设备的特殊 保护要求,应符合现行国家标准《通用用电设备配电设计规范》GB50055的规定。
8. 2. 3照明线路和动力线路敷设特别是动力线路,推荐采用电缆桥架及明敷,方便 施工和维修,便于管理和维护,并要求短捷、顺畅、美观,尽量减少重叠交叉。
8. 3. 1根据现行国家标准《建筑照明设计标准》GB50034规定,人们随着社会发展和 物质条件的改善,对照度的要求相应也要提高,所以照度推荐值比以往粮库照明设 计中照度值有所提高,供选择时参考。
8. 3. 2常用灯具的最低效率值按照现行国家标准《建筑照明设计标准》GB50034确定。 粉尘防爆照明灯具防护等级应按照现行国家标准《粮食加工、储运系统粉尘防爆安 全规程》GB17440确定。
8. 3.3应急照明是在正常照明因故障熄灭后,为避免发生意外事故,而需要对人员 进行安全疏散时,在出口和通道设置的指示出口位置及方向的疏散标志灯和照亮疏 散通道而设置的照明。设置消防应急照明的部位应参照现行国家标准《建筑设计防 火规范》GB50016的规定。
8. 3.4在白天自然光较强,或在深夜人员很少时,可以方便地用手动或自动方式关 闭一部分或大部分照明,有利于节电。分组控制的目的,是为了将天然采光充足或 不充足的场所分别开关。
8.4.1、8. 4.2自动控制系统的具体组成要根据粮食钢板筒仓的使用性质、规模、投 资、技术要求等因素综合考虑确定。中转量大或较大规模的粮食钢板筒仓,均应设 自动控制系统,自动控制系统一般由PLC和上位机组成。粮食钢板筒仓中转量或规模 较小时,应以实用性和可靠性设计控制系统,可采用集中手动控制方式,满足主要 输送设备间连锁的基本要求。
8. 4.4筒仓料位器设置可参考表1,对于重要工艺设备的安全检测传感器的设置,可 参考表2选择。
表1 筒仓料位器设置表
|
名称 |
___数量___ |
安装位置 |
___备注___ |
|
上料位器一 |
1 |
进料口附近 | |
|
下料位器 |
1 |
出料口附一 |
表2重要工艺设备安全检测传感器器配置一览表
|
设备名称 |
跑偏开关 |
失速开关 |
拉绳开关 |
防堵开关 |
断链开关 |
|
斗式提或机 |
√ 一 |
√ 一 |
— |
√ 一 |
— |
|
埋刮板输送 机 |
— |
— |
— |
√ |
√ |
|
气垫、带式 输送机 |
√ |
√ |
√ |
√ |
— |
|
备注 |
— |
— |
40m以上- |
出料口 - |
— |
8. 5. 1粮食钢板筒仓是否设粮情测控系统,应根据其使用要求及储粮时间长短确定。
8. 5.2测温电缆长期埋在粮堆中,除有防霉的要求外,还应有防磷化氢等药物熏蒸 的能力。且分线器等仓内器件也应满足密闭防腐要求。
8. 5.3粮食测温只是粮食安全保管的手段之一。由于粮食热传导性能差,所以在测 温电缆的布置方面,没有一个成熟并行之有效的计算方法。根据粮食行业使用情况 和多年来设计部门积累的经验,对于筒仓(含粮食钢板筒仓、钢筋混凝土筒仓、浅 圆仓)测温电缆布置方式可参考表3及图1。
表3粮食钢板筒仓测温电缆布置数量及布置方式
|
粮仓直径 (m) |
测温电缆 总数(根) |
位于仓中心 根数(根) |
位于半径4上用 |
!数_____ |
位于半径5上根数 | |||
|
自中心 矩 |
根数 |
夹角 |
自中心矩 |
根数 |
夹角 | |||
|
8 |
5 |
0 _ |
3. 5 |
5 |
72° |
— |
— |
— |
|
10 |
7 |
1 _ |
4. 5 |
6 |
60° |
— |
— |
— |
|
12 |
9 |
1 _ |
3. 5 |
4 |
90° |
5. 5 |
4 |
90° |
|
14 |
9 |
1 |
4 |
4 |
-90° |
5^5 |
4 |
-90° |
|
16 |
11 |
1 _ |
4. 5 |
4 |
90° |
7. 5 |
6 |
60° |
|
18 |
11 |
1 一 |
5 |
4 |
90° |
8. 5 |
6 |
60° |
图1测温电缆布置半径示意图
8. 5.4粮食钢板筒仓在出粮时,通过测温电缆对仓顶所产生的拉力不容忽视。为此, 除测温电缆及吊挂装置必须满足拉力要求外,其下端应该用重锤或采取其他措施相 对固定其应有位置,以防进粮时料流将其冲离原有位置。但下端固定不能太牢固, 以免拉断电缆及仓顶受力增大。
8. 6.1本条为强制条文。粮食钢板筒仓部分分区属粉尘爆炸危险场所,根据现行国 家标准《建筑物防雷设计规范》GB50057应为第二类防雷建筑物。
8. 6.2粮食钢板筒仓仓顶利用金属围栏及仓上通廊做接闪器时,金属围栏和通廊金 属屋面板的要求应符合现行国家标准《建筑物防雷设计规范》GB50057的规定。斗式 提升机筒、刮板机、皮带机等封闭散粮输送设备内为粉尘爆炸危险场所20区,当其 露天设置高出屋顶不在接闪器保护范围内时,其本身机架不得作为接闪器,需在屋 顶局部另立避雷针保护,避雷针高度用滚球法确定。
8. 6. 3粮食钢板筒仓仓壁钢板的厚度和连接方式,一般不能满足避雷引下线的要求, 故要求另加镀锌扁钢作为避雷引下线;当粮食钢板筒仓的加劲肋截面及厚度不小于 本条规定的扁钢参数,且加劲肋上下电气贯通并到达仓顶上环梁时,也可利用加劲 肋作为避雷引下线。
8. 6.4接地装置应利用基础钢筋时一般能满足对其接地电阻值的要求。基础纵横钢 筋焊接成闭合电气通路。有桩基础时,桩基础主钢筋也应与接地装置连接,以增大 接地面积,减少接地电阻。上述做法如不能满足其对接地电阻值的要求,需另作人 工接地极。
8. 6. 5等电位连接的目的在于减小需要防雷的空间内各金属物与各系统之间的电位 差。线路安装电涌保护器的性能应符合传输线路的性质和要求。
8. 6.6建筑物内每层均应预留有与引下线相连的等电位连接端子或连接箱,供工艺 设备接地用。建筑物内各设备应分别与接地体或者接地母线相连以保证能防雷。
8. 6.7粮食钢板筒仓电气工程中的接地系统类型较多,且比较集中,分别设置接地 系统比较困难,其间距不易保证,因此宜将各接地系统共用接地装置。