Vfc

根据原建设部《关于印发〈二OO—r.oo二年度工程建 设城建、建工行业标准制定、修订计划》I通知》(崔标[2002] 84号)的要求,规范编制组经广泛调査:宀 ''是总结实践经 验,参考国际标准和国外先进标扌     泛征求意见的基础


上,修订了本规范。

本规范的主要技术内容是游厕2.术语和符号;3基 本规定;4.临边与洞口陳5係登与悬空作业;馭操作平 台;7.交叉作业;8.参筑施工安全网。


.本规范修订的我技滿⅛"1∙增加關雄号章节; 2∙将临边和洞业側护栏的要求归费—统f其构 造进仃规定;,,与悬空作岭廠增加屋面和外墙作 业时的 4’ 4∙将操作抵*作业章节分开为操 作第八,作业两个章节,当其提出了要求;5.对移动 操咨色)去地式操作平台与悬挑式操作平台分别作出了规定;

本规范中以黑体字标志的条文为强制性条文,必须严格 执行。

本规范由住房和城乡建设部员责管理和对强制性条文的解 释,由上海市建工设计研究院有限公司负责具体技术内容的解 释。执行过程中如有意见和建议,请寄送上海市建工设计研究院 有限公司(地址:上海市吴中路511号楼,邮编200235) 0

本规范主编单位:上海市建工设计研究院有限公司

南通市达欣工程股份有限公司

本规范参编单位:哈尔滨工业大学

中国工程建设标准化协会施工安全专 业委员会

上海市建设工程安全质量监督4 广东裕华兴建筑机械制造有限/ 上海建工七建集团有F 上海建浩工程顾问 上海建工一.建 上海建工集 上海市; 甘肃省



二总站

,限公司

Vfc


起草人员:


首限公司

旬监理有限公司 :质量安全管理协会 集团有限公司 独机械施工集团有快 ―建设安全协会依 武汉市城建安全昭理站 上海星宇建雙族司 北京城劉噸设有限责任公司 福建谦成建设有限公司


本规范主要审査人员:


栗窗

何晔

史立平

刘宗仁

李永奎

赵敖齐

钱进

陈建兰

马军

高明敏

张嘉洁

许月根

蒲宇锋

景绍宗

戚耀奇

龚耀华

袁福安

李玮

马宏良

沈俊伦

严训

傅虹

茹国和

杨开生

王德国

王振兴

陈火炎

耿洁明

戴宝荣

葛兴杰

刘新玉

孙宗辅

廖永

阎琪

陈春雷

蔡雷

杜伟国

彭雪燕

兰阳春


1

2

2

3

5

7

1

2

3

4

5

6

10

11

13

13

6.1

8

10


术语和符号・・・・ 2.1术语..........

2.2符号..........

基本规定.......

临边与洞口作业

L 1临边作业.… 1.2洞口作业・・・・ 4.3防护栏杆・••• 攀登与悬空惣

5.2悬空作业… 操作平台.........

白瀨定…

6以<為动式操作平台

6.3落地式操作平台

6.4 悬挑式操作平台

7交叉作业

7.2安全措施

8建筑施工安全网

8.2安全网搭设

附录A防护栏杆的设计计算

附录B移动式操作平台的设计计算

附录C悬挑式操作平台的设计计算 .............................. 25

COntentS

General ProViSiOnS ∙

TermS and SymboIS

2. 1 TenilS .............

2.2 SymbOlS ..........

BaSiC ReqUirementS


Edge-near and OPening Op⅜raM⅛□^

Edge-near OPeration .......

C)Pening OPeratiOn

PrOteCtiVe             ∙∙∙f∙∙,


4.1


4.2


4.3

Climbing an^J⅛Jaπging OPeratiO

5. 1 ClimbingrOPeratiOn


5. 2 逾问 Θperation ∙ ∙ Opβr⅜ing PIatfOrm • ReqUirementS



7

7

7

8

10

10

11

13

13


61 X^KzIOVabIe OPerating PIatfOrm

6. 4 CantileVered OPerating PlatfOrm

8. 2 InStallatiOn Of Safety NetS

APPendiX A ProteCtiVe RaiIingS CalCUIation for DeSign ∙∙∙ 20

APPendiX B MOVabIe OPerating PIatfOrm CaICUIatiOn

for DeSign ............................................. 22

APPendiX C CantiIeVered OPerating PIatform

CaICUlatiOn for DeSign ...........

EXPIanatiOn Of WOrcling inThis COde

LiSt Of QUOted StandardS ..............


28

29



1.0.1为规范建筑施工高处作业及其管理,做到防护安全、技 术先进、经济合理,制定本规范。

1.0.2本规范适用于建筑工程施工段雎Ik中的临边、洞口、 攀登、悬空、操作平台、交叉作业及安全网搭设等项作业。

本规范亦适用于其他高处作业箱、坑、沟、槽等部位 的施工。

習"W国


1.0.3建筑施工高处作]

家现行有关标准的规定.



2术语和符号

2. 1


2.1∙ 1 高处作业 WOrking at height

在坠落高度基准面2m及以上有可能坠落的高处进行的 作业。

2. L 2 临边作业 edge-near OP^raI

在工作面边沿无围护或围护设施高度低于80Omm的高处作 业,包括楼板边、≡aw⅛⅛Γ阳台边、各类坑、沟、槽 等边沿的项晳业階.

213 洞口作业 股 ngPegOn Y

在地面、峽」屋面和墙面等有可嘰人和物料坠落,其坠 落咼度的洞口处的咼半虾 214 W.chmbmgPe暨。n 借悸用具或登咼设施进略处作业。

2.<∕ 悬盤作业 hanging OPeratIoNJ

无任何防护设施或防护设施不能满足防护要求的临空 状态下进行的高处作业。

2. 1. 6 操作平台 OPeratingPIatform

由钢管、型钢及其他等效性能材料等组装搭设制作的供施工 现场高处作业和载物的平台,包括移动式、落地式、悬挑式等 平台。

2. 1. 7 移动式操作平台 movable OPerating PIatfOrm

带脚轮或导轨,可移动的脚手架操作平台。

2. 1. 8 落地式操作平台 floor type OPerating PIatfOrm

从地面或楼面搭起、不能移动的操作平台.单纯进行施工作 业的施工平台和可进行施工作业与承载物料的接料平台。

2.1. 9 悬挑式操作平台 CantiIeVered OPerating PIatfOrm

以悬挑形式搁置或固定在建筑物结构边沿的操作平台,费 式悬挑操作平台和支承式悬挑操作平台O

2. L 10 交叉作业 CrOSS OPeratiOn

垂直空间贯通状态下,可能造成人员或物体坠落,菁处于坠 落半径范围内、上下左右不同层面的立体作业

Iiti


2.1.II 安全防护设施 Safety ProteCting


在施工高处作业中,为将危险、有

W控制在安全范围 采取的措施。


内,以及减少、预防和消除危害所

2.L 12安全防护棚Safety P^e

高处作业在立体交叉作蜓陟止物体坠落造成坠落半径 内人员伤害或m设备损坏而搭设的防护棚製公

2.2符 号


__________,      xκV

22ι作用和懲紗      N先1

珏一上横杆承受的集中荷载标礙》

F成脉V的集中荷载标准知屮

立杆承受的集中荷载标准知

M—上横杆最大弯矩设计值;

吊。^次梁最大弯矩设计值;

My——主梁最大弯矩设计值;

MZ——立杆承受的最大弯矩设计值;

N—斜撑的轴心压力设计值;

NZ——立杆的轴心压力设计值;

q■——梁上的等效均布荷载设计值;

务——次梁上的等效均布可变荷载标准值;

q%--次梁上均布恒荷载标准值;

R——次梁搁置于外侧主梁上的支座反力;

SS——钢丝绳的破断拉力;

T一钢丝绳所受拉力标准值;

σι——杆件的受弯应力;

02--立杆的受压应力

2.2.2计算指标

E—杆件的弹性模量;

/1——杆件的抗弯强度设计值;


Λ——立杆的抗压强度设计值;

Λ——斜撑的抗压强度设计值-

2.2.3计算系数

[K]——作吊索用钢丝绳的允许

≠——轴心受压构件的稳

2. 2.4几何系数

A——立杆毛截面面积;

An——立杆净截面面积;

Ae——斜撑毛截面面素 a—悬驚町 h----


I——赏件截面惯性矩; —上横杆计算长度;

LOC——次梁的计算跨度;

LX次梁两端搁支点间的跨度;

LOy——主梁的计算跨度;

Wn—— 上杆的净截面抵抗矩;

WaI——立杆的净截面抵抗矩;

α——钢丝绳与平台面的夹角;

η——悬臂长度比值;

P——受弯构件挠度计算值; h]——受弯构件挠度容许值。

3基本规定


3.0.1建筑施工中凡涉及临边与洞口作业、攀登与悬空作业、 操作平台、交叉作业及安全网搭设的,应在施工録機计或施工 方案中制定高处作业安全技术措施。

3.0.2高处作业施工前,应按类别

验收,验收合格后方可进行作业

或分阶段进行。

3.0.3高处作业施工前,

应记录。应对初次作业

3. 0. 4应根据要求^婁

部位,夜间应土

安全标志、

进行市

3.0.5



设施进行检查、 验收记录。验收可分层


峨人员进行安全技术交底'并

—瓢。.....<

安全警届志悬挂妙工现務各相应 咼处作业施^'径咼处作业的 、电气设施和设蘇彫其完好后,方可



业人员应根据作、 品,并应按规定正确

∏∏

3.0.6



况配备相应的高处作 戋和使用相应的安全防护用


对施工作业现场可能坠落的物料,应及时拆除或采取固 定措施。高处作业所用的物料应堆放平稳,不得妨碍通行和装 卸。工具应随手放入工具袋;作业中的走道、通道板和登高用 具,应随时清理干净;拆卸下的物料及余料和废料应及时清理运 走,不得随意放置或向下丢弃。传递物料时不得抛掷。

3.0.7高处作业应按现行国家标准《建设工程施工现场消防安


全技术规范》GB 50720的规定,采取防火措施。

3.0.8在雨、霜、雾、雪等天气进行高处作业时,应采取防滑、


防冻和防雷措施,并应及时清除作业面上的水、冰、雪、霜。

当遇有6级及以上强风、浓雾、沙尘暴等恶劣气候,不得进


行露天攀登与悬空高处作业。雨雪天气后,应对高处作业安全设 施进行检査,当发现有松动、变形、损坏或脱落等现象时,应立 即修理完善,维修合格后方可使用。

3.0.9对需临时拆除或变动的安全防护设施,应采取可靠措: 作业后应立即恢复。

3. 0.10安全防护设施验收应包括下列主要内

防护栏杆的设置与搭设;

攀登与悬空作业的用具与设施搭K 操作平台及平台防护设施的诚Z 防护棚的搭设; 安全网的设置;

安全防护设施、E



-J,应乂

1措施,

Vfc



5

6

的规格;

7设施的节点後 的固定、连接状况。

3. 0.11安施验收资料应包我斂罗内容:

1匆金计中的安全技否毯舞工方案;

2■題防护用品用具、材料和设备产品合格证明;

M防护设施验收记录;

垛埋件隐蔽验收记录;

安全防护设施变更记录。

应有专人对各类安全防护设施进行检查和维修保养,发


与质量、所用的材料、配件

ɪ

i,商料配件的规格、材质及其与建筑物


5

3. 0.12


现隐患应及时采取整改措施。

3. 0.13安全防护设施宜采用定型化、工具化设施,防护栏应为 黑黄或红白相间的条纹标示,盖件应为黄或红色标示。


4临边与洞口作业

4.1临边作业

4.1.1 坠落高度基准面2πι及以上进行临边作业时,应在临空 一侧设置防护栏杆,并应采用密目式 封闭。


:立网或工具式栏板


4.1.2施工的楼梯口、楼梯平 外设楼梯口、楼梯平台和梯段项 4. 1.3建筑物外围边移 置防护栏杆;对有外脚

,应安装防护栏杆; 采用密目式安全立网封闭。. 设置外脚手架的工程'应设 应米用密目式安全立网全封


闭。密目式安全立网应设韻脚手架外侧立 紧密连接。<Z-jZ∕          ,

4.1.4施工升降机、龙门架和井架物料提升机等在建筑物间设 置的停层平台两侧边,应设置防护栏杆、挡脚板,并应采用密目 式安全立网或工具式栏板封闭。-

应谖置防外开装置。井架物料提升机通道中间,应分别设置隔离 设施。

4.2洞口作业

4.2.1洞口作业时,应采取防坠落措施,并应符合下列规定:

1当竖向洞口短边边长小于50OnllTI时,应采取封堵措施; 当垂直洞口短边边长大于或等于50Omm时,应在临空一側设置 高度不小于L2m的防护栏杆,并应采用密目式安全立网或工具 式栏板封闭,设置挡脚板;

2当非竖向洞口短边边长为25mm~5Oomm时,应采用承 载力满足使用要求的盖板覆盖,盖板四周搁置应均衡,且应防止 盖板移位;

3 当非竖向洞口短边边长为50OnInl〜1500πιπι时,应采 盖板覆盖或防护栏杆等措施,并应固定牢固;


4当非竖向洞口短边边长大于或等于150Onlm     

口作业侧设置高度不小于1.2m的防护栏杆,洞口应釆用安全平 网封闭。

防护门


4. 2.4洞口盖板应能承     IkN的集中荷载和不小于

2kN∕m2的均布荷载,看的盖板应另行设计。R

4.2.5墙面等处落地的竖向洞口、窗台高度吵于2Omm的竖 向洞口及框架结构在浇筑完混凝土未砌筑墙体时的洞口,应按临 边防护要求设置防护栏杆。

4.3防护栏杆


4.3.1   作业的防护栏杆应由矗E立杆及挡脚板组成,防

N⅛⅛合下列规定:

1防护栏杆应为两道横杆,上杆距地面高度应为1.2m,下 杆应在上杆和挡脚板中间设置;

2当防护栏杆高度大于1.2m时,应增设横杆,横杆间距 不应大于600mm

3防护栏杆立杆间距不应大于2m

4挡脚板高度不应小于18OmmO

4.3.2防护栏杆立杆底端应固定牢固,并应符合下列规定:

1当在土体上固定时,应采用预埋或打入方式固定;

2当在混凝土楼面、地面、屋面或墙面固定时,应将预埋 件与立杆连接牢固;

3当在砌体上固定时,应预先砌入相应规格含有预埋件的 混凝土块,预埋件应与立杆连接牢固。

4.3.3防护栏杆杆件的规格及连接,应符合下列规定:

1当采用钢管作为防护栏杆杆件时,横杆及栏尊立杆应采 用脚手钢管,并应采用扣件、焊接、定型套管⅜⅛1W接 固定;

2当采用其他材料作防护栏杆杆件呼旁选用与钢管材质 强度相当的材料,并应釆用螺栓、销轴或焊接等方式进行连接 固定。

4.3.4防护栏杆的立杆和横杆輿贓定及连接,应确保防 护栏杆在上下横杆和立杆任何部啤'均能承受任何方向IkN 的外力作用。当栏杆所竺建資庭人群拥挤、物件碰撞等可能 时,应加大横杆截面或加密立杆间距。

4.3.5防护栏杆应张挂密目式安全立网或其他材料封諒。

5攀登与悬空作业

5.1 攀登作业

5.1.1登高作业应借助施丁通道、梯子及其他


:施和用具。


5.1.2攀登作业设施和用具应牢固可莆;当采用梯子攀爬作用 时,踏面荷载不应大于1. IkN;当愚飪殊作业时,应按 实际情况进行专项设计。

513同—梯子上不得两人同中在通道处使用梯子作业 时,应有专人监护或设置围栏。脚手架操作层上严禁架设梯子

作业。

5∙ I便携式梯子婀金属材料或木材制洲符合现行 国家标准《便嗦緞安全要求》GBWl规《便携式木梯 安全要求》感9的规定   «

515地梯时梯面应与水平嫁第,踏步不得缺失, 梯格间距宜为gm不得垫咼使用。.............

5.1.7固定式宜梯应采用金属材料制成,并应符合现行国家标 准《固定式钢梯及平台安全要求 第1部分:钢直梯》GB 4053. 1的规定;梯子净宽应为40Omm~600mm,固定直梯的支

撑应采用不小于L70X6的角钢,埋设与焊接应牢固。直梯顶端 的踏步应与攀登顶面齐平,并应加设I- Im1. 5m高的扶手。

5.1.8使用固定式直梯攀登作业时,当攀登高度超过3m时, 宜加设护笼;当攀登高度超过8m时,应设置梯间平台。

5.1.9钢结构安装时.应使用梯子或其他登高设施攀登作业。 坠落高度超过2m时,应设置操作平台。

5.1.11深基坑施丁应设置扶梯、入坑踏步及专用载人设备或斜 道等设施。采用斜道时,应加设间距不大于40Omm的防滑条等 防滑措施。作业人员严禁沿坑壁、支撑或乘运   上K

5.2


5.2.1悬空作业的立足处的设置应 落装置和设施。

应配置登高和防坠


522构件吊装和管道安装时的B业应符合下列规定L 1钢结构吊装'构淑細且装,安全设嗽并设置; 2吊装钢筋混凝土屋架、梁、柱等大型构件前呻在构件 上预先设置登局通恥操总点等安全颇疚、、

3 .在咼空織紗、吊装第-块聘制构件或单独的大中 型预制构件肘,应站在作业平台上操仗>

.4姣區施工宜在施工水平迪道,水平通道两 侧部亶防护栏杆;当利用钢梁作为水平通道时,应在钢梁-侧 设移危宙歩全绳,安全绳宜采用钢丝绳;

伽结构、管道等安装施工的安全防护宜采用工具化、定 型化设施。

5.2.3严禁在未固定、无防护设施的构件及管道上进行作业或 通行。

5.2.4当利用吊车梁等构件作为水平通道时,临空面的一侧应 设置连续的栏杆等防护措施。当安全绳为钢索时,钢索的一端应 采用花篮螺栓收紧;当安全绳为钢丝绳时,钢丝绳的自然下垂度 不应大于绳长的1/20,并不应大于IOOmmO

5.2.5模板支撑体系搭设和拆卸的悬空作业,应符合下列规定:

1模板支撑的搭设和拆卸应按规定程序进行,不得在上下 同一垂直面上同时装拆模板;

2在坠落基准面2m及以上高处搭设与拆除柱模板及悬挑 结构的模板时,应设置操作平台;

3在进行高处拆模作业时应配置登高用具或搭设支架S

1绑扎立柱和墙体钢筋,不得沿钢筋骨架攀登最站在骨架 上作业;               必寸V

2在坠落基准面2m及以上高处绑扎桂;钢處斓进行预应力 张拉时,应搭设操作平台。


1浇筑高度2m及以上的扌|

架或操作平台;........〜..................

2悬挑的混凝土梁和飮冲和边柱等结构找'应搭 设脚手架或操作平台。一

5.2.8屋面作业时創下列规定:


L在坡度泌角屋面上作业,当—架时.应在 屋檐边设置不低于i.5m咼的防护栏杆梦用密目式安全立 网全封域YV......... ―V........

型材等屋面上作域应搭设临时走道板,不得在 ⅛⅛jJ走;安装轻质型材板N应采取在梁下支设安全平 网或搭设脚手架等安全防护措施。

5.2.9外墙作业时应符合下列规定:

1门窗作业时,应有防坠落措施,操作人员在无安全防护 措施时,不得站立在槿子、阳台栏板上作业;

2高处作业不得使用座板式单人吊具,不得使用自制吊篮。

6操作平台

6.1 一般规定 Vfc

6.1.1操作平台应通过设计计算,并应编制義方案,架体构 造与材质应满足国家现行相关标准的哽《

613操作平台的映设置防护栏杆,单独设置伸作平台 应设置供人上下、踏步间距不大于400m渺维

614应在操作平台细位置设置标煥负载值的限载牌及 限定允i濒痙棲,物料应及日嘛峰得超重、超局椎放。 W ,會台使用中应每月今以期检査,应由专人 进行日常维&丁作,及时消除安全隐患。

6.2移动式操作平台

6.2.1移动式操作平台面积不宜大于IOm2,高度不宜大于5m, 高宽比不应大于2 1,施工荷载不应大于1. 5kN∕n√°

6.2.2移动式操作平台的轮子与平台架体连接应牢固,立柱底 端离地面不得大于80mmt行走轮和导向轮应配有制动器或刹车 闸等制动措施。

6.2.3移动式行走轮承载力不应小于5kN,制动力矩不应小于 2.5N∙m,移动式操作平台架体应保持垂直,不得弯曲变形, 制动器除在移动情况外,均应保持制动状态。

6.2.4移动式操作平台移动时,操作平台上不得站人。

6.2.5移动式升降丁作平台应符合现行国家标准《移动式升降工

_______________________ -  .......移动式

安全规则、检查、维护和操作》GB/T 27548

移动式操作平台的结构设计计算应符合本规范附录旧的


作平台 设计计算、安全要求和测试方法》GB 25849和《移动式 升降工作平台 要求。

6.2.6

规定。

6.3落地式操作平

疋:


1

比不应大于3 1

.OkN Ar?当接料平台

间距和步距等结构要


2.......…..........

的施工荷载大于2∙ OkNWtt行专项设计

3操作平台应与建筑物进行刚性连接或就

得与脚手架连接;Vh T

.:用脚手慾犊操作平台时.其立眇一.

求应符合零现行相关脚手架规范的规欢睜立杆下部设置底 座或垫效确横向扫地杆,凌拘F立面设置剪刀撑或 斜彎Fʌr

称平台应从底层第一步水平杆起逐层设置连墙件,且 连墙件间隔不应大于4m,并应设置水平剪刀撑。连墙件应为可 承受拉力和压力的构件,并应与建筑结构可靠连接。

6.3.2落地式操作平台搭设材料及搭设技术要求、允许偏差应 符合国家现行相关脚手架标准的规定。

6.3.3落地式操作平台应按国家现行相关脚手架标准的规定计 算受弯构件强度、连接扣件抗滑承载力、立杆稳定性、连墙杆件 强度与稳定性及连接强度、立杆地基承载力等。

6.3.5落地式操作平台拆除应由上而下逐层进行,严禁上下同 时作业,连墙件应随施工进度逐层拆除。

6.3.6落地式操作平台检査验收应符合下列规定:

1操作平台的钢管和扣件应有产品合格证;

2搭设前应对基础进行检查验收,搭设中应随施工进度按 结构层对操作平台进行检查验收;

36级以上大风、雷雨、大雪等恶劣天於停用超过1 个月,恢复使用前,应进行检査。

6.4悬挑式操作平包勿∖N

1操作平台的搁置点、拉结点、支撑点应设置在稳定的主 体结构上,且应可靠连接;

2严禁将操作平台设置在临时设施上;.......

3作平台的结构应稳定可靠,承载力应符合设计要求。

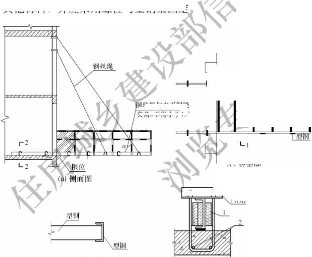
642悬挑式操作咖悬挑长度不宜大于欢均祎载不应 大于5∙ 5kN∕m姒中荷载不应大于15%悬挑孙锚固固定。 6.4.3米用樋方式的悬挑式操作平瘓歹两侧的连接吊环 应与前后渤钢丝绳连接,嵌的fe能承载该侧所有 荷雪

6.<∙4采用支承方式的悬挑式操册台,应在钢平台下方设置 不N⅛细斜撑,斜撑的一端应支承在钢平台主结构钢梁下,另 一端应支承在建筑物主体结构O

6.4.5采用悬臂梁式的操作平台,应采用型钢制作悬挑梁或悬 挑桁架,不得使用钢管,其节点应采用螺栓或焊接的刚性节点。 当平台板上的主梁采用与主体结构预埋件焊接时,预埋件、焊缝 均应经设计计算,建筑主体结构应同时满足强度要求。

6.4.6悬挑式操作平台应设置4个吊环,吊运时应使用卡环, 不得使吊钩直接钩挂吊环。吊环应按通用吊环或起重吊环设计, 并应满足强度要求。

6.4.7悬挑式操作平台安装时,钢丝绳应采用专用的钢丝绳夹 连接,钢丝绳夹数量应与钢丝绳直径相匹配,且不得少于4个。 建筑物锐角、利口周围系钢丝绳处应加衬软垫物。

6.4.8悬挑式操作平台的外侧应略高于内侧;外侧应安装防护 栏杆并应设置防护挡板全封闭。

6.4.9人员不得在悬挑式操作平台吊运、安装时上j’

7交叉作业

7. 1


一般规定


7.1.1交叉作业时,下层作业位置应处壬好作业的坠落半径 之外,高空作业坠落半径应按表7. 1. 1梨防护棚和警戒 隔离区范围的设置应视上层作业高度确大于坠落半径。

7.1.1坠落半径

_____序号

上层作业成瞼

1

2 _________________<

4 N        \

43。   4

6 —

7.L2交叉作41 网等多荃隔离措:

7.1VX

7.1.4

7.1.5

7.L6


化时,坠落半径内应设置琴防护棚或安全防护 施。当尚未设置安全鞘话施时,应设置警戒隔 具严禁进入隔离区。

我于起重机臂架回转范围内的通道,应搭设安全防护棚。 施丁现场人员进出的通道口,应搭设安全防护棚。 不得在安全防护棚棚顶堆放物料。

当采用脚手架搭设安全防护棚架构时.应符合国家现行 相关脚手架标准的规定。

7.1.7对不搭设脚手架和设置安全防护棚时的交叉作业,应设 置安全防护网,当在多层、高层建筑外立面施工时.应在二层及 每隔四层设一道固定的安全防护网,同时设一道随施工高度提升 的安全防护网。

7.2安全措施

7.2.1安全防护棚搭设应符合下列规定:

1当安全防护棚为非机动车辆通行时,棚底至地面高度不 应小于3m当安全防护棚为机动车辆通行时,棚底至地面高度 不应小于4m

2当建筑物高度大于24m并采用木质板搭翠?应搭设双 层安全防护棚。两层防护的间距不应尖于70()mm,安全防护棚 的高度不应小于4m

3当安全防护棚的顶棚采用竹笆或木质板搭设时,应采用 双层搭设,间距不应小于700^汹用木质板或与其等强度 的其他材料搭设时,俠陋设,木板厚颗应小于 5。皿防护棚的长度应根据建筑物咼度与可能坠偷定。 722安全防护网册合下列规定:VZV .安全防燔搭设时,应每隔3m任翊杆,支撑杆 水平夹角不宜输"____,必〉__________

2切应支撑杆时,应咿钢筋环或在结构内外侧各 设书酬.........√ ..........

护网应外高里低,应网之间应拼接严密。

8建筑施工安全网

8.1 一般规定

8. 1.1建筑施工安全网的选用应符合下列规症:

格证、

8.2.1


安全网

具有足够的强度和稳定性。

8.2.2F式安全立网搭设时,每岑开眼环扣应穿入系绳,系 绳鹹鬼支撑架上•间距不得大于45OmmO相邻密目网间应 紧密结合或重叠。

8.2.3当立网用于龙门架、物料提升架及井架的封闭防护时, 四周边绳应与支撑架贴紧,边绳的断裂张力不得小于3kN,系 绳应绑在支撑架上,间距不得大于75OmmO

8.2.4用于电梯井、钢结构和框架结构及构筑物封闭防护的平 网,应符合下列规定:

1平网每个系结点上的边绳应与支撑架靠紧,边绳的断裂张 力不得小于7kN,系绳沿网边应均匀分布,间距不得大于750mm

2电梯井内平网网体与井壁的空隙不得大于25mmf安全 网拉结应牢固。

附录A防护栏杆的设计计算

Vfc

A.O.1防护栏杆荷载设计值的取用,应符合现行国家标准《建 筑结构荷载规范》GB 50009的有关规定。V

A.0.2防护栏杆上横杆的计算,应采用外力为垂直荷载,集中 作用于立杆间距最大处的上横杆的     證符合下列规定:

弯矩标准值应按下式计敦

MlI = ⅜⅛

知一上横杆的最大弯矩标准值N •

%一上横储神荷载标准值 LL必计算长度(mm) 孔―爾竣的均布荷载衆 抗弯强疎按下列公式计算?


式中:


2


σι —


I QkL

/8


γa M


Wn

M = Σ 7qi Mk) 式中:σi--杆件的受弯应力N/mn?);




(A. O. 2-2)


(A. O. 2-3)


*——结构重要性系数;

M—上横杆的最大弯矩设计值N ∙ mm)

Wn——上横杆的净截面抵抗矩mt!?)

h——杆件的抗弯强度设计值N∕mm2);

Mki——i个可变荷载标准值计算的上横杆弯矩效应值 (N ♦ mm)

y<⅞-——按基本组合计算弯矩设计值,第,:个可变荷载分项 系数。

3挠度应按下式计算:


F* , 5g∕ V「「 48EI 384El Lld

式中:U——受弯构件挠度计算值(mm);

[vɔ——受弯构件挠度容许值(mm)

E——杆件的弹性模量(N∕mm2);

I——杆件截面惯性矩(mm)

A. 0.3防护栏杆立杆的计算,应采用外力応 杆件顶点,并应符合下列规定: 弯矩标准值应按下式计算:


式中:


(A. 0. 2-4)


Mzk——立杆承受的


MZk = F.,

(A. O. 3-1)


示准值(N , mm^ 步载标准值(N);.


Fzk一立杆承受欢载标准值(N); &S

,杆荫时   <z?

抗弯强驟峪列公式忏

丄涪 f (Ao32)

XS     M = EN       (A- O- 3-S)

W-立杆承受的最大弯剛t,即弯矩基本组合值

(N ∙ mπι)

——立杆的净截面抵抗矩(mn?)

MZki——按第,个可变荷载标准值计算的立杆弯矩效应值

(N ∙ mm) O

3挠度应按下式计算:


σι




(A. O. 3-4)


附录B


移动式操作平台的设计计算


B. 0. 1移动式操作平台(图B. 0. 1)的次梁的恒荷载t永久荷 载)中的自重,钢管应以0. 04kN∕m计,.铺皈应以O. 22kN∕m1 计;施工荷载(可变荷载)应以1 kN∕mS‰⅛应符合下列





移动式操作平台示



1一木楔;2一竹笆或木板;3一梯子;4一带锁脚轮;5一活动防护绳;6一挡脚板

1次梁承受的可变荷载为均布荷载时.应按下式计算最大 弯矩设计值:

1 , 1 , c, -g-<7LtLOI- + Xq ^g^<7ctL⅛        (B. 0. 11)

式中:Mt——次梁最大弯矩设计值N∙mm);

Yg


次梁上等效均布恒荷载标准值N/mm) •次梁上等效均布可变荷载标准值N/mm) 恒荷载分项系数;

Zq--可变荷载分项系数;

LOC——次梁的计算跨度mm)

2次梁承受的可变荷载为集中荷载时,应按下式计算最大 弯矩设计值:

1^2)

IkN


MC = γ(J 土(7%丄如 + ∕qFCkLS 式中:FCk次梁上的集中可变荷载标准值 计。

3取以上两项弯矩设计值中的较大值按本规范附录A公式 (A. 0. 2-2)计算次梁抗弯强度。

B.0.2移动式操作平台主梁剪朗兴应以立杆为支撑点按等 效均布荷载来计算,等效均布荷载包括次梁传递的恒荷载和施工 可变荷载、主梁自重恒何符合下列规定:

(B. O. 2)




1当立杆为3根时,可按下式计算位于中网 梁最大员弯矩 WS=H 式中5—王藥最大弯矩设计堂E

対梁上的等效均布荷载设计值Wmm)

主梁计算跨度mm)N

以上项弯矩设计值按本规范附录A公式A. 0.2-2)计 算主梁抗弯强度。

B.0.3立杆计算应符合下列规定:

1中间立杆应按轴心受压构件计算抗压强度,并应符合下 式要求:

—χ- W kΛ

式中:σ2--立杆的受压应力N∕mr∏2);

N,——立杆的轴心压力设计值N)

An——立杆净截面面积mn√);

h——立杆的抗压强度设计值N/mn?)

(B. O. 3^1)


2立杆尚应按下式计算其稳定性:

附录C


悬挑式操作平台的设计计算


C. 0.1悬挑式操作平台(图C. 0. 1-1 ʌC. 0,1-2)应栗用型钢

作主梁与次梁,满铺厚度不应小于50mm-的沐板或同等强度的 其他材料,并应采用螺栓与型钢梁固定

(C) 1-1剖面

(d) 2-2剖面

G 0.1-1斜拉方式的悬挑式操作平台示意图

1一木楔侧向摸紧;2一两根1. 5m长直径18InmHRB400钢筋


I丝绳与水平钢梁 夹角α不得小于45


(b)平面图

锚环直径根据方案

__β~

L63mm×6mm


C. 0.2悬挑式操作平台的平台板下次梁应符合下列规定:

1恒荷载(永久荷载)中的自重,当采用槽钢[10时应以

O. IkN/m计,铺板应以O. 4kN∕m2计;施工可变荷载应采用 15kN集中荷载或2. OkN∕m2均布荷载,并应按依本规范附录B

C. 0. 1-2下支承方式的悬挑式鬱咿净鳶图(单位;mm)

1一梁面预埋件;2—栏3—斜撑杆


公式B. 0.1-1)B. 0.1-22/

荷载时,应按下列公式扌

⅛∙               1      2

^Gtα¾ L°J + >Q 百风


Mc =

式中:


沸。当次梁带普且为均布

屍计值:ʌ

)•麥

z>u C.0.2-1)



(C. O. 2-2)


火梁最大弯矩设f

一恒荷载分项系数;

%——次梁上等效均布恒荷载标准值N/mm)


LOt——次梁的计算跨度mm)


/Q——可变荷载分项系数;

QCk——次梁上等效均布可变荷载标准值N/mm)

a——悬臂长度m)

η——悬臂长度比值。

2次梁抗弯强度应按附录A公式A. 0.2-2)计算。

C. 0.3次梁下主梁计算应符合下列规定:

1外侧主梁和钢丝绳吊点应作承载计算,并应按本规范附 录B公式B.0.2)计算外侧主梁弯矩值。当主梁采用[20槽钢 时,自重应以0. 26kN∕m计。当次梁带悬臂时,应按下列公式


计算次梁传递于主梁的荷载:


R = -y7L⅛(l + ηY1

式中:R—次梁搁置于外侧主梁上的支座反力设计 于主梁的荷载(N)

q——次梁上的等效均布荷载设计值N/mm

2主梁弯矩计算荷载应包括次梁所辱崖吊徹载和主梁自 重荷载;主梁抗弯强度应按附录A公式(忍夕》计算。

C.0.4钢丝绳验算应符合下列规定:

1钢丝绳应按下式计算所匏%准值:

.....逹 I 式中:丁―钢丝绳所成跖N) ;  ʌ

Q—王普护荷载标准值(N∕m1i W

%一碧喝跨度mm)

台面的夹角。ʌ

2钢桂澎应按下式验髄2全系数K


KT.............

(G 0. 4-2)


钢丝绳的破断拉力,取钢丝绳的破断拉力总和乘以 换算系数N)

[K]——吊索用钢丝绳的规范规定安全系数,取值为IOO

C. 0. 5下支承斜撑计算应符合下式要求:

≤ fi                  C. 0. 5)

式中:N—斜撑的轴心压力设计值N)

Φ——轴心受压构件的稳定系数;

AC——斜撑毛截面面积mm?)

3——斜撑抗压强度设计值N/mn?)

本规范用词说明

2格程


1为便于在执行本规范条文时区别对待,

度不同的用词说明如下:

1)


表示很严格,非这样做不可%;

正面词采用“必须”,反面词采用、严禁”;

2)


表示严格,在正常情尝丁命应这样做的:

3)


正面词采用“应”帛“不应”或“不得”; 表示允许稍有蛟金&海许可时首先哽隼做的: 正面词采用“宜”,反而词采用“不宜

表示有晚I在一定条件下可愛样做的,采用 “可'V                 ▼ <λ×L


引用标准名录

rB 50720

部分:钢直梯》


1《建筑结构荷载规范》GB 50009

2《钢结构设计规范》GB 50017

3《建设工程施工现场消防安全技术规孑

4《固定式钢梯及平台安全

GB 4053. 1

5

6

7

8

《安全网》GB 5725

《便携式木梯安全表蕴

《便携式金属梯安全要求》GB 12142

《移动式升降*作彩


设计计算、安全要求和测试方


工作平台


安全规则、检查、维护和操作》



29